Provisionsfrei v. Eigentümer! Ausbaufähige Dachböden + 2 Einzelgaragen in zentraler Lage in Bayreuth

95447 Bayreuth, Bayern
Frei ab: sofort
69.900 € Kaufpreis
Wohnfläche
83 m²
Zimmer
3
Etage
2
Einbauküche
Balkon (2)
Terrasse
Keller

Kaufpreis

Kaufpreis 69.900 €
Maklerprovisionkeine Provision, courtagefrei

Wohnfläche, Grundstück & Bausubstanz

Wohnfläche83 m²
Zimmer3
Stockwerk2
Baujahr1964
Verfügbar ab sofort

Beschreibung der Immobilie

Mit diesem Exposé präsentieren wir Ihnen zwei ausbaufähige Rohdachböden in attraktiver Lage von Bayreuth. Die Einheiten befinden sich in einem äußerst gepflegten Mehrfamilienhaus, das über eine Öl-Zentralheizung Baujahr 2024 beheizt wird.

In den Jahren 2025/2026 wurde durch den derzeitigen Eigentümer eine umfassende Aufwertung des Treppenhauses vorgenommen. In diesem Zuge wurden Wände, Decken, Treppen sowie die Wohnungseingangstüren überarbeitet und neu gestrichen. Darüber hinaus wird die Hauseingangstür in Kürze vollständig erneuert, was den positiven Gesamteindruck des Hauses zusätzlich unterstreicht.

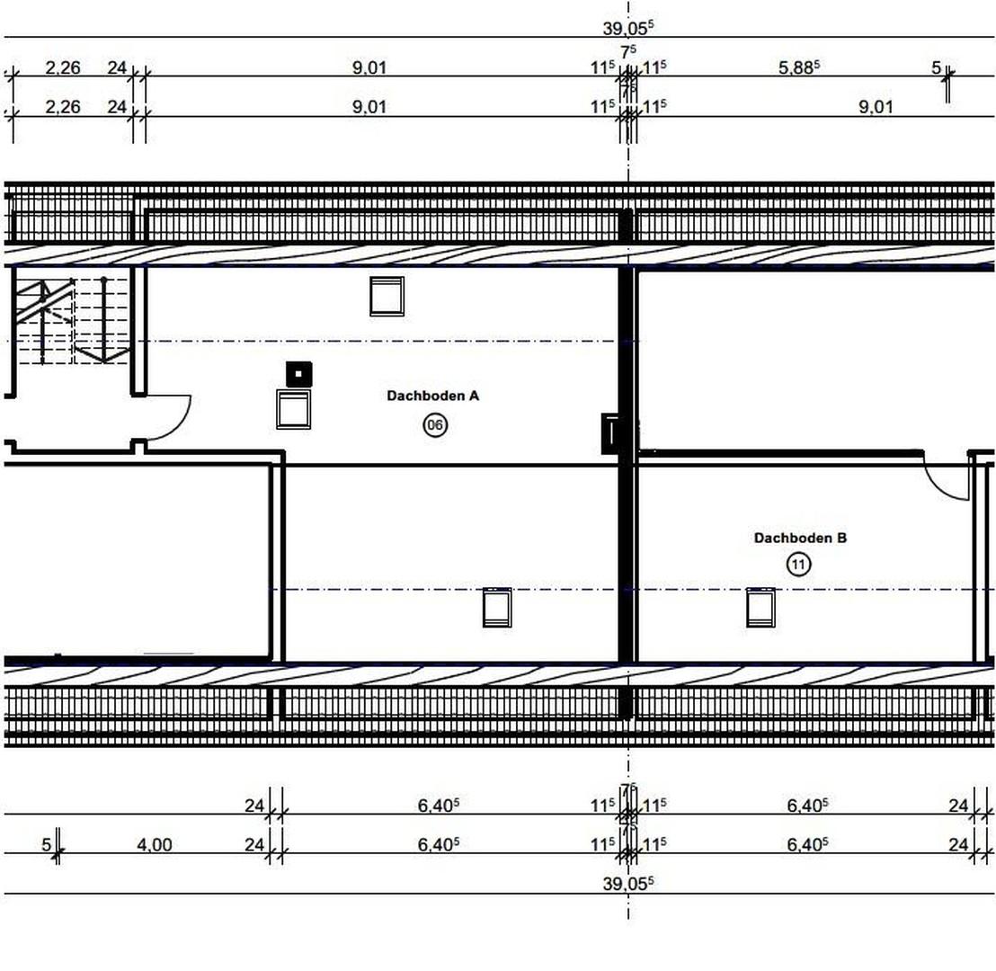
Die Dachböden überzeugen insbesondere durch ihre großzügige Giebelhöhe und eröffnen vielfältige Möglichkeiten für einen individuellen Ausbau. Durch den Ausbau und die Zusammenlegung der beiden Einheiten lässt sich eine vermietbare Fläche von bis zu ca. 83 m² realisieren.

Die grundsätzliche Genehmigung bzw. Zustimmung zum Ausbau seitens der Eigentümergemeinschaft liegt bereits vor und ist entsprechend in der Teilungserklärung des Mehrfamilienhauses verankert. Eine etwaige baurechtliche Genehmigung für den Ausbau ist vom Käufer eigenständig bei der Stadt einzuholen.

Zusätzlich zu den Dachböden können bei Bedarf bis zu 2 Einzelgaragen im Innenhof des Mehrfamilienhauses dazu erworben werden (+12.000€ je Einzelgarage).

Dem Dachboden ist zudem ein eigenes Kellerabteil zugeordnet.

Ausstattungsmerkmale

KücheEinbauküche
BodenFliesen, Teppich, Parkett, Laminat, Kunststoff
Balkone2
Terrassen1
KellerJa
Balkon, Terrasse, Wintergarten, Keller, Dachterrasse, Einbauküche, Gäste-WC, Kamin, Parkett, Laminat, Teppichboden, Fliesen, Sonstiges (s. Text)

Bemerkungen:
- Ölzentralheizung Baujahr 2024
- Ideal ausbaubarer Dachboden
- Im Jahr 2025 revitalisiertes Treppenhaus
- Im Jahr 2026 Erneuerung der Hauseingangstüre
- Mehrfamilienhaus Baujahr 1964
- Kein Denkmalschutz
- Zentrumsnahe Lage (wenige Minuten in die Altstadt)
- Optimale Anbindung an den öffentlichen Nahverkehr
- Moderne Grundrissgestaltung möglich
- 2. Obergeschoss
- Eigenes Kellerabteil

Energie

E
Energieeffizienzklasse E · 154 kWh/(m²*a)
EnergieausweistypBedarfsausweis
EnergieeffizienzklasseE
Endenergiebedarf154
Heizungsart Zentralheizung
Energieträger/Befeuerung Öl

Karte wird geladen...
95447 Bayreuth – Bayern

Lage & Infrastruktur

Die Immobilie befindet sich in einem sehr gepflegten Mehrfamilienhaus im schönen und begehrten Bayreuth.

Die Lage verbindet die Vorteile der Innenstadt mit einer angenehmen Wohnqualität: Einkaufsmöglichkeiten, Gastronomie, Nah- und Freizeitangebote befinden sich in fußläufiger Nähe, wodurch ein hoher Wohnkomfort gegeben ist.

Öffentliche Verkehrsmittel sind gut erreichbar.
Infrastruktur (im Umkreis von 5 km):
Apotheke, Lebensmittel-Discount, Allgemeinmediziner, Kindergarten, Grundschule, Hauptschule, Realschule, Gymnasium, Gesamtschule, Öffentliche Verkehrsmittel

Sonstige Informationen

Heizungsart: Zentralheizung
Energieträger: Öl


Makleranfragen nicht erwünscht. Nach § 7 UWG sind unaufgeforderte Kontaktaufnahmen durch Makler ohne ausdrückliche Einwilligung des Empfängers verboten!

ohne-makler (OM) ist weder Anbieter noch Vermittler der Immobilie. OM betreibt eine Plattform für Immobilieneigentümer, die unter anderem die gleichzeitige Veröffentlichung einzelner Inserate auf mehreren Immobilienportalen ermöglicht. Die Inhalte dieser Inserate werden ausschließlich von Dritten verantwortet. Für die Richtigkeit, Vollständigkeit oder Rechtmäßigkeit der Angaben übernimmt OM keine Haftung. Hinweise auf mögliche Rechtsverstöße können jederzeit gemeldet werden und werden nach Prüfung umgehend bearbeitet.
Ansprechpartner/in: Angebot vom Eigentümer
OM PropTech GmbH
Humboldtstraße 25a, 21509 Glinde

Weitere Angebote in Bayreuth