Großzügige Maisonette-Eigentumswohnung in Ortsrandlage Ostsee-nah bei Wismar

23968 Zierow, Mecklenburg-Vorpommern
Frei ab: nach Absprache
299.000 € Kaufpreis
Wohnfläche
113 m²
Zimmer
3
Etage
1
Einbauküche
Balkon
Terrasse
Keller

Kaufpreis

Kaufpreis 299.000 €
Hausgeld400 €
Maklerprovisionkeine Provision, courtagefrei

Wohnfläche, Grundstück & Bausubstanz

Wohnfläche113 m²
Zimmer3
Etagen3
Stockwerk1
Baujahr1996
Verfügbar ab nach Absprache
ZustandNeuwertig

Beschreibung der Immobilie

360°-Rundgang: https://www.ohne-makler.net/panorama/445085/

Objektbeschreibung Wohnung:
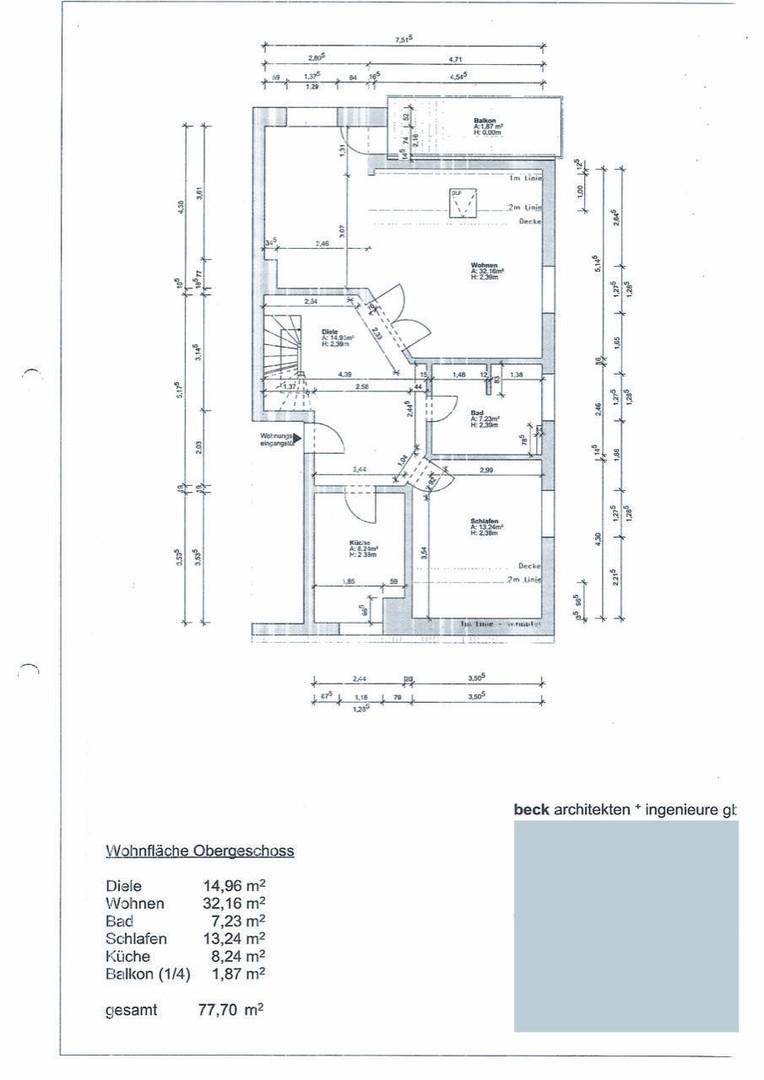
- Maisonette-Wohnung im 1. Obergeschoss
- gesamte Wohnfläche 113 m²
- Ausrichtung im Haus: Richtung Süd-Südwest

Raumaufteilung 1. Ebene:
- Diele, gefliest mit dekorativer Holztreppe zur oberen Ebene
- Wohnzimmer, großzügiger, heller Wohnbereich mit großer Flügeltür, Parkettboden, Kamin, 3 Fenster und Balkontür in Richtung Südost und Südwest
- Balkon mit freiem Blick über Felder, Wiesen und Wald bis über die Wismarer Bucht zur Insel Poel
- Schlafzimmer mit Laminatfußboden, 1 Fenster in Richtung Südwest
- Einbauküche, gefliest mit Induktionsherd, Kühl-Gefrierkombination, Apotheker- und Besenschrank, weiteren Küchenschränken, 1 Fenster in Richtung Nordwest
- Badezimmer, gefliest und ausgestattet mit Dusche, Badewanne, großem Waschtisch mit Spiegelschrank, WC, Platz für Waschmaschine, Fenster in Richtung Südwest

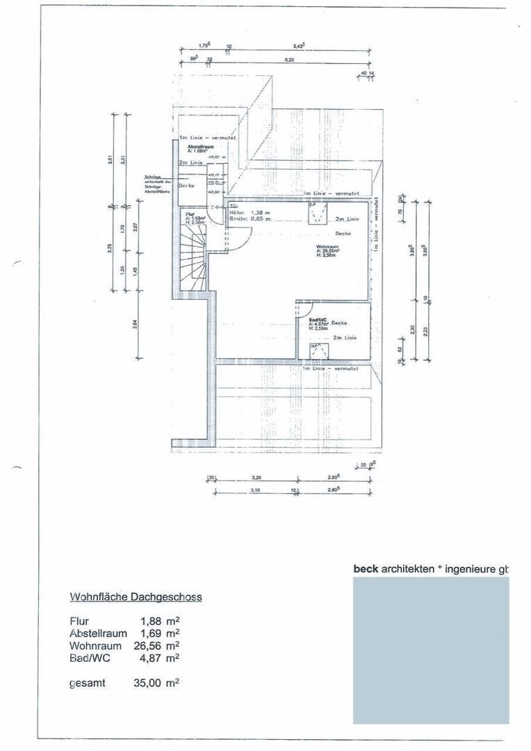
Raumaufteilung 2. Ebene / Dachgeschoss:
- Abstellraum vom oberen Treppenabsatz begehbar
- Großes Zimmer mit Laminatfußboden, Dachfenster mit automatischer Jalousie in Richtung Südost
- Duschbad, gefliest, WC und Waschbecken, Fenster in Richtung Nordwest

Das Gebäude
- Mehrfamilienhaus mit 4 Eigentumswohnungen
- Baujahr: 1996
- gefliester Kellerraum, Ölheizung
- Hausgeld ca. 400 € / Monat (inkl. Heizung, Wasser, Rücklagen, Versicherung, Hausstrom)
- Energieverbrauch lt. Energieausweis: 67 kWj/(m²a)

Außenbereich
- Hausgarten mit Geräteschuppen
- Stellplatz

Achtung!
Eine weitere mögliche Option wäre der "Tausch" gegen eine altersgerechte Mietwohnung mit 2-3 Zimmern oder ca. 70 - 90 m² in Wismar,
Schwerin oder Rostock.

Ausstattungsmerkmale

KücheEinbauküche
Bad2
Bad (Ausstattung)Dusche
BodenFliesen, Parkett, Laminat
Balkone1
Terrassen0
KellerJa
Balkon, Keller, Duschbad, Einbauküche, Gäste-WC, Parkett, Laminat, Fliesen

Energie

B
Energieeffizienzklasse B · 67 kWh/(m²*a)
EnergieausweistypVerbrauch
EnergieeffizienzklasseB
Energieverbrauchkennwert67 kWh/(m²*a)
Heizungsart Zentralheizung
Energieträger/Befeuerung Öl

Karte wird geladen...
23968 Zierow – Mecklenburg-Vorpommern

Lage & Infrastruktur

Lage:
- Ortsrandlage
- nur ca. 15 min Fußweg zum Strand
- ruhige Ostseeküsten-Landschaft
- Erholungsort unweit der Hansestadt Wismar und der Insel Poel
- zwischen Nationalpark-Wiesen, Feldern, Wald, Strand und Meer
- einfache Einkaufsmöglichkeit im Ort und Bushaltestelle zu Fuß in 5 min zu erreichen
- Supermärkte und Tankstellen in nur 3 km entfernen Nachbarorten und ins 8 km entfernte Wismar
- Busse fahren stündlich
- Wismar: Weltkulturerbe-Stadt, hervorragend ausgebaute Infrastruktur, vielfältige kulturelle Angebote
Infrastruktur (im Umkreis von 5 km):
Lebensmittel-Discount, Kindergarten, Öffentliche Verkehrsmittel

Sonstige Informationen

Heizungsart: Zentralheizung
Energieträger: Öl


Makleranfragen nicht erwünscht. Nach § 7 UWG sind unaufgeforderte Kontaktaufnahmen durch Makler ohne ausdrückliche Einwilligung des Empfängers verboten!

ohne-makler (OM) ist weder Anbieter noch Vermittler der Immobilie. OM betreibt eine Plattform für Immobilieneigentümer, die unter anderem die gleichzeitige Veröffentlichung einzelner Inserate auf mehreren Immobilienportalen ermöglicht. Die Inhalte dieser Inserate werden ausschließlich von Dritten verantwortet. Für die Richtigkeit, Vollständigkeit oder Rechtmäßigkeit der Angaben übernimmt OM keine Haftung. Hinweise auf mögliche Rechtsverstöße können jederzeit gemeldet werden und werden nach Prüfung umgehend bearbeitet.
Ansprechpartner/in: Privat von Henri Stabel
OM PropTech GmbH
Humboldtstraße 25a, 21509 Glinde

Weitere Angebote in Barnekow