Stadtnähe, Energiesparende, Klimatisierte 3 Zimmerwohnung in exponierter Lage und E Ladestation

Bahnhofstraße 47 64401 Groß Bieberau, Hessen
Frei ab: nach Absprache
995 € Kaltmiete
11,06 € Preis/m² ca.
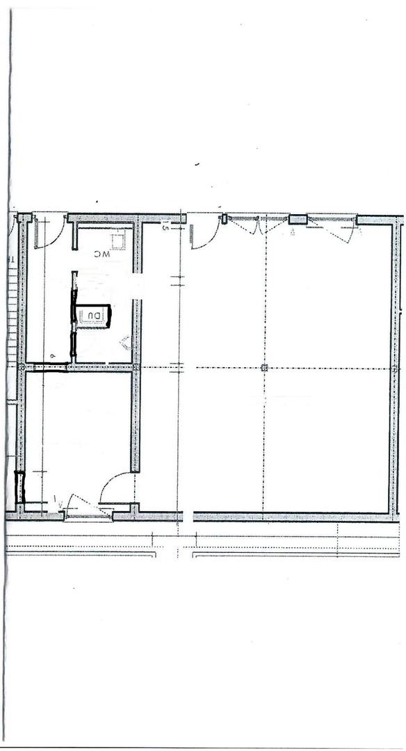
Wohnfläche
90 m²
Zimmer
3
Etage
0
Einbauküche
Balkon
Terrasse
Barrierefrei

Mietpreis & Nebenkosten

Kaltmiete (netto)995 €
Nebenkosten 295 €
Heizkosten enthaltenJa
Kaution 2.985 €

Wohnfläche, Grundstück & Bausubstanz

Wohnfläche90 m²
Zimmer3
Etagen2
Stockwerk0
Baujahr2026
Verfügbar ab nach Absprache
ZustandErstbezug

Beschreibung der Immobilie

Wohnen mit Flair und Charme
Sie haben die Möglichkeit sich aus einer von 2 Wohnungen zu entscheiden
Erstbezug
Der Mietpreis für die 3,0 Zimmerwohnung EG, setzt sich wie folgt zusammen: Kaltmiete € 995,00, plus Heizkosten ohne warm Wasser
€ 60,00, Nebenkosten ohne Heizkosten € 235,00, sind gesamt Nebenkosten mit Heizkosten, ohne warm Wasser € 295,00, somit ergibt sich eine Gesamtwarmmiete mit Heizkosten pro Monat von € 1.290,00
Mietkaution für diese Wohnung 3MKM € 2.985,00

Zudem bieten wir eine zusätzliche 3 Zimmerwohnung an:
Der Mietpreis für die 3 Zimmerwohnung DG ca. 90 qm setzt sich wie folgt zusammen: Miete € 1.155,00, inkl. 4 Stellplätzen, Nebenkosten ohne Heizkosten € 245,00, somit ergibt sich eine Gesamtwarmmiete ohne Heizkosten pro Monat von € 1.400,00
Mietkaution für diese Wohnung 3MKM € 3.465,00

Sehr ruhige, zentrale Lage, Balkon in der DG Wohnung, sowie die eigene Gestaltung einer Terrasse in der EG Wohnung
Sehr hochwertige Ausstattung,
Bad mit Dusche und integrierter Ablage, sowie einer zusätzlichen Übergangsheizung ,
In einem Energiesparhaus, diese Wohnung kann schon ohne Fossile Energieträger ( Gas, Öl, Holz ) beheizt werden, die Energiekosten sind absolut niedrig und kalkulierbar.
Einbauküche, mit indirekter Beleuchtung, Herd mit allen Extras, Ceranfeld, Spülmaschine, Kühlschrank, Gefrierfächer extra, Dunstabzug mit Abluft, Schubladendämpfung, teilweise extra hohe Schränke, sehr geräumig.
Gesamtes Gebäude nach den neuesten Wärmeschutzmaßnahmen gedämmt.
Eigene digital und App gesteuerte Wärmepumpenklimaanlage
Digitalgesteuerte Fußbodenheizung in allen Räumen
Elektrische Rollos
Komplette Beleuchtung
Entlüftungsanlage im Bad und wie teilweise im Abstellraum mit Feuchtigkeitssteuerung
Sie können sich eine Terrasse selbst gestalten
Selbstverständlich sind auch schon Gardinen an allen Fenstern vormontiert
Waschmaschinen und Trockneranschluss im Bad
Dazu gibt es noch ein Highlight, 2 E Ladestationen sind direkt an der Wohnung vorbereitet, welche extra angemietet werden können.
Unsere Wohnungen sind zudem für Allergiker sehr geeignet, da sie mit einem sehr hochwertigen, exklusiven Fliesen oder Laminat ausgestattet sind.
WICHTIGE VORABINFO!
Bitte nur wirklich interessierte Interessenten, dafür schicken Sie bei Interesse eine aussagekräftige Kontaktanfrage. Ich bitte Sie um Verständnis, dass wir Ihre Anfrage nur bearbeiten können, wenn Sie uns eine schriftliche Anfrage über das Kontaktformular welches ihnen das Immobilienportals anbietet, zukommen lassen, bei dem alle Felder vollständig ausgefüllt sein müssen, zudem benötigen wir Ihre Telefonnummern, bitte stellen sie sicher, dass man Sie auch dann telefonisch erreicht.

Ausstattungsmerkmale

KücheEinbauküche
Bad1
Bad (Ausstattung)Dusche
BodenFliesen
Balkone0
Terrassen1
BarrierefreiJa
Terrasse, Duschbad, Einbauküche, Barrierefrei, Fliesen

Bemerkungen:
Sehr hochwertig, exklusive Ausstattung
Erstbezug
Abstellraum in der Wohnung,
3 PKW Stellplätze, wo sie sich zusätzlich eine Terrasse selbst gestalten können
geräumige Einbauküche mit kompletter Ausstattung
Vorhangstangen zum Teil mit Vorhängen
elektrische Rollos
Kellerraum
Wärmepumpenklimaanlage in Monoblockausführung
DSL Anschluss
Sat - Anlage im Wohn-, Arbeits- und Schlafbereich
Telefon im gesamten Wohn und Schlafbereich über ihren Wlan-Anschluß

Energie

A
Energieeffizienzklasse A · 49 kWh/(m²*a)
EnergieausweistypVerbrauch
EnergieeffizienzklasseA
Energieverbrauchkennwert49 kWh/(m²*a)
Heizungsart Fußbodenheizung
Energieträger/Befeuerung Gas

Karte wird geladen...
Bahnhofstraße 47
64401 Groß Bieberau – Hessen

Lage & Infrastruktur

Sehr ruhig und zentrale Lage.
Optimale Anbindung an öffentliche Verkehrsmittel.
Sehr gute Infrastruktur ( schnelle Anbindung an Verkehrsschnellwege, Einkaufen, Ärzte, Schulen, Kindergärten, Erholung, Sport, Freizeit, wandern, Rad fahren usw.
Diese hochwertige Wohnanlage befindet sich an direkter Lage zu öffentlichen Verkehrsmitteln. Hier wohnen Sie zentral, aber dennoch ruhig!
Groß Bieberau ist eine attraktive Kommune. Durch die attraktive Lage am Rande des Odenwaldes haben Sie in Groß Bieberau einen hohen Wohn- und Freizeitwert.
Durch den neuen Lohberg-Tunnel in Nieder-Ramstadt und die neue Streckenführung der B426 in Eberstadt, erreichen Sie in nur ca. 10min die Autobahnauffahrt der BAB A5 in Darmstadt-Eberstadt/Pfungstadt. In weniger als 10min erreichen Sie die B26 im Osten mit den bekannten kurzläufigen Anschlüssen nach Aschaffenburg, Hanau, Frankfurt, Würzburg und Fulda. Es gibt gute Bus- und Bahnanbindungen an das Rhein/Main-Gebiet und den Odenwald.
Mit der Odenwaldbahn in 1,5 Kilometer Entfernung (fährt alle 20 - 30min) erreichen Sie Darmstadts Nordbahnhof in ca. 20min und Darmstadts Hauptbahnhof in etwa 25min.
Frankfurts Hauptbahnhof ist mit der gleichen Taktung in 40 bis 55min zu erreichen.
Darmstadt erreichen Sie in ca. 15 Minuten.
Infrastruktur (im Umkreis von 5 km):
Apotheke, Lebensmittel-Discount, Allgemeinmediziner, Kindergarten, Grundschule, Hauptschule, Realschule, Gymnasium, Gesamtschule, Öffentliche Verkehrsmittel

Sonstige Informationen

Heizungsart: Fußbodenheizung
Energieträger: Gas

Eine Top Wohnung in einer sehr ansprechenden Anlage.
Sie werden nicht von den Energiekosten aufgefressen, denn in unserem Gebäude wurde auf Energieverbrauch und auf den Wohlfühlfaktor sehr hoher Wert gelegt. Lassen sie sich überraschen!

ohne-makler (OM) ist weder Anbieter noch Vermittler der Immobilie. OM betreibt eine Plattform für Immobilieneigentümer, die unter anderem die gleichzeitige Veröffentlichung einzelner Inserate auf mehreren Immobilienportalen ermöglicht. Die Inhalte dieser Inserate werden ausschließlich von Dritten verantwortet. Für die Richtigkeit, Vollständigkeit oder Rechtmäßigkeit der Angaben übernimmt OM keine Haftung. Hinweise auf mögliche Rechtsverstöße können jederzeit gemeldet werden und werden nach Prüfung umgehend bearbeitet.
Ansprechpartner/in: Privat von Klaus Winzig
0171 8367318
OM PropTech GmbH
Humboldtstraße 25a, 21509 Glinde
0171 8367318

Weitere Angebote in Groß-Bieberau