Charmante 2-Zimmer-Wohnung mit Balkon – vermietet und ideal für Kapitalanleger

90763 Fürth, Bayern
119.000 € Kaufpreis
Wohnfläche
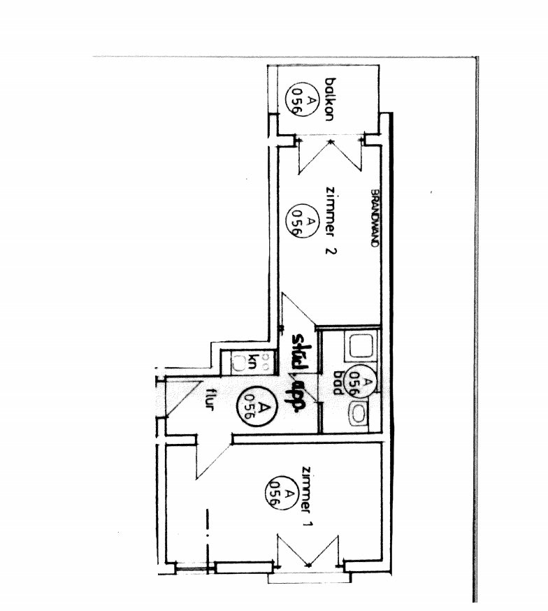
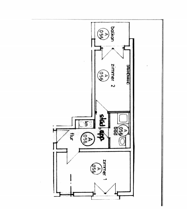
40,57 m²
Zimmer
2
Etage
3
Balkon
Fahrstuhl
Keller
Barrierefrei

Kaufpreis

Kaufpreis 119.000 €
Kaufpreis pro m²2933,2 €
Hausgeld365 €
Maklerprovision3,57 % inkl. MwSt.

Wohnfläche, Grundstück & Bausubstanz

Wohnfläche40,57 m²
Zimmer2
Etagen3
Stockwerk3
Baujahr1995
Verfügbar ab Keine Angabe
ZustandGepflegt

Beschreibung der Immobilie

Charmante 2-Zimmer-Wohnung mit Balkon – vermietet und ideal für Kapitalanleger

Diese gepflegte 2-Zimmer-Wohnung mit ca. 40,57 m² Wohnfläche befindet sich in einem ruhigen und gepflegten Mehrfamilienhaus und stellt eine attraktive Kapitalanlage mit stabilen Mieteinnahmen dar.

Der helle Wohnbereich überzeugt durch eine durchdachte Raumaufteilung und ist mit einem hochwertigen Laminatboden ausgestattet. Große Fenster sorgen für eine angenehme Lichtatmosphäre und schaffen ein freundliches Wohngefühl.

Das separate Schlafzimmer bietet ausreichend Platz für Ruhe und Privatsphäre.

Das modern geflieste Badezimmer ist mit Dusche, Waschbecken und WC ausgestattet und präsentiert sich funktional sowie zeitlos gepflegt.

Ein Personenaufzug im Haus ermöglicht einen komfortablen Zugang zur Wohnung und erhöht zusätzlich die Attraktivität für Mieter.

🚗 Tiefgaragenstellplatz (Duplex):
Zusätzlich besteht die Möglichkeit, einen Duplex-Tiefgaragenstellplatz zu erwerben.
Der Stellplatz befindet sich in der Tiefgarage des Hauses und ist nicht im Kaufpreis der Wohnung enthalten, sondern kann separat erworben werden.

💰 Besonders interessant für Kapitalanleger:
Die Wohnung ist bereits vermietet und erzielt aktuell eine jährliche Brutto miete von 9.120€ p.a. Somit profitieren Investoren von sofortigen und stabilen Mieteinnahmen.

Die kompakte Wohnungsgröße, die angenehme Helligkeit sowie die ruhige Wohnlage machen dieses Objekt zu einer nachhaltig gut vermietbaren Immobilie.

Ob als renditestarke Kapitalanlage oder perspektivisch zur Eigennutzung – hier investieren Sie in eine gefragte Wohnform mit langfristigem Potenzial.

Dateien


Ausstattungsmerkmale

Bad1
Bad (Ausstattung)Dusche
BodenFliesen, Parkett
Balkone1
Fahrstuhl
BarrierefreiJa
KellerJa
Ausstattung im Überblick
Wohnfläche: ca. 40,57 m²

Baujahr: 1995 – gepflegtes Mehrfamilienhaus mit zeitloser Architektur

Räumlichkeiten: 2 gut geschnittene, helle Zimmer mit durchdachter Aufteilung

Bodenbeläge: Wohnbereich mit modernem, pflegeleichtem Laminatboden

Badezimmer: Zeitlos gefliest, mit Dusche, Waschbecken und WC

Komfort: Personenaufzug für barrierearmen Zugang

Zustand: Sehr gepflegter Gesamtzustand des Hauses und der Wohnung

Energie

C
Energieeffizienzklasse C · 91.4 kWh/(m²*a)
EnergieausweistypVerbrauch
Ausstellungsdatum22. 02. 2018
Gültig bis21.02.2028
EnergieeffizienzklasseC
Energieverbrauchkennwert91.4 kWh/(m²*a)
Heizungsart Zentralheizung
Wesentlicher EnergieträgerGas
Energieträger/Befeuerung Gas

Karte wird geladen...
90763 Fürth – Bayern

Lage & Infrastruktur

Diese Immobilie befindet sich in einem lebhaften Wohnviertel von Fürth, das sowohl durch seine zentrale Lage als auch durch die Vielfalt an verfügbaren Annehmlichkeiten überzeugt. Die ruhige Straße strahlt eine einladende Atmosphäre aus und ist von historischen Gebäuden umgeben, die dem Viertel seinen charmanten Charakter verleihen.

In unmittelbarer Nähe finden sich zahlreiche Supermärkte, darunter Edeka und ALDI Süd, die bequem zu Fuß erreichbar sind. Auch mehrere Restaurants wie das beliebte Shiva und die Pizzeria Da Francesco bieten vielseitige kulinarische Optionen. Für Familien erweist sich das Wohngebiet mit diversen Spielplätzen und der nahegelegenen Kinderkrippe besonders attraktiv.

Die hervorragende Anbindung an den öffentlichen Nahverkehr, mit Bushaltestellen und einem Bahnhof nur wenige Gehminuten entfernt, unterstreicht die Bequemlichkeit dieser Lage. Zusätzlich gelangen Autofahrer rasch zu wichtigen Autobahnen. Der nächstgelegene internationale Flughafen ist etwa 30 Minuten Fahrzeit entfernt, was diese Immobilie auch für Pendler sehr interessant macht.

Was die Gesundheitsversorgung angeht, sind sowohl Zahnärzte als auch Ärzte in der Nähe angesiedelt. Apotheken und Drogerien, darunter Rossmann, stehen ebenfalls in Reichweite zur Verfügung. Für sportlich Aktive liegt ein modernes Fitnessstudio in der Nachbarschaft, und die Grünanlagen der Umgebung bieten Möglichkeiten zur Erholung im Freien.

Mit einem Durchschnittsalter von rund 40 Jahren und einem geringen Leerstand ist die Gegend sowohl bei jungen Familien als auch bei Paaren und Singles beliebt. Die hohe Dichte an kulturellen und sportlichen Angeboten sowie Freizeitmöglichkeiten spricht eine vielfältige Zielgruppe an, während das dichte Netz an Geschäften des täglichen Bedarfs und Dienstleistern eine ausgezeichnete Versorgung sicherstellt.

Sonstige Informationen

Falls Sie Wert auf eine ruhige Lage, eine durchdachte Raumaufteilung und ein gehobenes Wohnumfeld legen, könnte dieses Objekt genau das Richtige für Sie sein. Wir bieten Ihnen eine kostenlose 24/7-Hotline unter der Rufnummer 0800-6460646, über die Sie uns jederzeit erreichen können.

Wenn Sie Interesse an der Immobilie haben, fordern Sie gerne das ausführliche Exposé an, das Ihnen in der Regel kurzfristig und automatisch zugesandt wird. Sollten Sie eine Besichtigung wünschen, antworten Sie am besten direkt per E-Mail auf das Exposé. Wir setzen uns umgehend mit Ihnen in Verbindung und unterbreiten Ihnen passende Terminvorschläge. Bitte geben Sie dabei stets Ihre vollständigen Kontaktdaten an.

Die Objektbeschreibung basiert ganz oder teilweise auf den Angaben des Eigentümers. Für die Richtigkeit und Vollständigkeit dieser Informationen übernehmen wir keine Gewähr.

Möchten auch Sie Ihre Immobilie professionell vermarkten? Dann kontaktieren Sie uns gerne! Wir stehen Ihnen täglich von Montag bis Sonntag zwischen 6:00 und 22:00 Uhr persönlich zur Verfügung. Über 200.000 aktive Interessenten warten bereits auf Ihr Angebot.

Bitte beachten Sie, dass das Exposé möglicherweise unter Zuhilfenahme von Künstlicher Intelligenz (KI) erstellt oder überarbeitet wurde. Dabei wurden jedoch keine wesentlichen Merkmale verändert.

Ansprechpartner/in: Herr Cono Manzione
FALC Immobilien GmbH & Co. KG
Humperdickstr. 3, 53773 Hennef (Sieg)