Barrierefreie 71,38m2 Neubauwohnung mit Garten & Einbauküche in Toplage

88045 Friedrichshafen, Baden-Württemberg
Frei ab: 28.06.2026
1.339 € Kaltmiete
18,50 € Preis/m² ca.
Wohnfläche
72,38 m²
Zimmer
2
Etage
0
Einbauküche
Balkon
Terrasse
Garten
Fahrstuhl
Keller
Barrierefrei

Mietpreis & Nebenkosten

Kaltmiete (netto)1.339 €
Nebenkosten 214 €
Heizkosten enthaltenJa
Kaution 3.642 €
Stellplatz Tiefgarage Miete100 €

Wohnfläche, Grundstück & Bausubstanz

Wohnfläche72,38 m²
Zimmer2
Etagen1
Stockwerk0
Baujahr2026
Verfügbar ab 28.06.2026
ZustandErstbezug

Beschreibung der Immobilie

Biete barrierefreie 71,38m2 Neubauwohnung mit Garten inkl. Tiefgaragenstellplatz in Friedrichshafen (ab Juli 2026) 1.653€
Für eine hochwertige barrierefreie Neubauwohnung in zentraler und dennoch ruhiger Lage von Friedrichshafen (Sandöschstr.) suchen wir eine zuverlässige Mieterin oder einen Mieter mit Interesse an einem langfristigen Mietverhältnis.

HIGHLIGHTS
•Erstbezug – Neubau, bezugsfertig ab Juli 2026
•Top-Lage in Friedrichshafen (ca. 10 Minuten zu Fuß zum Bodensee, Bahnhof, Bäcker, Ärzten, Strandbad)
•Erdgeschosswohnung mit Süd-Ost-Ausrichtung
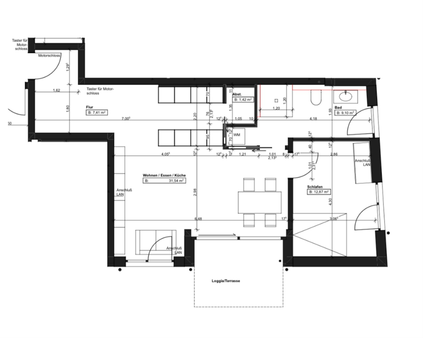
•2 Zimmer mit ca. 71,38 m² Wohnfläche
•13-Parteien-Haus
•Effizienzhaus 40
•Gehobene Ausstattung: Fliesenboden in moderner Holzoptik, hochwertige Einbauküche
•Wallbox für E-Auto vorhanden

WOHNUNG & AUSSTATTUNG
•Großzügiger, moderner Grundriss
•Hochwertige Materialien und zeitgemäße Ausstattung
•Extra breiter Tiefgaragenstellplatz
•Aufzug vom Keller bis zur Wohnung
•Kellerraum vorhanden

BARRIEREFREIHEIT & KOMFORT
•Barrierefrei, weitgehend rollstuhlgerecht
•Küche mit unterfahrbarem Kochfeld und Spülbecken
•Unterfahrbares Waschbecken
•Barrierefreier Ausgang auf Terrasse
•Trockner / Waschmaschinenanschluss in Wohnung
•Elektrischer Wohnungstüröffner
•Komfortables, durchdachtes Wohnkonzept

MIETKONDITIONEN
•Mietbeginn: Voraussichtlich ab Juli 2026
•Miete: 1.214 €/Monat + 214 €/Monat Mietnebenkosten + Küche 125€
•Kaution: 3 Monatskaltmieten
•Tiefgaragenstellplatz: 100 €/Monat

WUNSCHMIETER*IN
Gesucht wird ein langfristiger Bezug von einer oder zwei freundlichen, ordentlichen und zuverlässigen Personen (Ausschließlich Nichtraucher, keine Haustiere). Die Wohnung ist für Rollstuhlfahrer ideal geeignet.

Ausstattungsmerkmale

KücheEinbauküche
Bad1
Bad (Ausstattung)Dusche
BodenFliesen
Balkone0
Terrassen1
GartenJa
Fahrstuhl
BarrierefreiJa
KellerJa
Terrasse, Garten, Keller, Fahrstuhl, Duschbad, Einbauküche, Barrierefrei, Fliesen

Bemerkungen:
WOHNUNG & AUSSTATTUNG
•Großzügiger, moderner Grundriss
•Hochwertige Materialien und zeitgemäße Ausstattung
•Extra breiter Tiefgaragenstellplatz
•Aufzug vom Keller bis zur Wohnung
•Kellerraum vorhanden
•Garten inkl. Mähroboter

Energie

Heizungsart Fußbodenheizung
Energieträger/Befeuerung Luft-Wärme-Pumpe

Karte wird geladen...
88045 Friedrichshafen – Baden-Württemberg

Lage & Infrastruktur

LAGE
•Ruhige, zentrale Wohnlage
•Bodensee, Strandbad, Ärzte, Bäcker und Bahnhof fußläufig in ca. 10 Minuten erreichbar
•Sehr gute Infrastruktur und Verkehrsanbindung
Infrastruktur (im Umkreis von 5 km):
Apotheke, Lebensmittel-Discount, Allgemeinmediziner, Kindergarten, Öffentliche Verkehrsmittel

Sonstige Informationen

Heizungsart: Fußbodenheizung
Energieträger: Luft-/Wasserwärme
Energieausweis nicht vorhanden


Makleranfragen nicht erwünscht. Nach § 7 UWG sind unaufgeforderte Kontaktaufnahmen durch Makler ohne ausdrückliche Einwilligung des Empfängers verboten!

ohne-makler (OM) ist weder Anbieter noch Vermittler der Immobilie. OM betreibt eine Plattform für Immobilieneigentümer, die unter anderem die gleichzeitige Veröffentlichung einzelner Inserate auf mehreren Immobilienportalen ermöglicht. Die Inhalte dieser Inserate werden ausschließlich von Dritten verantwortet. Für die Richtigkeit, Vollständigkeit oder Rechtmäßigkeit der Angaben übernimmt OM keine Haftung. Hinweise auf mögliche Rechtsverstöße können jederzeit gemeldet werden und werden nach Prüfung umgehend bearbeitet.
Ansprechpartner/in: Privat von Elmar Goesmann
OM PropTech GmbH
Humboldtstraße 25a, 21509 Glinde

Weitere Angebote in Friedrichshafen