STREIF baut Euer perfektes Zuhause

68804 Altlußheim
2.062.210 € Kaufpreis
Wohnfläche
521 m²
Zimmer
33
Balkon (4)
Terrasse (3)
Barrierefrei

Kaufpreis

Kaufpreis 2.062.210 €

Wohnfläche, Grundstück & Bausubstanz

Wohnfläche521 m²
Grundstücksfläche640 m²
Zimmer33
Etagen2
Verfügbar ab Keine Angabe
ZustandErstbezug

Beschreibung der Immobilie

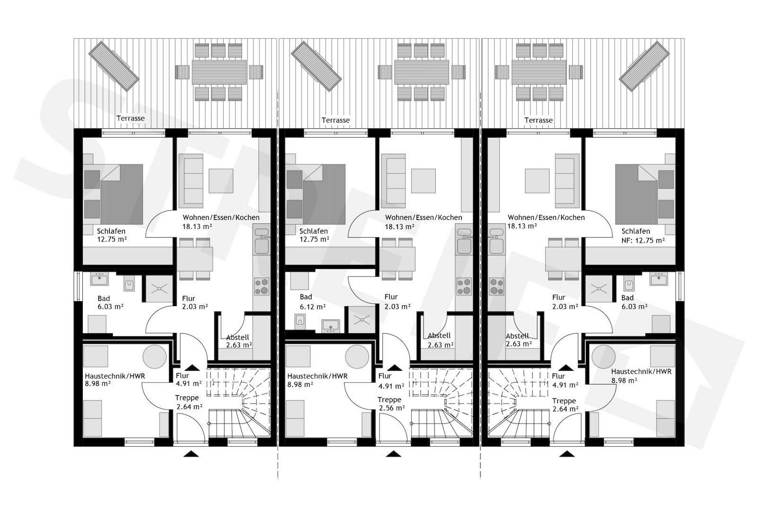
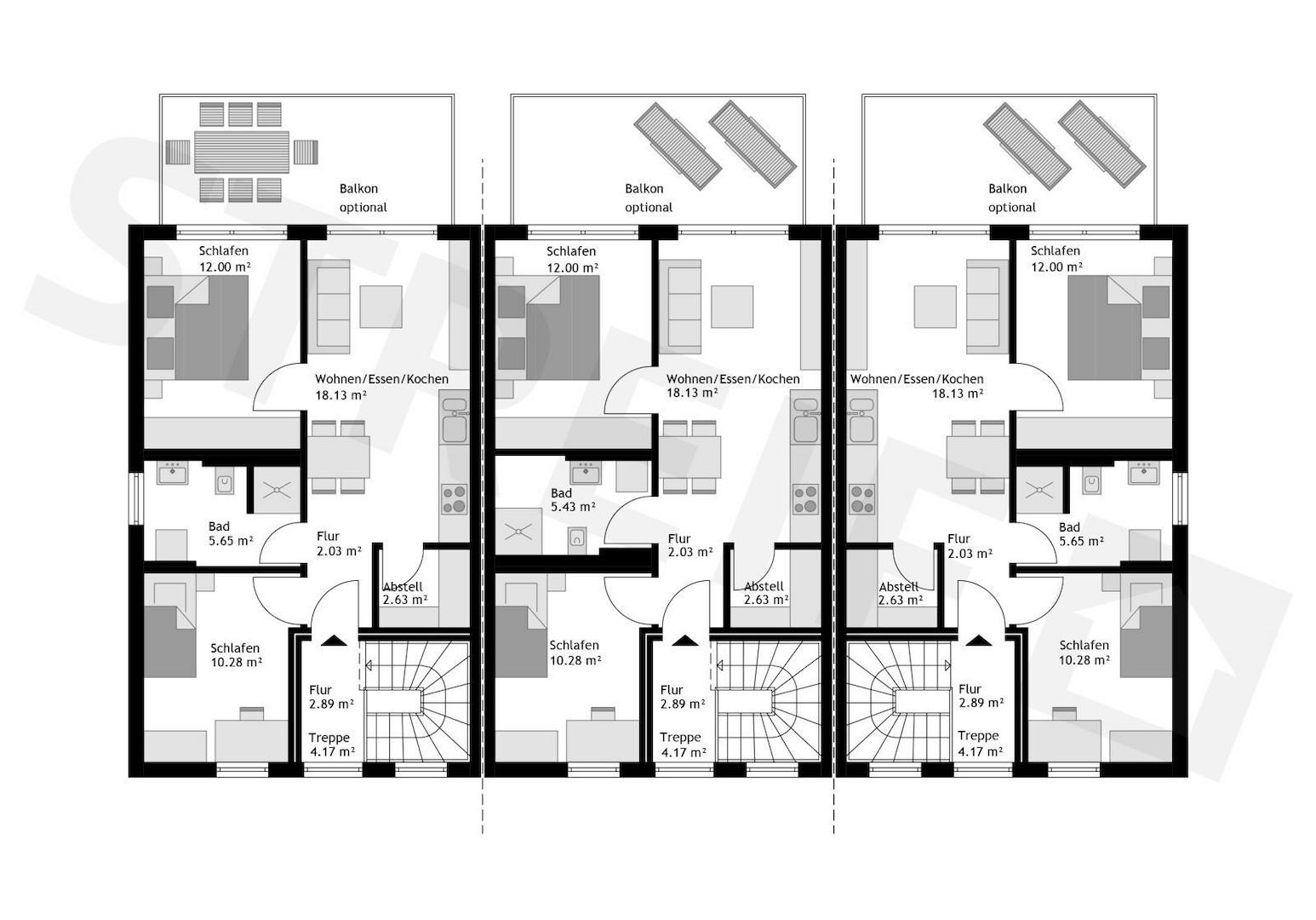
Das zweieinhalbgeschossige Mehrfamilienhaus mit neun Wohnungen überzeugt mit einer klassisch eleganten Architektur mit Satteldach und behaglichen Terrassen. Der Hausentwurf kann mit Stahlbalkonen an der Gartenseite aufgewertet werden.

Die Grundrissgestaltung bietet im Entwurf vier verschiedene Varianten an Wohnungszuschnitten. Die Wohnungen im Erdgeschoss können je nach Anforderung und Bauvorschriften barrierearm oder barrierefrei geplant werden. Die Grundrisse sind für Singles, Paare oder eine Kleinfamilie konzipiert. Die Wohn-/Ess- und Kochbereiche sind in einer offenen Raumplanung angelegt. Je nach Wohneinheit/-größe kann ein Zusatzzimmer, das als Kinder-/Arbeits- oder Hobbyraum nutzbar ist, eingeplant werden. Die Haustechnik und ein Hauswirtschaftsraum befinden sich jeweils im Erdgeschoss. In allen Wohnungen ist jeweils ein Abstellraum eingeplant.

Auf Wunsch ist ein Aufzug, Balkone oder ein zusätzliches Kellergeschoss planbar.

Ausstattungsmerkmale

Bad9
Balkone4
Terrassen3
BarrierefreiJa
STREIF-Energiespar-Häuser sind für die Effizienzhaus-Klasse 40* vorbereitet. (*In Abhängigkeit von Gebäudestandort, Gebäudeausrichtung, Fensterflächenanteile, Haustechnik usw. können zusätzliche oder abweichende Leistungen erforderlich werden, die im Zuge der Bauantragsbewertung/-erstellung bewertet werden.)

Mit dem Erfüllen dieser und weiterer Anforderungen ist Ihr Haus QNG förderfähig, sofern das Gebäude gemäß den Richtlinien zur Förderung platziert wird.

Die Außenwände im Passiv-Haus-Standard und eine sparsame Heiztechnik mit integrierter Wohnraumlüftung und Wärmerückgewinnung, garantieren einen geringen Energieverbrauch und ein fantastisches Raumklima, das insbesondere Allergiker aufatmen lässt.

STREIF Leistungen sind MEHR WERT - schon im Grundpreis enthalten!
- 16-monatige Festpreisgarantie
- Inkl. individuelle Grundrissgestaltung und Raumaufteilung
- Inkl. Fundamentplatte
- Inkl. effizientem Luft-Wasser-Wärmepumpensystem (als Außeneinheit) mit Fußbodenheizung
- Inkl. Haustür und 3-fach verglaste Fenster
- Inkl. Innentüren - Smartline
- Inkl. Innenwände und Decken, tapeziert, weiß gestrichen
- Inkl. Sanitärobjekte von Markenherstellern - Smartline
- Inkl. Lüftungsgerät je Wohneinheit
- Inkl. Massivholztreppe
- Inkl. Vorbereitung zur Installation einer Photovoltaik-Anlage
- Inkl. Elektroinstallation
- Inkl. Photovoltaikanlage 7,12 KWP
- Inkl. Batteriespeicher mit 7,70 kWh
- Inkl. Bodenbeläge - Smartline
- Inkl. Baubetreuung u.v.m.

Die hohe Wertigkeit und Langlebigkeit eines STREIF-Energiespar-Hauses wird durch zahlreiche Auszeichnungen, Qualitäts- und Gütesiegel unabhängiger Institute und Verbände dokumentiert.

Der Angebotspreis ist inklusive Grundstück und bezieht sich auf die Ausbaustufe schlüsselfertig.
Baunebenkosten und Grundstücksnebenkosten fallen zuzüglich an.

Der Verkauf des Grundstücks erfolgt über einen unserer Netzwerkpartner.

Bilder können evtl. Anbauteile, Carports, Balkone, Gauben usw. zeigen, die nicht im Angebotspreis enthalten sind. Änderungen und Irrtümer vorbehalten.

Energie

Energietyp KfW-40
Heizungsart Zentralheizung
Energieträger/Befeuerung Luft-Wärme-Pumpe

Karte wird geladen...
68804 Altlußheim

Lage & Infrastruktur

Altlußheim präsentiert sich als charmante Gemeinde im Rhein-Neckar-Kreis. Die Lage auf einem hochwassersicheren Sporn der Niederterrasse, umgeben von malerischen Rheinauen und dem angrenzenden Hardtwald, verleiht dem Ort eine hohe Wohn- und Freizeitqualität.

Historisch von Fischfang und Landwirtschaft geprägt, hat sich die Gemeinde zu einem modernen Wirtschaftsstandort mit gesunder lokaler Gewerbestruktur entwickelt. Die Nähe zu den Großstädten und eine gute Infrastruktur machen den Ort auch für Pendlerinnen und Pendler attraktiv. Die Versorgung mit Gütern des täglichen Bedarfs ist lokal gesichert.

Die Gemeinde bietet Kindertagesstätten für die Betreuung der jüngsten Bürgerinnen und Bürger. Eine Grundschule ist vor Ort, während weiterführende Schulen in den Nachbargemeinden und umliegenden Städten leicht zu erreichen sind. Um Betreuung in allen Lebensbereichen zu sichern, sind auch Pflegeeinrichtungen vorhanden, sowie weitere in der näheren Umgebung gut angebunden.

Der nahegelegene Blausee mit seinen Liegewiesen lädt zum Baden und Erholen ein. Die umliegenden Rheinauen und der Hardtwald bieten sich ideal für Radtouren, Wanderausflüge und Spaziergänge an. Auch das Vereinsleben ist sehr aktiv, vielfältig und bildet das soziale Rückgrat der Gemeinde. Das Bürgerhaus dient mit seinen Vereinsräumen und der Gemeindebücherei als zentraler Treffpunkt.

Die Zugehörigkeit zur Metropolregion Rhein-Neckar sichert eine gute Anbindung an die umliegenden Wirtschaftszentren wie Speyer, Mannheim und Heidelberg, ohne den dörflichen Charakter aufzugeben.

Sonstige Informationen

Zur Realisierung des Bauvorhabens und zur Bezugsfertigkeit des Gebäudes kommen zzgl. noch Baunebenkosten und Fertigstellungskosten.
Ansprechpartner/in: Achim Machmeier
STREIF Haus GmbH
Josef-Streif-Straße 1, 54595 Weinsheim

Weitere Angebote in Altlußheim