Großzügige Neubauwohnung an der Dahme mit 2 Bädern, Fußbodenheizung und Balkon

Wendenschloßstr. 172 12557 Berlin
Frei ab: 01.03.2026
1.692,73 € Kaltmiete
2.136,35 € Warmmiete inkl. NK
14,50 € Preis/m² ca.
Wohnfläche
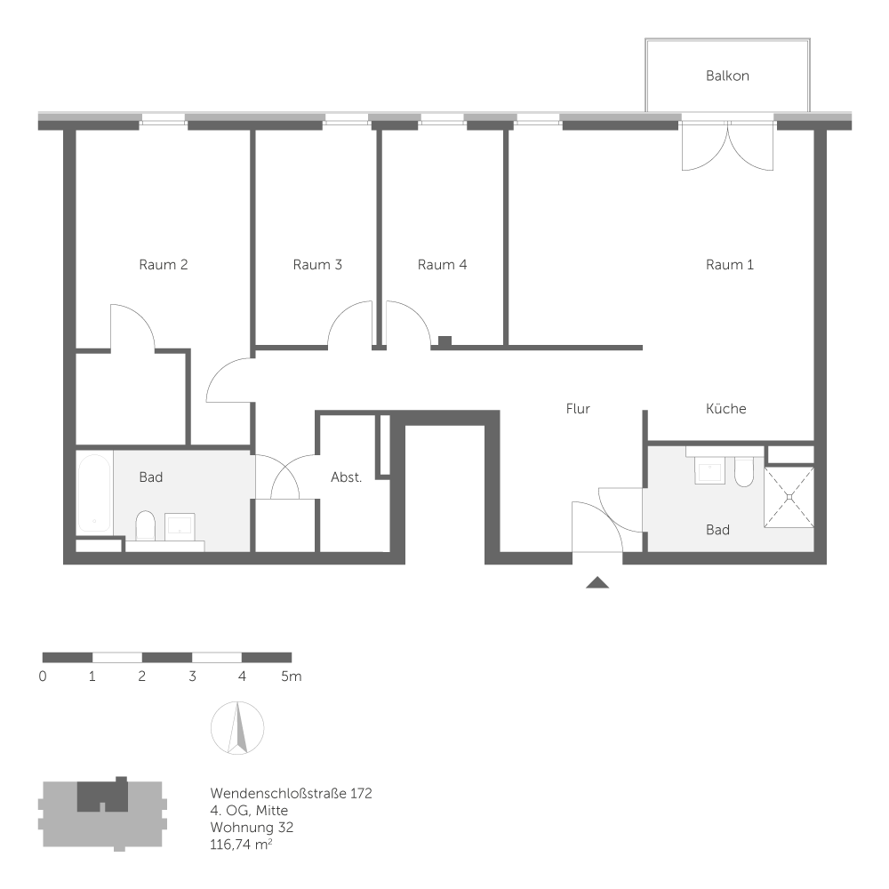
116,74 m²
Zimmer
4
Etage
4
Balkon
Fahrstuhl
Barrierefrei
Haustiere erlaubt

Mietpreis & Nebenkosten

Kaltmiete (netto)1.692,73 €
Nebenkosten 221,81 €
Heizkosten221,81 €
Warmmiete2.136,35 €
Kaution 5078,19 €

Wohnfläche, Grundstück & Bausubstanz

Wohnfläche116,74 m²
Zimmer4
Etagen6
Stockwerk4
Baujahr2025
Verfügbar ab 01.03.2026

Beschreibung der Immobilie

Willkommen in dieser wunderschönen und hellen Wohnung am Ufer der Dahme. Diese Neubauwohnung im Erstbezug lässt kaum Wünsche offen und präsentiert sich mit strapazierfähigen Vinylboden in Holzoptik, Fußbodenheizung, hochwertigen Fenstern und zwei modern gefliesten Bädern, eines mit Wanne und eines mit Dusche. Erfreuen Sie sich am Balkon, der Platz zum Entspannen bietet. Der offen gehaltene Wohn- und Küchenbereich lässt vielfältige Gestaltungsmöglichkeiten zu. Der Gebäudekomplex verfügt über separate Mieterkeller und zusätzliche Fahrradabstellräume. Sie sind an einer Besichtigung interessiert? Dann senden Sie uns bitte eine einfache Anfrage über den entsprechenden Button ("Anbieter kontaktieren" oder "Anfrage senden").

Dateien


Ausstattungsmerkmale

Balkone1
Fahrstuhl
BarrierefreiJa
HaustiereErlaubt
Fernheizung/Zentralheizung, Fern-/Zentralwarmwasserversorgung, Glasfaserleitung, Handtuchheizkörper, Fußbodenheizung, Barrierearme Wohnungsgestaltung

Energie

B
Energieeffizienzklasse B · 55.80 kWh/(m²*a)
EnergieausweistypBedarfsausweis
EnergieeffizienzklasseB
Endenergiebedarf55.80
Heizungsart Fernwärme
Energieträger/Befeuerung Block

Karte wird geladen...
Wendenschloßstr. 172
12557 Berlin

Lage & Infrastruktur

Das idyllisch gelegene Wohngebiet liegt zwischen Dahme und der Wendenschlossstraße im Südosten Berlins. Der umgebende Stadtraum weist eine vorstädtische Charakteristik auf. Das historische Zentrum von Köpenick liegt nördlich und ist fußläufig zu erreichen. Die Lage zeichnet sich durch eine ruhige Wohnatmosphäre und die unmittelbare Nähe zu Wasser (Dahme und Großer Müggelsee) und Natur aus, bietet aber dennoch eine gute Anbindung an die Berliner Innenstadt. In der näheren Umgebung gibt es Einkaufsmöglichkeiten und weitere Infrastruktur. Die Anbindung an den öffentlichen Nahverkehr ist gut. Mehrere Bus- und Tramlinien sind fußläufig erreichbar.

Sonstige Informationen

Hinweis zu Ihrem Schutz: Wir vermieten provisionsfrei gemäß § 2 WoVermG. Personen, die im Auftrag der Gewobag tätig sind, dürfen keine Provision von Ihnen verlangen.

Anbieter
Eigentümer/Vermieter oder Verwalter des jeweiligen Mietobjekts ist Gewobag Wohnungsbau-Aktien- gesellschaft Berlin. Die Gewobag MB Mieterberatungsgesellschaft mbH übernimmt den Vermietungsservice für diese Gesellschaft. Weitere Informationen finden Sie unter www.gewobag.de/datenschutz .
Ansprechpartner/in: Gewobag MB Mieterberat.ges. mbH (Vermietungs-Service)
Gewobag Wohnungsbau-Aktiengesellschaft Berlin
Alt-Moabit 101 A, 10559 Berlin

Weitere Angebote in Berlin