1- bis 2-Zimmer-Wohnung mit Terrasse in Kreuzkölln in der Nähe des Wassers

12059 Berlin, Berlin
260.000 € Kaufpreis
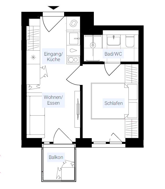
Wohnfläche
25,95 m²
Zimmer
2
Etage
4
Balkon
Fahrstuhl

Kaufpreis

Kaufpreis 260.000 €
Kaufpreis pro m²10019,27 €
MaklerprovisionProvisionsfrei

Wohnfläche, Grundstück & Bausubstanz

Wohnfläche25,95 m²
Nutzfläche26,95 m²
Zimmer2
Stockwerk4
Baujahr2027
Verfügbar ab Keine Angabe
ZustandErstbezug

Beschreibung der Immobilie

Der Wohngarten entsteht in einem der vielversprechendsten Viertel Berlins. Direkt am Kanal am Kiehlufer und nur wenige Schritte vom Treptower Park entfernt verbindet dieses Neubauprojekt nachhaltige Architektur, modernen Komfort und eine lebendige Kiezatmosphäre – und schafft ein Wohnumfeld, in dem Gemeinschaft, Natur und urbanes Leben aufeinandertreffen.

Mit dem exklusiven Home Designer-Tool können Käufer jedes Detail individuell gestalten – von Bodenbelägen und Wandoberflächen bis hin zu Küchenfronten und Arbeitsplatten – und so ein hochwertiges, maßgeschneidertes Zuhause schaffen. Die Wohnanlage umfasst 24 helle Wohnungen, die von smarten Studios bis zu großzügigen Vierzimmerwohnungen reichen. Jede Einheit verfügt über flexible Grundrisse, bodentiefe Fenster und private Außenbereiche wie Balkone oder Terrassen – mit grünen Ausblicken und reichlich Tageslicht.

Das Projekt zeichnet sich durch seine Holz-Hybrid-Bauweise, energieeffiziente Systeme wie Photovoltaikanlagen und Luftwärmepumpen sowie einen liebevoll gestalteten Gemeinschaftsgarten mit Pergola und Glaspavillon aus. Eine Tiefgarage bietet Stellplätze für Autos, Fahrräder und E-Mobilität.

In einer ruhigen Seitenstraße gelegen, bietet der Wohngarten einen entspannten Rückzugsort, während er zugleich von einer lebendigen urbanen Umgebung umgeben ist. Das Viertel vereint den Charme eines traditionellen Berliner Kiezes mit der Dynamik eines wachsenden Start-up-Hubs. Trendige Cafés, Restaurants, Bioläden, Schulen und kulturelle Einrichtungen sind bequem zu Fuß erreichbar, und die Anbindung an den öffentlichen Nahverkehr (S-Bahn, U-Bahn und Bus) sorgt für schnelle Wege ins Stadtzentrum.

Ob als stilvolles Zuhause oder als sichere Kapitalanlage – der Wohngarten bietet eine seltene Gelegenheit, in eines der attraktivsten Wohnprojekte Berlins zu investieren.

Unser Team von First Citiz Berlin steht Ihnen gerne für weitere Informationen zu diesem Projekt oder zur Vereinbarung eines kostenlosen Beratungstermins zur Verfügung.

Ausstattungsmerkmale

Balkone1
Fahrstuhl
✅ Top-Lage direkt in Alt-Treptow – zwischen Spree, Kanal und Treptower Park
✅ Nachhaltiges Wohnkonzept in moderner Holz-Hybrid-Bauweise – gesund & energieeffizient
✅ Exklusive Gestaltungsmöglichkeiten & flexible Grundrisse für ein Zuhause nach Maß
✅ Hochwertige Architektur mit zeitloser Fassadengestaltung und bodentiefen Fenstern
✅ Alle Wohnungen mit Balkon oder Terrasse und Blick ins Grüne
✅ Ruhige Wohnlage mit lebendiger Kiezatmosphäre, Cafés, Schulen & Kulturangebot fußläufig erreichbar
✅ Sehr gute Verkehrsanbindung: S-Bahn, U-Bahn & Bus nur wenige Gehminuten entfernt
✅ Tiefgarage mit Stellplätzen für Autos, Fahrräder & E-Mobility (optional erwerbbar)

Energie

A+
Energieeffizienzklasse A+ · 15.00 kWh/(m²*a)
EnergieausweistypBedarfsausweis
Gültig bis2034-11-27
Baujahr (laut Energieausweis)2025
EnergieeffizienzklasseA+
Endenergiebedarf15.00
Heizungsart Fußbodenheizung
Wesentlicher EnergieträgerElectricity

Karte wird geladen...
12059 Berlin – Berlin

Lage & Infrastruktur

Neukölln ist ein sehr bunter Bezirk, in dem Multi-Kulti und ein künstlerischer Lebensstil gepflegt werden. Typisch für den Bezirk ist die Karl-Marx-Straße, die vor allem von kleinen Einzelhandelsgeschäften geprägt ist. Seit einigen Jahren sind zudem die Neukölln-Arkaden mit diversen Einkaufsmöglichkeiten und einem Kino hier vertreten. In Neukölln herrscht eine sehr kreative Stimmung vor, weswegen sich hier verschiedene Start-Ups angesiedelt haben. Die Hasenheide ist ein großer Park, in dem verschiedene Tiere bewundert und Picknicks veranstaltet werden können und in dem regelmäßig ein Rummelplatz gastiert.

Sonstige Informationen

Alle Angaben zu dieser Immobilie und diesem Immobilienprojekt beruhen auf Angaben der Verkäufer und / oder ihrer Vertreter. Wir übernehmen keine Haftung für die Richtigkeit oder Vollständigkeit. Irrtum und Zwischenverkauf sind zu erwarten. Alle Visualisierungen sind unverbindlich. Dieses Angebot ist vertraulich und ausschließlich für den Empfänger bestimmt. Jede Weitergabe muss von der First Citiz GmbH genehmigt werden. Dieses Angebot umfasst alle Einheiten desselben Immobilienprojekts, für die die First Citiz GmbH alle relevanten Informationen zur Verfügung stellt, einschließlich Preislisten, Grundrisse und Liste der zum Verkauf stehenden Einheiten. Der Empfänger dieses Angebots ist verpflichtet, die First Citiz GmbH über den Abschluss eines Kaufvertrags für diese Immobilie oder eine andere Immobilie im selben Immobilienprojekt zu informieren.
Ansprechpartner/in: First Citiz Berlin Team
First Citiz GmbH
Pappelallee 11, 10437 Berlin

Weitere Angebote in Berlin