Wohnen und Leben an Mellensee

15838 Am Mellensee
499.900 € Kaufpreis
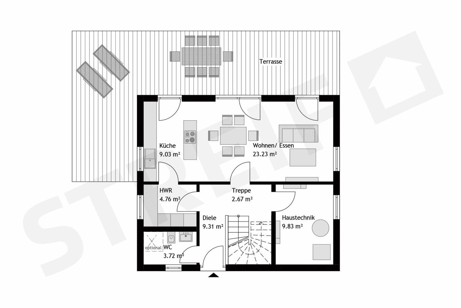
Wohnfläche
118 m²
Zimmer
4
Offene Küche
Terrasse

Kaufpreis

Kaufpreis 499.900 €
MaklerprovisionIst im Gesamtpreis beinhaltet.

Wohnfläche, Grundstück & Bausubstanz

Wohnfläche118 m²
Nutzfläche118 m²
Grundstücksfläche769 m²
Zimmer4
Etagen2
Verfügbar ab Keine Angabe

Beschreibung der Immobilie

Willkommen in Ihrem zukünftigen Traumhaus in Am Mellensee, einem modernen Einfamilienhaus, das ganz nach Ihren individuellen Wünschen projektiert wurde. Mit einer großzügigen Wohnfläche von 118 m² auf zwei Etagen bietet dieses Haus mit vier Zimmern ausreichend Platz für die ganze Familie. Drei komfortable Schlafzimmer sowie ein elegantes Badezimmer mit Dusche, Badewanne und Fenster schaffen eine Wohlfühloase für jeden Tag. Zusätzlich steht Ihnen ein praktisches Gäste-WC zur Verfügung. Das durchdachte Raumkonzept und die hochwertige Bauweise machen dieses Einfamilienhaus zu einem perfekten Rückzugsort, der Funktionalität und modernes Wohnen harmonisch vereint. Vor dem Bau erfolgt eine ausführliche Beratung, in der Ihre Vorstellungen präzise erfasst werden, um eine maßgeschneiderte Planung zu gewährleisten. Ob Walmdach, Flachdach oder klassisches Satteldach, mit oder ohne Keller - Ihr Haus wird exakt nach Ihren Wünschen realisiert und schlüsselfertig oder in der gewünschten Ausbaustufe übergeben.

Ausstattungsmerkmale

KücheOffene Küche
Bad1
Bad (Ausstattung)Dusche, Wanne, Fenster
Terrassen1
Das Haus entspricht dem KfW40-Energiestandard und bietet somit eine hohe Energieeffizienz und nachhaltigen Wohnkomfort. Die gehobene Ausstattung beinhaltet eine hochwertige Sanitär-Grundausstattung, die im Rahmen der Ausbaustufe FastFertigPlus enthalten ist. Technische Gewerke wie Heizung, Lüftung, Sanitär und Estrich werden von erfahrenen Fachbetrieben ausgeführt, sodass Sie sich auf Qualität und Langlebigkeit verlassen können. Die sorgfältige Auswahl der Materialien und die präzise Umsetzung garantieren ein behagliches und modernes Wohnambiente, das Ihren Ansprüchen gerecht wird.

Energie

Energietyp KfW-40

Karte wird geladen...
15838 Am Mellensee

Lage & Infrastruktur

Das Grundstück mit einer Größe von 769 m² befindet sich in der attraktiven Gemeinde Am Mellensee, die eine perfekte Kombination aus ruhigem Wohnen und guter Infrastruktur bietet. In unmittelbarer Nähe finden Sie Einkaufsmöglichkeiten, Schulen und Kindergärten, die den Alltag erleichtern. Die schöne Umgebung lädt zu vielfältigen Freizeitaktivitäten ein, sei es in der Natur oder in nahegelegenen Sport- und Erholungsanlagen. Die verkehrsgünstige Lage ermöglicht zudem eine schnelle Anbindung an umliegende Städte und Ballungszentren, was Am Mellensee besonders attraktiv für Familien und Berufspendler macht.

Sonstige Informationen

Dieses projektierte Einfamilienhaus wird in der Ausbaustufe 3 - FastFertigPlus errichtet. Diese Ausbaustufe ist ideal für Bauherren, die eigenständig mitarbeiten möchten, dabei aber die haustechnischen Gewerke wie Heizung, Lüftung, Sanitär und Estrich in professionelle Hände geben möchten. Die FastFertigPlus-Ausbaustufe umfasst eine hochwertige Sanitär-Grundausstattung und bietet so eine ausgewogene Mischung aus Eigenleistung und fachmännischer Ausführung. Sie erhalten ein hochwertiges Fertighaus nach KfW40-Standard, das innerhalb weniger Monate "FastFertigPlus" auf Ihrem Grundstück errichtet wird. Unsere umfassende Beratung und Planung garantiert, dass Ihr Traumhaus genau Ihren Vorstellungen entspricht und Sie langfristig zufriedenstellt.
Ansprechpartner/in: Herr Stefan Weigelt
06551 12 00
STREIF Haus GmbH
Josef-Streif-Straße 1, 54595 Weinsheim
06551 12 00

Weitere Angebote in Am Mellensee