Moderne 1-Zimmer-Wohnung mit Balkon & Tageslichtbad - fußläufig zur S-Bahn Hennigsdorf

Neuendorfstraße 14 16761 Hennigsdorf, Brandenburg
Frei ab: sofort
555 € Kaltmiete
14,05 € Preis/m² ca.
Wohnfläche
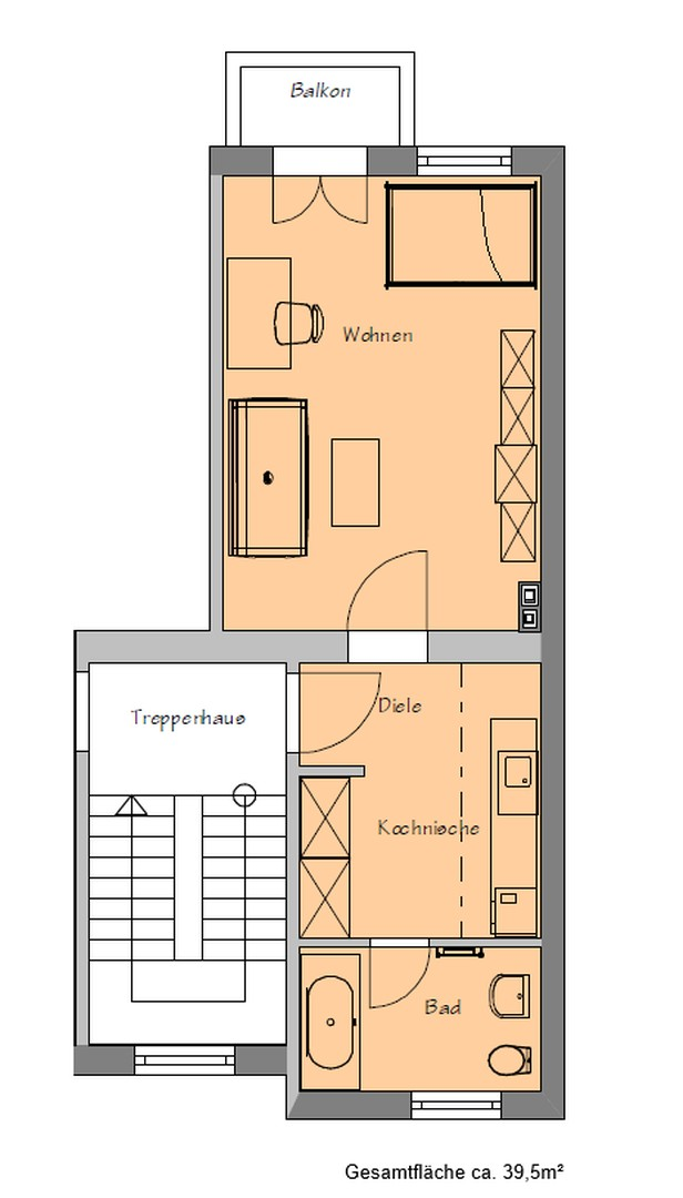
39,5 m²
Zimmer
1
Etage
1
Einbauküche
Balkon
Terrasse

Mietpreis & Nebenkosten

Kaltmiete (netto)555 €
Nebenkosten 65 €
Heizkosten65 €
Kaution 1.665 €

Wohnfläche, Grundstück & Bausubstanz

Wohnfläche39,5 m²
Zimmer1
Etagen3
Stockwerk1
Baujahr1910
Verfügbar ab sofort
ZustandGepflegt

Beschreibung der Immobilie

Diese modernisierte und bezugsfreie 1-Zimmer-Wohnung mit ca. 40 m² Wohnfläche befindet sich im 1. Obergeschoss eines um 1910 erbauten Mehrfamilienhauses.

Die Wohnung ist mit einem hellen Laminatboden in moderner Landhausdielen-Optik ausgestattet und überzeugt durch seine freundliche, lichtdurchflutete Atmosphäre. Vom Wohnzimmer gelangt man auf den Balkon, der zusätzlichen Wohnkomfort bietet.

Der Küchenbereich fügt sich harmonisch in das Gesamtbild der Wohnung ein und verfügt durch geschickt platzierte Oberlichter ebenfalls über Tageslicht.

Zahlreiche Parkmöglichkeiten stehen direkt vor und neben dem Gebäude zur Verfügung.

Die Wohnung liegt in zentraler Lage von Hennigsdorf, gegenüber dem „Blauen Wunder“. Die S-Bahn-Station Hennigsdorf (S25) ist in nur ca. 8 Gehminuten erreichbar und bietet eine schnelle Anbindung an die Berliner Innenstadt.

Ausstattungsmerkmale

KücheEinbauküche
Bad1
Bad (Ausstattung)Dusche
BodenFliesen, Laminat
Balkone1
Terrassen0
Balkon, Duschbad, Einbauküche, Laminat, Fliesen

Bemerkungen:
- Heller Laminatboden in moderner Landhausdielen-Optik
- Balkon mit Zugang vom Wohnbereich
- Gegensprechanlage
- Tageslichtbad mit natürlicher Belichtung

Energie

D
Energieeffizienzklasse D · 119 kWh/(m²*a)
EnergieausweistypVerbrauch
EnergieeffizienzklasseD
Energieverbrauchkennwert119 kWh/(m²*a)
Heizungsart Zentralheizung
Energieträger/Befeuerung Fernwärme

Karte wird geladen...
Neuendorfstraße 14
16761 Hennigsdorf – Brandenburg

Lage & Infrastruktur

Die Wohnung befindet sich in Hennigsdorf, nordwestlich von Berlin mit rund 26.000 Einwohnern. Die Kombination aus naturnaher Umgebung an der Havel und der schnellen Anbindung an die Berliner Innenstadt macht den Standort besonders beliebt.

Das Stadtzentrum mit Einkaufsmöglichkeiten, Gastronomie, Ärzten sowie Schulen und Kitas ist fußläufig erreichbar. Die S-Bahn-Station Hennigsdorf (S25) liegt nur ca. 8 Gehminuten entfernt und bietet eine direkte Verbindung zur Berliner Friedrichstraße in etwa 30 Minuten.

Die Wohnung liegt in ruhiger Lage gegenüber dem „Blauen Wunder“ und überzeugt durch ihre Nähe zur Havel sowie vielfältige Freizeit- und Erholungsmöglichkeiten in der Umgebung.
Infrastruktur (im Umkreis von 5 km):
Apotheke, Lebensmittel-Discount, Allgemeinmediziner, Kindergarten, Grundschule, Hauptschule, Realschule, Gymnasium, Gesamtschule, Öffentliche Verkehrsmittel

Sonstige Informationen

Heizungsart: Zentralheizung
Energieträger: Fernwärme

Eine Besichtigung ist kurzfristig möglich

Zur Bewerbung werden folgende Unterlagen benötigt:
- ausgefüllte Selbstauskunft
- letzte drei Gehaltsnachweise
- bei Studenten: Elternbürgschaft
- aktuelle Schufaauskunft
- Mietschuldenfreiheitsbescheinigung des aktuellen Vermieters

Bei vorhandenen Negativeinträgen in der Schufa, bitten wir von einer Kontaktaufnahme abzusehen.

Kostenübersicht:
555 EUR Kaltmiete
15 EUR SAT-Gebühr
130 EUR Betriebs- und Heizkostenvorauszahlung

700 EUR Gesamtmiete

Alle Angaben ohne Gewähr. Für die Richtigkeit und Vollständigkeit wird keine Haftung übernommen.

Makleranfragen nicht erwünscht. Nach § 7 UWG sind unaufgeforderte Kontaktaufnahmen durch Makler ohne ausdrückliche Einwilligung des Empfängers verboten!

ohne-makler (OM) ist weder Anbieter noch Vermittler der Immobilie. OM betreibt eine Plattform für Immobilieneigentümer, die unter anderem die gleichzeitige Veröffentlichung einzelner Inserate auf mehreren Immobilienportalen ermöglicht. Die Inhalte dieser Inserate werden ausschließlich von Dritten verantwortet. Für die Richtigkeit, Vollständigkeit oder Rechtmäßigkeit der Angaben übernimmt OM keine Haftung. Hinweise auf mögliche Rechtsverstöße können jederzeit gemeldet werden und werden nach Prüfung umgehend bearbeitet.
Ansprechpartner/in: Angebot von Milavio Immobilien GmbH
OM PropTech GmbH
Humboldtstraße 25a, 21509 Glinde

Weitere Angebote in Hennigsdorf