*bezugsfrei* 123 m² Wohnfläche auf zwei Etagen I 985 m² Grundstück I Garage I ausgebauter Keller

04207 Leipzig, Sachsen
Frei ab: sofort
449.000 € Kaufpreis
Wohnfläche
123 m²
Zimmer
5
Einbauküche
Balkon
Garten
Keller

Kaufpreis

Kaufpreis 449.000 €
Maklerprovision3,57 % inkl. 19 % Umsatzsteuer

Wohnfläche, Grundstück & Bausubstanz

Wohnfläche123 m²
Nutzfläche114 m²
Grundstücksfläche985 m²
Zimmer5
Etagen3
Baujahr1986
Verfügbar ab sofort
ZustandTeil Vollrenovierungsbed

Beschreibung der Immobilie

Dieses freistehende Einfamilienhaus überzeugt mit viel Platz, einer soliden Grundstruktur und zahlreichen Möglichkeiten zur individuellen Gestaltung. Auf einem großzügigen Grundstück von 985 m² (Bodenrichtwert 320 € / m²) stehen Ihnen ca. 123 m² Wohnfläche sowie ca. 114 m² Nutzfläche zur Verfügung.

Erdgeschoss:
Über wenige Stufen gelangt man in das Haus. Im Eingangsbereich befindet sich zunächst ein praktischer Windfang. Direkt angrenzend liegt ein Gäste-WC mit Waschbecken und Toilette. Von hier aus öffnet sich der geräumige Flur, der ausreichend Platz für Garderobe, Schuhe und Jacken bietet. Ebenfalls auf dieser Ebene befinden sich ein erstes Zimmer, das sich ideal als Kinder-, Gäste- oder Arbeitszimmer nutzen lässt, sowie das großzügige Wohnzimmer mit Zugang zur großen Terrasse und weiter in den Garten. Die separate Küche bietet neben der vorhandenen Einbauküche, welche im Kaufpreis enthalten ist, auch ausreichend Platz für einen Esstisch.

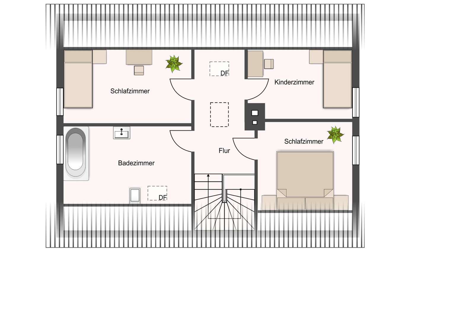
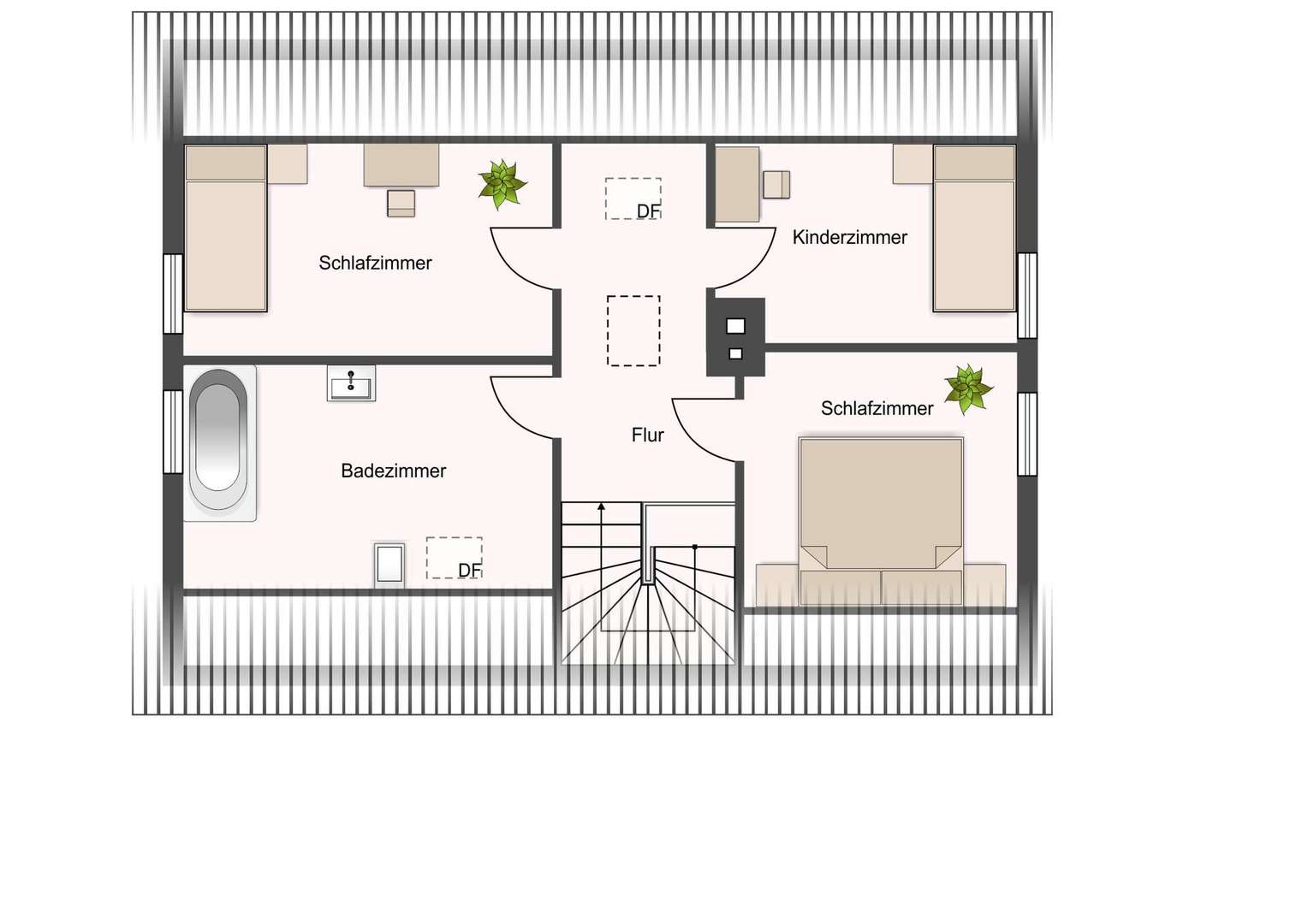
Obergeschoss:
Im Obergeschoss stehen Ihnen drei weitere gut geschnittene Zimmer zur Verfügung, die flexibel als Schlaf-, Kinder- oder Arbeitszimmer genutzt werden können. Auch auf dieser Etage ist der Flur großzügig gestaltet und ermöglicht über eine Bodenluke den Zugang zum Dachboden, der weitere Abstellmöglichkeiten bietet. Das Badezimmer ist aktuell mit Badewanne, Waschbecken und WC ausgestattet. In einem angrenzenden Zimmer befinden sich bereits Wasseranschlüsse, sodass bei Bedarf eine Vergrößerung des Badezimmers denkbar wäre (siehe Grundriss Beispiel).

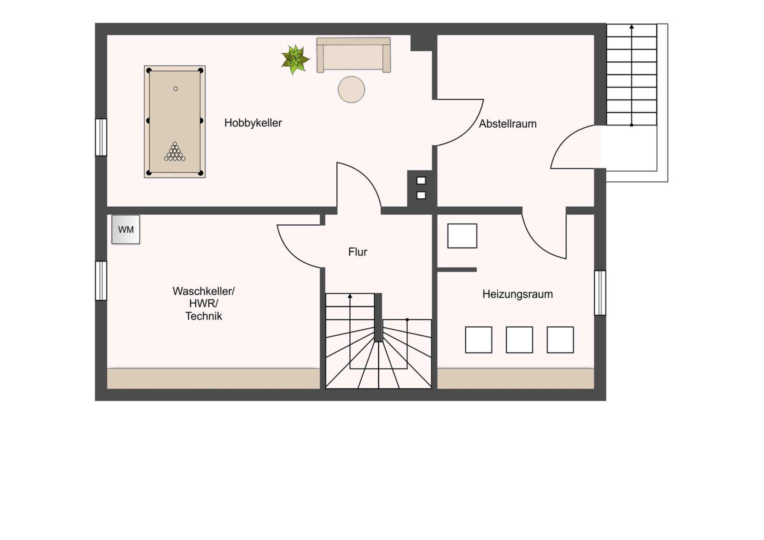
Keller:
Der vollständig ausgebaute Keller bietet weit mehr als klassische Abstellfläche. Ein Raum eignet sich ideal als Vorrats-, Hauswirtschafts- oder Waschraum und verfügt über entsprechende Wasser- und Stromanschlüsse. Hinzu kommt ein großer Hobbyraum, der sich beispielsweise als Fitness-, Freizeit- oder Partyraum nutzen lässt. Ein weiterer Durchgangsraum bietet zusätzliche Abstellfläche und führt zum Heizungskeller. Hier befindet sich die Ölheizung samt Anlagentechnik. Besonders praktisch ist zudem der direkte Zugang vom Keller in die Garage.

Garage:
Die Garage ist außergewöhnlich großzügig und bietet Platz für mehrere Fahrzeuge. Darüber hinaus eignet sie sich auch ideal als Lagerfläche oder Werkstatt. Sie ist sowohl vom Garten als auch von der Vorderseite des Grundstücks zugänglich. Vor der Garage und im Einfahrtsbereich stehen zusätzlich weitere Stellmöglichkeiten zur Verfügung.

Garten:
Der weitläufige Garten bietet viel Platz zur freien Entfaltung und zahlreiche Gestaltungsmöglichkeiten. Von der Terrasse aus gelangt man direkt in den Außenbereich. Vorhanden sind unter anderem ein kleiner Zierteich, ein strombetriebener Brunnen sowie gewachsener Baumbestand. Durch die Westausrichtung ist das Grundstück grundsätzlich sehr sonnig. Die vorhandenen Bäume schaffen eine grüne, eingewachsene Atmosphäre, können bei Bedarf jedoch auch reduziert werden, um die Sonneneinstrahlung noch besser zu nutzen. Insgesamt bietet der Garten viel Potenzial zur individuellen Neugestaltung.

Außenbereich / Einfahrt:
Auch der vordere Bereich des Grundstücks ist großzügig geschnitten. Neben der großen Einfahrt mit weiteren Stellflächen befindet sich hier ein schöner Magnolienbaum, der dem Eingangsbereich einen besonderen Charme verleiht. Darüber hinaus bietet auch dieser Bereich zusätzliche Möglichkeiten zur individuellen Gestaltung, beispielsweise mit einer Sitzgelegenheit oder dekorativen Pflanzflächen.

Hinweis:
Sowohl das Haus als auch die Garage und die Außenanlagen sind renovierungsbedürftig. Die Immobilie bietet damit beste Voraussetzungen für Käufer, die ein Haus mit viel Platz, Potenzial und Entwicklungsmöglichkeiten suchen.

Ausstattungsmerkmale

KücheEinbauküche
Bad1
Bad (Ausstattung)Dusche, Wanne, Fenster
BodenFliesen, Laminat, Dielen
Balkone1
GartenJa
KellerJa
* 5 Zimmer
* separate Küche mit Einbauküche
* Gäste-WC
* Tageslichtbad mit Wanne
* große Terrasse mit West-Ausrichtung
* grüner Garten mit viel Potenzial
* Brunnen im Garten
* Garage mit Platz für mehr als zwei PKWs
* voll ausgebauter Keller

Energie

F
Energieeffizienzklasse F · 184 kWh/(m²*a)
EnergieausweistypBedarfsausweis
Ausstellungsdatum18. 03. 2026
Gültig bis17.03.2036
EnergieeffizienzklasseF
Endenergiebedarf184
Wesentlicher EnergieträgerÖl
Energieträger/Befeuerung Öl

Karte wird geladen...
04207 Leipzig – Sachsen

Lage & Infrastruktur

Die Immobilie befindet sich im Leipziger Westen im Bereich Grünau-Siedlung, innerhalb des Stadtteilverbunds Grünau und Lausen. Das Umfeld ist überwiegend wohngeprägt und verbindet eine ruhige Nachbarschaft mit einer guten Alltagsinfrastruktur sowie einer schnellen Anbindung an den öffentlichen Nahverkehr. Charakteristisch für die Lage sind kurze Wege zu Einkaufsmöglichkeiten, Schulen und Haltestellen sowie die Nähe zu den großen Grün- und Erholungsbereichen im Leipziger Westen.

Verkehrsanbindung / ÖPNV:
Die nächstgelegene Haltestelle ist Ratzelbogen in ca. 400 m Entfernung. Dort verkehren die Straßenbahnlinien 1, 2, 3 und 19 sowie die Buslinien 61, 66 und 161. Der nächstgelegene S-Bahn-Haltepunkt ist Leipzig Miltitzer Allee in ca. 880 m Entfernung. Dort hält die S1. Die Leipziger Innenstadt liegt bei rund 7,5 km Luftlinie.

Einkaufen und Nahversorgung:
Der nächste Supermarkt ist ein PENNY in der Kiewer Straße 1, ca. 330 m entfernt. Ebenfalls in kurzer Distanz befindet sich die Handwerksbäckerei Kleinert mit ca. 430 m Entfernung. Eine Apotheke ist mit der Ahorn-Apotheke in ca. 820 m Entfernung ebenfalls gut erreichbar.

Bildung / Kinderbetreuung:
Die nächstgelegene Grundschule ist die 100. Grundschule mit ca. 860 m Entfernung. Im Bereich Kinderbetreuung finden Sie die Kindertagesstätte Knirpsenland am Königstein mit ca. 1,3 km Entfernung. Im Bereich weiterführender Schulen ist die Schule Ratzelstraße eine naheliegende Option im Umfeld mit ca. 2,1 km Entfernung.

Freizeit / Erholung:
Ein wesentlicher Standortvorteil ist die Nähe zum Kulkwitzer See, der von der Stadt Leipzig ausdrücklich als beliebtes Naherholungsziel in unmittelbarer Nähe zu Grünau beschrieben wird. Der See bietet Sandstrände, Wassersport- und Tauchmöglichkeiten sowie weitläufige Wege für Spaziergänge, Radtouren und Freizeit im Grünen. Zusätzlich profitiert der Stadtteil insgesamt von seinem vergleichsweise grünen Charakter und den wohnungsnahen Freiflächen im Leipziger Westen.

Kurzfazit:
Die Lage überzeugt durch ein ruhiges, gewachsenes Wohnumfeld im Leipziger Westen mit guter Anbindung und kurzen Wegen im Alltag. Haltestellen, Einkaufsmöglichkeiten, Grundschule und Kinderbetreuung befinden sich in gut erreichbarer Distanz, während der Kulkwitzer See zusätzlichen Freizeit- und Erholungswert bietet.

Sonstige Informationen

Hinweis zur Richtigkeit und Vollständigkeit der Angaben:

Der Makler weist darauf hin, dass die von ihm weitergegebenen Objektinformationen vom Verkäufer bzw. von einem vom Verkäufer beauftragten Dritten stammen und von ihm, dem Makler, auf ihre Richtigkeit nicht überprüft worden sind. Es ist Sache des Kunden, diese Angaben auf ihre Richtigkeit hin zu überprüfen. Der Makler, der diese Informationen nur weitergibt, übernimmt für die Richtigkeit keinerlei Haftung.
Ansprechpartner/in: Josie Celina Voigt
0341 25327305
Willuhn Immobilien e. K.
Scherlstraße 12, 04103 Leipzig
0341 25327305

Weitere Angebote in Leipzig