Ideal für Familien: Wohnen zwischen Stadt & Natur - Nürnberg‑Zerzabelshof

90480 Nürnberg
1.149.997 € Kaufpreis
Wohnfläche
163 m²
Zimmer
6
Offene Küche

Kaufpreis

Kaufpreis 1.149.997 €

Wohnfläche, Grundstück & Bausubstanz

Wohnfläche163 m²
Grundstücksfläche540 m²
Zimmer6
Etagen2
Baujahr2027
Verfügbar ab Keine Angabe
ZustandProjektiert

Beschreibung der Immobilie

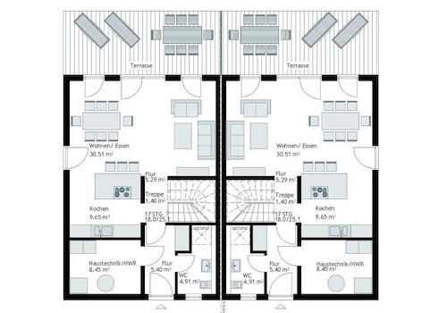
Ihr neues Familienkapitel auf 163 m²

Vergessen Sie Kompromisse - hier erwartet Sie ein Zuhause, das mit Ihrer Familie mitwächst. Modern, lichtdurchflutet und durchdacht bis ins kleinste Detail.

Das Herzstück Ihres Alltags: Auf großzügigen 41 m² verschmelzen Kochen, Essen und Wohnen zu einem lichterfüllten Zentrum, in dem alle zusammenkommen.

Rückzugsorte mit Wohlfühlgarantie: Im Obergeschoss punktet die Planung mit zwei großen Kinderzimmern für kleine Entdecker sowie einem Elternbereich inklusive eigener Ankleide und Familienbad.

Flexibilität für Ihre Pläne: Der Zusatzraum im Erdgeschoss ist Ihr Joker - ob als ruhiges Homeoffice oder Gästezimmer.

Zukunftssicher und komfortabel: Dank eines optionalen Duschbads im Erdgeschoss ist sogar barrierefreies Wohnen auf einer einzigen Etage möglich.

Ein Grundriss, der Ihnen heute den Freiraum bietet, den Sie brauchen, und auch morgen noch alle Möglichkeiten offen lässt.

Einzigartige Services, umfangreiche Inklusiv-Leistungen und komplette Gestaltungsfreiheit; eine Kombination, die Sie nur bei STREIF Haus finden.

Sie möchten größer oder kleiner bauen? Oder in einer anderen Dachform? Sehr gerne! Rufen Sie mich an und wir besprechen die Anforderungen an Ihr individuelles STREIF Haus.

Ausstattungsmerkmale

KücheOffene Küche
Bad (Ausstattung)Dusche, Wanne, Fenster
STREIF-Häuser sind Energiesparhäuser mit Außenwänden im Passivhausstandard und einer effizienten Heiztechnik, die eine integrierte Wohnraumlüftung und Wärmerückgewinnung bietet. Dies gewährleistet nicht nur einen geringen Energieverbrauch, sondern auch ein fantastisches Raumklima.

Die Leistungen von STREIF sind umfangreich und bereits im Grundpreis enthalten:
- 20-monatige Festpreisgarantie
- Energieeffizienzhaus KfW 40 EE im Standard
- Individuelle Grundrissgestaltung und Raumaufteilung inklusive
- Fundamentplatte inklusive
- Luft-Luft-Wärmepumpe mit integrierter Lüftungsanlage und Wärmerückgewinnung
- Haustür von KERA und Fenster von Porta/Kömmerling
- Massivholz-Geschosstreppe aus eigener Produktion
- uvm.

Energie

Energietyp KfW-40
Heizungsart Zentralheizung
Energieträger/Befeuerung Luft-Wärme-Pumpe

Karte wird geladen...
90480 Nürnberg

Lage & Infrastruktur

Zerzabelshof zählt zu den beliebtesten Wohnlagen für Familien in Nürnberg. Der Stadtteil vereint eine grüne, kinderfreundliche Umgebung mit kurzen Wegen in die Innenstadt. Der Lorenzer Reichswald, der Tiergarten, der Valznerweiher sowie der Dutzendteich bieten vielfältige Freizeit‑ und Erholungsmöglichkeiten direkt vor der Haustür. Gleichzeitig sorgen Kindergärten, Schulen, Einkaufsmöglichkeiten und eine sehr gute ÖPNV‑Anbindung für einen entspannten und alltagstauglichen Familienalltag. Die überwiegend niedrige Bebauung und der hohe Anteil an Ein‑ und Zweifamilienhäusern schaffen ein sicheres, nachbarschaftliches Wohnumfeld.

Hinweis:
Der Weg zu Ihrem Traumhaus beginnt mit dem richtigen Grundstück. Damit ich Sie bestmöglich und individuell beraten kann, erhalten Sie Informationen zu verfügbaren Grundstücken nach einem persönlichen Gespräch. So stellen wir gemeinsam sicher, dass alles perfekt zu Ihren Vorstellungen und Ihrem Bauvorhaben passt.

Lassen Sie uns gemeinsam den ersten Schritt gehen: Ich freue mich auf Ihren Anruf unter 0173 / 3678139 für ein unverbindliches Kennenlernen. Zusammen finden wir heraus, ob dieses Grundstück die Basis für Ihr zukünftiges Zuhause werden kann - oder ob es noch passendere Möglichkeiten für Sie gibt.

Sonstige Informationen

Das angegebene Grundstück (Grundstückspreis ist im Gesamtpreis enthalten) wird von Dritten angeboten und separat erworben. Zusätzliche Erwerbs- und Baunebenkosten müssen noch hinzugerechnet werden, hierüber beraten wir gerne.

Die Hausabbildungen und die Bilder der Inneneinrichtung zeigen Extras, die nicht im angegebenen Kaufpreis inbegriffen sind.

Interessiert? Kontaktieren Sie mich und vereinbaren ein erstes Gespräch unter 0173/3678139.
Ansprechpartner/in: Herr Frank Bohnert
06551-12 0
STREIF Haus GmbH
Josef-Streif-Straße 1, 54595 Weinsheim

Weitere Angebote in Nürnberg