Neubau Einfamilienhaus mit Einbauküche, Klimaanlage, zentraler Lüftungsanlage und PV

Sarner Weg 38A 13089 Berlin, Berlin
Frei ab: 01.08.2026
3.234 € Kaltmiete
21,00 € Preis/m² ca.
Wohnfläche
154 m²
Zimmer
4
Einbauküche
Terrasse

Mietpreis & Nebenkosten

Kaltmiete3.234 €
Nebenkosten 175 €
Heizkosten47 €
Kaution 9.702 €
Maklerprovision

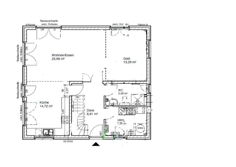
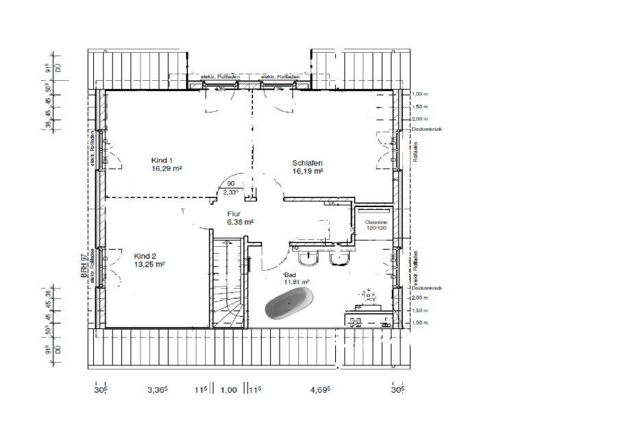
Wohnfläche, Grundstück & Bausubstanz

Wohnfläche154 m²
Nutzfläche40 m²
Grundstücksfläche465 m²
Zimmer4
Baujahr2023
Verfügbar ab 01.08.2026

Beschreibung der Immobilie

Das massive Einfamilienhaus nach KfW-Effizienzhausstandard 55 wurde 2023 neu errichtet.

Ausstattungsmerkmale

KücheEinbauküche
Bad2
Bad (Ausstattung)Fenster
BodenFliesen
Terrassen1
- Klimaanlage im Wohnzimmer und den 3 Schlafzimmern
- große Süd-Westterrasse 30m² mit 3 von innen schaltbaren Außensteckdosen, eine davon mit gesonderter Absicherung für leistungsstarke Verbraucher (z.B. Whirlpool)
- Garten
- Pkw Stellplatz mit elektrischem Schiebetor mit Fernbedienung
- Gartenhaus
- elektrische Rollläden
- Wechselsprechanlage
- viele bodentiefe Fenster
- 3-fach Verglasung
- Flachschwellen bei den Terrassentüren, also ohne Fensterrahmen, daher keine Sturzgefahr
- raumweise regulierbare Fußbodenheizung
- umfangreiche Elektroausstattung (z.B. 7 Netzwerkdosen, 4 Außensteckdosen, 4 Außenlampen)
- hochwertige Einbauküche (z.B. 82cm Induktionskochfeld mit integriertem Abzug, Kühlschrank Side-by-Side mit Eis-, Crushed Ice- und Wasserspender, 400l kühlen, 206l gefrieren)
- große Küche 14m² mit Übergang zum großen Ess- und Wohnbereich
- 2 Bäder mit zwei großen bodengleichen Duschen (EG: 1,0m*0,9m, OG 1,20m*1,20m) und Fenstern
- Die 2 Bäder haben jeweils eine Regenfalldusche
- Bad OG mit einer freistehenden Badewanne und Doppelwaschbecken
- Handtuchheizkörper in beiden Bädern
- automatische zentrale Lüftungsanlage für saubere gefilterte Raumluft mit Wärmerückgewinnung
- Energieeffizienz durch Solarenergie (Erwärmung des Wassers durch Solar)
-hohe Stromreduzierung durch Photovoltaik (PV-Anlage), insbesondere durch den Batteriespeicher
- Energieeffizienzklasse A
- Extra hohe Innentüren (2,10m)
- zusätzliche Nutzflächen ca. 40m² im Dachgeschoss (für Lagerzwecke)
- Kalkschutzanlage (wichtig für folgende Geräte: Waschmaschine, Kaffeemaschine, Wasserkocher, weniger Reinigungsaufwand)
- Highspeed- Internet per Kabelanschluss (Vodafone bis 1.000 Mbit/s)

Energie

EnergieausweistypBedarfsausweis
Gültig bis2033-12-12
Endenergiebedarf45.4
Heizungsart Zentralheizung
Energieträger/Befeuerung Gas

Karte wird geladen...
Sarner Weg 38A
13089 Berlin – Berlin

Lage & Infrastruktur

Eine sehr gute Anbindung an das öffentliche Verkehrsnetz (Tram M2, Bus X54) ist gegeben. Von Heinersdorf-Kirche bis zum Alexanderplatz sind es mit der M2 nur 19 Minuten, bis zur Ringbahn -S-Bahn Prenzlauer Allee sind es 10 Minuten. Ruhige Wohnlage, viel Grün und angenehme Nachbarschaft. Zahlreiche Einkaufsmöglichkeiten in der Nähe.

Sonstige Informationen

Die Nebenkosten von 175 EUR setzen sich wie folgt zusammen:
Trink- und Abwasser: 40 EUR (Verbrauch 143m²)
Gebäudeversicherung: 20 EUR
Wartung Heizung, Solar, Lüftung: 40 EUR
Grundsteuer: 54 EUR
Müll: 21 EUR
Die weiteren Betriebskosten (Internet) kann der Mieter kostengünstig mit den Versorgern direkt abschließen.
Die Heizkosten betragen auf Basis des Energieausweises aktuell rd. 47 EUR.
Ansprechpartner/in: von Privat
immo-for-less Privat vom Eigentümer
Bierweg 19, 99310 Arnstadt

Weitere Angebote in Berlin