Projektentwicklung zwischen Leipzig & Dresden | Historisches Gutshaus mit Park

04769 Mügeln, Sachsen
990.000 € Kaufpreis
Zimmer
11
Einbauküche
Balkon
Garten
Keller

Kaufpreis

Kaufpreis 990.000 €
Kaufpreis pro m²1894,27 €
Maklerprovision3,57 % inkl. Umsatzsteuer

Wohnfläche, Grundstück & Bausubstanz

Grundstücksfläche6.484 m²
Zimmer11
Etagen4
Baujahr1860
Letzte Modernisierung2014
Verfügbar ab Keine Angabe

Beschreibung der Immobilie

Zum Verkauf steht dieses denkmalgeschützte ehemalige Rittergut aus ca. 1860! Es bietet eine seltene Gelegenheit für Investoren und Projektentwickler, die historische Substanz mit nachhaltiger Nutzungsperspektive verbinden möchten.

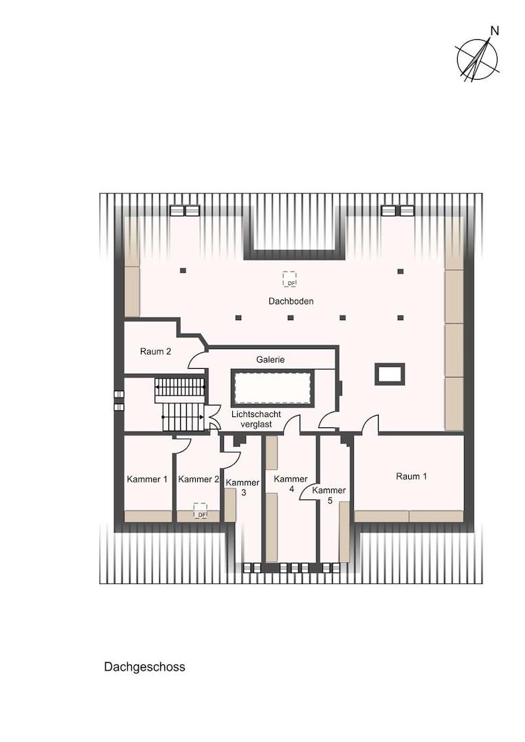
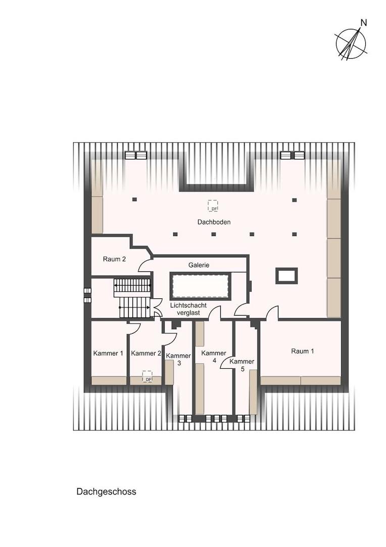
Auf einer Wohnfläche von ca. 522 m² verteilt sich die bestehende Raumstruktur über drei Ebenen und umfasst derzeit 11 Zimmer sowie mehrere großzügige Sanitärbereiche.
Die vorhandene Grundrissgestaltung mit weitläufigen, lichtdurchfluteten Räumen, repräsentativen Deckenhöhen und separaten Erschließungsbereichen schafft eine hervorragende Basis für eine Umnutzung in mehrere Wohneinheiten oder eine konzeptionelle Neuordnung für betreutes Wohnen bzw. Pflege.

Die Bausubstanz wurde in den 1990er-Jahren umfassend kernsaniert und zuletzt 2014 modernisiert. Besonders hervorzuheben ist das im Jahr 2014 fachgerecht mit Kupfer neu eingedeckte Dach, welches einen erheblichen strukturellen Wert darstellt und zukünftige Investitionsrisiken reduziert. Die Bauhülle präsentiert sich gepflegt und solide.

Das parkähnliche Grundstück mit einer Größe von ca. 6.484 m² eröffnet zusätzlichen Entwicklungsspielraum. Neben dem Haupthaus befinden sich zwei Nebengebäude, die entweder in ein Gesamtkonzept integriert oder separat genutzt bzw. ausgebaut werden können. Die weitläufige Grundstücksstruktur mit altem Baumbestand und mehreren Zufahrtsmöglichkeiten ermöglicht eine funktionale Erschließung auch bei einer Mehrparteiennutzung.

Durch den Denkmalschutzstatus ergeben sich potenzielle steuerliche Abschreibungsmöglichkeiten im Rahmen einer denkmalgerechten Sanierung, was insbesondere für Kapitalanleger mit entsprechender steuerlicher Struktur interessant ist.

Die Lage zwischen Leipzig und Dresden kombiniert ländliche Ruhe mit guter regionaler Anbindung (Autobahnanschluss in ca. 10 Minuten), wodurch sowohl langfristige Wohnkonzepte als auch betreibergeführte Nutzungen strategisch darstellbar sind.

Insgesamt handelt es sich um eine seltene Bestandsimmobilie mit tragfähiger Substanz, erheblichem Entwicklungspotenzial und vielfältigen Exit-Optionen – vom hochwertigen Mehrfamilienhaus über betreutes Wohnen bis hin zu spezialisierten Pflegekonzepten.

Ausstattungsmerkmale

KücheEinbauküche
Bad (Ausstattung)Dusche, Wanne, Fenster, Bidet
BodenFliesen, Dielen
Balkone1
GartenJa
KellerJa
* Denkmalgeschütztes Gutshaus (ca. 1860) mit repräsentativer Architektur

* Ca. 522 m² Wohnfläche mit flexibler Grundrissstruktur

* Ca. 6.484 m² parkähnliches Grundstück mit altem Baumbestand

* Zwei zusätzliche Nebengebäude mit weiterem Ausbaupotenzial

* Kernsanierung in den 1990er Jahren, Modernisierung 2014

* Dach 2014 fachgerecht erneuert (Kupfereindeckung)

* Solide Bausubstanz als verlässliche Projektgrundlage

* Mehrere Erschließungsmöglichkeiten durch großzügige Grundstücksstruktur

* Ideal für Umnutzung zu Mehrfamilienhaus, Pflegeimmobilie oder betreutem Wohnen

* Denkmal-AfA möglich (steuerliche Abschreibungspotenziale)

* Ruhige, naturnahe Lage mit guter Anbindung an Leipzig & Dresden

* Autobahn in ca. 10 Minuten erreichbar

Energie

Heizungsart Zentralheizung
Wesentlicher EnergieträgerÖl
Energieträger/Befeuerung Öl

Karte wird geladen...
04769 Mügeln – Sachsen

Lage & Infrastruktur

Der Standort profitiert von seiner strategisch günstigen Position zwischen den beiden wirtschaftsstarken Oberzentren Leipzig und Dresden. Beide Städte sind mit dem PKW in jeweils ca. 40–45 Minuten erreichbar und erschließen damit ein breites Einzugsgebiet mit über einer Million Einwohnern.

Über die nahegelegene Autobahnanbindung (ca. 10 Fahrminuten) besteht eine schnelle Verbindung in beide Richtungen. Der nächstgelegene Bahnhof ist in rund 13 Minuten erreichbar und bietet zusätzliche Anbindungsmöglichkeiten an den regionalen und überregionalen Bahnverkehr. Auch der Flughafen Leipzig/Halle ist innerhalb von ca. 45 Minuten erreichbar.

Diese Konstellation ist insbesondere für folgende Nutzungskonzepte interessant:
* Mehrfamilienhaus mit Pendlerzielgruppe
* Seniorenwohnen mit Angehörigen aus den Metropolräumen
* Betreiberkonzepte mit regionalem Einzugsgebiet
* Pflegeimmobilien mit überregionaler Nachfrage


Leipzig zählt weiterhin zu den wachstumsstärksten Städten Deutschlands mit stabiler Nachfrage im Wohnungs- und Pflegemarkt. Dresden verfügt über eine starke Industrie-, Technologie- und Forschungslandschaft sowie eine hohe Kaufkraft. Die 45-Minuten-Erreichbarkeit beider Städte erweitert das potenzielle Nutzer- und Mitarbeiterumfeld erheblich.
Gleichzeitig bietet der unmittelbare Standort eine ruhige, naturnahe Umgebung mit großzügigen Grundstücksstrukturen – ein Standortvorteil, der insbesondere im Pflege- und Seniorenbereich stark nachgefragt ist.

Für Investoren entsteht damit eine seltene Kombination aus:
* ländlicher Ruhe mit hoher Aufenthaltsqualität
* großem Entwicklungsspielraum
* gleichzeitigem Zugang zu zwei dynamischen Metropolregionen

Diese Lagequalität sichert langfristige Nachfragepotenziale und reduziert Vermarktungsrisiken sowohl im Wohn- als auch im Pflegekontext.

Sonstige Informationen

Hinweis zur Richtigkeit und Vollständigkeit der Angaben:

Der Makler weist darauf hin, dass die von ihm weitergegebenen Objektinformationen vom Verkäufer bzw. von einem vom Verkäufer beauftragten Dritten stammen und von ihm, dem Makler, auf ihre Richtigkeit nicht überprüft worden sind. Es ist Sache des Kunden, diese Angaben auf ihre Richtigkeit hin zu überprüfen. Der Makler, der diese Informationen nur weitergibt, übernimmt für die Richtigkeit keinerlei Haftung.
Ansprechpartner/in: Shenja Schorina
01520-2505830
Willuhn Immobilien e. K.
Scherlstraße 12, 04103 Leipzig
01520-2505830