Exklusive Neubau-Doppelhaushälfte | 140 m² | Garten, Terrasse & direkte S-Bahn-Anbindung nach Berlin

Ottokar-Domma-Weg 9 15566 Schöneiche bei Berlin, Brandenburg
Frei ab: sofort
1.950 € Kaltmiete
13,93 € Preis/m² ca.
Wohnfläche
140 m²
Zimmer
6

Mietpreis & Nebenkosten

Kaltmiete (netto)1.950 €
Nebenkosten 150 €
Heizkosten200 €
Kaution 5.850 €

Wohnfläche, Grundstück & Bausubstanz

Wohnfläche140 m²
Grundstücksfläche400 m²
Zimmer6
Etagen2
Baujahr2023
Verfügbar ab sofort
ZustandNeuwertig

Beschreibung der Immobilie

Stellen Sie sich vor: Morgens Kaffee auf der Südterrasse, Blick in den eigenen Garten und abends in 30 Minuten in der Berliner City.

Diese Doppelhaushälfte macht genau das möglich. 140 m² Neubau, fertiggestellt 2023, in einem der beliebtesten Wohngebiete östlich von Berlin. Ruhig. Grün. Und trotzdem nah an allem.

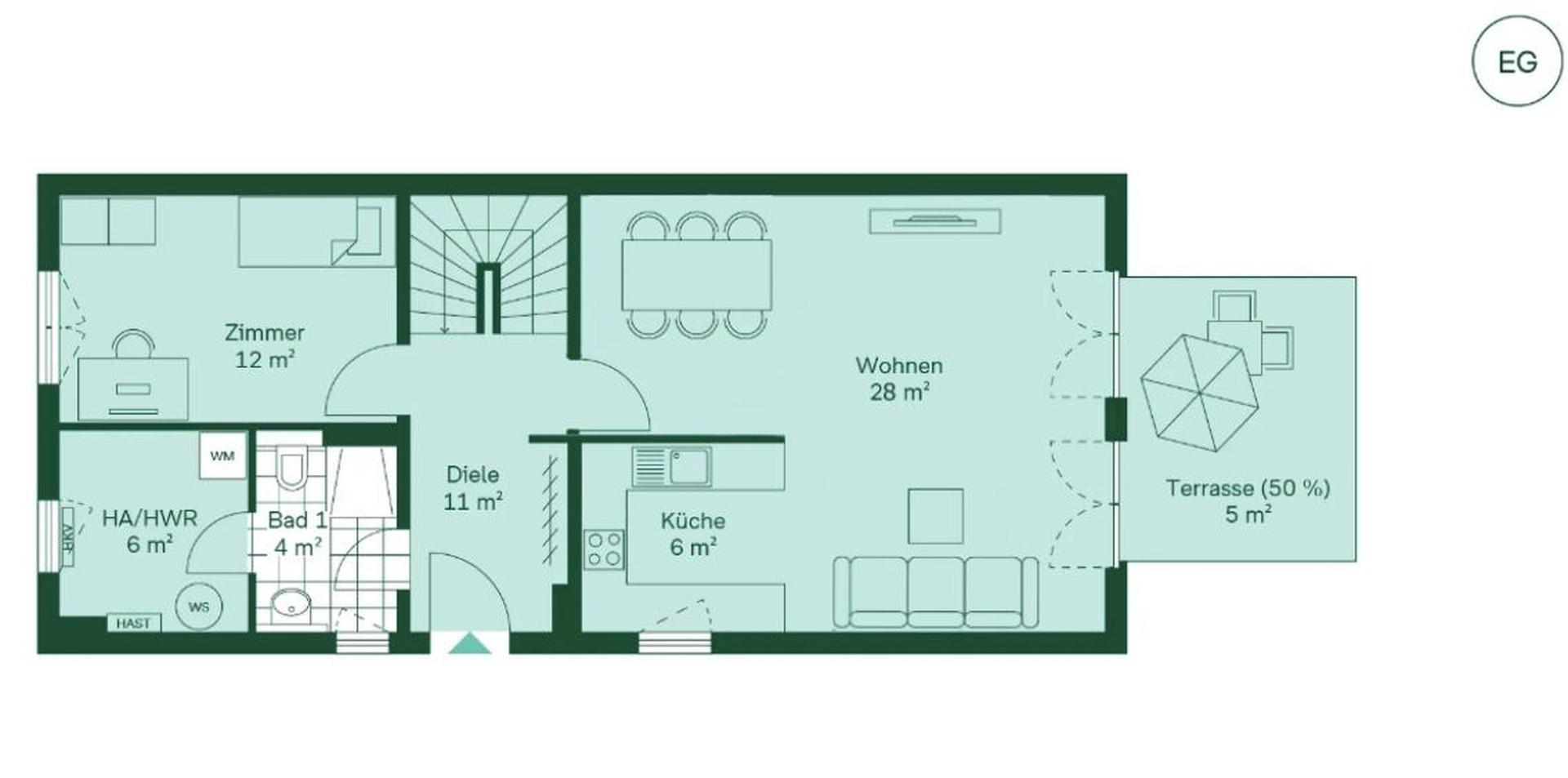
Das Haus ist so gebaut, wie man heute leben will: offen, hell, energieeffizient. Der großzügige Wohn- und Essbereich mit Einbauküche geht direkt in den Garten über. Sechs Zimmer bieten Platz für Familie, Homeoffice und Gäste. Zwei vollwertige Bäder. Fußbodenheizung und elektrische Rollläden im gesamten Haus.

KfW-55-Standard bedeutet: niedrige Heizkosten, angenehmes Raumklima das ganze Jahr.

Das Grundstück ist vollständig eingezäunt, zwei Stellplätze direkt vor der Tür.

Ausstattungsmerkmale

Bad2
Gäste-WC

Bemerkungen:
– Baujahr 2023 | Massive Bauweise | KfW-55-Standard
– 140 m² Wohnfläche | 6 Zimmer | 400 m² Grundstück
– Offene Küche mit hochwertiger Einbauküche & Induktionskochfeld
– Eichenparkett & großformatige Fliesen
– Fußbodenheizung in allen Räumen
– Elektrische Außenrollläden im gesamten Haus
– 2 Bäder mit bodenebenen Duschen | Badewanne im OG
– Bodentiefe Fenster
– Südterrasse | Gartenblick
– Hauswirtschaftsraum mit Waschmaschinenanschluss
– Homeoffice/Gästezimmer im EG
– 1,80 m Rundum-Zaun | 2 private PKW-Stellplätze
– Glasfaser-Anschluss für schnelles Internet

Energie

B
Energieeffizienzklasse B · 73 kWh/(m²*a)
EnergieausweistypBedarfsausweis
EnergieeffizienzklasseB
Endenergiebedarf73
Heizungsart Fußbodenheizung
Energieträger/Befeuerung Fernwärme

Karte wird geladen...
Ottokar-Domma-Weg 9
15566 Schöneiche bei Berlin – Brandenburg

Lage & Infrastruktur

Schöneiche bei Berlin, grüner Wohnen geht kaum.

5 Minuten zu Fuß zur Tram, die Sie direkt zum S-Bahnhof Friedrichshagen bringt. Von dort: 30 Minuten ins Zentrum Berlins. Alles für den täglichen Bedarf ist fußläufig: Supermarkt, Bäckerei, Apotheke, Kita, Arzt.

Für Autofahrer: A10 in 5min, Müggelsee in 8min, BER Flughafen in 30min.

Wer stadtnah wohnen und trotzdem durchatmen will, hier gibt es beides.

Sonstige Informationen

Heizungsart: Fußbodenheizung
Energieträger: Fernwärme


Makleranfragen nicht erwünscht. Nach § 7 UWG sind unaufgeforderte Kontaktaufnahmen durch Makler ohne ausdrückliche Einwilligung des Empfängers verboten!

ohne-makler (OM) ist weder Anbieter noch Vermittler der Immobilie. OM betreibt eine Plattform für Immobilieneigentümer, die unter anderem die gleichzeitige Veröffentlichung einzelner Inserate auf mehreren Immobilienportalen ermöglicht. Die Inhalte dieser Inserate werden ausschließlich von Dritten verantwortet. Für die Richtigkeit, Vollständigkeit oder Rechtmäßigkeit der Angaben übernimmt OM keine Haftung. Hinweise auf mögliche Rechtsverstöße können jederzeit gemeldet werden und werden nach Prüfung umgehend bearbeitet.
Ansprechpartner/in: Angebot vom Eigentümer
OM PropTech GmbH
Humboldtstraße 25a, 21509 Glinde

Weitere Angebote in Schöneiche