2-Zimmer-Wohnungen|37–59 m²|frisch saniert|Effizienzklasse B|Küche inklusive|EG barrierearm

Ziegelstraße 47 06862 Dessau-Roßlau, Sachsen-Anhalt
Frei ab: sofort
443 € Kaltmiete
7,51 € Preis/m² ca.
Wohnfläche
59 m²
Zimmer
2
Etage
1
Einbauküche
Balkon
Terrasse
Keller

Mietpreis & Nebenkosten

Kaltmiete (netto)443 €
Nebenkosten 60 €
Kaution 1.330 €

Wohnfläche, Grundstück & Bausubstanz

Wohnfläche59 m²
Zimmer2
Etagen3
Stockwerk1
Baujahr1955
Verfügbar ab sofort
ZustandTeil Vollsaniert

Beschreibung der Immobilie

Wir vermieten drei frisch renovierte 2-Zimmer-Wohnungen in einem gepflegten Mehrfamilienhaus in Dessau-Roßlau. Die Wohnungen befinden sich derzeit in der Fertigstellung. Einbauküchen und Infrarot-Heizungen werden aktuell noch eingebaut. Der geplante Einzug ist ab Mai 2026 vorgesehen; nach Rücksprache ist auch ein früherer Einzug möglich.

Hinweis: Ein Teil der Bilder wurde zur Veranschaulichung mit Unterstützung einer KI erstellt.

WE 1 – Erdgeschoss, ca. 57 m²
Helle 2-Zimmer-Wohnung mit Balkon zum Innenhof, vollständig ausgestatteter Küche mit Elektrogeräten und Badezimmer mit Badewanne. Nur 3 Stufen zum Eingang – weitgehend barrierearm. Kaltmiete: 428 € | Nebenkosten: 60 € | Kaution: 1.284 €

WE 2 – Erdgeschoss, ca. 37 m²
Kompakte 2-Zimmer-Wohnung mit Balkon zum Innenhof, vollständig ausgestatteter Küche mit Elektrogeräten und Badezimmer mit Badewanne. Nur 3 Stufen zum Eingang – weitgehend barrierearm. Kaltmiete: 278 € | Nebenkosten: 50 € | Kaution: 834 €

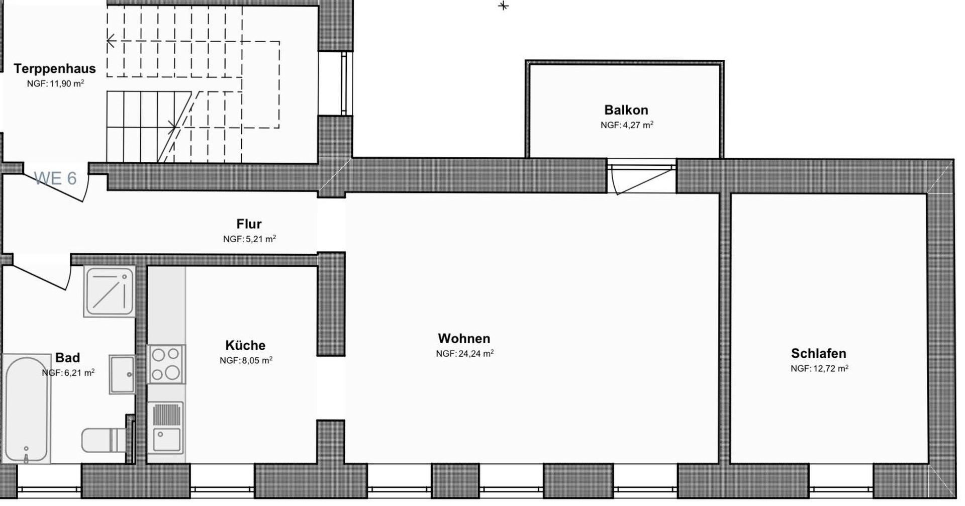
WE 3 – 1. Obergeschoss, ca. 59 m²
Geräumige 2-Zimmer-Wohnung mit Balkon zum Innenhof, vollständig ausgestatteter Küche mit Elektrogeräten und Badezimmer mit Badewanne und Dusche. Kaltmiete: 443 € | Nebenkosten: 60 € | Kaution: 1.329 €

Objektzustand: Erstbezug nach Sanierung

Ausstattungsmerkmale

KücheEinbauküche
Bad1
Bad (Ausstattung)Dusche, Wanne
BodenFliesen, Laminat
Balkone1
Terrassen0
KellerJa
Balkon, Keller, Vollbad, Duschbad, Einbauküche, Laminat, Fliesen

Bemerkungen:
Alle Wohnungen wurden frisch renoviert. Einbauküchen mit Elektrogeräten sowie moderne Infrarot-Heizpanele an der Decke werden derzeit noch eingebaut und sind zum Einzug vollständig fertiggestellt. Die Heizung lässt sich zentral über einen Regler steuern – der Stromvertrag wird eigenständig vom Mieter abgeschlossen, sodass die Heizkosten vollständig transparent und selbst steuerbar sind. Das Haus hat die Energieeffizienzklasse B.

Jede Wohnung verfügt über einen Balkon zum ruhigen Innenhof.

WE 1 (57 m², EG) und WE 2 (37 m², EG): Badezimmer mit Badewanne. Der Eingang ist mit lediglich 3 Stufen weitgehend barrierearm zugänglich. Für Mieter ab Pflegestufe 1 biete ich auf Wunsch innerhalb des ersten Mietjahres einen kostenlosen behindertengerechten Umbau des Badezimmers mit ebenerdiger Dusche an.

WE 3 (59 m², 1. OG): Badezimmer mit Badewanne und Dusche.

Energie

EnergieausweistypVerbrauch
Energieverbrauchkennwert64 kWh/(m²*a)
Energieträger/Befeuerung Elektro

Karte wird geladen...
Ziegelstraße 47
06862 Dessau-Roßlau – Sachsen-Anhalt

Lage & Infrastruktur

Das Haus befindet sich in einer ruhigen Wohnlage im Stadtteil Roßlau mit sehr guter Anbindung an die Nahversorgung. REWE, dm und Arztpraxen sind in ca. 500 m Fußweg erreichbar. Der nächste Busbahnhof liegt rund 200 m entfernt, der Bahnhof Roßlau ist fußläufig in ca. 600 m erreichbar und bietet direkte Zugverbindungen in die Region sowie eine Anbindung an Leipzig, Magdeburg, Berlin und Potsdam. Vor dem Haus stehen ausreichend kostenfreie Parkplätze zur Verfügung. Die Lage verbindet ruhiges Wohnen mit kurzen Wegen zum täglichen Bedarf.
Infrastruktur (im Umkreis von 5 km):
Apotheke, Lebensmittel-Discount, Allgemeinmediziner, Kindergarten, Grundschule, Hauptschule, Realschule, Gymnasium, Gesamtschule, Öffentliche Verkehrsmittel

Sonstige Informationen

Heizungsart: Sonstiges (s. Text)
Energieträger: Strom


Makleranfragen nicht erwünscht. Nach § 7 UWG sind unaufgeforderte Kontaktaufnahmen durch Makler ohne ausdrückliche Einwilligung des Empfängers verboten!

ohne-makler (OM) ist weder Anbieter noch Vermittler der Immobilie. OM betreibt eine Plattform für Immobilieneigentümer, die unter anderem die gleichzeitige Veröffentlichung einzelner Inserate auf mehreren Immobilienportalen ermöglicht. Die Inhalte dieser Inserate werden ausschließlich von Dritten verantwortet. Für die Richtigkeit, Vollständigkeit oder Rechtmäßigkeit der Angaben übernimmt OM keine Haftung. Hinweise auf mögliche Rechtsverstöße können jederzeit gemeldet werden und werden nach Prüfung umgehend bearbeitet.
Ansprechpartner/in: Privat vom Eigentümer
OM PropTech GmbH
Humboldtstraße 25a, 21509 Glinde

Weitere Angebote in Bräsen