Moderne, barrierefreie 3 1/2 Zimmerwohnung

76532 Baden-Baden, Baden-Württemberg
Frei ab: nach Absprache
473.000 € Kaufpreis
Wohnfläche
95 m²
Zimmer
3,5
Etage
2
Einbauküche
Balkon
Terrasse
Fahrstuhl
Keller
Barrierefrei

Kaufpreis

Kaufpreis 473.000 €
Hausgeld300 €
Maklerprovisionkeine Provision, courtagefrei

Wohnfläche, Grundstück & Bausubstanz

Wohnfläche95 m²
Zimmer3,5
Stockwerk2
Baujahr2018
Verfügbar ab nach Absprache
ZustandNeuwertig

Beschreibung der Immobilie

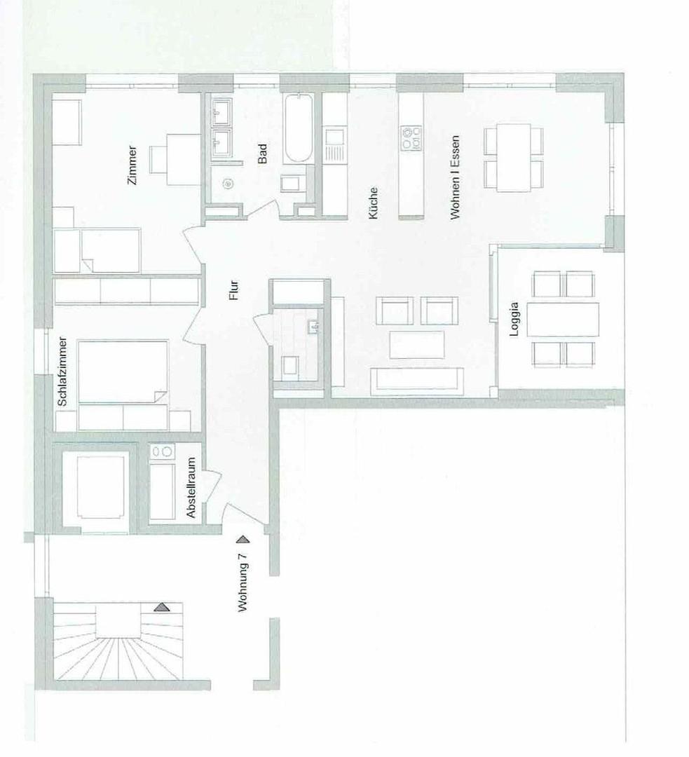
Diese behagliche, moderne 3 1/2-Zimmerwohnung mit schöner Loggia, befindet sich im zweiten Obergeschoss eines ca. 2018 errichteten Mehrfamilienhauses, KfW-Effizienzhaus 70, mit insgesamt 10 Wohneinheiten und Fahrstuhl. Die Wohnung präsentiert sich durch große Verglasungen (3-fach) sehr hell und freundlich und liegt nach hinten raus, also nicht zur verkehrsberuhigten Straße. Zur Wohnung gehört ferner ein Tiefgaragenstellplatz sowie ein Kellerabteil. Im UG befindet sich auch der gemeinsam genutzte Wasch- Trockenraum, außen gibt es geschlossene Abstellboxen für Fahrräder/ Kinderwagen.

Ausstattungsmerkmale

KücheEinbauküche
Bad1
Bad (Ausstattung)Wanne
BodenFliesen, Parkett
Balkone1
Terrassen0
Fahrstuhl
BarrierefreiJa
KellerJa
Balkon, Keller, Fahrstuhl, Vollbad, Einbauküche, Gäste-WC, Barrierefrei, Parkett, Fliesen

Bemerkungen:
Gehobene Ausstattung: 3-fach verglaste bodenenbene Fenster mit Jalousien (manuelle Regulierung), hochwertiger Parkettfußboden in allen Wohnräumen (Eiche ca. 10 mm), gute Sanitärausstattung (Villeroy & Boch, Hansgrohe), Fußbodenheizung, im Bad zusätzlich "Handtuchheizung" und Möglichkeit eine Waschmaschine einzustellen (gemeinschaftlicher Wasch-Trockenraum im UG), überdachte Loggia, Abstellraum, weiße Hochglanz-Küche mit Kochinsel im Kaufpreis enthalten, Tiefgaragenstellplatz, weiße glatte Wände in allen Räumen, Fahrstuhl.

Energie

C
Energieeffizienzklasse C · 92 kWh/(m²*a)
EnergieausweistypBedarfsausweis
EnergieeffizienzklasseC
Endenergiebedarf92
Heizungsart Fußbodenheizung
Energieträger/Befeuerung Pellet

Karte wird geladen...
76532 Baden-Baden – Baden-Württemberg

Lage & Infrastruktur

Die verkehrsberuhigte Straße liegt direkt in diesem modernen, gut angebundenen Viertel der „Cité“ im Stadtteil Baden-Baden Oos, das eine Mischung aus Wohnen, guter täglicher Versorgung, dem Cineplex Kino und schneller Erreichbarkeit der Innenstadt von Baden-Baden mit Bus oder Auto über die B500 bietet. Die Autobahn A5 in Richtung Basel und Karlsruhe ist genauso gut erreichbar
Infrastruktur (im Umkreis von 5 km):
Apotheke, Lebensmittel-Discount, Allgemeinmediziner, Kindergarten, Grundschule, Hauptschule, Realschule, Gymnasium, Gesamtschule, Öffentliche Verkehrsmittel

Sonstige Informationen

Heizungsart: Fußbodenheizung
Energieträger: Holzpellets


Makleranfragen nicht erwünscht. Nach § 7 UWG sind unaufgeforderte Kontaktaufnahmen durch Makler ohne ausdrückliche Einwilligung des Empfängers verboten!

ohne-makler (OM) ist weder Anbieter noch Vermittler der Immobilie. OM betreibt eine Plattform für Immobilieneigentümer, die unter anderem die gleichzeitige Veröffentlichung einzelner Inserate auf mehreren Immobilienportalen ermöglicht. Die Inhalte dieser Inserate werden ausschließlich von Dritten verantwortet. Für die Richtigkeit, Vollständigkeit oder Rechtmäßigkeit der Angaben übernimmt OM keine Haftung. Hinweise auf mögliche Rechtsverstöße können jederzeit gemeldet werden und werden nach Prüfung umgehend bearbeitet.
Ansprechpartner/in: Privat von Volker Brzezinski
OM PropTech GmbH
Humboldtstraße 25a, 21509 Glinde

Weitere Angebote in Baden-Baden