Sanierungsbedürftige Doppelhaushälfte in guter ruhiger Wohngegend - Garten - Garage - Hobbyraum

74385 Pleidelsheim
Frei ab: ab sofort
349.000 € Kaufpreis
Wohnfläche
96,97 m²
Zimmer
4,5

Kaufpreis

Kaufpreis 349.000 €
Maklerprovision3,57 % inkl. 19 % Mwst.

Wohnfläche, Grundstück & Bausubstanz

Wohnfläche96,97 m²
Grundstücksfläche239 m²
Zimmer4,5
Baujahr1984
Verfügbar ab ab sofort
ZustandTeil Vollrenovierungsbed

Beschreibung der Immobilie

Dieses Reihenhaus aus dem Jahr 1983 bietet eine interessante Gelegenheit für Käufer, die den Charme eines gewachsenen Wohngebiets mit der Möglichkeit zur individuellen Neugestaltung verbinden möchten. Die Immobilie präsentiert sich in einem sanierungsbedürftigen Zustand und eröffnet damit vielfältige Perspektiven, eigene Wohnideen umzusetzen.

Erdgeschoss – Wohnen & Leben

Beim Betreten des Hauses gelangt man in das Erdgeschoss, das durch eine funktionale und klassische Aufteilung überzeugt. Von der Diele aus erschließen sich die Küche, ein Gäste-WC sowie der großzügige Wohn- und Essbereich. Letzterer bildet das Herzstück des Hauses und überzeugt durch seine angenehme Größe sowie den direkten Zugang zur Terrasse und in den Garten. Die großen Fensterflächen sorgen für eine gute Belichtung und schaffen eine freundliche Wohnatmosphäre. Im Wohnbereich ist ein integrierter Ofen.

Obergeschoss – Rückzugsorte für Klein und Groß

Im Obergeschoss setzt sich die durchdachte Raumaufteilung fort. Hier stehen insgesamt drei Zimmer zur Verfügung, die sich flexibel als Schlaf-, Kinder- oder Arbeitszimmer nutzen lassen. Das innenliegende Bad entspricht dem Baujahr und ist mit Badewanne, Dusche und Waschbecken ausgestattet. Ein WC ist separat.

Dachgeschoss – Ausbaureserve

Das Dachgeschoss ist derzeit als Dachboden ausgeführt und bietet zusätzliche Nutzfläche. Je nach Bedarf und baurechtlicher Genehmigung besteht hier Potenzial zur Erweiterung der Wohnfläche, beispielsweise durch den Ausbau zu einem Studio.

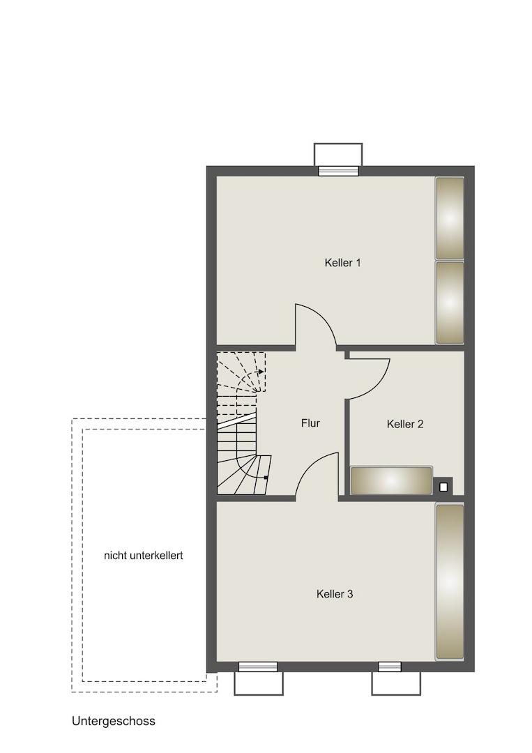
Untergeschoss – Nutzfläche & Technik

Das Untergeschoss ergänzt das Raumangebot um mehrere Kellerräume, die sich ideal als Lager-, Hobby- oder Werkstattflächen nutzen lassen. Auch die Haustechnik ist hier untergebracht.

Die Beheizung des Hauses erfolgt aktuell über Nachtspeicheröfen, die mit Strom betrieben werden. Warmwasser wird über Durchlauferhitzer erzeugt. Die Fenster stammen noch aus dem ursprünglichen Baujahr, ebenso wie ein Großteil der Innenausstattung. Das Haus bietet eine solide Grundlage für eine umfassende Modernisierung.

Der Außenbereich umfasst eine Terrasse sowie einen Garten, der sich pflegeleicht gestalten lässt und ausreichend Platz für Erholung im Freien bietet.

Dateien


Ausstattungsmerkmale

Bad1
- Garage
- Gäste-WC
- Heizung: Nachtspeicheröfen Baujahr unbekannt, vrstl. 1984 (Strom)
- Garten
- Terrasse
- massive Bauweise
- Holzfenster 2-fach 80er Jahre
- Dachboden ausbaufähig
- Dach nachträglich gedämmt

Energie

F
Energieeffizienzklasse F · 168.80 kWh/(m²*a)
EnergieausweistypBedarfsausweis
Gültig bis2036-03-30
Baujahr (laut Energieausweis)1983
EnergieeffizienzklasseF
Endenergiebedarf168.80
Heizungsart Etagenheizung
Energieträger/Befeuerung Elektro

Karte wird geladen...
74385 Pleidelsheim

Lage & Infrastruktur

Die Immobilie befindet sich in angenehmer und gewachsener Wohnlage von Pleidelsheim, einer beliebten Gemeinde im Landkreis Ludwigsburg. Die Nachbarschaft ist geprägt von überwiegend Ein- und Zweifamilienhäusern und bietet ein harmonisches Wohnumfeld mit hoher Lebensqualität.

Infrastruktur & Nahversorgung

Pleidelsheim verfügt über eine sehr gute Grundversorgung. Einkaufsmöglichkeiten für den täglichen Bedarf, darunter Supermärkte, Bäckereien und weitere Dienstleister, sind bequem erreichbar. Ergänzt wird das Angebot durch Ärzte, Apotheken sowie gastronomische Betriebe im Ort.

Familien profitieren von einem umfassenden Bildungsangebot mit Kindergärten sowie einer Grundschule direkt im Ort. Weiterführende Schulen befinden sich in den umliegenden Städten und sind gut erreichbar.

Die Verkehrsanbindung ist besonders attraktiv:
Schneller Anschluss an die Autobahn A81 (Stuttgart – Heilbronn)
Gute Erreichbarkeit der umliegenden Städte wie Ludwigsburg und Stuttgart
Öffentliche Verkehrsmittel (Busverbindungen) mit Anbindung an das regionale Bahnnetz

Damit eignet sich der Standort ideal für Pendler in die wirtschaftsstarke Region Stuttgart.

Freizeit & Umgebung

Die Nähe zum Neckar sowie zu Feldern und Wiesen bietet zahlreiche Möglichkeiten zur Erholung im Grünen. Spaziergänge, Radtouren und sportliche Aktivitäten lassen sich direkt vor der Haustür genießen. Zusätzlich sorgen örtliche Vereine und Freizeitangebote.

Fernbahnhof 3 km
Autobahn 1,4 km
Bus 0,5 km
Kindergarten 0,3 km
Grundschule 1 km
Hauptschule 8,5 km
Realschule 4,5 km
Gymnasium 5,4 km
Einkaufsmöglichkeiten 4,8 km

Sonstige Informationen

Allgemeines:
Die Angaben in diesem Exposé beruhen auf uns erteilten Informationen. Wir bemühen uns, möglichst vollständige und richtige Angaben zu erhalten und weiterzuleiten. Eine Haftung für die Richtigkeit bzw. Vollständigkeit können wir jedoch nicht übernehmen.

Wichtig:
Wir empfehlen jede Immobilie mit einem Immobilienexperten (z.B. Bauingenieur oder Architekten) final zu besichtigen um Kosten im Vorfeld abschätzen bzw. richtig einschätzen zu können.

Nachweis- und Vermittlungsprovision:
Bei Erwerb dieses Objektes stellen wir Ihnen die übliche Nachweis- und Vermittlungsprovision in Höhe von 3,57 %, d.h. 3 % zuzüglich der derzeit gültigen Mehrwertsteuer, aus dem Kaufpreis in Rechnung, fällig bei Vertragsabschluss.

Ihr Ansprechpartner:
Michael Schmidt
Immobilienwirt (DIA)
Immobilienmakler (IHK)
Kaufmann (IHK)

Lohtorstraße 13
74072 Heilbronn

E-Mail: Michael.Schmidt@wuestenrot-sinn.de
Homepage: www.thomas-sinn-immobilien.de

Finanzierung:
Für die Finanzierung dieser interessanten Immobilie steht Ihnen unser Finanzierungsexperte Herr Mathias Frühwirth von der Wüstenrot Bausparkasse zur Verfügung.
Ansprechpartner/in: Herr Michael Schmidt
Wüstenrot Immobilien / Thomas Sinn & Kollegen
Lohtorstraße 13, 74072 Heilbronn

Weitere Angebote in Pleidelsheim