Provisionsfrei* Bestandsobjekt im Ortskern mit Baugenehmigung

Dagobertstraße 4 76833 Frankweiler, Rheinland-Pfalz
Frei ab: sofort
199.000 € Kaufpreis
Wohnfläche
214 m²
Zimmer
7
Balkon
Terrasse

Kaufpreis

Kaufpreis 199.000 €
Maklerprovision

Wohnfläche, Grundstück & Bausubstanz

Wohnfläche214 m²
Grundstücksfläche373 m²
Zimmer7
Baujahr1930
Verfügbar ab sofort
ZustandSanierungsbeduerftig

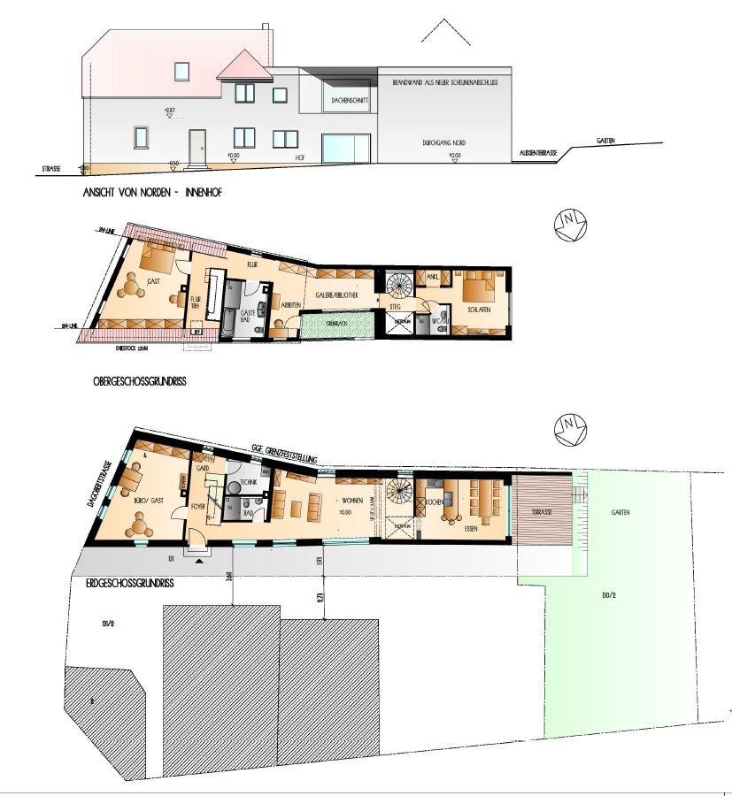
Beschreibung der Immobilie

Das ca. 1930 erbaute Einfamilienhaus liegt im historischen Ortskern von Frankweiler und
verfügt über zwei Geschosse, wobei es im Obergeschoss leichte Dachschrägen gibt.
Die Deckenhöhe beträgt im Erdgeschoss großzügige 2,60m und im Obergeschoss 2,50m.
Das entspricht heutigem Standard. Die Substanz des Hauses ist solide und eignet sich für eine umfassende Sanierung.
Das Gesamtobjekt besteht aus einem Vorderhaus und einer ehemals angebauten Scheune.
Das Vorderhaus umfasst eine Wohnfläche von ca. 150qm. Die ehemalige Scheune wurde bereits zurückgebaut. Hier können zusätzliche 64qm Wohnfläche ausgebaut werden woraus sich eine Gesamtwohnfläche von 214qm ergibt. Eine genehmigte Bauvoranfrage liegt vor.
Die Raumaufteilung ist dabei noch weitgehend frei gestaltbar. Die vorliegenden Pläne sind ein Vorschlag des Architekten der die Bauvoranfrage begleitet hat. Diese Vorschläge können
übernommen oder auch individuell abgewandelt werden.
Das Dach ist dicht, der Feuchteschaden auf dem DG-Bild ist behoben. Die oberste Geschossdecke wurde bereits gedämmt.
Alle Leitungen (Wasser, Heizung und Elektrik) sowie der Innenputz müssen erneuert werden, da diese Gewerke alt sind und das Haus außerdem einige Jahre leer stand.
Bei den Fenstern handelt es sich um hochwertige Aluminiumfenster mit Isolierverglasung aus den 80ern. Die Rahmen und Fensterflügel sind allesamt in einem sehr guten Zustand, es ist energetisch sinnvoll zumindest die Fensterscheiben zu tauschen. Die Kosten dafür sind überschaubar.
Es sind teilweise noch echte Holzdielenböden erhalten, die mit überschaubarem Aufwand aufbereitet werden könnten. In anderen Räumen wurden die Bodenbeläge bereits bis auf den Estrich entfernt.
Die o.g. Sanierungsgewerke sind umfassend, aber gut kalkulierbar.
Zusätzlich gibt es noch einen begehbaren Dachboden mit einer Breite von ca. 4 Metern und einer mittigen Höhe von ca. 2,50 Metern.
Hinterm Haus befindet sich der ca. 150qm große leicht ansteigende eigene Garten aus welchem man Richtung Pfälzer Wald schaut und abends den Sonnenuntergang genießen kann

Dateien


Ausstattungsmerkmale

Bad2
Bad (Ausstattung)Dusche, Wanne, Fenster
BodenStein, Dielen
Balkone1
Terrassen1
eigener Garten
Terrasse (projektiert)
Kamin für zusätzlichen Holzofen ist vorhanden
Garage kann bei Bedarf wie in den Plänen eingezeichnet ins Gebäude integriert werden, sonst freies Parken vorm Haus

Energie

Heizungsart Ofen, Zentralheizung
Energieträger/Befeuerung Gas

Karte wird geladen...
Dagobertstraße 4
76833 Frankweiler – Rheinland-Pfalz

Lage & Infrastruktur

Das Haus befindet sich in einer Seitenstraße im historischen Ortskern von Frankweiler, dem Rieslingdorf an der Deutschen Weinstraße.
Vom Vorderhaus aus genießen sie den Blick über die Dächer von Frankweiler Richtung Rheinebene. Von der geplanten Terrasse blicken Sie in den eigenen Garten und direkt auf den Pfälzer Wald - ein täglicher Genuss.
Frankweiler bietet eine Vielzahl an Freizeitmöglichkeiten und Erholungsangeboten. Die sanften Hügel des Pfälzerwaldes und die umliegenden Weinberge laden zu ausgedehnten Wanderungen, Radtouren und Spaziergängen ein. Naturfreunde schätzen die Nähe zur Burg Trifels , einem Wahrzeichen der Region, sowie zu weiteren Sehenswürdigkeiten wie dem Biosphärenreservat Pfälzerwald und dem idyllischen Wild- und Wanderpark Südliche Weinstraße in Silz.
Die Region ist außerdem für ihre zahlreichen Weinfeste, die Hüttenkultur und die typisch pfälzische Gastfreundschaft bekannt.
In Frankweiler und den umliegenden Weindörfern finden regelmäßig
Veranstaltungen statt, die Einblicke in die lokale Weinkultur bieten und eine gesellige Atmosphäre schaffen. Für Familien gibt es attraktive Ausflugsziele und Spielplätze, während
Sportbegeisterte vom naheliegenden Sportverein, Klettermöglichkeiten, Reitställen und ausgeschilderten Mountainbike-Strecken profitieren können.
Frankweiler ist verkehrsgünstig gelegen und gut erreichbar. In 5 Minuten sind Sie auf der Bundesstraße B10 und in 10 Minuten sind Sie auf der A65 sowie in Landau oder Annweiler
am Trifels.
Karlsruhe, Mannheim, Ludwigshafen sind in ca. 45 Minuten zu erreichen.

Sonstige Informationen

!!! FÖRDERUNG, ZUSCHUß, VERGÜNSTIGUNGEN !!!
=========================================
a) Dorferneuerungsprogramm.
Hier wird die Außensanierung (Fenster, Dach, Fassade) alter Gebäude mit bis zu 35% gedeckelt auf 30.000€ gefördert.
b) Förderung der KfW und durch die BAFA für energetische Sanierungen. Hier gibt es die Möglichkeit auf einzelne Maßnahmen Zuschüsse von bis zu 70%, sowie vergünstigte Kredite zu erhalten.
c) Für die Renovierung sowie den Ausbau der ehemaligen Scheune besteht aufgrund der Lage im Ortskern die besonders attraktive Möglichkeit der STEUERLICHE FÖRDERUNG auf Basis der
örtlichen Sanierungssatzung. Grundlage ist, dass die Gemeinde Leerstand im Ortskern verringern möchte und daher attraktive Förderungsmöglichkeiten für Sanierungen bietet.
Konkret bedeutet das, dass 90% aller Sanierungskosten auf 10 Jahre steuerlich abgeschrieben werden können. Man erhält also eine jährliche Steuererstattung von bis zu 45% auf die Sanierungskosten.
Ob Sie das Objekt selbst beziehen wollen oder vermieten möchten ist dabei unerheblich.
d) Es handelt sich um einen Verkauf ohne Makler - sowohl Sie, als Käufer, als auch der Verkäufer spart die Maklerprovision, was einen günstigen Einstieg in ein 200qm-EFH-Objekt ermöglicht.
e) Die AKTUELL abrufbaren Fördermöglichkeiten sind !! genial !!
und unterstützen durch Zuschüsse und Vergünstigungen das Sanierungsprojekt erheblich.
Es sind jeweils auch 2 der 3 unterschiedlichen Förderungsmöglichkeiten kombinierbar woraus sich bei optimaler Ausnutzung aller Förderungsmöglichkeiten eine Förderung von über 55% auf Ihre gesamten Sanierungskosten ergeben kann.
Gerne stelle ich hier den Kontakt zu dem für Frankweiler zuständigen Ortplaner her.
Beim Energieausweis handelt es sich aufgrund des Leerstandes um einen Bedarfsausweis.
Dieser nimmt Baujahrestypische Werte (von 1930) für den Energiebedarf an und
berücksichtigt auch keine bereits getätigten Sanierungsmaßnahmen wie dem Austausch der
Fenster (1980) oder der Dämmung der obersten Geschossdecke (2022). Der Energiebedarf ist
daher stets eine "Worst Case" Schätzung und hat in der Regel wenig mit dem tatsächlichen
Energieverbrauch zu tun.
Als Verkäufer bieten wir Ihnen seriöse Informationen, Zuverlässigkeit, schnelle Reaktion & erwarten von qualifizierten Interessenten:
* vollständige Kontaktdaten mit Adresse, e-mail, Fest- und mobil-Nummer
* nach einem telefonischen Erstkontakt erhalten Sie weitere Informationen und/oder einen Besichtigungstermin
Makler-Anfragen sind unerwünscht.
Ansprechpartner/in: von Privat
06345935416
immo-for-less Privat vom Eigentümer
Bierweg 19, 99310 Arnstadt
06345935416

Weitere Angebote in Böchingen