Provisionsfrei* Exklusives Reihenhaus in Toplage mit Garten und Stellplatz

14089 Berlin, Berlin
Frei ab: Sofort
799.000 € Kaufpreis
Wohnfläche
157 m²
Zimmer
6
Einbauküche
Terrasse (2)

Kaufpreis

Kaufpreis 799.000 €
Maklerprovision

Wohnfläche, Grundstück & Bausubstanz

Wohnfläche157 m²
Grundstücksfläche235 m²
Zimmer6
Baujahr2019
Verfügbar ab Sofort
ZustandNeuwertig

Beschreibung der Immobilie

Dieses neuwertige Reihenmittelhaus im modernen Townhouse-Stil bietet eine gelungene Kombination aus zeitgemäßer Architektur, energieeffizienter Bauweise (KfW-55) und hochwertiger Ausstattung - ideal für Familien, Paare mit Platzbedarf sowie für das Arbeiten im Homeoffice.
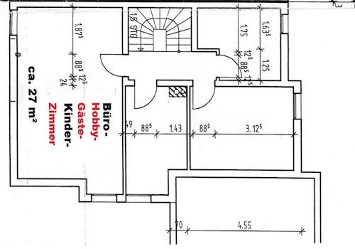
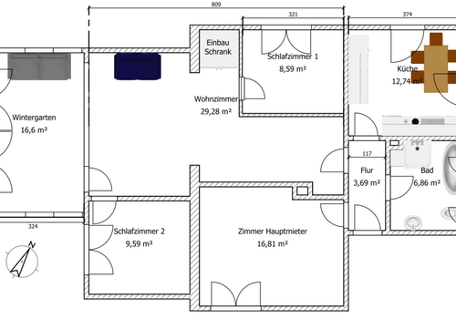
Das im Jahr 2019 in massiver Bauweise errichtete Haus verfügt über ca. 157 m² Wohnfläche, verteilt auf drei voll ausgebaute Etagen - ohne Dachschrägen. Großzügige Fenster- und Türflächen sorgen in allen Räumen für viel Tageslicht und ein offenes, angenehmes Wohngefühl.
Die Raumaufteilung ist klar strukturiert und alltagstauglich:
- Erdgeschoss: Offener Wohn- und Essbereich mit moderner Einbauküche, Gäste-WC sowie direktem Zugang zur Terrasse und zum Garten
- Obergeschoss: Drei helle Schlafzimmer und ein großzügiges Tageslichtbad mit Badewanne und Dusche
- Dachgeschoss: Großzügiges Studio mit Arbeitsbereich, separatem Abstellraum sowie Platz für Fitness oder Hobby - mit Zugang zur sonnigen Dachterrasse
Ein besonderes Highlight sind die beiden Außenbereiche:
Der nach Südwesten ausgerichtete Garten mit Terrasse sowie die sonnige Dachterrasse bieten erholsame Rückzugsorte mit Blick ins Grüne - ideal für Familienalltag, konzentriertes Arbeiten oder entspannte Abende.
Das durchdachte Energiekonzept im KfW-55-Standard ermöglicht dauerhaft niedrige Energiekosten und steht für eine zukunftssichere Bauweise. Ergänzt wird dies durch Fußbodenheizung auf allen Etagen, elektrische Rollläden sowie hochwertige Materialien wie Parkett- und Fliesenböden. Insgesamt ein stilvolles, modernes und pflegeleichtes Zuhause für langfristiges, komfortables Wohnen.

Dateien


Ausstattungsmerkmale

KücheEinbauküche
Bad (Ausstattung)Dusche, Wanne, Fenster
BodenFliesen, Parkett
Terrassen2
- Parkett- und Fliesenböden mit Fußbodenheizung auf allen Etagen
- Moderne Einbauküche mit hochwertigen Siemens studioLine Elektrogeräten
- Bodentiefe Fenster mit elektrischen Rollläden
- Maßgefertigte Insektenschutzgitter an allen Fenstern
- Schlaf- und Arbeitszimmer mit Klimafenstern
- Zwei großzügige Außenbereiche: Garten mit vorgelagerter Terrasse sowie sonnige Dachterrasse
- Eigener PKW-Stellplatz direkt vor dem Haus
- Abschließbarer Fahrradraum direkt neben dem Hauseingang
- Glasfaseranschluss für schnelles und stabiles Internet

Energie

EnergieausweistypBedarfsausweis
Gültig bis2027-05-03
Endenergiebedarf50
Heizungsart Fußbodenheizung
Energieträger/Befeuerung Fernwärme

Karte wird geladen...
14089 Berlin – Berlin

Lage & Infrastruktur

Berlin-Kladow zählt zu den grünsten und familienfreundlichsten Ortsteilen Berlins. Gelegen zwischen Havel, Groß Glienicker See und Sacrower See, verbindet Kladow naturnahes Wohnen mit einer ruhigen, gewachsenen Wohnstruktur. Die direkte Umgebung ist geprägt von Ein- und Zweifamilienhäusern, gepflegten Gärten sowie historischen Villen.
Natur- und Freizeitliebhaber finden hier vielfältige Möglichkeiten für Spaziergänge, Radfahren, Reiten oder Wassersport. Auch Golfer profitieren von der Nähe zum renommierten Berliner Golfclub Gatow. Gleichzeitig bleibt der Alltag entspannt und überschaubar - ein Standort, der besonders bei Familien sehr geschätzt wird.
Einkaufsmöglichkeiten für den täglichen Bedarf, Apotheken sowie ärztliche Versorgung befinden sich im nahegelegenen Kladow-Center. Familien profitieren zudem von einem breiten Bildungsangebot: Die Ritterfeldschule, die Mary-Poppins-Grundschule, das Hans-Carossa-Gymnasium, eine Waldorfschule sowie mehrere Kindertagesstätten sind gut erreichbar. Internationale Einrichtungen wie die Swiss International School und die British International School liegen ebenfalls in komfortabler Distanz.
Mehrere Buslinien - darunter die Schnellbuslinie X34 - gewährleisten eine gute Anbindung an die Berliner Innenstadt, das Zentrum von Potsdam sowie den Spandauer Hauptbahnhof mit U- und S-Bahn-Anschluss. Der Anschluss an den Berliner Ring ist in ca. 20 Minuten erreichbar und bietet zusätzliche Flexibilität für Pendler.
Ansprechpartner/in: Privat von Herr Tang
immo-for-less Privat vom Eigentümer
Bierweg 19, 99310 Arnstadt

Weitere Angebote in Berlin