Komfortable 3 Zimmer Wohnung in beliebter Lage

Holzstrasse 17a 39288 Burg, Sachsen-Anhalt
Frei ab: 01.07.2026
560 € Kaltmiete
6,51 € Preis/m² ca.
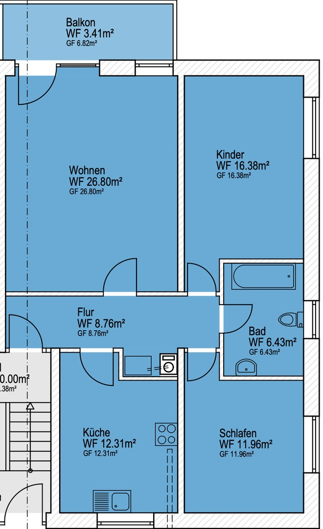
Wohnfläche
86,05 m²
Zimmer
3
Etage
0
Balkon
Terrasse
Keller

Mietpreis & Nebenkosten

Kaltmiete (netto)560 €
Nebenkosten 60 €
Heizkosten90 €
Kaution 1.680 €
Stellplatz Freiplatz Miete20 €

Wohnfläche, Grundstück & Bausubstanz

Wohnfläche86,05 m²
Zimmer3
Etagen3
Stockwerk0
Baujahr1995
Verfügbar ab 01.07.2026
ZustandGepflegt

Beschreibung der Immobilie

Objektbeschreibung – Mehrfamilienhaus, Holzstraße 17, Burg
Das gepflegte Mehrfamilienhaus überzeugt durch seine solide Bauweise und eine angenehme Wohnatmosphäre. Das Gebäude umfasst mehrere Wohneinheiten und eignet sich ideal für Singles, Paare sowie kleine Familien.
Die Wohnungen verfügen über funktionale Grundrisse mit gut nutzbaren Raumaufteilungen. Helle Wohnräume und großzügige Fensterflächen sorgen für ein freundliches und einladendes Wohngefühl. Die Ausstattung ist zweckmäßig und bietet eine gute Grundlage für individuelles Wohnen.
Je nach Einheit stehen unterschiedliche Wohnungsgrößen zur Verfügung, wodurch das Objekt vielseitige Wohnbedürfnisse abdeckt. Ergänzend können Abstellmöglichkeiten vorhanden sein. Parkmöglichkeiten befinden sich im direkten Umfeld des Hauses.

Dateien


Ausstattungsmerkmale

Bad1
Bad (Ausstattung)Wanne
Balkone1
Terrassen0
KellerJa
Balkon, Keller, Vollbad

Bemerkungen:
Die Wohnung verfügt über drei gut geschnittene Zimmer, die vielseitig als Wohn-, Schlaf- und Arbeitsräume genutzt werden können. Ein Vollbad mit Badewanne bietet zusätzlichen Komfort im Alltag. Besonders hervorzuheben ist der Balkon im Erdgeschoss, der zum Entspannen im Freien einlädt und zusätzlichen Wohnraum im Außenbereich schafft.
Ein Stellplatz befindet sich direkt vor dem Hauseingang und wird mit vermietet.
Stellplatz: 20,-€

Energie

EnergieausweistypBedarfsausweis
Endenergiebedarf125
Energieträger/Befeuerung Gas

Karte wird geladen...
Holzstrasse 17a
39288 Burg – Sachsen-Anhalt

Lage & Infrastruktur

Das Mehrfamilienhaus befindet sich in der Holzstraße 17 in Burg bei Magdeburg, in einem gewachsenen und ruhigen Wohngebiet.
Die Stadt Burg bietet eine gute Infrastruktur mit Einkaufsmöglichkeiten, Schulen, Kindergärten sowie medizinischer Versorgung in unmittelbarer Nähe. Auch Freizeit- und Naherholungsmöglichkeiten sind schnell erreichbar.
Durch die verkehrsgünstige Lage besteht eine gute Anbindung an die Landeshauptstadt Magdeburg, sodass sich der Standort auch ideal für Pendler eignet. Öffentliche Verkehrsmittel sowie wichtige Verkehrsachsen sind in wenigen Minuten erreichbar.
Infrastruktur (im Umkreis von 5 km):
Apotheke, Lebensmittel-Discount, Allgemeinmediziner, Kindergarten, Grundschule, Hauptschule, Realschule, Gymnasium, Gesamtschule, Öffentliche Verkehrsmittel

Sonstige Informationen

Energieträger: Gas

Falls Sie Interesse an dieser Wohnung haben, werden Sie gebeten, eine Kurzauskunft mit Angaben über u. a. Ihren Beruf, die Anzahl der Bewohner und einen möglichen Einzugstermin an SH(at)immobilienschneiderei.de zu senden.

Makleranfragen nicht erwünscht. Nach § 7 UWG sind unaufgeforderte Kontaktaufnahmen durch Makler ohne ausdrückliche Einwilligung des Empfängers verboten!

ohne-makler (OM) ist weder Anbieter noch Vermittler der Immobilie. OM betreibt eine Plattform für Immobilieneigentümer, die unter anderem die gleichzeitige Veröffentlichung einzelner Inserate auf mehreren Immobilienportalen ermöglicht. Die Inhalte dieser Inserate werden ausschließlich von Dritten verantwortet. Für die Richtigkeit, Vollständigkeit oder Rechtmäßigkeit der Angaben übernimmt OM keine Haftung. Hinweise auf mögliche Rechtsverstöße können jederzeit gemeldet werden und werden nach Prüfung umgehend bearbeitet.
Ansprechpartner/in: Angebot von Sonja Hermann
OM PropTech GmbH
Humboldtstraße 25a, 21509 Glinde

Weitere Angebote in Burg