Luxus Eigentumswohnungen in 51766 Engelskirchen - Ründeroth

Hohenstein 28 51766 Engelskirchen, Nordrhein-Westfalen
Frei ab: 31.12.2027
331.200 € Kaufpreis
Wohnfläche
72 m²
Zimmer
3
Etage
1
Einbauküche
Balkon (2)
Terrasse
Garten
Fahrstuhl
Keller
Barrierefrei

Kaufpreis

Kaufpreis 331.200 €
Maklerprovisionkeine Provision, courtagefrei
Stellplatz Tiefgarage Kaufpreis25.000 €

Wohnfläche, Grundstück & Bausubstanz

Wohnfläche72 m²
Zimmer3
Etagen3
Stockwerk1
Baujahr2027
Verfügbar ab 31.12.2027
ZustandErstbezug

Beschreibung der Immobilie

Luxus Eigentumswohnungen in 51766 Engelskirchen - Ründeroth

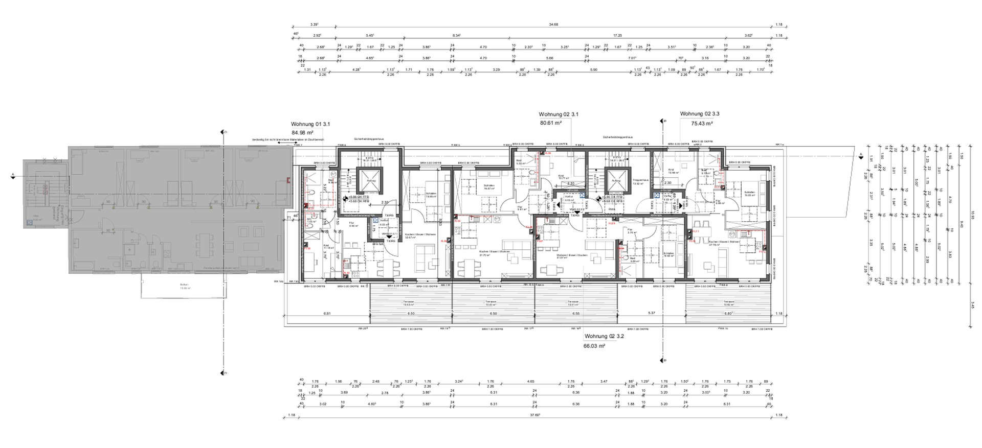
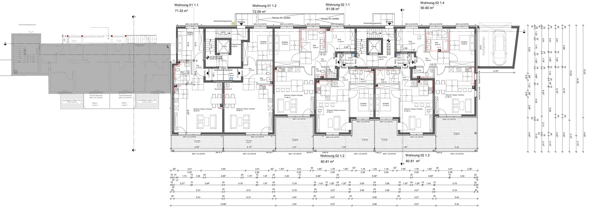
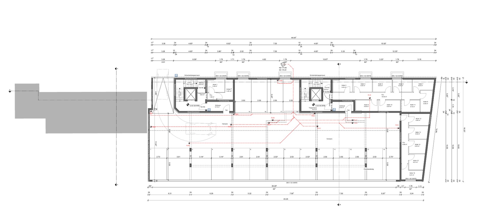
Neubauprojekt - 32 Wohnungen von 60 bis 95 qm Wohnfläche und Tiefgarage.
Das Bauvorhaben soll in 2 Abschnitten realisiert sein.
Baubeginn ab Juni 2026 die Fertigstellung Abschnitt 1 Ende 2027.

Besonderheiten:
1. Die Lage ist Einzelartig, sonnige Balkone mit einmalige, unverbaubare Panorama Sicht.
2. Modernste Bauweise, Barrierefrei, Autoparkplätzte in der gut befahrbare, Tiefgarage mit Aufzug bis je Etage.
3. Direkt am Wald / Naturschutzgebiet mit schönen Wanderwegen, trotzdem alles im Leben brauchbares Fußläufig erreichbar mit sehr guter Anbindung an Autobahn A4 (4 km Auffahrt), Regionalbahn Köln Lüdenscheid (Bahnhof ca. 1,5 km), Bus nach Köln, Gummersbach usw. Haltestelle 1 km, Grundschule in unmittelbare Nähe.
4. Die Wohnungen werden Schlüsselfertig inkl. Bad Ausstattung, Bodenbelege, Malerarbeiten und Einbauküche in guten Standard Ausführung übergeben. Solange es möglich und gewünscht ist sind andere Kaufoption möglich und vor dem Kauf zu vereinbaren.
5. Sie Kaufen zu festen Preisen direkt von der Baugemeinschaft von erfahrenen Baufirmen der Region. Die Bezahlung erfolgt zu Ihrer Sicherheit erst nach der Fertigstellung und Wohnung Übergabe wie im Kaufvertrag vereinbart.
6. Trotz heutzutage hohen Baukosten durch unsere Planung und Erfahrungen bieten wir die sehr hochwertige und einmalige Wohnungen zu einem für unser Region Neubau Standard Preisen zwischen 4.450,00 € und 4.800,00 € QM-Wohnfläche (je nach Wohnung).

Bei Finanzierung kann gerne geholfen werden.

Bei Interesse, weiteren Fragen, einem persönlichen Gespräch und Besichtigung kontaktieren Sie uns zuerst per E-Mail.
Tel.Nr.: 0162 1870480


Wir suchen Abriss Immobilien und Baugrundstücke.
Kontaktieren Sie uns, wenn Sie Ihre Immobilie verkaufen beabsichtigen.

Dateien


Ausstattungsmerkmale

KücheEinbauküche
Bad1
Bad (Ausstattung)Dusche
Balkone2
Terrassen1
GartenJa
Fahrstuhl
BarrierefreiJa
KellerJa
Balkon, Terrasse, Garten, Keller, Dachterrasse, Fahrstuhl, Duschbad, Einbauküche, Barrierefrei

Energie

Heizungsart Fußbodenheizung

Karte wird geladen...
Hohenstein 28
51766 Engelskirchen – Nordrhein-Westfalen

Lage & Infrastruktur


Infrastruktur (im Umkreis von 5 km):
Apotheke, Lebensmittel-Discount, Allgemeinmediziner, Kindergarten, Grundschule, Hauptschule, Realschule, Gymnasium, Gesamtschule, Öffentliche Verkehrsmittel

Sonstige Informationen

Heizungsart: Fußbodenheizung
Energieausweis nicht vorhanden


ohne-makler (OM) ist weder Anbieter noch Vermittler der Immobilie. OM betreibt eine Plattform für Immobilieneigentümer, die unter anderem die gleichzeitige Veröffentlichung einzelner Inserate auf mehreren Immobilienportalen ermöglicht. Die Inhalte dieser Inserate werden ausschließlich von Dritten verantwortet. Für die Richtigkeit, Vollständigkeit oder Rechtmäßigkeit der Angaben übernimmt OM keine Haftung. Hinweise auf mögliche Rechtsverstöße können jederzeit gemeldet werden und werden nach Prüfung umgehend bearbeitet.
Ansprechpartner/in: Privat von Gerhard Drzymalla
OM PropTech GmbH
Humboldtstraße 25a, 21509 Glinde

Weitere Angebote in Engelskirchen