Einfamilienhaus mit Terrasse, Garage und Potenzial zur individuellen Modernisierung

74831 Gundelsheim, Baden-Württemberg
175.000 € Kaufpreis
Wohnfläche
184 m²
Zimmer
7
Einbauküche
Balkon
Terrasse
Keller
Stellplatz

Kaufpreis

Kaufpreis 175.000 €
Maklerprovision3,57%

Wohnfläche, Grundstück & Bausubstanz

Wohnfläche184 m²
Grundstücksfläche213 m²
Zimmer7
Etagen3
Baujahr1865
Letzte Modernisierung2025
Verfügbar ab Keine Angabe
ZustandSanierungsbeduerftig

Beschreibung der Immobilie

Dieses Einfamilienhaus in Gundelsheim-Höchstberg vereint den Charme einer soliden Bestandsimmobilie mit vielfältigem Entwicklungspotenzial und richtet sich an Käufer, die ihre eigenen Wohnideen verwirklichen möchten. Auf insgesamt ca. 184 m² Wohnfläche, verteilt auf drei Etagen, bietet die Immobilie ein großzügiges Raumangebot mit flexiblen Nutzungsmöglichkeiten – ideal für Familien, Paare mit Platzbedarf oder handwerklich versierte Erwerber.

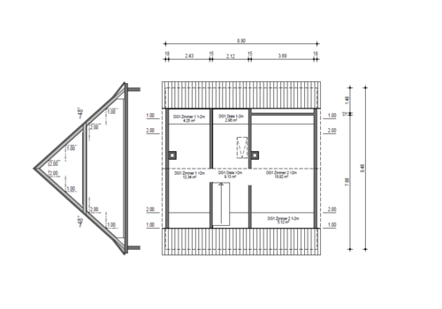
Bereits beim Betreten des Hauses empfängt Sie ein Windfang, der in den zentralen Flur des Erdgeschosses führt. Von hier aus erschließen sich das Wohnzimmer, ein Schlafzimmer, die Küche sowie ein Tageslichtbad mit begehbarer Dusche. Besonders praktisch ist der direkte Zugang zur Einzelgarage. Diese Etage wurde im Jahr 2000 umfassend ausgebaut und modernisiert: Eine neue Elektrik sowie integrierte LED-Deckenspots sorgen für eine zeitgemäße Grundausstattung und angenehme Lichtverhältnisse.

Das Obergeschoss überzeugt mit einer durchdachten Raumaufteilung und erweitert das Wohnangebot deutlich. Hier befinden sich ein weiteres Wohnzimmer, ein Schlafzimmer, ein Büro sowie eine Küche mit angrenzender Speisekammer. Von der Küche aus gelangen Sie auf die großzügige Terrasse, die zusätzlichen Freiraum im Außenbereich schafft und zum Verweilen einlädt. Ein weiteres Badezimmer mit WC und Badewanne rundet diese Etage ab und sorgt für zusätzlichen Komfort im Alltag.

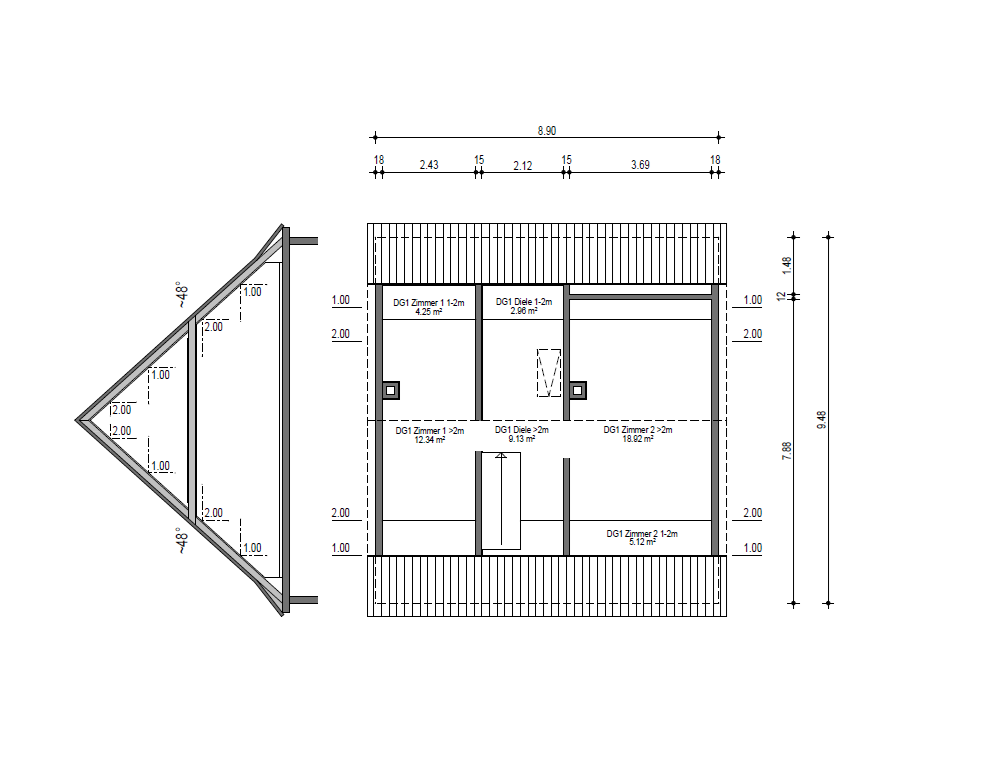
Im Dachgeschoss stehen zwei weitere, großzügig geschnittene Zimmer zur Verfügung, die sich flexibel als Kinderzimmer, Gästezimmer, Hobbyräume oder Homeoffice nutzen lassen. Ergänzt wird das Raumangebot durch einen Gewölbekeller, der wertvolle Abstell- und Nutzfläche bietet.

Technisch wurde das Haus bereits in Teilen modernisiert: Beheizt wird die Immobilie über Nachtspeicheröfen, die größtenteils im Jahr 2023 erneuert wurden. Das Dach ist gedämmt, die Kunststofffenster stammen aus dem Jahr 1994, und die Warmwasserversorgung erfolgt über einen modernen Warmwasserboiler aus dem Jahr 2025.

Das Haus befindet sich auf einem ca. 213 m² großen Grundstück und bietet insgesamt sieben Zimmer, darunter drei Schlafzimmer. Die Ausstattung entspricht einem einfachen Standard und eröffnet damit eine ideale Grundlage für individuelle Modernisierungsmaßnahmen. Genau hierin liegt der besondere Reiz dieser Immobilie: Statt vorgegebener Lösungen haben Sie die Möglichkeit, Ihre persönlichen Vorstellungen und Ansprüche umzusetzen und ein Zuhause mit eigener Handschrift zu schaffen.

Insgesamt bietet dieses Haus eine attraktive Gelegenheit für alle, die eine Immobilie mit solider Substanz, großzügiger Raumaufteilung und viel Gestaltungsspielraum suchen.

Dateien


Ausstattungsmerkmale

KücheEinbauküche
Bad2
Bad (Ausstattung)Dusche, Wanne, Fenster
BodenFliesen, Parkett
Balkone1
Terrassen1
KellerJa
Garage/Stellplätze1
Erdgeschoss (Ausbau 2000):
• Windfang
• Zentrale Diele / Flur
• Wohnzimmer
• Schlafzimmer
• Küche (Einbauküche)
• Tageslichtbad mit begehbarer Dusche
• Direkter Zugang zur Einzelgarage
• Erneuerte Elektrik
• LED-Deckenspots
Obergeschoss:
• Weiteres Wohnzimmer
• Schlafzimmer
• Büro / Arbeitszimmer
• Küche mit angrenzender Speisekammer
• Zugang zur großen Terrasse
• Badezimmer mit WC und Badewanne
Dachgeschoss:
• Zwei großzügige, flexibel nutzbare Zimmer
Kellergeschoss:
• Gewölbekeller
Technik:
• Nachtspeicheröfen (größtenteils aus 2023)
• Gedämmtes Dach
• Kunststofffenster (1994)
• Warmwasserboiler (2025)
Außenbereich:
• Einzelgarage mit direktem Zugang zum Haus
Besonderheiten:
• Solide Grundsubstanz
• Viel Potenzial zur individuellen Gestaltung
• Geeignet für Familien, Mehrgenerationennutzung oder Homeoffice

Energie

H
Energieeffizienzklasse H · 349.91 kWh/(m²*a)
EnergieausweistypBedarfsausweis
Ausstellungsdatum28. 03. 2026
Gültig bis28.03.2036
EnergieeffizienzklasseH
Endenergiebedarf349.91
Wesentlicher EnergieträgerStrom
Energieträger/Befeuerung Elektro

Karte wird geladen...
74831 Gundelsheim – Baden-Württemberg

Lage & Infrastruktur

Die Immobilie in der Bernbrunner Straße befindet sich im idyllischen Stadtteil Höchstberg, einem ruhigen und naturnah gelegenen Ortsteil von Gundelsheim. Die Lage überzeugt durch ihre angenehme Wohnatmosphäre, geprägt von gewachsener Nachbarschaft, viel Grün und einer entspannten, ländlichen Umgebung – ideal für alle, die dem hektischen Alltag entfliehen und dennoch gut angebunden bleiben möchten.

Höchstberg bietet ein familienfreundliches Umfeld mit überschaubarer Struktur und hoher Lebensqualität. Die umliegende Landschaft lädt zu ausgedehnten Spaziergängen, Radtouren und vielfältigen Freizeitaktivitäten im Grünen ein. Naturfreunde und Ruhesuchende kommen hier gleichermaßen auf ihre Kosten.

Die Kernstadt von Gundelsheim ist in wenigen Fahrminuten erreichbar und bietet eine gute Grundversorgung mit Einkaufsmöglichkeiten, Ärzten, Apotheken sowie weiteren Einrichtungen des täglichen Bedarfs. Auch Kindergärten und Schulen sind in der näheren Umgebung vorhanden und gut erreichbar.

Dank der verkehrsgünstigen Lage besteht eine gute Anbindung an die umliegenden Städte wie Heilbronn und Neckarsulm, die sowohl mit dem Auto als auch über den öffentlichen Nahverkehr bequem zu erreichen sind. Dadurch eignet sich der Standort auch ideal für Pendler, die ruhiges Wohnen mit stadtnaher Infrastruktur verbinden möchten.

Insgesamt bietet diese Lage eine gelungene Kombination aus naturnahem Wohnen, familiärer Umgebung und gleichzeitig guter Erreichbarkeit der umliegenden Wirtschaftsstandorte – ein attraktiver Lebensmittelpunkt mit viel Lebensqualität.

Sonstige Informationen

Sämtliche Angaben in diesem Exposé sind nach bestem Wissen zusammengestellt und bilden den Stand der Immobilie bei Erstellung des Exposés ab. Änderungen bleiben ausdrücklich vorbehalten. Als Rechtsgrundlage dient allein der notarielle Kaufvertrag. Angaben ohne Gewähr. Die Maklerprovision wird beim Notartermin fällig. Bitte beachten Sie bei Besichtigungswunsch unsere AGBs. Die Zustimmung hierzu ist Voraussetzung für einen Besichtigungstermin. Das Vereinbaren eines Besichtigungstermins gilt als Zustimmung zu unseren AGBs und wird mit einer Termineinladung unsererseits bestätigt. Die AGBs erhalten Sie zusammen mit dem Online-Exposé.
Unsere AGBs können Sie auch jederzeit unter www.exzellent-leben.com nachlesen.
Ansprechpartner/in: Herr Joschka Klotz
071359387798
Exzellent Leben Immobilien & Projektentwicklung GmbH
Martin-Luther-Str. 34, 74336 Brackenheim
071359387798

Weitere Angebote in Gundelsheim