Großzügige 4-Zimmer-Wohnung (112 m²) mit Garten, Garage mit Wallbox, Kamin & Einbauküche
1.300 €
Kaltmiete (netto)
112 m²
Wohnfläche
4
Zimmer
immobilien.de Nr.: 9536845
Objektnummer: 437075
Mietpreis & Nebenkosten
| Kaltmiete (netto) | 1.300 € |
| Nebenkosten | 160 € |
| Heizkosten | 90 € |
| Kaution | 3.900 € |
Wohnfläche, Grundstück & Bausubstanz
| Wohnfläche | 112 m² |
| Zimmer | 4 |
| Baujahr | 1952 |
| Verfügbar ab | 01.08.2026 |
| Zustand | Teil Vollsaniert |
Energie
| Energieausweistyp | Verbrauch |
| Energieeffizienzklasse | C |
| Energieverbrauchkennwert | 83 kWh/(m²*a) |
| Heizungsart | Zentralheizung |
| Energieträger/Befeuerung | Gas |
Beschreibung der Immobilie
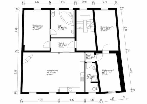
Diese großzügige 4-Zimmer-Wohnung mit ca. 112 m² Wohnfläche befindet sich im 1. Obergeschoss eines gepflegten Mehrfamilienhauses in Bochum-Hofstede und wurde im Jahr 2022 umfassend saniert. Die Wohnung überzeugt durch eine moderne Ausstattung, eine durchdachte Raumaufteilung und zusätzliche Nutzungsmöglichkeiten wie Garten und Garage.
Das Herzstück der Wohnung bildet der große Wohn- und Essbereich mit offener Küche, der viel Platz für gemeinsames Wohnen bietet. Ein Kamin sorgt hier für eine besonders angenehme Wohnatmosphäre.
Die im Wohnbereich integrierte Einbauküche von Nobilia inklusive Kühlschrank wird im Rahmen der Weitervermietung zur Übernahme gegen eine Ablöse in Höhe von 4.000 € vorgesehen.
Neben dem Wohnbereich verfügt die Wohnung über ein Schlafzimmer sowie zwei weitere Zimmer, die sich ideal als Homeoffice, Arbeitszimmer oder Kinderzimmer nutzen lassen.
Das Badezimmer ist mit einer Badewanne ausgestattet. Zusätzlich steht ein Gäste-WC mit Dusche zur Verfügung, was den Wohnkomfort im Alltag deutlich erhöht.
Ein besonderes Highlight ist der eigene Gartenanteil im Innenhof mit ca. 90 m², der den Mietern zur Nutzung zur Verfügung steht und über eine Gartenhütte verfügt.
Zur Wohnung gehört außerdem eine eigene Garage mit Wallbox, die insbesondere für Elektrofahrzeuge eine komfortable Lademöglichkeit bietet.
Abgerundet wird das Angebot durch ein separates Kellerabteil, das zusätzlichen Stauraum bietet.
Die Wohnung eignet sich ideal für Paare, Familien mit Kinder oder Berufstätige mit Homeoffice, die großzügiges Wohnen mit zusätzlichen Nutzungsmöglichkeiten wie Garten und Garage schätzen. Die Wohnung steht ab dem 01.08. zur Anmietung zur Verfügung.
Das Herzstück der Wohnung bildet der große Wohn- und Essbereich mit offener Küche, der viel Platz für gemeinsames Wohnen bietet. Ein Kamin sorgt hier für eine besonders angenehme Wohnatmosphäre.
Die im Wohnbereich integrierte Einbauküche von Nobilia inklusive Kühlschrank wird im Rahmen der Weitervermietung zur Übernahme gegen eine Ablöse in Höhe von 4.000 € vorgesehen.
Neben dem Wohnbereich verfügt die Wohnung über ein Schlafzimmer sowie zwei weitere Zimmer, die sich ideal als Homeoffice, Arbeitszimmer oder Kinderzimmer nutzen lassen.
Das Badezimmer ist mit einer Badewanne ausgestattet. Zusätzlich steht ein Gäste-WC mit Dusche zur Verfügung, was den Wohnkomfort im Alltag deutlich erhöht.
Ein besonderes Highlight ist der eigene Gartenanteil im Innenhof mit ca. 90 m², der den Mietern zur Nutzung zur Verfügung steht und über eine Gartenhütte verfügt.
Zur Wohnung gehört außerdem eine eigene Garage mit Wallbox, die insbesondere für Elektrofahrzeuge eine komfortable Lademöglichkeit bietet.
Abgerundet wird das Angebot durch ein separates Kellerabteil, das zusätzlichen Stauraum bietet.
Die Wohnung eignet sich ideal für Paare, Familien mit Kinder oder Berufstätige mit Homeoffice, die großzügiges Wohnen mit zusätzlichen Nutzungsmöglichkeiten wie Garten und Garage schätzen. Die Wohnung steht ab dem 01.08. zur Anmietung zur Verfügung.
Ausstattungsmerkmale
| Inserat befindet sich im Stockwerk | 1 |
| Küche | Einbauküche |
| Bad | 2 |
| Bad | Dusche, Wanne |
| Garten | |
| Garage/Stellplätze | 1 |
| Keller |
Garten, Keller, Vollbad, Duschbad, Einbauküche, Gäste-WC, Kamin
Bemerkungen:
- Großzügige 4-Zimmer-Wohnung mit ca. 112 m² Wohnfläche
- Einzug ist ab dem 01.08. möglich
- Sanierung der Wohnung 2022
- Großer Wohn- und Essbereich mit offener Küche
- Nobilia Einbauküche (Übernahme vom für 4.000 €)
- Ein Schlafzimmer sowie zwei weitere Zimmer (Homeoffice / Kinderzimmer)
- Badezimmer mit Badewanne
- Gäste-WC mit Dusche
- Eigenen Gartenanteil im Hof (ca. 90 m²) mit Gartenhütte
- Eigene Garage mit Wallbox für E-Auto
- Kellerabteil für zusätzlichen Stauraum
- Kamin im Wohnbereich
Bemerkungen:
- Großzügige 4-Zimmer-Wohnung mit ca. 112 m² Wohnfläche
- Einzug ist ab dem 01.08. möglich
- Sanierung der Wohnung 2022
- Großer Wohn- und Essbereich mit offener Küche
- Nobilia Einbauküche (Übernahme vom für 4.000 €)
- Ein Schlafzimmer sowie zwei weitere Zimmer (Homeoffice / Kinderzimmer)
- Badezimmer mit Badewanne
- Gäste-WC mit Dusche
- Eigenen Gartenanteil im Hof (ca. 90 m²) mit Gartenhütte
- Eigene Garage mit Wallbox für E-Auto
- Kellerabteil für zusätzlichen Stauraum
- Kamin im Wohnbereich
Sonstige Informationen
Heizungsart: Zentralheizung
Energieträger: Gas
Makleranfragen nicht erwünscht. Nach § 7 UWG sind unaufgeforderte Kontaktaufnahmen durch Makler ohne ausdrückliche Einwilligung des Empfängers verboten!
ohne-makler (OM) ist weder Anbieter noch Vermittler der Immobilie. OM betreibt eine Plattform für Immobilieneigentümer, die unter anderem die gleichzeitige Veröffentlichung einzelner Inserate auf mehreren Immobilienportalen ermöglicht. Die Inhalte dieser Inserate werden ausschließlich von Dritten verantwortet. Für die Richtigkeit, Vollständigkeit oder Rechtmäßigkeit der Angaben übernimmt OM keine Haftung. Hinweise auf mögliche Rechtsverstöße können jederzeit gemeldet werden und werden nach Prüfung umgehend bearbeitet.
Energieträger: Gas
Makleranfragen nicht erwünscht. Nach § 7 UWG sind unaufgeforderte Kontaktaufnahmen durch Makler ohne ausdrückliche Einwilligung des Empfängers verboten!
ohne-makler (OM) ist weder Anbieter noch Vermittler der Immobilie. OM betreibt eine Plattform für Immobilieneigentümer, die unter anderem die gleichzeitige Veröffentlichung einzelner Inserate auf mehreren Immobilienportalen ermöglicht. Die Inhalte dieser Inserate werden ausschließlich von Dritten verantwortet. Für die Richtigkeit, Vollständigkeit oder Rechtmäßigkeit der Angaben übernimmt OM keine Haftung. Hinweise auf mögliche Rechtsverstöße können jederzeit gemeldet werden und werden nach Prüfung umgehend bearbeitet.
Karte wird geladen...
Objektstandort
44809 Bochum
- Nordrhein-Westfalen
Lage & Infrastruktur
Objektstandort
44809 Bochum
- Nordrhein-Westfalen
Die Wohnung befindet sich im Bochumer Stadtteil Hofstede, nahe der Grenze zu Herne-Wanne-Eickel. Die Lage verbindet ein ruhiges Wohnumfeld mit einer guten Infrastruktur und einer schnellen Anbindung an das Ruhrgebiet.
Das Hannibal-Einkaufszentrum mit zahlreichen Einkaufsmöglichkeiten, Supermärkten und Geschäften des täglichen Bedarfs ist fußläufig erreichbar. Auch Apotheken, Ärzte sowie weitere Einrichtungen der Nahversorgung befinden sich in der näheren Umgebung.
Für Familien ist die Lage besonders attraktiv: Kindergärten, Grundschulen sowie weiterführende Schulen befinden sich im Umfeld und sind gut erreichbar. Mehrere Spielplätze in der Umgebung bieten zusätzliche Freizeitmöglichkeiten für Kinder.
Auch für Spaziergänge und Erholung im Freien ist gesorgt: In der Nähe befindet sich ein kleiner Wald- bzw. Grünbereich, der sich ideal für Spaziergänge, Jogging oder Fahrradtouren eignet.
Die Bochumer Innenstadt ist sowohl mit dem Auto als auch mit öffentlichen Verkehrsmitteln in etwa 10–15 Minuten erreichbar. Haltestellen des öffentlichen Nahverkehrs befinden sich in kurzer Entfernung.
Für Pendler bietet die Lage weitere Vorteile: Die Autobahn A40 ist in wenigen Minuten erreichbar und ermöglicht eine schnelle Verbindung in Richtung Essen, Dortmund, Herne und das gesamte Ruhrgebiet.
Insgesamt bietet die Lage eine gelungene Kombination aus guter Infrastruktur, familienfreundlichem Umfeld und schneller Anbindung an die Bochumer Innenstadt.
Infrastruktur (im Umkreis von 5 km):
Apotheke, Lebensmittel-Discount, Allgemeinmediziner, Kindergarten, Grundschule, Hauptschule, Realschule, Gymnasium, Gesamtschule, Öffentliche Verkehrsmittel
Das Hannibal-Einkaufszentrum mit zahlreichen Einkaufsmöglichkeiten, Supermärkten und Geschäften des täglichen Bedarfs ist fußläufig erreichbar. Auch Apotheken, Ärzte sowie weitere Einrichtungen der Nahversorgung befinden sich in der näheren Umgebung.
Für Familien ist die Lage besonders attraktiv: Kindergärten, Grundschulen sowie weiterführende Schulen befinden sich im Umfeld und sind gut erreichbar. Mehrere Spielplätze in der Umgebung bieten zusätzliche Freizeitmöglichkeiten für Kinder.
Auch für Spaziergänge und Erholung im Freien ist gesorgt: In der Nähe befindet sich ein kleiner Wald- bzw. Grünbereich, der sich ideal für Spaziergänge, Jogging oder Fahrradtouren eignet.
Die Bochumer Innenstadt ist sowohl mit dem Auto als auch mit öffentlichen Verkehrsmitteln in etwa 10–15 Minuten erreichbar. Haltestellen des öffentlichen Nahverkehrs befinden sich in kurzer Entfernung.
Für Pendler bietet die Lage weitere Vorteile: Die Autobahn A40 ist in wenigen Minuten erreichbar und ermöglicht eine schnelle Verbindung in Richtung Essen, Dortmund, Herne und das gesamte Ruhrgebiet.
Insgesamt bietet die Lage eine gelungene Kombination aus guter Infrastruktur, familienfreundlichem Umfeld und schneller Anbindung an die Bochumer Innenstadt.
Infrastruktur (im Umkreis von 5 km):
Apotheke, Lebensmittel-Discount, Allgemeinmediziner, Kindergarten, Grundschule, Hauptschule, Realschule, Gymnasium, Gesamtschule, Öffentliche Verkehrsmittel
Kontaktanfrage senden
Über den Anbieter
OM PropTech GmbH
Humboldtstraße 25a
21509 Glinde
Kontakt
| Telefon | - |
| Fax | - |
| Website | www.ohne-makler.net |
Ansprechpartner/in
Privat von Alexsandar Petrov
Weitere Angebote des Anbieters
8
Ab sofort! Helle, ruhige 2-Zi-WHG in Sendling! Kein ...
Wohnung
81369 München
Prüfen Sie regelmäßig Ihren SPAM-Ordner wenn Sie eine Anfrage versenet haben, vielen Dank! Keine WG möglich - Durchgangszimmer! - Bad mit Wanne - Küchenzeile, offene Küche - Böden: Fliesenboden, Laminat - Zustand: ...
1.180 €
Kaltmiete (netto)
50 m²
Wohnfläche
2
Zimmer
6
Gewerbegrundstück in Top-Sichtlage bei Lüneburg ...
Grundstück
21339 Lüneburg
Zum Verkauf steht ein hochinteressantes Gewerbebaugrundstück mit einer Gesamtfläche von ca. 2.403 m² im etablierten und stark frequentierten Gewerbegebiet von Adendorf. Die Lage überzeugt durch ihre direkte ...
399.000 €
Kaufpreis
2.403 m²
Grundstücksfläche
26
Massive DHH in ruhiger Lage mit Blick auf die Natur
Haus
86706 Weichering OT Lichtenau
Die süd-westlich ausgerichtete Doppelhaushälfte in Massivbauweise, besticht durch ihre ruhige Lage, der tolle Ausblick auf die Felder sowie die Waldrandnähe lädt zum Verweilen ein. Ideal nicht nur für Hundebesitzer ...
539.000 €
Kaufpreis
125 m²
Wohnfläche
5
Zimmer
21
3-Zimmer Maisonette Wohnung in Stuttgart Süd mit ...
Wohnung
70180 Stuttgart
Große Terrasse mit 37 qm, Kellerraum, Waschküchenmitbenutzung und Garage mit 2 Türen. Ausblick über Stuttgart, Schlafzimmer mit Blick in den Garten. 2. Schlafzimmer kann aufgeteilt werden (waren zwei kleine ...
680.000 €
Kaufpreis
124 m²
Wohnfläche
3
Zimmer
9
renovierungsbedürftige 2-Zimmer ETW zum 9,6-fachen der ...
Wohnung
08056 Zwickau
unvermietete 2-Raumwohnung zu Verkaufen. Größe 61m2 Wohnfläche. Wohnung befindet sich im Dachgeschoss eines 4 geschossigen Altbaus, welcher vor ca. 10 Jahren grundhaft saniert wurde (Elektrik neu / Heizung neu). Die ...
29.000 €
Kaufpreis
61 m²
Wohnfläche
2
Zimmer