Planen Sie jetzt Ihr neues Nest in den Bergen mit guter München Anbindung
694.000 €
Kaufpreis
132 m²
Wohnfläche
5
Zimmer
immobilien.de Nr.: 9534705
Objektnummer: 13155-121
Kaufpreis
| Kaufpreis | 694.000 € |
| Maklerprovision | 2,38% lediglich auf den Grundstücksanteil inkl. 19% MwSt |
Wohnfläche, Grundstück & Bausubstanz
| Wohnfläche | 132 m² |
| Grundstücksfläche | 257 m² |
| Zimmer | 5 |
| Verfügbar ab | nach Fertigstellung |
| Zustand | Projektiert |
Energie
| Energieausweistyp | Bedarfsausweis |
| Gültig bis | 2035-10-29 |
| Energieeffizienzklasse | A |
| Endenergiebedarf | 13.40 |
| Wesentlicher Energieträger | Luftwp |
Beschreibung der Immobilie
Diese noch nicht gebaute Doppelhaushälfte ist als hochwertiger Neubau in massiver Ziegelbauweise vorgesehen und bietet dem zukünftigen Eigentümer die Möglichkeit, das Haus im Rahmen der Baubeschreibung individuell mitzuplanen und auszugestalten. Das Gebäude wird als Effizienzhaus KfW 55 oder KfW 40 gegen Aufpreis errichtet und erfüllt hohe Anforderungen an Wärme-, Schall- und Wohnkomfort. Bereits die Grundkonzeption legt Wert auf eine klare Architektur, funktionale Grundrisse und eine nachhaltige, langlebige Bauweise. Es handelt sich nicht um ein vorgefertigtes Standardprodukt, sondern um ein Haus, das gemeinsam mit dem Erwerber entwickelt werden kann und auf praktischer Bauerfahrung basiert.
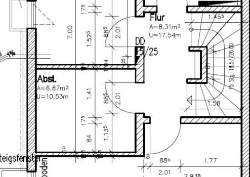
Die Planung sieht großzügige Fensterflächen vor, die für helle, freundliche Räume und ein angenehmes Wohngefühl sorgen. Mit vorgesehenen Deckenhöhen von rund 2,40 Metern entsteht ein offener, zeitgemäßer Raumeindruck. Der Wohn- und Essbereich ist offen konzipiert und bildet den Mittelpunkt des Hauses mit direktem Zugang zur Terrasse und in den Garten. Die Grundrisse sind klar strukturiert und bieten eine solide Basis für unterschiedliche Lebensmodelle – von Familienwohnen bis hin zu Homeoffice-Lösungen. Anpassungen innerhalb der planerischen und technischen Möglichkeiten sind in Abstimmung mit dem Architekten oder Bauunternehmen vorgesehen.
Die Ausstattung des Hauses orientiert sich an der zugrunde liegenden Baubeschreibung und bildet einen hochwertigen, zeitlosen Standard. Materialien, Oberflächen und technische Ausstattungsmerkmale können im vorgesehenen Rahmen ausgewählt und angepasst werden. Vorgesehen sind unter anderem eine energieeffiziente Wärmepumpe, Fußbodenheizung in den Wohnräumen sowie eine kontrollierte Lüftungsanlage mit Wärmerückgewinnung. Elektrische Rollläden, eine zeitgemäße Elektro- und Netzwerkverkabelung sowie eine funktionale Sanitär- und Badausstattung sind ebenfalls Bestandteil der Planung. Die konkrete Ausführung erfolgt gemäß Baubeschreibung und individueller Bemusterung.
Das Haus wird voll unterkellert errichtet. Der Keller ist als Nutz- und Technikbereich geplant und bietet zusätzliche Flächen für Hauswirtschaft, Lager und Hobby, wobei die Nutzung entsprechend der vorgesehenen Nutzungsklasse erfolgt. Auch hier orientiert sich die Ausführung an der Baubeschreibung und den technischen Vorgaben.
Die Terrasse ist vorgesehen und bildet eine angenehme Verbindung zwischen Wohnbereich und Garten. Zur Doppelhaushälfte gehören eine Garage mit elektrischem Sektionaltor sowie ein zusätzlicher Außenstellplatz.
Die Lage des Hauses ist geprägt von einer gut erschlossenen Ortsstruktur und einem unverbaubaren Bergblick. Die Doppelhaushälfte befindet sich an einer gewachsenen Straße, die Teil des alltäglichen Lebens im Ort ist und eine sehr gute Erreichbarkeit gewährleistet. Gleichzeitig bietet das Umfeld auch Waldabschnitte, die zum Spazieren, oder für Freizeitaktivitäten nutzbar sind. Die Anbindung in Richtung München ist sowohl mit dem Auto als auch mit öffentlichen Verkehrsmitteln gut, was den Standort insbesondere für Berufspendler attraktiv macht. Darüber hinaus überzeugt die Region durch ihren hohen Freizeitwert, die Nähe zur Natur und die schnelle Erreichbarkeit der Alpen und des benachbarten Österreichs.
Zwischen dem Erwerb des Grundstücks und dem Abschluss eines Bauvertrags besteht keine vertragliche Bindung an einen bestimmten Bauträger. Dieses Exposé dient ausschließlich zur Orientierung über einen möglichen Kostenrahmen. Sie erwerben das Grundstück direkt vom Eigentümer und können anschließend frei und selbstständig einen Bauvertrag mit einem von Ihnen gewählten Bauunternehmen abschließen.
Die Planung sieht großzügige Fensterflächen vor, die für helle, freundliche Räume und ein angenehmes Wohngefühl sorgen. Mit vorgesehenen Deckenhöhen von rund 2,40 Metern entsteht ein offener, zeitgemäßer Raumeindruck. Der Wohn- und Essbereich ist offen konzipiert und bildet den Mittelpunkt des Hauses mit direktem Zugang zur Terrasse und in den Garten. Die Grundrisse sind klar strukturiert und bieten eine solide Basis für unterschiedliche Lebensmodelle – von Familienwohnen bis hin zu Homeoffice-Lösungen. Anpassungen innerhalb der planerischen und technischen Möglichkeiten sind in Abstimmung mit dem Architekten oder Bauunternehmen vorgesehen.
Die Ausstattung des Hauses orientiert sich an der zugrunde liegenden Baubeschreibung und bildet einen hochwertigen, zeitlosen Standard. Materialien, Oberflächen und technische Ausstattungsmerkmale können im vorgesehenen Rahmen ausgewählt und angepasst werden. Vorgesehen sind unter anderem eine energieeffiziente Wärmepumpe, Fußbodenheizung in den Wohnräumen sowie eine kontrollierte Lüftungsanlage mit Wärmerückgewinnung. Elektrische Rollläden, eine zeitgemäße Elektro- und Netzwerkverkabelung sowie eine funktionale Sanitär- und Badausstattung sind ebenfalls Bestandteil der Planung. Die konkrete Ausführung erfolgt gemäß Baubeschreibung und individueller Bemusterung.
Das Haus wird voll unterkellert errichtet. Der Keller ist als Nutz- und Technikbereich geplant und bietet zusätzliche Flächen für Hauswirtschaft, Lager und Hobby, wobei die Nutzung entsprechend der vorgesehenen Nutzungsklasse erfolgt. Auch hier orientiert sich die Ausführung an der Baubeschreibung und den technischen Vorgaben.
Die Terrasse ist vorgesehen und bildet eine angenehme Verbindung zwischen Wohnbereich und Garten. Zur Doppelhaushälfte gehören eine Garage mit elektrischem Sektionaltor sowie ein zusätzlicher Außenstellplatz.
Die Lage des Hauses ist geprägt von einer gut erschlossenen Ortsstruktur und einem unverbaubaren Bergblick. Die Doppelhaushälfte befindet sich an einer gewachsenen Straße, die Teil des alltäglichen Lebens im Ort ist und eine sehr gute Erreichbarkeit gewährleistet. Gleichzeitig bietet das Umfeld auch Waldabschnitte, die zum Spazieren, oder für Freizeitaktivitäten nutzbar sind. Die Anbindung in Richtung München ist sowohl mit dem Auto als auch mit öffentlichen Verkehrsmitteln gut, was den Standort insbesondere für Berufspendler attraktiv macht. Darüber hinaus überzeugt die Region durch ihren hohen Freizeitwert, die Nähe zur Natur und die schnelle Erreichbarkeit der Alpen und des benachbarten Österreichs.
Zwischen dem Erwerb des Grundstücks und dem Abschluss eines Bauvertrags besteht keine vertragliche Bindung an einen bestimmten Bauträger. Dieses Exposé dient ausschließlich zur Orientierung über einen möglichen Kostenrahmen. Sie erwerben das Grundstück direkt vom Eigentümer und können anschließend frei und selbstständig einen Bauvertrag mit einem von Ihnen gewählten Bauunternehmen abschließen.
Ausstattungsmerkmale
| Küche | Offene Küche |
| Bad | Dusche, Wanne, Fenster |
| Garten | |
| Keller |
IHRE ZUKÜNFTIGE AUSSTATTUNG IM ÜBERBLICK
- Hochwertige Neubau-Doppelhaushälfte in solider KfW 55 Massivbauweise, auch KfW 40 ist möglich
- Auch für KFW40 Bauweise ist die aktuelle KFW55 Förderung nutzbar
- Hohe Abschreibungsmöglichkeiten für Investoren
- Sehr gute Energieeffizienzklasse A
- Moderne Luft-/Wasser-Wärmepumpe mit Fußbodenheizung
- Helle Räume durch große Fensterflächen
- Angenehme Deckenhöhe von ca. 2,40 m
- Durchdachte, familienfreundliche Grundrissgestaltung
- Großzügiger Wohn- und Essbereich mit zweifachen Gartenzugang
- Strapazierfähiger Echtholz Parkettboden in den Wohnräumen
- Zeitlos ausgestattetes Masterbad mit moderner Sanitärausstattung
- Elektrische Rollläden in allen Wohnräumen
- Vorbereitung für zeitgemäße Elektro- und Netzwerknutzung
- Vollwertiger Keller mit optionaler Fußbodenheizung & vielseitigen Nutzungsmöglichkeiten
- Sonnige Terrasse mit direktem Gartenanschluss
- Garage mit zusätzlichem Stauraumpotenzial
- Zusätzlicher Außenstellplatz für bequemes Parken
- Gute Anbindung Richtung München und in die Alpenregion
u.v.m.
- Hochwertige Neubau-Doppelhaushälfte in solider KfW 55 Massivbauweise, auch KfW 40 ist möglich
- Auch für KFW40 Bauweise ist die aktuelle KFW55 Förderung nutzbar
- Hohe Abschreibungsmöglichkeiten für Investoren
- Sehr gute Energieeffizienzklasse A
- Moderne Luft-/Wasser-Wärmepumpe mit Fußbodenheizung
- Helle Räume durch große Fensterflächen
- Angenehme Deckenhöhe von ca. 2,40 m
- Durchdachte, familienfreundliche Grundrissgestaltung
- Großzügiger Wohn- und Essbereich mit zweifachen Gartenzugang
- Strapazierfähiger Echtholz Parkettboden in den Wohnräumen
- Zeitlos ausgestattetes Masterbad mit moderner Sanitärausstattung
- Elektrische Rollläden in allen Wohnräumen
- Vorbereitung für zeitgemäße Elektro- und Netzwerknutzung
- Vollwertiger Keller mit optionaler Fußbodenheizung & vielseitigen Nutzungsmöglichkeiten
- Sonnige Terrasse mit direktem Gartenanschluss
- Garage mit zusätzlichem Stauraumpotenzial
- Zusätzlicher Außenstellplatz für bequemes Parken
- Gute Anbindung Richtung München und in die Alpenregion
u.v.m.
Sonstige Informationen
Wir freuen uns, Ihnen dieses Objekt bei einem Besichtigungstermin ausführlich vorzustellen. Aus rechtlichen Gründen bitten wir Sie, für Ihre erste Kontaktaufnahme mit uns das Kontaktformular des Portals zu nutzen, auf dem Sie diese Immobilie gefunden haben. Finestep bietet dieses Objekt provisionspflichtig zum Kauf an. Die Käuferprovision auf den Grundstücksanteil inkl. der bereits erbrachten Bauleistungen im Gesamtpreis von 255.269,00€ in Höhe von 2,38% inkl. 19% USt. ist verdient und fällig mit Beurkundung des notariellen Kaufvertrages. Ist Ihnen das von Finestep nachgewiesene Objekt bereits bekannt, ist dies Finestep schriftlich spätestens innerhalb von fünf Werktagen unter Nennung der Quelle und des Nachweisdatums mitzuteilen. Sämtliche Unterschriften und Mitteilungen haben auch bei Übermittlung per Telefax und E-Mail Ihre Rechtsgültigkeit. Als Gerichtsstand wird München vereinbart sowie die Anwendung Deutschen Rechts. Alle Angaben nach bestem Wissen und nach Angabe des Verkäufers. Irrtum und Zwischenverkauf vorbehalten. Dieses Exposé ist eine Vorabinformation, als Rechtsgrundlage gilt allein der notariell abgeschlossene Kaufvertrag Finestep Immobilien GmbH Humboldtstr. 8 81543 München www.finestep.de
Karte wird geladen...
Objektstandort
83098 Brannenburg / Degerndorf am Inn
Lage & Infrastruktur
Objektstandort
83098 Brannenburg / Degerndorf am Inn
Die angebotene Doppelhaushälfte eingebettet in eine wohnverträgliche, naturnahe Umgebung mit hoher Lebensqualität am nördlichen Alpenrand. Brannenburg gehört zum Landkreis Rosenheim und zeichnet sich durch seine attraktive Mischung aus ländlicher Ruhe, schneller Erreichbarkeit von Infrastruktur und ausgeprägtem Freizeitwert aus.
Natur & Erholung:
Die Lage profitiert von unmittelbarer Nähe zu Waldflächen, Spazierwegen und Wiesenlandschaften, die fußläufig erreichbar sind und vielfältige Möglichkeiten zur Freizeitgestaltung, Sport und Erholung bieten. Direkt im Umfeld stehen gepflegte Wege durch Grünbereiche zur Verfügung, ideal für Jogging, Radtouren oder entspannte Spaziergänge mit Blick auf die Bergkulisse der Voralpen.
Verkehrsanbindung & Erreichbarkeit:
•Der Bahnhof Brannenburg ist zu Fuß in ca. 10 Minuten erreichbar (ca. 1 km), was eine gute Anbindung an den regionalen Schienenverkehr Richtung Rosenheim, Kufstein/Tirol und München ermöglicht.¹
•Die zentrale Lage in Brannenburg erlaubt den schnellen Anschluss an den öffentlichen Busverkehr (mehrere RVO-Linien), der Verbindungen zu benachbarten Orten und zu Bahnhöfen sicherstellt.
In Richtung Großstädte und Pendlerziele ist der Standort ebenfalls interessant:
•München liegt rund 70 km nordwestlich, die Fahrtzeit mit dem Auto beträgt je nach Verkehrsaufkommen ca. 60 Minuten.
•Rosenheim als regionales Zentrum ist nur ca. 15 km nördlich gelegen und in etwa 15–20 Minuten mit dem Pkw erreichbar.
Fußläufige Ziele & Infrastruktur:
•Die Maria-Caspar-Filser Grund- und Mittelschule, ein zentraler Schulstandort in Brannenburg, ist über eine nahgelegene Bushaltestelle sicher erreichbar.
•Kindergärten sowie weitere Bildungs- und Betreuungseinrichtungen befinden sich im Ortszentrum, ebenso gut zu Fuß oder mit dem Fahrrad erreichbar.
•Auch die Privatschule Brannenburg für den Abschluss der mittleren Reife oder dem Fachoberschulenabschluss liegt ganz in Ihrer Nähe.
•Einkaufsmöglichkeiten, z. B. Supermärkte, Bäckereien und weitere Nahversorger, erreichen Sie in ca. 10–15 Minuten zu Fuß oder in wenigen Minuten mit dem Fahrrad.
•Ärzte, Apotheken, Banken und weitere Dienstleistungen sind im Ortskern vorhanden und tragen zu einer hohen Alltagsqualität bei.
Freizeit & Nahversorgung:
Brannenburg selbst verfügt über ein breit gefächertes Angebot an lokalen Sport- und Freizeitmöglichkeiten. Dazu gehören Vereine, Sportplätze, Wanderwege und das nahe Segelfluggelände Brannenburg – nur etwa 1 Kilometer östlich –, das zusätzlich Freizeitwert sowie Veranstaltungsimpulse im Ort setzt.
Natur & Erholung:
Die Lage profitiert von unmittelbarer Nähe zu Waldflächen, Spazierwegen und Wiesenlandschaften, die fußläufig erreichbar sind und vielfältige Möglichkeiten zur Freizeitgestaltung, Sport und Erholung bieten. Direkt im Umfeld stehen gepflegte Wege durch Grünbereiche zur Verfügung, ideal für Jogging, Radtouren oder entspannte Spaziergänge mit Blick auf die Bergkulisse der Voralpen.
Verkehrsanbindung & Erreichbarkeit:
•Der Bahnhof Brannenburg ist zu Fuß in ca. 10 Minuten erreichbar (ca. 1 km), was eine gute Anbindung an den regionalen Schienenverkehr Richtung Rosenheim, Kufstein/Tirol und München ermöglicht.¹
•Die zentrale Lage in Brannenburg erlaubt den schnellen Anschluss an den öffentlichen Busverkehr (mehrere RVO-Linien), der Verbindungen zu benachbarten Orten und zu Bahnhöfen sicherstellt.
In Richtung Großstädte und Pendlerziele ist der Standort ebenfalls interessant:
•München liegt rund 70 km nordwestlich, die Fahrtzeit mit dem Auto beträgt je nach Verkehrsaufkommen ca. 60 Minuten.
•Rosenheim als regionales Zentrum ist nur ca. 15 km nördlich gelegen und in etwa 15–20 Minuten mit dem Pkw erreichbar.
Fußläufige Ziele & Infrastruktur:
•Die Maria-Caspar-Filser Grund- und Mittelschule, ein zentraler Schulstandort in Brannenburg, ist über eine nahgelegene Bushaltestelle sicher erreichbar.
•Kindergärten sowie weitere Bildungs- und Betreuungseinrichtungen befinden sich im Ortszentrum, ebenso gut zu Fuß oder mit dem Fahrrad erreichbar.
•Auch die Privatschule Brannenburg für den Abschluss der mittleren Reife oder dem Fachoberschulenabschluss liegt ganz in Ihrer Nähe.
•Einkaufsmöglichkeiten, z. B. Supermärkte, Bäckereien und weitere Nahversorger, erreichen Sie in ca. 10–15 Minuten zu Fuß oder in wenigen Minuten mit dem Fahrrad.
•Ärzte, Apotheken, Banken und weitere Dienstleistungen sind im Ortskern vorhanden und tragen zu einer hohen Alltagsqualität bei.
Freizeit & Nahversorgung:
Brannenburg selbst verfügt über ein breit gefächertes Angebot an lokalen Sport- und Freizeitmöglichkeiten. Dazu gehören Vereine, Sportplätze, Wanderwege und das nahe Segelfluggelände Brannenburg – nur etwa 1 Kilometer östlich –, das zusätzlich Freizeitwert sowie Veranstaltungsimpulse im Ort setzt.
Kontaktanfrage senden
Über den Anbieter
Finestep Immobilien GmbH
Humboldtstraße 8
81543 München
Kontakt
| Telefon | 00491721407320 |
| Mobil | 00491721407320 |
| Website | www.finestep.de |
Ansprechpartner/in
Herr Kai Pommerenke
Weitere Angebote des Anbieters
22
Planen Sie jetzt Ihr neues Nest in den Bergen mit ...
Haus
83098 Brannenburg / Degerndorf am Inn
Diese noch nicht gebaute Doppelhaushälfte ist als hochwertiger Neubau in massiver Ziegelbauweise vorgesehen und bietet dem zukünftigen Eigentümer die Möglichkeit, das Haus im Rahmen der Baubeschreibung individuell ...
694.000 €
Kaufpreis
132 m²
Wohnfläche
5
Zimmer
21
Planen Sie jetzt Ihr neues Nest in den Bergen mit ...
Haus
83098 Brannenburg / Degerndorf am Inn
Diese noch nicht gebaute Doppelhaushälfte ist als hochwertiger Neubau in massiver Ziegelbauweise vorgesehen und bietet dem zukünftigen Eigentümer die Möglichkeit, das Haus im Rahmen der Baubeschreibung individuell ...
694.000 €
Kaufpreis
132 m²
Wohnfläche
5
Zimmer
7
Attraktives Ausbauobjekt: Stadl mit genehmigter ...
Haus
83550 Emmering
Dieses außergewöhnliche Objekt bietet eine seltene Gelegenheit für alle, die Potenzial erkennen und entwickeln möchten. Zum Verkauf steht der unausgebaute Teil eines ehemaligen Stadls in zentraler Lage von Emmering. ...
150.000 €
Kaufpreis
181,45 m²
Wohnfläche
7
Zimmer
1
Tiefgaragenstellplätze in Happing zu vermieten
Parken
83026 Rosenheim
Zum Angebot stehen gut zugängliche Tiefgaragenstellplätze in einer gepflegten Wohnanlage. Die Einfahrt zur Tiefgarage erfolgt bequem über ein elektrisches Garagentor, das per Schlüssel gesteuert wird. Der Stellplatz ...
60 €
Warmmiete
1 m²
Wohnfläche
keine Angabe
Zimmer
12
Wunderschöne 2-Zimmer-Wohnung in nördlicher Burgau
Wohnung
83512 Wasserburg am Inn
Die 2-Zimmer-Wohnung überzeugt durch eine durchdachte Raumaufteilung und eine angenehme Wohnatmosphäre. Die hellen Zimmer bieten ausreichend Platz zum Wohnen und Entspannen. Das Objekt befindet sich in einem ...
800 €
Kaltmiete
40 m²
Wohnfläche
2
Zimmer