Moderne Doppelhaushälfte mit durchdachtem Raumkonzept
632.959 €
Kaufpreis
130 m²
Wohnfläche
5
Zimmer
immobilien.de Nr.: 9534640
Objektnummer: 108
Kaufpreis
| Kaufpreis | 632.959 € |
Wohnfläche, Grundstück & Bausubstanz
| Wohnfläche | 130 m² |
| Grundstücksfläche | 350 m² |
| Zimmer | 5 |
| Baujahr | 2027 |
| Verfügbar ab | keine Angabe |
| Zustand | Projektiert |
Energie
| Energietyp | KfW-40 |
| Heizungsart | Zentralheizung |
| Energieträger/Befeuerung | Luft-Wärme-Pumpe |
Beschreibung der Immobilie
Willkommen in Ihrem neuen Zuhause!
Jede Doppelhaushälfte vereint zeitlose, klare Architektur mit einem Höchstmaß an Wohnkomfort.
Das Haus wurde speziell für die Bedürfnisse junger Familien konzipiert. Während die Vorderseite durch ihre klare Struktur und praktische Details überzeugt, eröffnet sich zur Rückseite hin eine private Oase: Eine großzügige Terrasse mit direktem Zugang zum eigenen Garten bietet den idealen Raum für entspannte Sommerabende, während die Kinder sicher im Grünen spielen.
Raumaufteilung & Highlights
Erdgeschoss: Offenes Wohnen & Kommunikation
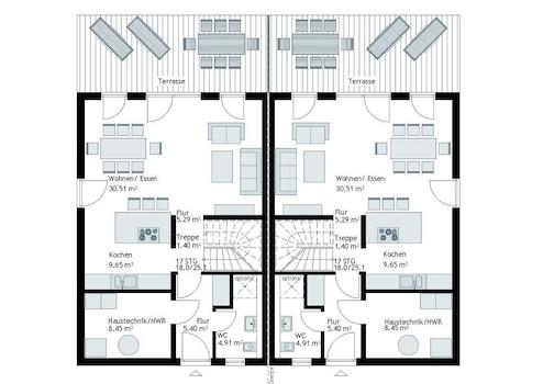
Das Herzstück des Hauses ist der ca. 30,5 m² große Wohn- und Essbereich. Durch bodentiefe Fensterelemente flutet das Tageslicht den Raum und schafft eine nahtlose Verbindung zur Terrasse.
Küche: Die offene Küche (9,65 m²) ist perfekt in den Wohnbereich integriert - ideal für gemeinsame Kochabende.
Funktionalität: Ein separates Gäste-WC mit Tageslicht sowie ein großzügiger Hauswirtschaftsraum (HWR), der gleichzeitig als Technikzentrale dient, ergänzen das Erdgeschoss.
Dachgeschoss: Rückzugsort für die ganze Familie
Über die zentrale Treppe gelangen Sie in das privat genutzte Obergeschoss, das ohne störende Dachschrägen im unteren Bereich maximale Stellfläche bietet.
Elternschlafzimmer: Ein weitläufiges Refugium mit ca. 17,7 m² bietet ausreichend Platz für ein großes Doppelbett und eine Ankleidenische.
Kinderzimmer: Zwei nahezu identisch geschnittene, helle Kinderzimmer (je ca. 14,6 m²) bieten jedem Kind sein eigenes Reich zum Spielen und Lernen.
Wellness-Bad: Das geräumige Familienbad (9,7 m²) bietet Platz für eine Badewanne und eine separate Dusche - ein perfekter Start in den Tag.
Einzigartige Services, umfangreiche Inklusiv-Leistungen und komplette Gestaltungsfreiheit; eine Kombination, die Sie nur bei STREIF Haus finden.
Sie möchten größer oder kleiner bauen? Oder in einer anderen Dachform? Sehr gerne! Rufen Sie mich an unter 0173/3678139 und wir besprechen die Anforderungen an Ihr individuelles STREIF-Haus.
Jede Doppelhaushälfte vereint zeitlose, klare Architektur mit einem Höchstmaß an Wohnkomfort.
Das Haus wurde speziell für die Bedürfnisse junger Familien konzipiert. Während die Vorderseite durch ihre klare Struktur und praktische Details überzeugt, eröffnet sich zur Rückseite hin eine private Oase: Eine großzügige Terrasse mit direktem Zugang zum eigenen Garten bietet den idealen Raum für entspannte Sommerabende, während die Kinder sicher im Grünen spielen.
Raumaufteilung & Highlights
Erdgeschoss: Offenes Wohnen & Kommunikation
Das Herzstück des Hauses ist der ca. 30,5 m² große Wohn- und Essbereich. Durch bodentiefe Fensterelemente flutet das Tageslicht den Raum und schafft eine nahtlose Verbindung zur Terrasse.
Küche: Die offene Küche (9,65 m²) ist perfekt in den Wohnbereich integriert - ideal für gemeinsame Kochabende.
Funktionalität: Ein separates Gäste-WC mit Tageslicht sowie ein großzügiger Hauswirtschaftsraum (HWR), der gleichzeitig als Technikzentrale dient, ergänzen das Erdgeschoss.
Dachgeschoss: Rückzugsort für die ganze Familie
Über die zentrale Treppe gelangen Sie in das privat genutzte Obergeschoss, das ohne störende Dachschrägen im unteren Bereich maximale Stellfläche bietet.
Elternschlafzimmer: Ein weitläufiges Refugium mit ca. 17,7 m² bietet ausreichend Platz für ein großes Doppelbett und eine Ankleidenische.
Kinderzimmer: Zwei nahezu identisch geschnittene, helle Kinderzimmer (je ca. 14,6 m²) bieten jedem Kind sein eigenes Reich zum Spielen und Lernen.
Wellness-Bad: Das geräumige Familienbad (9,7 m²) bietet Platz für eine Badewanne und eine separate Dusche - ein perfekter Start in den Tag.
Einzigartige Services, umfangreiche Inklusiv-Leistungen und komplette Gestaltungsfreiheit; eine Kombination, die Sie nur bei STREIF Haus finden.
Sie möchten größer oder kleiner bauen? Oder in einer anderen Dachform? Sehr gerne! Rufen Sie mich an unter 0173/3678139 und wir besprechen die Anforderungen an Ihr individuelles STREIF-Haus.
Ausstattungsmerkmale
| Anzahl der Etagen im Haus | 2 |
| Küche | Offene Küche |
| Bad | 1 |
| Bad | Dusche, Wanne, Fenster |
STREIF-Häuser sind Energiesparhäuser mit Außenwänden im Passivhausstandard und einer effizienten Heiztechnik, die eine integrierte Wohnraumlüftung und Wärmerückgewinnung bietet. Dies gewährleistet nicht nur einen geringen Energieverbrauch, sondern auch ein fantastisches Raumklima.
Die Leistungen von STREIF sind umfangreich und bereits im Grundpreis enthalten:
- 20-monatige Festpreisgarantie
- Energieeffizienzhaus KfW 40 EE im Standard
- Individuelle Grundrissgestaltung und Raumaufteilung inklusive
- Fundamentplatte inklusive
- Luft-Luft-Wärmepumpe mit integrierter Lüftungsanlage und Wärmerückgewinnung
- Haustür von KERA und Fenster von Porta/Kömmerling
- Massivholz-Geschosstreppe aus eigener Produktion
- uvm.
Die Leistungen von STREIF sind umfangreich und bereits im Grundpreis enthalten:
- 20-monatige Festpreisgarantie
- Energieeffizienzhaus KfW 40 EE im Standard
- Individuelle Grundrissgestaltung und Raumaufteilung inklusive
- Fundamentplatte inklusive
- Luft-Luft-Wärmepumpe mit integrierter Lüftungsanlage und Wärmerückgewinnung
- Haustür von KERA und Fenster von Porta/Kömmerling
- Massivholz-Geschosstreppe aus eigener Produktion
- uvm.
Sonstige Informationen
Das angegebene Grundstück wird von Dritten vermittelt und separat erworben. Der Preis ist bereits im Gesamtpreis berücksichtigt. Hinzu kommen noch Erwerbs- und Baunebenkosten - alle Details erkläre ich Ihnen gerne persönlich.
Die gezeigten Hausabbildungen und Inneneinrichtungen enthalten Sonderausstattungen, die nicht im angegebenen Preis inbegriffen sind.
Fragen? Kontaktieren Sie mich unter 0173/3678139 für ein unverbindliches Beratungsgespräch.
Die gezeigten Hausabbildungen und Inneneinrichtungen enthalten Sonderausstattungen, die nicht im angegebenen Preis inbegriffen sind.
Fragen? Kontaktieren Sie mich unter 0173/3678139 für ein unverbindliches Beratungsgespräch.
Karte wird geladen...
Objektstandort
90475 Nürnberg
Lage & Infrastruktur
Objektstandort
90475 Nürnberg
Nürnberg‑Falkenheim ist ein kleiner, ruhiger Stadtteil im Nürnberger Süden mit familienfreundlichem Charakter. Geprägt von Ein‑ und Reihenhäusern sowie lockerer Bebauung bietet Falkenheim ein angenehmes, grünes Wohnumfeld. Einkaufsmöglichkeiten, Schulen und Kitas befinden sich im nahen Umfeld der Gartenstadt, während die gute Anbindung an das Straßennetz eine schnelle Erreichbarkeit der Innenstadt ermöglicht.
Hinweis:
Als STREIF-Berater (nicht als Makler) teile ich Grundstücksinformationen ausschließlich mit meinen Bauherren. Alle Angebote sind unverbindlich und freibleibend - Irrtümer sowie zwischenzeitliche Verkäufe möglich. Die Angaben beruhen auf mir vorliegenden Informationen, für deren Vollständigkeit und Richtigkeit ich trotz sorgfältiger Prüfung nicht hafte.
Lassen Sie uns sprechen! Kontaktieren Sie mich gerne unter 0173/3678139 für ein unverbindliches Erstgespräch. Dabei schauen wir, ob das Grundstück zu Ihren Vorstellungen passt oder ob andere Optionen besser geeignet sind.
Hinweis:
Als STREIF-Berater (nicht als Makler) teile ich Grundstücksinformationen ausschließlich mit meinen Bauherren. Alle Angebote sind unverbindlich und freibleibend - Irrtümer sowie zwischenzeitliche Verkäufe möglich. Die Angaben beruhen auf mir vorliegenden Informationen, für deren Vollständigkeit und Richtigkeit ich trotz sorgfältiger Prüfung nicht hafte.
Lassen Sie uns sprechen! Kontaktieren Sie mich gerne unter 0173/3678139 für ein unverbindliches Erstgespräch. Dabei schauen wir, ob das Grundstück zu Ihren Vorstellungen passt oder ob andere Optionen besser geeignet sind.
Kontaktanfrage senden
Über den Anbieter
STREIF Haus GmbH
Josef-Streif-Straße 1
54595 Weinsheim
Kontakt
| Mobil | +49 173 3678139 |
| Website | www.streif.de |
Ansprechpartner/in
Herr Frank Bohnert
Weitere Angebote des Anbieters
20
Sehr schöne Stadtvilla in erstklassiger Lage von St. ...
Haus
66386 St. Ingbert
Viel Platz und von Licht erfüllte Räume bietet diese traumhafte Stadtvilla. Im Erdgeschoss bildet der offen gestaltete Wohn-, Ess- und Kochbereich mit 49 m² das Herzstück des Hauses. Der gesamte Wohnbereich wird von ...
608.000 €
Kaufpreis
186 m²
Wohnfläche
5
Zimmer
30
STREIF baut Euer perfektes Zuhause
Haus
76707 Hambrücken
Das zweieinhalbgeschossige Mehrfamilienhaus mit zwei Wohnungen überzeugt mit einer klassisch eleganten Architektur mit Satteldach und zwei behaglichen Terrassen. Der Hausentwurf kann mit Stahlbalkonen an der ...
1.293.936 €
Kaufpreis
358 m²
Wohnfläche
18
Zimmer
30
STREIF baut Euer perfektes Zuhause
Haus
76707 Hambrücken
Das zweigeschossige Mehrfamilienhaus mit zwei Wohnungen überzeugt mit einer klassisch eleganten Architektur mit Walmdach und zwei behaglichen Terrassen. Der Hausentwurf kann mit Stahlbalkonen an der Gartenseite ...
1.139.664 €
Kaufpreis
301 m²
Wohnfläche
18
Zimmer
30
STREIF baut Euer perfektes Zuhause
Haus
76707 Hambrücken
Das zweigeschossige Mehrfamilienhaus mit zwei Wohnungen überzeugt mit einer klassisch eleganten Architektur mit Walmdach und einer behaglichen Terrasse. Der Hausentwurf kann mit einem Carport und einer darüberliegenden ...
828.414 €
Kaufpreis
186 m²
Wohnfläche
10
Zimmer
17
STREIF baut Euer perfektes Zuhause
Haus
76707 Hambrücken
STREIF-Villa 4: Exklusives Wohnen mit Flachdach, zwei Erkern, Galerie und Dachterrasse Der Entwurf der exklusiven STREIF-Villa 4 bietet seinen Bewohnern zahlreiche luxuriöse Merkmale, darunter eine zweigeschossige ...
950.650 €
Kaufpreis
210 m²
Wohnfläche
8
Zimmer