Mehr Platz für große Träume - Wir bauen Ihr KfW 40-Familienhaus
316.600 €
Kaufpreis
119 m²
Wohnfläche
3
Zimmer
immobilien.de Nr.: 9534552
Objektnummer: 2498
Kaufpreis
| Kaufpreis | 316.600 € |
| Stellplatz Garage Kaufpreis | 15.000 € |
Wohnfläche, Grundstück & Bausubstanz
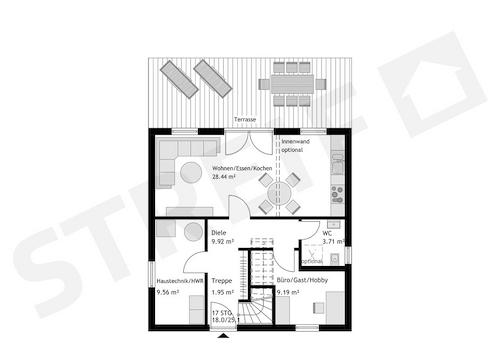
| Wohnfläche | 119 m² |
| Grundstücksfläche | 540 m² |
| Zimmer | 3 |
| Verfügbar ab | keine Angabe |
Energie
| Energietyp | KfW-40 |
| Heizungsart | Zentralheizung |
| Energieträger/Befeuerung | Luft-Wärme-Pumpe |
Beschreibung der Immobilie
Alles da, was man braucht. Plus Zusatzzimmer und optionales Duschbad im Erdgeschoss.
Ausstattungsmerkmale
| Anzahl der Etagen im Haus | 1 |
| Küche | Offene Küche |
| Bad | 1 |
| Bad | Dusche, Wanne, Fenster, Bidet |
| Garage/Stellplätze | 1 |
Ihr STREIF Haus wird im KfW-Standard ausgeführt. KfW-Effizienzhaus inkl. Haustechnik aus dem STREIF-Programm in der Ausbaustufe FF+ (Fast-Fertig+) exklusive einer Fundamentplatte.
■ Rohbau (geschlossene Gebäudehülle) mit Fenstern, Haustür, Dacheindeckung
■ Außenfassade inkl. Außenputz, vor Ort komplett fertiggestellt
■ Komplette Blechner-/Spenglerarbeiten
■ lnnen-/Außenwände wärme- und schallgedämmt und mit Gipsfaserplatten geschlossen
■ Geschosstreppe (außer Bungalow)
■ Decken wärme- und schallgedämmt und mit Gipskarton Bauplatten geschlossen
■ Elektroinstallation, einschließlich erforderlichem Zählerschrank und Inbetriebnahme
■ Heizungsanlage inkl. Inbetriebnahme
■ Innenfensterbänke Kunststeinbänke (Gussmarmorbänke) inkl. Einbau
■ Estrich
■ Sanitärräume mit Wand- und Bodenfliesen
■ Sanitärräume mit Sanitärobjekten
■ Inklusive Gutschein für eine Designküche.
Die Innentüren sowie Wand-, Decken- und Bodenbeläge der übrigen Räume sind Eigenleistungen des Bauherren.
STREIF Frischluft-Wärmepumpen-Technologie - inklusive
- Heizen mit frischer Außenluft
- Kein Gasanschluss, kein Öl- oder Pelletlagerraum
- Keine Heizkörper
- Wärmetauscher mit bis zu 85% Wärmerückgewinnung
Die dargestellten Bilder können Sonderausstattungen beinhalten, die nicht im Preis enthalten sind!
zzgl. Ortüblicher Baunebenkosten
Selbstverständlich können wir Ihr Haus auch schlüsselfertig / bezugsfertig errichten.
■ Bodenbeläge, Sockelleisten verlegt
■ Maler- und Tapezierarbeiten
■ Innentüren inkl. Einbau
■ Rohbau (geschlossene Gebäudehülle) mit Fenstern, Haustür, Dacheindeckung
■ Außenfassade inkl. Außenputz, vor Ort komplett fertiggestellt
■ Komplette Blechner-/Spenglerarbeiten
■ lnnen-/Außenwände wärme- und schallgedämmt und mit Gipsfaserplatten geschlossen
■ Geschosstreppe (außer Bungalow)
■ Decken wärme- und schallgedämmt und mit Gipskarton Bauplatten geschlossen
■ Elektroinstallation, einschließlich erforderlichem Zählerschrank und Inbetriebnahme
■ Heizungsanlage inkl. Inbetriebnahme
■ Innenfensterbänke Kunststeinbänke (Gussmarmorbänke) inkl. Einbau
■ Estrich
■ Sanitärräume mit Wand- und Bodenfliesen
■ Sanitärräume mit Sanitärobjekten
■ Inklusive Gutschein für eine Designküche.
Die Innentüren sowie Wand-, Decken- und Bodenbeläge der übrigen Räume sind Eigenleistungen des Bauherren.
STREIF Frischluft-Wärmepumpen-Technologie - inklusive
- Heizen mit frischer Außenluft
- Kein Gasanschluss, kein Öl- oder Pelletlagerraum
- Keine Heizkörper
- Wärmetauscher mit bis zu 85% Wärmerückgewinnung
Die dargestellten Bilder können Sonderausstattungen beinhalten, die nicht im Preis enthalten sind!
zzgl. Ortüblicher Baunebenkosten
Selbstverständlich können wir Ihr Haus auch schlüsselfertig / bezugsfertig errichten.
■ Bodenbeläge, Sockelleisten verlegt
■ Maler- und Tapezierarbeiten
■ Innentüren inkl. Einbau
Sonstige Informationen
STREIF Leistungen sind mehr wert - schon im Grundpreis!
INDIVIDUELLE ARCHITEKTUR
-persönliche Architekten-Planung
-individuelle Grundrissgestaltung ohne Mehrpreis
UNSERE BAUWEISE
-mehrschichtiger diffusionsvariabler Wandaufbau bis U-Wert 0,10 W / m² * K - im Gefach (zwischen den Stielen) gemessen
-hochstabile Innenwand und Konstruktion
-Fenster gesamt: Uw-Wert 0,81 W/m² * K
Glas der Fenster: Ug-Wert 0,6 W/m² * K
-Haustür ab UD-Wert 0,64 W/m² * K
-30 Jahre Garantie auf statisches Tragwerk
-ausschließlich handgemacht in Deutschland
INDIVIDUELLE ARCHITEKTUR
-persönliche Architekten-Planung
-individuelle Grundrissgestaltung ohne Mehrpreis
UNSERE BAUWEISE
-mehrschichtiger diffusionsvariabler Wandaufbau bis U-Wert 0,10 W / m² * K - im Gefach (zwischen den Stielen) gemessen
-hochstabile Innenwand und Konstruktion
-Fenster gesamt: Uw-Wert 0,81 W/m² * K
Glas der Fenster: Ug-Wert 0,6 W/m² * K
-Haustür ab UD-Wert 0,64 W/m² * K
-30 Jahre Garantie auf statisches Tragwerk
-ausschließlich handgemacht in Deutschland
Karte wird geladen...
Objektstandort
72477 Schwenningen
Lage & Infrastruktur
Objektstandort
72477 Schwenningen
Gern können Sie für die Suche nach dem passenden Bauplatz meinen Grundstücksservice nutzen - ich unterstütze Sie dabei, das ideale Grundstück für Ihr Traumhaus zu finden. Der Grundstückspreis ist in dem angegebenen Hauspreis bereits berücksichtigt.
Es handelt sich hierbei um ein reales Grundstück, das sofort bebaut werden kann.
Es handelt sich hierbei um ein reales Grundstück, das sofort bebaut werden kann.
Kontaktanfrage senden
Über den Anbieter
STREIF Haus GmbH
Josef-Streif-Straße 1
54595 Weinsheim
Kontakt
| Telefon | +49 6551 1200 |
| Mobil | +49 157 70255471 |
| Website | www.streif.de |
Ansprechpartner/in
Herr Dennis Käppeler
Weitere Angebote des Anbieters
11
Platz zum Aufwachsen, Raum zum Ankommen - ...
Haus
91220 Schnaittach
Ihr neues Familienkapitel auf 163 m² Vergessen Sie Kompromisse - hier erwartet Sie ein Zuhause, das mit Ihrer Familie mitwächst. Modern, lichtdurchflutet und durchdacht bis ins kleinste Detail. Das Herzstück Ihres ...
737.309 €
Kaufpreis
163 m²
Wohnfläche
6
Zimmer
8
Ankommen. Durchatmen. Zuhause sein - Leben in ...
Haus
90610 Winkelhaid
Dieses zeitgemäße Eigenheim wurde speziell auf die Ansprüche einer jungen Familie abgestimmt. Im Mittelpunkt steht der großzügige Wohn-, Ess- und Kochbereich von etwa 40 m², der durch seine helle und freundliche ...
717.607 €
Kaufpreis
143 m²
Wohnfläche
5
Zimmer
11
Ein Stück Dorfgefühl mitten in Nürnberg - Wohnen in ...
Haus
90475 Nürnberg
Ihr neues Familienkapitel auf 163 m² Vergessen Sie Kompromisse - hier erwartet Sie ein Zuhause, das mit Ihrer Familie mitwächst. Modern, lichtdurchflutet und durchdacht bis ins kleinste Detail. Das Herzstück Ihres ...
763.202 €
Kaufpreis
163 m²
Wohnfläche
5
Zimmer
10
Familienwohnen im Grünen mit Stadtnähe
Haus
90475 Nürnberg
Ihr neues Familienkapitel auf 143 m² Vergessen Sie Kompromisse - hier erwartet Sie ein Zuhause, das mit Ihrer Familie mitwächst. Modern, lichtdurchflutet und durchdacht bis ins kleinste Detail. Das Herzstück Ihres ...
668.553 €
Kaufpreis
143 m²
Wohnfläche
500
Zimmer
10
Familienwohnen mit Weitblick
Haus
90475 Nürnberg
Ihr neues Familienkapitel auf 143 m² Vergessen Sie Kompromisse - hier erwartet Sie ein Zuhause, das mit Ihrer Familie mitwächst. Modern, lichtdurchflutet und durchdacht bis ins kleinste Detail. Das Herzstück Ihres ...
676.764 €
Kaufpreis
143 m²
Wohnfläche
6
Zimmer