STREIF baut Euer perfektes Zuhause
592.976 €
Kaufpreis
140 m²
Wohnfläche
6
Zimmer
immobilien.de Nr.: 9533531
Objektnummer: AM76707103
Kaufpreis
| Kaufpreis | 592.976 € |
Wohnfläche, Grundstück & Bausubstanz
| Wohnfläche | 140 m² |
| Grundstücksfläche | 347 m² |
| Zimmer | 6 |
| Verfügbar ab | keine Angabe |
| Zustand | Erstbezug |
Energie
| Energietyp | KfW-40 |
| Heizungsart | Zentralheizung |
| Energieträger/Befeuerung | Luft-Wärme-Pumpe |
Beschreibung der Immobilie
STREIF-Doppelhausentwurf 1 - im Stadtvillenstil
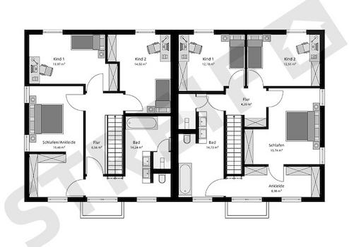
Die Architektur dieses Doppelhauses mit einem eleganten Walmdach strahlt zeitlose Modernität aus. Die Grundrisse sind so konzipiert, dass großzügige und komfortable Räume entstehen. Der offene Wohn-/Ess-/Kochbereich bietet mit seinen 39 m² viel Platz und Helligkeit, dank einer Panorama-Hebeschiebetür und einer doppelflügeligen Terrassentür. Im Erdgeschoss befindet sich ein zusätzliches Zimmer, das flexibel als Homeoffice, Gästezimmer oder Schlafzimmer genutzt werden kann. Das Badezimmer im Erdgeschoss kann optional mit einer Dusche ausgestattet werden, was in Kombination mit dem Zusatzzimmer ein ebenerdiges Wohnen ermöglicht. Im Obergeschoss finden Sie einen Elternbereich mit Ankleidezimmer, zwei Kinderzimmern und ein geräumiges Bad. Aufgrund der Bauweise dieses Doppelhausentwurfs mit Walmdach ist es erforderlich, beide Haushälften gleichzeitig zu errichten.
Preisangaben beziehen sich auf eine Doppelhaushälfte.
Die Architektur dieses Doppelhauses mit einem eleganten Walmdach strahlt zeitlose Modernität aus. Die Grundrisse sind so konzipiert, dass großzügige und komfortable Räume entstehen. Der offene Wohn-/Ess-/Kochbereich bietet mit seinen 39 m² viel Platz und Helligkeit, dank einer Panorama-Hebeschiebetür und einer doppelflügeligen Terrassentür. Im Erdgeschoss befindet sich ein zusätzliches Zimmer, das flexibel als Homeoffice, Gästezimmer oder Schlafzimmer genutzt werden kann. Das Badezimmer im Erdgeschoss kann optional mit einer Dusche ausgestattet werden, was in Kombination mit dem Zusatzzimmer ein ebenerdiges Wohnen ermöglicht. Im Obergeschoss finden Sie einen Elternbereich mit Ankleidezimmer, zwei Kinderzimmern und ein geräumiges Bad. Aufgrund der Bauweise dieses Doppelhausentwurfs mit Walmdach ist es erforderlich, beide Haushälften gleichzeitig zu errichten.
Preisangaben beziehen sich auf eine Doppelhaushälfte.
Ausstattungsmerkmale
| Anzahl der Etagen im Haus | 2 |
| Bad | 1 |
| Terrassen | 1 |
| Barrierefrei |
STREIF-Energiespar-Häuser sind für die Effizienzhaus-Klasse 40* vorbereitet. (*In Abhängigkeit von Gebäudestandort, Gebäudeausrichtung, Fensterflächenanteile, Haustechnik usw. können zusätzliche oder abweichende Leistungen erforderlich werden, die im Zuge der Bauantragsbewertung/-erstellung bewertet werden.)
Gegen Aufpreis erstellen wir eine Ökobilanzierung für Ihr Haus nach QNG durch. Für das Erreichen der Vorgaben des Qualitätssiegels Nachhaltiges Gebäude (QNG) für eine Ökobilanzierung wird zusätzlich eine Photovoltaik-Anlage mit Batteriespeicher benötigt. Mit dem Erfüllen dieser und weiterer Anforderungen wird Ihr Haus nach den neuen KfW-Förderrichtlinien für den Klimafreundlichen Neubau (KFN) förderfähig.
Die Außenwände im Passiv-Haus-Standard und eine sparsame Heiztechnik mit integrierter Wohnraumlüftung und Wärmerückgewinnung, garantieren einen geringen Energieverbrauch und ein fantastisches Raumklima, das insbesondere Allergiker aufatmen lässt.
STREIF Leistungen sind MEHR WERT - schon im Grundpreis enthalten!
- 16-monatige Festpreisgarantie
- Inkl. individuelle Grundrissgestaltung und Raumaufteilung
- Inkl. gedämmte Fundamentplatte
- Inkl. STREIF-Luft-Luft-Wärmepumpen-Technologie mit integrierter Lüftungsanlage mit Wärmerückgewinnung
- Inkl. Haustür von KERA und Fenster von Porta/Kömmerling
- Inkl. Sanitärobjekte von Markenherstellern
- Inkl. Massivholz-Geschosstreppe aus eigener Produktion (entfällt bei Bungalow)
- Inkl. Elektroinstallation u. v. m.
- Inkl. Photovoltaikanlage 7,12 KWP
- Inkl. Batteriespeicher mit 7,70 KWH
Die hohe Wertigkeit und Langlebigkeit eines STREIF-Energiespar-Hauses wird durch zahlreiche Auszeichnungen, Qualitäts- und Gütesiegel unabhängiger Institute und Verbände dokumentiert.
Der Angebotspreis ist inklusive Grundstück und bezieht sich auf die Standard-Ausbaustufe Fast-Fertig-Plus. Ihre Eigenleistungen: Spachtel-,Tapezier- und Malerarbeiten, Bodenbeläge, Innentüren.
Baunebenkosten fallen zuzüglich an.
Der Verkauf des Grundstücks erfolgt über einen unserer Netzwerkpartner.
Bilder können evtl. Anbauteile, Carports, Balkone, Gauben usw. zeigen, die nicht im Angebotspreis enthalten sind. Änderungen und Irrtümer vorbehalten.
Gegen Aufpreis erstellen wir eine Ökobilanzierung für Ihr Haus nach QNG durch. Für das Erreichen der Vorgaben des Qualitätssiegels Nachhaltiges Gebäude (QNG) für eine Ökobilanzierung wird zusätzlich eine Photovoltaik-Anlage mit Batteriespeicher benötigt. Mit dem Erfüllen dieser und weiterer Anforderungen wird Ihr Haus nach den neuen KfW-Förderrichtlinien für den Klimafreundlichen Neubau (KFN) förderfähig.
Die Außenwände im Passiv-Haus-Standard und eine sparsame Heiztechnik mit integrierter Wohnraumlüftung und Wärmerückgewinnung, garantieren einen geringen Energieverbrauch und ein fantastisches Raumklima, das insbesondere Allergiker aufatmen lässt.
STREIF Leistungen sind MEHR WERT - schon im Grundpreis enthalten!
- 16-monatige Festpreisgarantie
- Inkl. individuelle Grundrissgestaltung und Raumaufteilung
- Inkl. gedämmte Fundamentplatte
- Inkl. STREIF-Luft-Luft-Wärmepumpen-Technologie mit integrierter Lüftungsanlage mit Wärmerückgewinnung
- Inkl. Haustür von KERA und Fenster von Porta/Kömmerling
- Inkl. Sanitärobjekte von Markenherstellern
- Inkl. Massivholz-Geschosstreppe aus eigener Produktion (entfällt bei Bungalow)
- Inkl. Elektroinstallation u. v. m.
- Inkl. Photovoltaikanlage 7,12 KWP
- Inkl. Batteriespeicher mit 7,70 KWH
Die hohe Wertigkeit und Langlebigkeit eines STREIF-Energiespar-Hauses wird durch zahlreiche Auszeichnungen, Qualitäts- und Gütesiegel unabhängiger Institute und Verbände dokumentiert.
Der Angebotspreis ist inklusive Grundstück und bezieht sich auf die Standard-Ausbaustufe Fast-Fertig-Plus. Ihre Eigenleistungen: Spachtel-,Tapezier- und Malerarbeiten, Bodenbeläge, Innentüren.
Baunebenkosten fallen zuzüglich an.
Der Verkauf des Grundstücks erfolgt über einen unserer Netzwerkpartner.
Bilder können evtl. Anbauteile, Carports, Balkone, Gauben usw. zeigen, die nicht im Angebotspreis enthalten sind. Änderungen und Irrtümer vorbehalten.
Sonstige Informationen
Zur Realisierung des Bauvorhabens und zur Bezugsfertigkeit des Gebäudes kommen zzgl. noch Baunebenkosten und Fertigstellungskosten.
Karte wird geladen...
Objektstandort
76707 Hambrücken
Lage & Infrastruktur
Objektstandort
76707 Hambrücken
Hambrücken ist eine selbstständige Gemeinde im Nordwesten des Landkreises Karlsruhe in Baden-Württemberg. Geographisch liegt sie in der Hardt-Ebene und ist fast vollständig von ausgedehnten Waldgebieten umgeben, was ihr den charmanten Beinamen "Waldgemeinde" eingebracht hat. Die liegt verkehrsgünstig im Dreieck zwischen Bruchsal, Mannheim und Karlsruhe.
Die Autobahn A5 (Anschlussstelle Kronau/Bad Schönborn) ist nur wenige Kilometer entfernt. Zudem liegt die Gemeinde an der Landesstraße L556, die direkt nach Bruchsal führt. Busverbindungen binden Hambrücken an die nahegelegenen Bahnhöfe in Waghäusel und Bruchsal an. Von dort besteht Anschluss an die S-Bahn Rhein-Neckar sowie das Karlsruher Stadtbahnnetz.
Kindergärten und Kindertagesstätten sichern die Betreuung der jüngsten Bürgerinnen und Bürger. Die Gemeinde verfügt über eine eigene Grundschule (Pfarrer-Graf-Schule). Weiterführende Schulen befinden sich in den Nachbarstädten Waghäusel, Forst oder Bruchsal und sind mit dem Schulbus gut erreichbar.
Der umliegende Wald bietet ein weitläufiges Netz an Wander-, Lauf- und Radwegen.
Ein lokales Highlight ist der Vogelpark Hambrücken, der nicht nur seltene Vogelarten zeigt, sondern mit seinem Spielplatz und der Gastronomie ein beliebtes Ausflugsziel für Familien aus der ganzen Region ist. In der Nähe befindet sich die Saalbachniederung, ein bedeutendes Naturschutzgebiet, das Lebensraum für viele seltene Tier- und Pflanzenarten bietet. Das gesellschaftliche Jahr wird von Festen wie dem Straßenfest oder der traditionellen Kerwe geprägt. Die Gemeinde ist zudem eine Hochburg der regionalen Fastnacht. Über 30 Vereine in den Bereichen Sport, Musik, Kultur und Natur sorgen für einen starken sozialen Zusammenhalt und bieten vielfältige Integrationsmöglichkeiten für Neuzugezogene.
Eine ruhige Wohnlage und die schnelle Erreichbarkeit der Zentren Bruchsal und Karlsruhe machen Hambrücken zu einem attraktiven Wohnort "mitten im Wald", ohne auf die Vorzüge einer modernen Infrastruktur und die Nähe zur Stadt verzichten zu müssen.
Die Autobahn A5 (Anschlussstelle Kronau/Bad Schönborn) ist nur wenige Kilometer entfernt. Zudem liegt die Gemeinde an der Landesstraße L556, die direkt nach Bruchsal führt. Busverbindungen binden Hambrücken an die nahegelegenen Bahnhöfe in Waghäusel und Bruchsal an. Von dort besteht Anschluss an die S-Bahn Rhein-Neckar sowie das Karlsruher Stadtbahnnetz.
Kindergärten und Kindertagesstätten sichern die Betreuung der jüngsten Bürgerinnen und Bürger. Die Gemeinde verfügt über eine eigene Grundschule (Pfarrer-Graf-Schule). Weiterführende Schulen befinden sich in den Nachbarstädten Waghäusel, Forst oder Bruchsal und sind mit dem Schulbus gut erreichbar.
Der umliegende Wald bietet ein weitläufiges Netz an Wander-, Lauf- und Radwegen.
Ein lokales Highlight ist der Vogelpark Hambrücken, der nicht nur seltene Vogelarten zeigt, sondern mit seinem Spielplatz und der Gastronomie ein beliebtes Ausflugsziel für Familien aus der ganzen Region ist. In der Nähe befindet sich die Saalbachniederung, ein bedeutendes Naturschutzgebiet, das Lebensraum für viele seltene Tier- und Pflanzenarten bietet. Das gesellschaftliche Jahr wird von Festen wie dem Straßenfest oder der traditionellen Kerwe geprägt. Die Gemeinde ist zudem eine Hochburg der regionalen Fastnacht. Über 30 Vereine in den Bereichen Sport, Musik, Kultur und Natur sorgen für einen starken sozialen Zusammenhalt und bieten vielfältige Integrationsmöglichkeiten für Neuzugezogene.
Eine ruhige Wohnlage und die schnelle Erreichbarkeit der Zentren Bruchsal und Karlsruhe machen Hambrücken zu einem attraktiven Wohnort "mitten im Wald", ohne auf die Vorzüge einer modernen Infrastruktur und die Nähe zur Stadt verzichten zu müssen.
Kontaktanfrage senden
Über den Anbieter
STREIF Haus GmbH
Josef-Streif-Straße 1
54595 Weinsheim
Kontakt
| Telefon | +49 176 43417486 |
| Website | www.streif.de |
Ansprechpartner/in
Achim Machmeier
Weitere Angebote des Anbieters
20
Sehr schöne Stadtvilla in erstklassiger Lage von St. ...
Haus
66386 St. Ingbert
Viel Platz und von Licht erfüllte Räume bietet diese traumhafte Stadtvilla. Im Erdgeschoss bildet der offen gestaltete Wohn-, Ess- und Kochbereich mit 49 m² das Herzstück des Hauses. Der gesamte Wohnbereich wird von ...
608.000 €
Kaufpreis
186 m²
Wohnfläche
5
Zimmer
30
STREIF baut Euer perfektes Zuhause
Haus
76707 Hambrücken
Das zweieinhalbgeschossige Mehrfamilienhaus mit zwei Wohnungen überzeugt mit einer klassisch eleganten Architektur mit Satteldach und zwei behaglichen Terrassen. Der Hausentwurf kann mit Stahlbalkonen an der ...
1.293.936 €
Kaufpreis
358 m²
Wohnfläche
18
Zimmer
30
STREIF baut Euer perfektes Zuhause
Haus
76707 Hambrücken
Das zweigeschossige Mehrfamilienhaus mit zwei Wohnungen überzeugt mit einer klassisch eleganten Architektur mit Walmdach und zwei behaglichen Terrassen. Der Hausentwurf kann mit Stahlbalkonen an der Gartenseite ...
1.139.664 €
Kaufpreis
301 m²
Wohnfläche
18
Zimmer
30
STREIF baut Euer perfektes Zuhause
Haus
76707 Hambrücken
Das zweigeschossige Mehrfamilienhaus mit zwei Wohnungen überzeugt mit einer klassisch eleganten Architektur mit Walmdach und einer behaglichen Terrasse. Der Hausentwurf kann mit einem Carport und einer darüberliegenden ...
828.414 €
Kaufpreis
186 m²
Wohnfläche
10
Zimmer
17
STREIF baut Euer perfektes Zuhause
Haus
76707 Hambrücken
STREIF-Villa 4: Exklusives Wohnen mit Flachdach, zwei Erkern, Galerie und Dachterrasse Der Entwurf der exklusiven STREIF-Villa 4 bietet seinen Bewohnern zahlreiche luxuriöse Merkmale, darunter eine zweigeschossige ...
950.650 €
Kaufpreis
210 m²
Wohnfläche
8
Zimmer