STREIF baut Euer perfektes Zuhause
465.080 €
Kaufpreis
113 m²
Wohnfläche
4
Zimmer
immobilien.de Nr.: 9533519
Objektnummer: AM74925105
Kaufpreis
| Kaufpreis | 465.080 € |
Wohnfläche, Grundstück & Bausubstanz
| Wohnfläche | 113 m² |
| Grundstücksfläche | 400 m² |
| Zimmer | 4 |
| Verfügbar ab | keine Angabe |
| Zustand | Erstbezug |
Energie
| Energietyp | KfW-40 |
| Heizungsart | Zentralheizung |
| Energieträger/Befeuerung | Luft-Wärme-Pumpe |
Beschreibung der Immobilie
Bungalow mit Satteldach mit flexiblem Raumkonzept
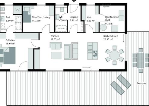
Entdecken Sie die Möglichkeiten, Ihr Traumhaus als Bungalow mit einem Satteldach zu realisieren und erleben Sie eine zeitgemäße Architektur gepaart mit einem einzigartigen Raumkonzept. Der Wohn-/Ess- und Kochbereich erstreckt sich über großzügige 44 m² und bietet höchsten Komfort. Eine halbhohe Wand, die optional auch raumhoch sein kann, trennt geschickt den Koch- vom Wohnbereich und schafft so eine harmonische Balance zwischen gemeinsamen Beisammensein und klarer Struktur. Große Panoramafenster sowie eine geräumige Panorama-Hebeschiebetür sorgen für ein helles und offenes Ambiente, das Innen- und Außenbereich harmonisch miteinander verbindet. Der Schlafbereich überzeugt mit großzügiger Stellfläche für Schränke und einem direkten Zugang zum geräumigen Badezimmer. Ein zusätzlicher Raum, flexibel als Büro, Gäste- oder Hobbyraum nutzbar, sowie ein zweites Badezimmer mit optionaler Dusche, runden das Raumangebot ab. Auf Anfrage kann der Grundriss des Bungalows auch barrierefrei gestaltet werden, um allen individuellen Bedürfnissen gerecht zu werden.
Entdecken Sie die Möglichkeiten, Ihr Traumhaus als Bungalow mit einem Satteldach zu realisieren und erleben Sie eine zeitgemäße Architektur gepaart mit einem einzigartigen Raumkonzept. Der Wohn-/Ess- und Kochbereich erstreckt sich über großzügige 44 m² und bietet höchsten Komfort. Eine halbhohe Wand, die optional auch raumhoch sein kann, trennt geschickt den Koch- vom Wohnbereich und schafft so eine harmonische Balance zwischen gemeinsamen Beisammensein und klarer Struktur. Große Panoramafenster sowie eine geräumige Panorama-Hebeschiebetür sorgen für ein helles und offenes Ambiente, das Innen- und Außenbereich harmonisch miteinander verbindet. Der Schlafbereich überzeugt mit großzügiger Stellfläche für Schränke und einem direkten Zugang zum geräumigen Badezimmer. Ein zusätzlicher Raum, flexibel als Büro, Gäste- oder Hobbyraum nutzbar, sowie ein zweites Badezimmer mit optionaler Dusche, runden das Raumangebot ab. Auf Anfrage kann der Grundriss des Bungalows auch barrierefrei gestaltet werden, um allen individuellen Bedürfnissen gerecht zu werden.
Ausstattungsmerkmale
| Anzahl der Etagen im Haus | 1 |
| Bad | 1 |
| Terrassen | 1 |
| Barrierefrei |
STREIF-Häuser sind Energiesparhäuser. Die Außenwände im Passiv-Haus-Standard und eine sparsame Heiztechnik mit integrierter Wohnraumlüftung und Wärmerückgewinnung, garantieren einen geringen Energieverbrauch und ein fantastisches Raumklima, das insbesondere Allergiker aufatmen lässt.
STREIF Leistungen sind MEHR WERT - schon im Grundpreis enthalten!
- 20-monatige Festpreisgarantie
- KfW-Energieeffizienzhaus 40 im Standard*
- Inkl. individueller Grundrissgestaltung und Raumaufteilung
- Inkl. gedämmter Fundamentplatte
- Inkl. STREIF-Luft-Luft-Wärmepumpen-Technologie mit integrierter Lüftungsanlage mit Wärmerückgewinnung
- Inkl. Haustür von KERA und Fenster von Porta/Kömmerling
- Inkl. Sanitärobjekte von Markenherstellern
- Inkl. Elektroinstallation
- Inkl. Photovoltaikanlage 7,12 KWP
- Inkl. Batteriespeicher mit 7,70 KWH
- Inkl. Baubetreuung u.v.m.
* In Abhängigkeit von Gebäudestandort, Gebäudeausrichtung, Fensterflächenanteile usw. können zusätzliche oder abweichende Leistungen erforderlich werden, die im Zuge der Bauantragsbewertung/-erstellung geprüft werden. Das Erreichen der Grenzwerte des QNG als Voraussetzung zum KFN ist bei einem Bungalow nur durch zusätzliche Maßnahmen (mehr Netto-Raumfläche = zusätzliches Geschoss und/oder Dachboden,
größere Photovoltaik-Anlage, ...) erreichbar. Hierzu ist im Vorfeld der Planung eine separate Beratung sowie zusätzlich die gemeinsame Festlegung der nachhaltigen Planungsziele erforderlich. Die Möglichkeit zur Erstellung der Ökobilanzierung durch STREIF muss separat je Bauvorhaben geprüft werden.
Die hohe Wertigkeit und Langlebigkeit eines STREIF-Energiespar-Hauses wird durch zahlreiche Auszeichnungen, Qualitäts- und Gütesiegel unabhängiger Institute und Verbände dokumentiert.
Der Angebotspreis ist inklusive Grundstück und bezieht sich auf die Standard-Ausbaustufe Fast-Fertig-Plus. Ihre Eigenleistungen: Spachtel-,Tapezier- und Malerarbeiten, Bodenbeläge, Innentüren.
Baunebenkosten fallen zuzüglich an.
Der Verkauf des Grundstücks erfolgt über einen unserer Netzwerkpartner.
Bilder können evtl. Anbauteile, Carports, Balkone, Gauben usw. zeigen, die nicht im Angebotspreis enthalten sind. Änderungen und Irrtümer vorbehalten.
STREIF Leistungen sind MEHR WERT - schon im Grundpreis enthalten!
- 20-monatige Festpreisgarantie
- KfW-Energieeffizienzhaus 40 im Standard*
- Inkl. individueller Grundrissgestaltung und Raumaufteilung
- Inkl. gedämmter Fundamentplatte
- Inkl. STREIF-Luft-Luft-Wärmepumpen-Technologie mit integrierter Lüftungsanlage mit Wärmerückgewinnung
- Inkl. Haustür von KERA und Fenster von Porta/Kömmerling
- Inkl. Sanitärobjekte von Markenherstellern
- Inkl. Elektroinstallation
- Inkl. Photovoltaikanlage 7,12 KWP
- Inkl. Batteriespeicher mit 7,70 KWH
- Inkl. Baubetreuung u.v.m.
* In Abhängigkeit von Gebäudestandort, Gebäudeausrichtung, Fensterflächenanteile usw. können zusätzliche oder abweichende Leistungen erforderlich werden, die im Zuge der Bauantragsbewertung/-erstellung geprüft werden. Das Erreichen der Grenzwerte des QNG als Voraussetzung zum KFN ist bei einem Bungalow nur durch zusätzliche Maßnahmen (mehr Netto-Raumfläche = zusätzliches Geschoss und/oder Dachboden,
größere Photovoltaik-Anlage, ...) erreichbar. Hierzu ist im Vorfeld der Planung eine separate Beratung sowie zusätzlich die gemeinsame Festlegung der nachhaltigen Planungsziele erforderlich. Die Möglichkeit zur Erstellung der Ökobilanzierung durch STREIF muss separat je Bauvorhaben geprüft werden.
Die hohe Wertigkeit und Langlebigkeit eines STREIF-Energiespar-Hauses wird durch zahlreiche Auszeichnungen, Qualitäts- und Gütesiegel unabhängiger Institute und Verbände dokumentiert.
Der Angebotspreis ist inklusive Grundstück und bezieht sich auf die Standard-Ausbaustufe Fast-Fertig-Plus. Ihre Eigenleistungen: Spachtel-,Tapezier- und Malerarbeiten, Bodenbeläge, Innentüren.
Baunebenkosten fallen zuzüglich an.
Der Verkauf des Grundstücks erfolgt über einen unserer Netzwerkpartner.
Bilder können evtl. Anbauteile, Carports, Balkone, Gauben usw. zeigen, die nicht im Angebotspreis enthalten sind. Änderungen und Irrtümer vorbehalten.
Sonstige Informationen
Zur Realisierung des Bauvorhabens und zur Bezugsfertigkeit des Gebäudes kommen zzgl. noch Baunebenkosten und Fertigstellungskosten.
Karte wird geladen...
Objektstandort
74925 Epfenbach
Lage & Infrastruktur
Objektstandort
74925 Epfenbach
Epfenbach ist eine eigenständige Gemeinde im Osten des Rhein-Neckar-Kreises in Baden-Württemberg. Sie liegt in der sanft hügeligen Landschaft des Kraichgaus, direkt am Übergang zum Kleinen Odenwald. Die Gemeinde befindet sich etwa 25 Kilometer östlich von Heidelberg und 12 Kilometer nördlich von Sinsheim. Die Höhenlage sorgt für ein gesundes Klima und bietet viele schöne Ausblicke über die "Badische Toskana".
Über die Landesstraße L530 ist Epfenbach an die Bundesstraße B292 (Richtung Mosbach/Sinsheim) und die B45 (Richtung Heidelberg) angebunden. Die Autobahn A6 (Anschlussstelle Sinsheim) ist gut erreichbar. Buslinien des Verkehrsverbundes Rhein-Neckar (VRN) verbinden Epfenbach mit den S-Bahn-Knotenpunkten in Meckesheim, Sinsheim und Neckarbischofsheim.
Kindergärten und Kindertagesstätten gewährleisten die Betreuung der jüngsten Bürgerinnen und Bürger. Die Gemeinde verfügt über eine eigene Grundschule (Merian-Schule). Weiterführende Schulen (Realschulen und Gymnasien) befinden sich in den Nachbarstädten Waibstadt, Neckarbischofsheim und Sinsheim und sind sehr gut mit Schulbussen erreichbar.
In einem der ältesten Fachwerkhäuser des Ortes ist das Heimatmuseum untergebracht. Es zeigt eindrucksvoll das bäuerliche Leben und Handwerk vergangener Jahrhunderte. Die Epfenbacher Kerwe (Kirchweih) am ersten Oktoberwochenende ist weit über die Ortsgrenzen hinaus bekannt und ein Highlight im regionalen Veranstaltungskalender. Auch das Marktplatzfest im Sommer zieht viele Besucher an. Die Streuobstwiesen rund um den Ort sind nicht nur ökologisch wertvoll, sondern bieten zur Blütezeit im Frühjahr einen malerischen Anblick.
Die Gemeinde ist Ausgangspunkt für zahlreiche Touren. Besonders beliebt ist der Rundwanderweg durch den angrenzenden großen Wald, der direkt in den Kleinen Odenwald führt. Mit über 30 Vereinen bietet Epfenbach ein enormes Spektrum an Freizeitgestaltung - von Sport über Musik bis hin zu Naturschutzgruppen. Die Vereine sind der soziale Ankerpunkt der Gemeinde. Ein modernes Sportzentrum mit Fußballplätzen, Tennisanlage und Turnhalle steht den Bürgern zur Verfügung.
Die idyllische Landschaft des Kraichgaus, ein hoher Freizeitwert und ein reges Vereinsleben sowie die gute Infrastruktur machen Epfenbach zu einem attraktiven Wohnort.
Über die Landesstraße L530 ist Epfenbach an die Bundesstraße B292 (Richtung Mosbach/Sinsheim) und die B45 (Richtung Heidelberg) angebunden. Die Autobahn A6 (Anschlussstelle Sinsheim) ist gut erreichbar. Buslinien des Verkehrsverbundes Rhein-Neckar (VRN) verbinden Epfenbach mit den S-Bahn-Knotenpunkten in Meckesheim, Sinsheim und Neckarbischofsheim.
Kindergärten und Kindertagesstätten gewährleisten die Betreuung der jüngsten Bürgerinnen und Bürger. Die Gemeinde verfügt über eine eigene Grundschule (Merian-Schule). Weiterführende Schulen (Realschulen und Gymnasien) befinden sich in den Nachbarstädten Waibstadt, Neckarbischofsheim und Sinsheim und sind sehr gut mit Schulbussen erreichbar.
In einem der ältesten Fachwerkhäuser des Ortes ist das Heimatmuseum untergebracht. Es zeigt eindrucksvoll das bäuerliche Leben und Handwerk vergangener Jahrhunderte. Die Epfenbacher Kerwe (Kirchweih) am ersten Oktoberwochenende ist weit über die Ortsgrenzen hinaus bekannt und ein Highlight im regionalen Veranstaltungskalender. Auch das Marktplatzfest im Sommer zieht viele Besucher an. Die Streuobstwiesen rund um den Ort sind nicht nur ökologisch wertvoll, sondern bieten zur Blütezeit im Frühjahr einen malerischen Anblick.
Die Gemeinde ist Ausgangspunkt für zahlreiche Touren. Besonders beliebt ist der Rundwanderweg durch den angrenzenden großen Wald, der direkt in den Kleinen Odenwald führt. Mit über 30 Vereinen bietet Epfenbach ein enormes Spektrum an Freizeitgestaltung - von Sport über Musik bis hin zu Naturschutzgruppen. Die Vereine sind der soziale Ankerpunkt der Gemeinde. Ein modernes Sportzentrum mit Fußballplätzen, Tennisanlage und Turnhalle steht den Bürgern zur Verfügung.
Die idyllische Landschaft des Kraichgaus, ein hoher Freizeitwert und ein reges Vereinsleben sowie die gute Infrastruktur machen Epfenbach zu einem attraktiven Wohnort.
Kontaktanfrage senden
Über den Anbieter
STREIF Haus GmbH
Josef-Streif-Straße 1
54595 Weinsheim
Kontakt
| Telefon | +49 176 43417486 |
| Website | www.streif.de |
Ansprechpartner/in
Achim Machmeier
Weitere Angebote des Anbieters
20
Sehr schöne Stadtvilla in erstklassiger Lage von St. ...
Haus
66386 St. Ingbert
Viel Platz und von Licht erfüllte Räume bietet diese traumhafte Stadtvilla. Im Erdgeschoss bildet der offen gestaltete Wohn-, Ess- und Kochbereich mit 49 m² das Herzstück des Hauses. Der gesamte Wohnbereich wird von ...
608.000 €
Kaufpreis
186 m²
Wohnfläche
5
Zimmer
30
STREIF baut Euer perfektes Zuhause
Haus
76707 Hambrücken
Das zweieinhalbgeschossige Mehrfamilienhaus mit zwei Wohnungen überzeugt mit einer klassisch eleganten Architektur mit Satteldach und zwei behaglichen Terrassen. Der Hausentwurf kann mit Stahlbalkonen an der ...
1.293.936 €
Kaufpreis
358 m²
Wohnfläche
18
Zimmer
30
STREIF baut Euer perfektes Zuhause
Haus
76707 Hambrücken
Das zweigeschossige Mehrfamilienhaus mit zwei Wohnungen überzeugt mit einer klassisch eleganten Architektur mit Walmdach und zwei behaglichen Terrassen. Der Hausentwurf kann mit Stahlbalkonen an der Gartenseite ...
1.139.664 €
Kaufpreis
301 m²
Wohnfläche
18
Zimmer
30
STREIF baut Euer perfektes Zuhause
Haus
76707 Hambrücken
Das zweigeschossige Mehrfamilienhaus mit zwei Wohnungen überzeugt mit einer klassisch eleganten Architektur mit Walmdach und einer behaglichen Terrasse. Der Hausentwurf kann mit einem Carport und einer darüberliegenden ...
828.414 €
Kaufpreis
186 m²
Wohnfläche
10
Zimmer
17
STREIF baut Euer perfektes Zuhause
Haus
76707 Hambrücken
STREIF-Villa 4: Exklusives Wohnen mit Flachdach, zwei Erkern, Galerie und Dachterrasse Der Entwurf der exklusiven STREIF-Villa 4 bietet seinen Bewohnern zahlreiche luxuriöse Merkmale, darunter eine zweigeschossige ...
950.650 €
Kaufpreis
210 m²
Wohnfläche
8
Zimmer