Attraktive 2 Zimmer-Wohnung auf Erbpacht mit Terrasse und Tiefgaragenstellplatz inklusive
229.000 €
Kaufpreis
61 m²
Wohnfläche
2
Zimmer
immobilien.de Nr.: 9530955
Objektnummer: 836022
Kaufpreis
| Kaufpreis | 229.000 € |
| Hausgeld | 456 € |
| Maklerprovision | 3,57 % (inkl. MwSt.) |
Wohnfläche, Grundstück & Bausubstanz
| Wohnfläche | 61 m² |
| Zimmer | 2 |
| Baujahr | 1973 |
| Verfügbar ab | nach absprache |
| Zustand | Gepflegt |
Energie
| Energieausweistyp | Verbrauch |
| Ausstellungsdatum | 30. 01. 2018 |
| Baujahr (laut Energieausweis) | 1973 |
| Energieeffizienzklasse | C |
| Energieverbrauchkennwert | 95 kWh/(m²*a) |
| Heizungsart | Zentralheizung |
| Wesentlicher Energieträger | Gas |
| Energieträger/Befeuerung | Gas |
Beschreibung der Immobilie
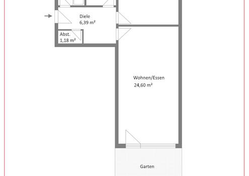
Diese äußerst attraktive 2 Zimmer-Erdgeschoss-Wohnung befindet sich auf einem Erbpachtgrundstück mit einer Laufzeit bis zum 30.11.2069. Auf ca. 61,31 m² Wohnfläche überzeugt die Immobilie durch einen besonders durchdachten Grundriss und ein angenehmes Wohnambiente.
Bereits beim Betreten der Wohnung empfängt Sie ein großzügiger Eingangsbereich mit ausreichend Platz für Garderobe und zusätzlichen Stauraum. Die separate Küche ist mit einer Einbauküche ausgestattet, die im Kaufpreis enthalten ist. Das lichtdurchflutete Wohnzimmer bildet das Herzstück der Wohnung und bietet direkten Zugang zur Terrasse mit Süd/West-Ausrichtung.
Ein gut geschnittenes Schlafzimmer sowie eine praktische Abstellkammer innerhalb der Wohnung ergänzen das Raumangebot optimal. Zudem gehören ein Kellerraum sowie ein Tiefgaragenstellplatz zur Wohnung und sind ebenfalls im Kaufpreis enthalten.
Der monatliche Erbpachtzins ist bereits im Wohngeld in Höhe von derzeit 456,- Euro enthalten.
Die ruhige Lage ohne störenden Straßenlärm unterstreicht die hohe Wohnqualität und macht dieses Angebot besonders interessant für Singles oder Paare, die Wert auf Komfort und eine angenehme Wohnatmosphäre legen.
Weitere Angebote unter www.GARANT-IMMO.de
Bereits beim Betreten der Wohnung empfängt Sie ein großzügiger Eingangsbereich mit ausreichend Platz für Garderobe und zusätzlichen Stauraum. Die separate Küche ist mit einer Einbauküche ausgestattet, die im Kaufpreis enthalten ist. Das lichtdurchflutete Wohnzimmer bildet das Herzstück der Wohnung und bietet direkten Zugang zur Terrasse mit Süd/West-Ausrichtung.
Ein gut geschnittenes Schlafzimmer sowie eine praktische Abstellkammer innerhalb der Wohnung ergänzen das Raumangebot optimal. Zudem gehören ein Kellerraum sowie ein Tiefgaragenstellplatz zur Wohnung und sind ebenfalls im Kaufpreis enthalten.
Der monatliche Erbpachtzins ist bereits im Wohngeld in Höhe von derzeit 456,- Euro enthalten.
Die ruhige Lage ohne störenden Straßenlärm unterstreicht die hohe Wohnqualität und macht dieses Angebot besonders interessant für Singles oder Paare, die Wert auf Komfort und eine angenehme Wohnatmosphäre legen.
Weitere Angebote unter www.GARANT-IMMO.de
Ausstattungsmerkmale
| Küche | Einbauküche |
| Boden | Fliesen, Kunststoff |
| Terrassen | 1 |
Sonstige Informationen
Das Gebäude befindet sich auf einem Erbbaugrundstück.
Der derzeit jährlich zu zahlende Erbbauzins beträgt EUR 1.000,00.
Die Restlaufzeit des Erbbauvertrages beträgt 43 Jahre.
Der derzeit jährlich zu zahlende Erbbauzins beträgt EUR 1.000,00.
Die Restlaufzeit des Erbbauvertrages beträgt 43 Jahre.
Karte wird geladen...
Objektstandort
82110 Germering
Lage & Infrastruktur
Objektstandort
82110 Germering
Die Wohnung befindet sich in ruhiger und dennoch gut angebundener Lage von Germering im westlichen Umland von München.
Einkaufsmöglichkeiten des täglichen Bedarfs, Ärzte und Apotheken sind in ca. 15 Gehminuten oder in ca. 5 Fahrminuten erreichbar. Eine Bushaltestelle befindet sich in ca. 4 Gehminuten Entfernung, die S-Bahn-Station S-Bahnhof Germering-Unterpfaffenhofen (S8) ist in ca. 15 Gehminuten erreichbar und bietet eine schnelle Verbindung in die Münchner Innenstadt.
Die Autobahn A96 (Autobahn München Lindau) erreichen Sie in ca. 5 Fahrminuten. Grünflächen und Freizeitmöglichkeiten befinden sich ebenfalls in fußläufiger Umgebung.
Die Lage vereint ruhiges Wohnen mit einer sehr guten Infrastruktur.
Einkaufsmöglichkeiten des täglichen Bedarfs, Ärzte und Apotheken sind in ca. 15 Gehminuten oder in ca. 5 Fahrminuten erreichbar. Eine Bushaltestelle befindet sich in ca. 4 Gehminuten Entfernung, die S-Bahn-Station S-Bahnhof Germering-Unterpfaffenhofen (S8) ist in ca. 15 Gehminuten erreichbar und bietet eine schnelle Verbindung in die Münchner Innenstadt.
Die Autobahn A96 (Autobahn München Lindau) erreichen Sie in ca. 5 Fahrminuten. Grünflächen und Freizeitmöglichkeiten befinden sich ebenfalls in fußläufiger Umgebung.
Die Lage vereint ruhiges Wohnen mit einer sehr guten Infrastruktur.
Kontaktanfrage senden
Über den Anbieter
Garant Immobilien AG
Wilhelmstr.5
70182 Stuttgart
Kontakt
| Telefon | 089/78 74 790 |
| Fax | 089/78 70 78 55 |
| Website | www.garant-immo.de |
Ansprechpartner/in
Büro München
Weitere Angebote des Anbieters
2
Ihre Chance - Sehr gepflegtes Einfamilienhaus mit ...
Haus
97714 Oerlenbach
Das äußerst gepflegte Einfamilienhaus überzeugt durch eine durchdachte Raumaufteilung und ein angenehmes Wohnambiente. Es verfügt über ein großzügiges Wohnzimmer, eine Küche mit separatem Essbereich sowie zwei ...
299.000 €
Kaufpreis
170 m²
Wohnfläche
8
Zimmer
9
Charmante Doppelhaushälfte mit Garten, Dachstudio und ...
Haus
81737 München
In einer angenehm ruhigen Wohnlage von München-Perlach präsentiert sich diese gepflegte Doppelhaushälfte als ideales Zuhause für Familien oder Paare mit Platzbedarf. Das Haus wurde über viele Jahrzehnte von den ...
1.000.000 €
Kaufpreis
161 m²
Wohnfläche
4,5
Zimmer
8
Baureifes Juwel in Mittelstetten-Süd: Grundstück - ...
Grundstück
82293 Mittelstetten
Suchen Sie den idealen Ort für Ihr neues Zuhause? Dieses attraktive und voll erschlossene Grundstück in Mittelstetten bietet Ihnen die perfekte Grundlage für Ihr Bauvorhaben. Auf einer Fläche von ca. 529 qm haben Sie ...
350.000 €
Kaufpreis
529 m²
Grundstücksfläche
7
Rarität in Bad Füssing! Großzügiges Einfamilienhaus ...
Haus
94072 Bad Füssing
Willkommen im Herzen von Bad Füssing! Diese außergewöhnliche Immobilie in absoluter Bestlage (Kurzone 1) ist ein echter Verwandlungskünstler. Auf einem großzügigen Grundstück von ca. 810 qm bietet dieses massiv gebaute ...
557.000 €
Kaufpreis
210 m²
Wohnfläche
7
Zimmer
12
Herziges Baugrundstück für den Häuslebau in naturnaher ...
Grundstück
79872 Bernau
Verlieben Sie sich wieder neu! Dieses besondere Baugrundstück in Bernau lässt Ihre Frühlingsgefühle erwachen. Auf ca. 500 qm in ländlicher, ruhiger und absoluter Wohlfühlatmosphäre liegt dieses tolle, Grundstück und ...
49.000 €
Kaufpreis
500 m²
Grundstücksfläche