Tolle großzügige 2-Zi Wohnung in ruhiger Lage Sinsheim-Hilsbach
800 €
Kaltmiete (netto)
72,83 m²
Wohnfläche
2
Zimmer
immobilien.de Nr.: 9530264
Objektnummer: 436954
Dateien
Mietpreis & Nebenkosten
| Kaltmiete (netto) | 800 € |
| Nebenkosten | 190 € |
| Heizkosten enthalten | Ja |
| Kaution | 2.400 € |
Wohnfläche, Grundstück & Bausubstanz
| Wohnfläche | 72,83 m² |
| Zimmer | 2 |
| Baujahr | 2011 |
| Verfügbar ab | nach Absprache |
Energie
| Energieausweistyp | Bedarfsausweis |
| Energieeffizienzklasse | D |
| Endenergiebedarf | 116 |
| Heizungsart | Zentralheizung |
| Energieträger/Befeuerung | Öl |
Beschreibung der Immobilie
In einem gepflegten Mehrfamilienhaus mit nur sechs Wohneinheiten in angenehmer und ruhiger Wohnlage von Sinsheim-Hilsbach steht diese helle und gut geschnittene Wohnung zur Vermietung. Die Wohnung überzeugt durch eine klassische Raumaufteilung und großzügigen Zimmern mit hohem Wohnwert.
Ideal für Singles oder Paare.
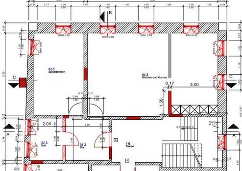
Raumaufteilung
Die Wohnung verfügt über eine klassische und funktionale Raumaufteilung. Vom Flur aus sind alle Räume gut erreichbar.
Auf Wunsch kann die Trennwand zwischen Küche und Wohn-/Esszimmer entfernt werden, sodass ein moderner offener Wohn- und Kochbereich entsteht. Dies kann die Wohnung deutlich aufwerten und ein großzügigeres Raumgefühl schaffen.
Das Badezimmer ist funktional geschnitten und bietet ausreichend Platz für den Alltag.
Ideal für Singles oder Paare.
Raumaufteilung
Die Wohnung verfügt über eine klassische und funktionale Raumaufteilung. Vom Flur aus sind alle Räume gut erreichbar.
Auf Wunsch kann die Trennwand zwischen Küche und Wohn-/Esszimmer entfernt werden, sodass ein moderner offener Wohn- und Kochbereich entsteht. Dies kann die Wohnung deutlich aufwerten und ein großzügigeres Raumgefühl schaffen.
Das Badezimmer ist funktional geschnitten und bietet ausreichend Platz für den Alltag.
Ausstattungsmerkmale
| Anzahl der Etagen im Haus | 3 |
| Inserat befindet sich im Stockwerk | 1 |
| Küche | Einbauküche |
| Bad | 1 |
| Bad | Wanne |
| Boden | Fliesen, Laminat |
| Keller |
Keller, Vollbad, Einbauküche, Gäste-WC, Laminat, Fliesen
Bemerkungen:
- Offene Einbauküche
- Gefliestes Vollbadezimmer mit Tageslicht
- Großer Flur/Eingangsbereich mit viel Platz für Schränke
- Es stehen PKW-Stellplätze zur Verfügung
- Großes Treppenhaus
- Hausmeisterdienst
- Kellerabteil
- Waschkeller
- Video-Gegensprechanlage
Bemerkungen:
- Offene Einbauküche
- Gefliestes Vollbadezimmer mit Tageslicht
- Großer Flur/Eingangsbereich mit viel Platz für Schränke
- Es stehen PKW-Stellplätze zur Verfügung
- Großes Treppenhaus
- Hausmeisterdienst
- Kellerabteil
- Waschkeller
- Video-Gegensprechanlage
Sonstige Informationen
Heizungsart: Zentralheizung
Energieträger: Öl
Das gesamt Objekt mit gesamt 6 Wohnungen war bislang an einen Mieter vermietet. Es stehen nun alle 6 Wohnungen mit ähnlichen Eigenschaften zur Einzelvermietung frei. Lassen Sie sich gerne bei einer Besichtigung von dem Charm des Objekt überzeugen und besichtigen Sie gerne alle Wohnungen an einem Termin.
Hinweis zur Anfrage und Besichtigung:
Bitte senden Sie bei Interesse eine vollständige Anfrage mit folgenden Angaben:
- Vor- und Nachname aller einziehenden Personen
- Anzahl der einziehenden Personen
- aktueller Beruf / Arbeitgeber
- gewünschter Einzugstermin
- aktuelle Wohnsituation (z. B. Mieter/Eigentümer)
- Telefonnummer für Rückfragen
Bitte geben Sie außerdem an:
- ob Haustiere gehalten werden (Art und Anzahl, Versicherung vorhanden)
- ob die Miete vollständig selbst getragen wird oder eine Kostenübernahme durch Amt / Jobcenter / Sozialhilfe vorgesehen ist
Hinweis zur Flächenangabe
Die angegebene Quadratmeterzahl basiert auf der Netto-Grundfläche gemäß Bauplan. Die tatsächliche Wohnfläche nach Wohnflächenverordnung kann hiervon abweichen.
Die Vermietung erfolgt als 2-Zimmer-Wohnung wie gesehen und besichtigt. Eine Gewähr für eine bestimmte Wohnflächenberechnung wird nicht übernommen.
-
Footprint Vermögensverwaltung GmbH
Badstr. 26
74072 Heilbronn
Handelsregister: HRB 773745
Registergericht: Amtsgericht Stuttgart
Makleranfragen nicht erwünscht. Nach § 7 UWG sind unaufgeforderte Kontaktaufnahmen durch Makler ohne ausdrückliche Einwilligung des Empfängers verboten!
ohne-makler (OM) ist weder Anbieter noch Vermittler der Immobilie. OM betreibt eine Plattform für Immobilieneigentümer, die unter anderem die gleichzeitige Veröffentlichung einzelner Inserate auf mehreren Immobilienportalen ermöglicht. Die Inhalte dieser Inserate werden ausschließlich von Dritten verantwortet. Für die Richtigkeit, Vollständigkeit oder Rechtmäßigkeit der Angaben übernimmt OM keine Haftung. Hinweise auf mögliche Rechtsverstöße können jederzeit gemeldet werden und werden nach Prüfung umgehend bearbeitet.
Energieträger: Öl
Das gesamt Objekt mit gesamt 6 Wohnungen war bislang an einen Mieter vermietet. Es stehen nun alle 6 Wohnungen mit ähnlichen Eigenschaften zur Einzelvermietung frei. Lassen Sie sich gerne bei einer Besichtigung von dem Charm des Objekt überzeugen und besichtigen Sie gerne alle Wohnungen an einem Termin.
Hinweis zur Anfrage und Besichtigung:
Bitte senden Sie bei Interesse eine vollständige Anfrage mit folgenden Angaben:
- Vor- und Nachname aller einziehenden Personen
- Anzahl der einziehenden Personen
- aktueller Beruf / Arbeitgeber
- gewünschter Einzugstermin
- aktuelle Wohnsituation (z. B. Mieter/Eigentümer)
- Telefonnummer für Rückfragen
Bitte geben Sie außerdem an:
- ob Haustiere gehalten werden (Art und Anzahl, Versicherung vorhanden)
- ob die Miete vollständig selbst getragen wird oder eine Kostenübernahme durch Amt / Jobcenter / Sozialhilfe vorgesehen ist
Hinweis zur Flächenangabe
Die angegebene Quadratmeterzahl basiert auf der Netto-Grundfläche gemäß Bauplan. Die tatsächliche Wohnfläche nach Wohnflächenverordnung kann hiervon abweichen.
Die Vermietung erfolgt als 2-Zimmer-Wohnung wie gesehen und besichtigt. Eine Gewähr für eine bestimmte Wohnflächenberechnung wird nicht übernommen.
-
Footprint Vermögensverwaltung GmbH
Badstr. 26
74072 Heilbronn
Handelsregister: HRB 773745
Registergericht: Amtsgericht Stuttgart
Makleranfragen nicht erwünscht. Nach § 7 UWG sind unaufgeforderte Kontaktaufnahmen durch Makler ohne ausdrückliche Einwilligung des Empfängers verboten!
ohne-makler (OM) ist weder Anbieter noch Vermittler der Immobilie. OM betreibt eine Plattform für Immobilieneigentümer, die unter anderem die gleichzeitige Veröffentlichung einzelner Inserate auf mehreren Immobilienportalen ermöglicht. Die Inhalte dieser Inserate werden ausschließlich von Dritten verantwortet. Für die Richtigkeit, Vollständigkeit oder Rechtmäßigkeit der Angaben übernimmt OM keine Haftung. Hinweise auf mögliche Rechtsverstöße können jederzeit gemeldet werden und werden nach Prüfung umgehend bearbeitet.
Karte wird geladen...
Objektstandort
Am Zehnt 9
74889 Sinsheim-Hilsbach
- Baden-Württemberg
Lage & Infrastruktur
Objektstandort
Am Zehnt 9
74889 Sinsheim-Hilsbach
- Baden-Württemberg
Die Wohnung befindet sich im Ortsteil Hilsbach der Großen Kreisstadt Sinsheim. Die Umgebung ist geprägt von ruhigem Wohnen mit gewachsener Nachbarschaft. Einkaufsmöglichkeiten, Schulen, Kindergärten sowie Einrichtungen des täglichen Bedarfs sind in kurzer Entfernung erreichbar.
Entfernungen (ca.):
- Kindergarten & Grundschule im Ort: wenige Minuten
- Bushaltestelle: fußläufig erreichbar
- Supermärkte & Einkaufsmöglichkeiten Sinsheim: ca. 5–7 Fahrminuten
- Bahnhof Sinsheim (Elsenz) Hbf: ca. 6–8 Minuten
- Autobahn A6: ca. 8 Minuten
Große Arbeitgeber & Pendlerziele
- SAP Campus Walldorf: ca. 20 km / ca. 15 Minuten Fahrtzeit ()
- Audi Werk Neckarsulm: ca. 30 km / ca. 20 Minuten
- Heilbronn Zentrum: ca. 34 km / ca. 20–25 Minuten ()
- Rhein-Neckar-Region (Heidelberg/Mannheim): gut erreichbar über A6
Damit eignet sich die Lage ideal für Pendler, die ruhiges Wohnen außerhalb der Stadt bevorzugen.
Infrastruktur (im Umkreis von 5 km):
Apotheke, Lebensmittel-Discount, Kindergarten, Grundschule, Öffentliche Verkehrsmittel
Entfernungen (ca.):
- Kindergarten & Grundschule im Ort: wenige Minuten
- Bushaltestelle: fußläufig erreichbar
- Supermärkte & Einkaufsmöglichkeiten Sinsheim: ca. 5–7 Fahrminuten
- Bahnhof Sinsheim (Elsenz) Hbf: ca. 6–8 Minuten
- Autobahn A6: ca. 8 Minuten
Große Arbeitgeber & Pendlerziele
- SAP Campus Walldorf: ca. 20 km / ca. 15 Minuten Fahrtzeit ()
- Audi Werk Neckarsulm: ca. 30 km / ca. 20 Minuten
- Heilbronn Zentrum: ca. 34 km / ca. 20–25 Minuten ()
- Rhein-Neckar-Region (Heidelberg/Mannheim): gut erreichbar über A6
Damit eignet sich die Lage ideal für Pendler, die ruhiges Wohnen außerhalb der Stadt bevorzugen.
Infrastruktur (im Umkreis von 5 km):
Apotheke, Lebensmittel-Discount, Kindergarten, Grundschule, Öffentliche Verkehrsmittel
Kontaktanfrage senden
Über den Anbieter
OM PropTech GmbH
Humboldtstraße 25a
21509 Glinde
Kontakt
| Telefon | - |
| Fax | - |
| Website | www.ohne-makler.net |
Ansprechpartner/in
Angebot von Manuel Lindenthal
Weitere Angebote des Anbieters
14
Büro-Praxis - Räume, Altbau am Kaiserplatz
Büro / Praxen
76133 Karlsruhe
In einem repräsentativen Stadthaus mit 10 Wohn- und 2 Gewerbeeinheiten befinden sich diese Büro-Praxis-Räume in der ersten Etage. 2 Zimmer gehen zur Stephanienstraße, 2 zur Hofseite. Ein Raum ist Durchgangszimmer. Nach ...
1.500 €
Kaltmiete (netto)
112 m²
Gesamtfläche
15
*Wohntraum in KA-Neureut: 143 m² Lifestyle mit ...
Wohnung
76149 Karlsruhe-Neureut
Vergessen Sie alles, was Sie über Etagenwohnungen wissen. Diese 3,5-Zimmer-Wohnung im 1. OG einer gepflegten Anlage im Herzen von Neureut bietet Ihnen ein Freiheitsgefühl, das sonst nur Penthouses vorbehalten ist. Das ...
1.650 €
Kaltmiete (netto)
143 m²
Wohnfläche
3,5
Zimmer
22
Moderne, helle Doppelhaushälfte mit 5,5 Zimmern, ...
Haus
69493 Hirschberg an der Bergstraße
Doppelhaushälfte auf drei Etagen in gehobener Ausstattung (hochwertiger Parkettboden, Fußbodenheizung, elektrische Rollläden, integrierte Lüftungsanlage, Wasserenthärtungsanlage, elektrische Markise) in bester ...
2.750 €
Kaltmiete (netto)
189 m²
Wohnfläche
5,5
Zimmer
11
Neubau Erstbezug! Wunderschöne 3 ZW mit Terrasse plus ...
Wohnung
90765 Fürth
Moderner Wohngenuss im Zweifamilienhaus! Herzlich willkommen in Ihrem neuen Zuhause! Diese großzügig geschnittene 3-Zimmer-Wohnung befindet sich im EG in einem neu erbauten Mehrfamilienhaus mit nur zwei Wohneinheiten – ...
1.375 €
Kaltmiete (netto)
87 m²
Wohnfläche
3
Zimmer
7
Bezugsfreie Eigentumswohnung mit Balkon
Wohnung
38444 Wolfsburg
Die Wohnung eird derzeit saniert - die Fotos zeigen die unsanierte Wohnung. Sanierung: Es werden die Wände, Bodenbeläge und das Bad erneuert. Die helle Wohnung befindet sich im 5. OG. Das Haus hat 6 Etagen und umfasst ...
148.000 €
Kaufpreis
89,85 m²
Wohnfläche
3
Zimmer