Moderne, großzügige 2-Zimmerwohnung / Erstbezug nach Umbau/ Balkon/ Einbauküche
1.250 €
Kaltmiete (netto)
119 m²
Wohnfläche
2
Zimmer
immobilien.de Nr.: 9529709
Objektnummer: 380720
Mietpreis & Nebenkosten
| Kaltmiete (netto) | 1.250 € |
| Nebenkosten | 340 € |
| Heizkosten enthalten | Ja |
| Kaution | 3.750 € |
Wohnfläche, Grundstück & Bausubstanz
| Wohnfläche | 119 m² |
| Zimmer | 2 |
| Baujahr | 1975 |
| Verfügbar ab | sofort |
| Zustand | Teil Vollsaniert |
Energie
| Heizungsart | Fußbodenheizung |
| Energieträger/Befeuerung | Elektro |
Beschreibung der Immobilie
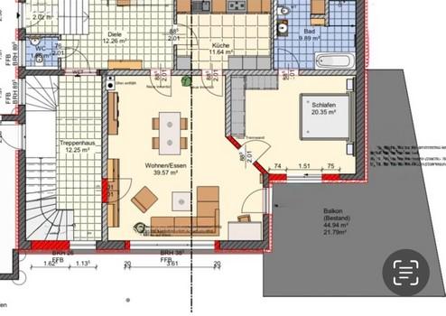
Diese frisch kernsanierte 2- Zimmer-Wohnung im Erdgeschoss(Hanglage zur Südseite) eines EE70 – Hauses (kernsaniert 2025, Baujahr 1975) bietet erstklassigen Wohnkomfort auf circa 119 m².
Der sonnige, teilweise überdachte Balkon zur Südseite (ca. 45 m2, davon circa 22 m² anrechenbare Wohnfläche, über 2 Räume zugänglich) erweitert den Wohnraum ins Freie. Dieser ist zur Südseite in Hanglage.
Die Räume sind sehr geräumig und durch große Fenster lichtdurchflutet.
Die Wohnung ist ideal für Einzelpersonen oder Paare.
Sie befindet sich in einem 3 Parteien Haus.
Im Kellergeschoss Gewerbeeinheit / Praxis.
Im Erdgeschoss und Obergeschoss befinden sich je eine Mietwohnung.
Raumaufteilung:
– 1 Schlafzimmer
– 1 sehr großzügiger Wohnzimmer/Essbereich
- 1 Küche mit Einbauküche
– 1 En-suite-Bad (nur vom Schlafzimmer begehbar) mit ebenerdiger offener Dusche und Wanne ( neu renoviert )
- 1 Gäste-WC
– großer Eingangsbereich mit separater Haustür (Stufen)
- möglicher Eingang über Hinterhof oder durch vorhandene Garage über den Gemeinschaftsgang
- ca. 29m2 große Garage mit elektrischem Tor sowie Vorrüstung für E-Ladestation
- Hofeinfahrt vor Garage als weiterer Stellplatz
Warmmiete inkl. Garage/ Einbauküche 1.590,00€
Objektzustand: Erstbezug nach Sanierung
Der sonnige, teilweise überdachte Balkon zur Südseite (ca. 45 m2, davon circa 22 m² anrechenbare Wohnfläche, über 2 Räume zugänglich) erweitert den Wohnraum ins Freie. Dieser ist zur Südseite in Hanglage.
Die Räume sind sehr geräumig und durch große Fenster lichtdurchflutet.
Die Wohnung ist ideal für Einzelpersonen oder Paare.
Sie befindet sich in einem 3 Parteien Haus.
Im Kellergeschoss Gewerbeeinheit / Praxis.
Im Erdgeschoss und Obergeschoss befinden sich je eine Mietwohnung.
Raumaufteilung:
– 1 Schlafzimmer
– 1 sehr großzügiger Wohnzimmer/Essbereich
- 1 Küche mit Einbauküche
– 1 En-suite-Bad (nur vom Schlafzimmer begehbar) mit ebenerdiger offener Dusche und Wanne ( neu renoviert )
- 1 Gäste-WC
– großer Eingangsbereich mit separater Haustür (Stufen)
- möglicher Eingang über Hinterhof oder durch vorhandene Garage über den Gemeinschaftsgang
- ca. 29m2 große Garage mit elektrischem Tor sowie Vorrüstung für E-Ladestation
- Hofeinfahrt vor Garage als weiterer Stellplatz
Warmmiete inkl. Garage/ Einbauküche 1.590,00€
Objektzustand: Erstbezug nach Sanierung
Ausstattungsmerkmale
| Anzahl der Etagen im Haus | 1 |
| Inserat befindet sich im Stockwerk | 0 |
| Küche | Einbauküche |
| Bad | 1 |
| Bad | Dusche, Wanne |
| Boden | Fliesen, Kunststoff |
| Balkone | 1 |
| Terrassen | 0 |
| Garage/Stellplätze | 1 |
Balkon, Vollbad, Duschbad, Einbauküche, Gäste-WC, Fliesen
Bemerkungen:
– Fußbodenheizung über Wärmepumpe
– 3-Fach verglaste Fenster
– Elektrische Rollläden
– Warmwasser über Durchlauferhitzer (Mieterstrom)
– Schließanlage
- Einbaustrahler in der gesamten Wohnung
- hochwertiger Vinylboden, sowie im Bad hochwertige Keramikfliesen
- weiße Innentüren
- kontrollierte Be- und Entlüftung
– eigene Garage direkt vor der Haustür 50 € pro Monat (mit Vorrüstung für E-Ladestation)
- Einbauküche inkl.aller Geräte (ohne Kühlschrank) 50,00€ mtl.
Bemerkungen:
– Fußbodenheizung über Wärmepumpe
– 3-Fach verglaste Fenster
– Elektrische Rollläden
– Warmwasser über Durchlauferhitzer (Mieterstrom)
– Schließanlage
- Einbaustrahler in der gesamten Wohnung
- hochwertiger Vinylboden, sowie im Bad hochwertige Keramikfliesen
- weiße Innentüren
- kontrollierte Be- und Entlüftung
– eigene Garage direkt vor der Haustür 50 € pro Monat (mit Vorrüstung für E-Ladestation)
- Einbauküche inkl.aller Geräte (ohne Kühlschrank) 50,00€ mtl.
Sonstige Informationen
Heizungsart: Fußbodenheizung
Energieträger: Strom
Energieausweis nicht vorhanden
Wir legen großen Wert auf verantwortungsbewusste und zuverlässige Mieter.
Ideal für Singles oder Paare.
Haustiere nach Rücksprache.
Voraussetzung:
Festes Einkommen, Nichtraucherwohnung, Schufa bzw. Mieterselbstauskunft
Bei ernsthaftem Interesse freuen wir uns über Nachrichten
Makleranfragen nicht erwünscht. Nach § 7 UWG sind unaufgeforderte Kontaktaufnahmen durch Makler ohne ausdrückliche Einwilligung des Empfängers verboten!
ohne-makler (OM) ist weder Anbieter noch Vermittler der Immobilie. OM betreibt eine Plattform für Immobilieneigentümer, die unter anderem die gleichzeitige Veröffentlichung einzelner Inserate auf mehreren Immobilienportalen ermöglicht. Die Inhalte dieser Inserate werden ausschließlich von Dritten verantwortet. Für die Richtigkeit, Vollständigkeit oder Rechtmäßigkeit der Angaben übernimmt OM keine Haftung. Hinweise auf mögliche Rechtsverstöße können jederzeit gemeldet werden und werden nach Prüfung umgehend bearbeitet.
Energieträger: Strom
Energieausweis nicht vorhanden
Wir legen großen Wert auf verantwortungsbewusste und zuverlässige Mieter.
Ideal für Singles oder Paare.
Haustiere nach Rücksprache.
Voraussetzung:
Festes Einkommen, Nichtraucherwohnung, Schufa bzw. Mieterselbstauskunft
Bei ernsthaftem Interesse freuen wir uns über Nachrichten
Makleranfragen nicht erwünscht. Nach § 7 UWG sind unaufgeforderte Kontaktaufnahmen durch Makler ohne ausdrückliche Einwilligung des Empfängers verboten!
ohne-makler (OM) ist weder Anbieter noch Vermittler der Immobilie. OM betreibt eine Plattform für Immobilieneigentümer, die unter anderem die gleichzeitige Veröffentlichung einzelner Inserate auf mehreren Immobilienportalen ermöglicht. Die Inhalte dieser Inserate werden ausschließlich von Dritten verantwortet. Für die Richtigkeit, Vollständigkeit oder Rechtmäßigkeit der Angaben übernimmt OM keine Haftung. Hinweise auf mögliche Rechtsverstöße können jederzeit gemeldet werden und werden nach Prüfung umgehend bearbeitet.
Karte wird geladen...
Objektstandort
91575 Windsbach
- Bayern
Lage & Infrastruktur
Objektstandort
91575 Windsbach
- Bayern
Zentral in der Bahnhofstraße gelegen – nur circa 2 Minuten zu Fuß vom Bahnhof entfernt. Einkaufsmöglichkeiten, Gastronomie und Natur (Rezat) befinden sich in unmittelbarer Nähe. Ruhige Lage, trotz Bahnhofsnähe- ideal für Ruhesuchende und Paare.
Infrastruktur (im Umkreis von 5 km):
Apotheke, Lebensmittel-Discount, Allgemeinmediziner, Kindergarten, Grundschule, Hauptschule, Gymnasium, Gesamtschule, Öffentliche Verkehrsmittel
Infrastruktur (im Umkreis von 5 km):
Apotheke, Lebensmittel-Discount, Allgemeinmediziner, Kindergarten, Grundschule, Hauptschule, Gymnasium, Gesamtschule, Öffentliche Verkehrsmittel
Kontaktanfrage senden
Über den Anbieter
OM PropTech GmbH
Humboldtstraße 25a
21509 Glinde
Kontakt
| Telefon | - |
| Fax | - |
| Website | www.ohne-makler.net |
Ansprechpartner/in
Privat von Melina Schulze
Weitere Angebote des Anbieters
19
PROVISIONSFREI 2 Zimmer Wohnung in Fürth mit Balkon ...
Wohnung
90763 Fürth
Die frisch renovierte Wohnung befindet sich im 4.OG einem gepflegten Mehrfamilienhaus (erreichbar mit Aufzug) und bietet modernen Wohnkomfort in ruhiger Umgebung. Dank der zweifach verglasten Fenster ist für eine gute ...
254.900 €
Kaufpreis
59 m²
Wohnfläche
2
Zimmer
23
Moderne, großzügige 2-Zimmerwohnung / Erstbezug nach ...
Wohnung
91575 Windsbach
Diese frisch kernsanierte 2- Zimmer-Wohnung im Erdgeschoss(Hanglage zur Südseite) eines EE70 – Hauses (kernsaniert 2025, Baujahr 1975) bietet erstklassigen Wohnkomfort auf circa 119 m². Der sonnige, teilweise ...
1.250 €
Kaltmiete (netto)
119 m²
Wohnfläche
2
Zimmer
6
Lichtdurchflutete 2-Zimmer Dachgeschoss Wohnung in ...
Wohnung
89614 Öpfingen
Neuwertige, energieeffiziente 2-Zimmer-Wohnung Wohnfläche ca. 53 qm Die Wohnung befindet sich im Dachgeschoss eines Zweifamilienwohnhauses Im Jahr 2023/2024 nach KfW 55 EE saniert. Energieklasse A+ Fußbodenheizung in ...
680 €
Kaltmiete (netto)
53 m²
Wohnfläche
2
Zimmer
9
Modernisierte, helle und freundliche 2-Zimmer-Wohnung
Wohnung
90766 Fürth
Die Gutenberg 25 ist ein historisches Haus mit Charakter und Wohlfühlfaktor. Diese 2-Zimmer Wohnung (Schlafzimmer, Wohnzimmer, Küche mit Essbereich, Bad) lädt durch ihre Helligkeit und den Blick in den Baumwipfel zum ...
680 €
Kaltmiete (netto)
55 m²
Wohnfläche
2
Zimmer
18
Ich Vermieten meine Liebe Kleine Wohnung mit Balkon ...
Wohnung
75177 Pforzheim
Hallo und herzlich willkommen in meiner gemütlichen und ruhigen Wohnung in einer sehr schönen Wohngegend. Ein Parkplatz ist inklusive! Balkon, E-Becken...
430 €
Kaltmiete (netto)
38 m²
Wohnfläche
1
Zimmer