***Doppelhaushälfte in toller Lage Sinsheims!***
320.000 €
Kaufpreis
111 m²
Wohnfläche
4
Zimmer
immobilien.de Nr.: 9529490
Objektnummer: 730361
Kaufpreis
| Kaufpreis | 320.000 € |
| Maklerprovision | 3,57 % (inkl. MwSt.) |
Wohnfläche, Grundstück & Bausubstanz
| Wohnfläche | 111 m² |
| Grundstücksfläche | 250 m² |
| Zimmer | 4 |
| Baujahr | 1965 |
| Verfügbar ab | vermietet |
| Zustand | Teil Vollrenovierungsbed |
Energie
| Energieausweistyp | Bedarfsausweis |
| Ausstellungsdatum | 24. 03. 2026 |
| Baujahr (laut Energieausweis) | 1965 |
| Energieeffizienzklasse | G |
| Endenergiebedarf | 234.98 |
| Wesentlicher Energieträger | Strom |
| Energieträger/Befeuerung | Elektro |
Beschreibung der Immobilie
Lage, Lage, Lage!!!! Diese Aussage könnte kaum treffender und angebrachter sein als bei diesem Angebot. Es handelt sich um eine kleine Altbau-Doppelhaushälfte mit Garage und kleinem Garten.
Die Immobilie wurde vor vielen Jahren in vier Einraumappartements aufgeteilt und an Sozialhilfeempfänger vermietet. Hierdurch liegt die Mieteinnahme weit über der Norm!
Transparenz ist hier sehr wichtig, denn die Substanz, sowie die Pflege und der Ist-Zustand des Hauses ist als sehr mangelhaft zu bezeichnen.
Daher gibt es hier zwei Optionen:
Option 1: Das Haus so übernehmen wie es ist und die super Rendite einstreichen.
Option 2: Die Mietverhältnisse auflösen und das Haus bis auf die Grundmauern entkernen, sanieren und dann selbst in bevorzugter Lage einziehen.
Melden Sie sich und erfahren Sie von mir nähere Informationen!
Weitere Angebote unter www.GARANT-IMMO.de
Die Immobilie wurde vor vielen Jahren in vier Einraumappartements aufgeteilt und an Sozialhilfeempfänger vermietet. Hierdurch liegt die Mieteinnahme weit über der Norm!
Transparenz ist hier sehr wichtig, denn die Substanz, sowie die Pflege und der Ist-Zustand des Hauses ist als sehr mangelhaft zu bezeichnen.
Daher gibt es hier zwei Optionen:
Option 1: Das Haus so übernehmen wie es ist und die super Rendite einstreichen.
Option 2: Die Mietverhältnisse auflösen und das Haus bis auf die Grundmauern entkernen, sanieren und dann selbst in bevorzugter Lage einziehen.
Melden Sie sich und erfahren Sie von mir nähere Informationen!
Weitere Angebote unter www.GARANT-IMMO.de
Ausstattungsmerkmale
| Anzahl der Etagen im Haus | 2 |
| Küche | Einbauküche |
| Bad | 4 |
| Boden | Fliesen, Laminat, Linoleum |
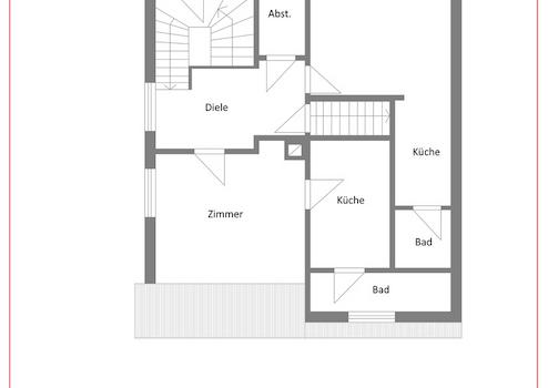
KG: diverse Kellerräume
EG: zwei Einraum Wohnungen, Abstellraum
DG: zwei Einraumwohnungen, Abstellraum
EG: zwei Einraum Wohnungen, Abstellraum
DG: zwei Einraumwohnungen, Abstellraum
Sonstige Informationen
Gerne kläre ich Sie im Detail über die bestehenden Mietverhältnisse telefonisch auf!
Karte wird geladen...
Objektstandort
74889 Sinsheim
Lage & Infrastruktur
Objektstandort
74889 Sinsheim
Nur ein Fußgängerweg trennt das Haus von der Elsenz. Das Haus liegt in ruhiger Lage, nur wenige Gehminuten von Sinsheims Zentrum entfernt.
Kontaktanfrage senden
Über den Anbieter
Garant Immobilien AG
Wilhelmstr.5
70182 Stuttgart
Kontakt
| Telefon | 07261/40 620-0 |
| Website | www.garant-immo.de |
Ansprechpartner/in
Büro Sinsheim
Weitere Angebote des Anbieters
2
Großzügiges Baugrundstück mit ca. 1.058 qm in ...
Grundstück
75438 Knittlingen
Zum Verkauf steht ein attraktives und vielseitig nutzbares Baugrundstück mit einer Fläche von ca. 1.058 qm in ruhiger und gewachsener Wohnlage von Knittlingen. Besonders hervorzuheben ist die großzügige Grundstücksbreit ...
330.000 €
Kaufpreis
1.058 m²
Grundstücksfläche
7
Zentrale Wohnung in Bad Rappenau
Wohnung
74906 Bad Rappenau
Bei diesem Angebot bieten wir Ihnen einen schöne und sehr gepflegte 4 Zimmer-Wohnung mit ca. 97 qm in zentraler Lage von Bad Rappenau an. Diese Einheit ist Teil eines Mehrfamilienhauses welches ideal gelegen ist. Die ...
255.000 €
Kaufpreis
97 m²
Wohnfläche
4
Zimmer
27
Terrassen-Wohnung in bester Strandlage
Wohnung
18609 Binz
Riechen Sie das Meer..., gewürzt mit dem Duft von der Kieferdüne...? Sie können barfuß in nur zwei Minuten von der eigenen Ostterrasse laufen und Sie sind mit dem Fuß im Meer! Am Abend genießen Sie die Sonne von Ihrer ...
465.000 €
Kaufpreis
102 m²
Wohnfläche
4
Zimmer
3
Schöne, große Gewerbefläche mit Büro/Lager/Produktion ...
Land und Forstwirtschaft
71546 Aspach
Zum Verkauf steht ein attraktives, ca. 6.831 qm großes Grundstück mit Gebäude in ruhiger und sonniger Feldrandlage mit hervorragender Anbindung nach Backnang. Die Lage verbindet naturnahes Wohnen mit kurzen Wegen in ...
1.800.000 €
Kaufpreis
1192 m²
Gesamtfläche
20 m²
Teilbar ab
9
Kapitalanlage im Doppelpack: 2-Familienhaus und ...
Haus
74564 Crailsheim
Zum Verkauf steht ein interessantes Immobilienpaket bestehend aus zwei Gebäuden: ein 2-Familienhaus und ein Wohn- und Geschäftshaus mit Wohnung und Gewerberäumen. Die Kombination aus mehreren Wohneinheiten und ...
790.000 €
Kaufpreis
370 m²
Wohnfläche
16
Zimmer