Wohnhaus mit Gewerbeanteil und Nebengebäude
590.000 €
Kaufpreis
262 m²
Wohnfläche
10
Zimmer
immobilien.de Nr.: 9529488
Objektnummer: 363387
Kaufpreis
| Kaufpreis | 590.000 € |
| Maklerprovision | 4,76 % (inkl. MwSt.) |
Wohnfläche, Grundstück & Bausubstanz
| Wohnfläche | 262 m² |
| Grundstücksfläche | 1.022 m² |
| Zimmer | 10 |
| Baujahr | 1994 |
| Verfügbar ab | Vereinbarung |
| Zustand | Gepflegt |
Energie
| Energieausweistyp | Verbrauch |
| Ausstellungsdatum | 08. 07. 2025 |
| Baujahr (laut Energieausweis) | 1995 |
| Energieeffizienzklasse | B |
| Energieverbrauchkennwert | 54.6 kWh/(m²*a) |
| Heizungsart | Zentralheizung |
| Wesentlicher Energieträger | Öl |
| Energieträger/Befeuerung | Öl |
Beschreibung der Immobilie
1995 im Landhausstil erbaut und straßenseitig eher zierlich, entfaltet sich dieses Haus im Innern erst zu seiner wahren Größe. Auf ca. 262 Quadratmeter Wohnfläche erstrecken sich drei (zählt man das derzeit als Sauna genutzte Appartement dazu, dann vier) Wohneinheiten, wobei die im Untergeschoss gelegene 2 Zimmer-Wohnung mit eigenem Eingang rein gewerblich(z.B. Büro, Ferienwohnung) genutzt werden sollte.
Dabei ist das Herzstück des Hauses die rund 122 Quadratmeter große Erdgeschoss-Wohnung mit Terrasse und Zugang in den idyllischen Garten. Die Dachgeschoss-Wohnung umfasst zwei Zimmer, Flur und Bad, wobei die sehr große Wohnküche mit Balkon ein absoluter Hingucker ist. Und auch klimatisch ist hier sehr gut sein, da 2020 das Dach neu aufgebaut wurde, was sich durchaus bemerkbar macht.
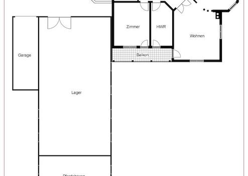
Im unmittelbar angrenzenden Trakt befinden sich derzeit vier Pferdeboxen mit Außenanlage sowie eine Jägerstube und zwei weitere Räume. Bis vor Kurzem noch vollumfänglich genutzt, ist der Stall in einem sehr guten Zustand, einschließlich der Wasseraufbereitung der Pferdetränke in jeder Box.
Hier steht aber einer anderweitigen Nutzung nichts im Wege.
Bedingt durch die Ortsrandlage können Sie von Haus und Nebengebäude aus direkt in die Natur, wobei die Anlage auch von der rückwärtigen Seite aus mit dem Fahrzeug erreichbar ist.
Weitere Angebote unter www.GARANT-IMMO.de
Dabei ist das Herzstück des Hauses die rund 122 Quadratmeter große Erdgeschoss-Wohnung mit Terrasse und Zugang in den idyllischen Garten. Die Dachgeschoss-Wohnung umfasst zwei Zimmer, Flur und Bad, wobei die sehr große Wohnküche mit Balkon ein absoluter Hingucker ist. Und auch klimatisch ist hier sehr gut sein, da 2020 das Dach neu aufgebaut wurde, was sich durchaus bemerkbar macht.
Im unmittelbar angrenzenden Trakt befinden sich derzeit vier Pferdeboxen mit Außenanlage sowie eine Jägerstube und zwei weitere Räume. Bis vor Kurzem noch vollumfänglich genutzt, ist der Stall in einem sehr guten Zustand, einschließlich der Wasseraufbereitung der Pferdetränke in jeder Box.
Hier steht aber einer anderweitigen Nutzung nichts im Wege.
Bedingt durch die Ortsrandlage können Sie von Haus und Nebengebäude aus direkt in die Natur, wobei die Anlage auch von der rückwärtigen Seite aus mit dem Fahrzeug erreichbar ist.
Weitere Angebote unter www.GARANT-IMMO.de
Ausstattungsmerkmale
| Anzahl der Etagen im Haus | 2 |
| Küche | Einbauküche |
| Bad | 3 |
| Boden | Fliesen, Stein, Teppich |
| Balkone | 1 |
* drei Einbauküchen (im Preis inbegriffen)
* Landhausstil
* Dach neu, Stand 2020
* Kaminöfen
* Landhausstil
* Dach neu, Stand 2020
* Kaminöfen
Sonstige Informationen
* Nebengebäude derzeit mit vier Pferdeboxen und Außenanlage
* Wasseraufbereitung Pferdetränke
* separate Zusatzräume
* gewerbliche Nutzung der Wohneinheit im Untergeschoss
des Haupthauses
* vier Außenstellplätze
(Mistcontainer kann gegen Bezahlung übernommen werden)
* Wasseraufbereitung Pferdetränke
* separate Zusatzräume
* gewerbliche Nutzung der Wohneinheit im Untergeschoss
des Haupthauses
* vier Außenstellplätze
(Mistcontainer kann gegen Bezahlung übernommen werden)
Karte wird geladen...
Objektstandort
72555 Metzingen
Lage & Infrastruktur
Objektstandort
72555 Metzingen
Das Haus befindet sich in Ortsrandlage von Glems, einem Teilort von Metzingen. In unmittelbarer Nähe sind Felder, Wiesen und Wälder sowie der bekannte Glemser Stausee als Naherholungsgebiet.
Ein Kindergarten sowie eine Grundschule sind vor Ort. Es besteht eine Busverbindung nach Metzingen mit seiner hervorragenden Infrastruktur, die in wenigen Gehminuten erreichbar ist. Die Verkehrsanbindung über die B28 Richtung Stuttgart ist sehr gut.
Ein Kindergarten sowie eine Grundschule sind vor Ort. Es besteht eine Busverbindung nach Metzingen mit seiner hervorragenden Infrastruktur, die in wenigen Gehminuten erreichbar ist. Die Verkehrsanbindung über die B28 Richtung Stuttgart ist sehr gut.
Kontaktanfrage senden
Über den Anbieter
Garant Immobilien AG
Wilhelmstr.5
70182 Stuttgart
Kontakt
| Telefon | 07121/51 531-0 |
| Fax | 07121/51 531-31 |
| Website | www.garant-immo.de |
Ansprechpartner/in
Büro Reutlingen / Tübingen
Weitere Angebote des Anbieters
2
Großzügiges Baugrundstück mit ca. 1.058 qm in ...
Grundstück
75438 Knittlingen
Zum Verkauf steht ein attraktives und vielseitig nutzbares Baugrundstück mit einer Fläche von ca. 1.058 qm in ruhiger und gewachsener Wohnlage von Knittlingen. Besonders hervorzuheben ist die großzügige Grundstücksbreit ...
330.000 €
Kaufpreis
1.058 m²
Grundstücksfläche
7
Zentrale Wohnung in Bad Rappenau
Wohnung
74906 Bad Rappenau
Bei diesem Angebot bieten wir Ihnen einen schöne und sehr gepflegte 4 Zimmer-Wohnung mit ca. 97 qm in zentraler Lage von Bad Rappenau an. Diese Einheit ist Teil eines Mehrfamilienhauses welches ideal gelegen ist. Die ...
255.000 €
Kaufpreis
97 m²
Wohnfläche
4
Zimmer
27
Terrassen-Wohnung in bester Strandlage
Wohnung
18609 Binz
Riechen Sie das Meer..., gewürzt mit dem Duft von der Kieferdüne...? Sie können barfuß in nur zwei Minuten von der eigenen Ostterrasse laufen und Sie sind mit dem Fuß im Meer! Am Abend genießen Sie die Sonne von Ihrer ...
465.000 €
Kaufpreis
102 m²
Wohnfläche
4
Zimmer
3
Schöne, große Gewerbefläche mit Büro/Lager/Produktion ...
Land und Forstwirtschaft
71546 Aspach
Zum Verkauf steht ein attraktives, ca. 6.831 qm großes Grundstück mit Gebäude in ruhiger und sonniger Feldrandlage mit hervorragender Anbindung nach Backnang. Die Lage verbindet naturnahes Wohnen mit kurzen Wegen in ...
1.800.000 €
Kaufpreis
1192 m²
Gesamtfläche
20 m²
Teilbar ab
9
Kapitalanlage im Doppelpack: 2-Familienhaus und ...
Haus
74564 Crailsheim
Zum Verkauf steht ein interessantes Immobilienpaket bestehend aus zwei Gebäuden: ein 2-Familienhaus und ein Wohn- und Geschäftshaus mit Wohnung und Gewerberäumen. Die Kombination aus mehreren Wohneinheiten und ...
790.000 €
Kaufpreis
370 m²
Wohnfläche
16
Zimmer