Ideales Investment: Grundstück für ein 6 Familienhaus mit positiver Bauvoranfrage
288.000 €
Kaufpreis
immobilien.de Nr.: 9528691
Objektnummer: 427772
Dateien
Kaufpreis
| Kaufpreis | 288.000 € |
| Maklerprovision | keine Provision, courtagefrei |
Wohnfläche, Grundstück & Bausubstanz
| Grundstücksfläche | 1.003 m² |
| Verfügbar ab | nach Absprache |
Beschreibung der Immobilie
Exklusives Wohnen in Werne – komfortabel, modern und zeitlos!
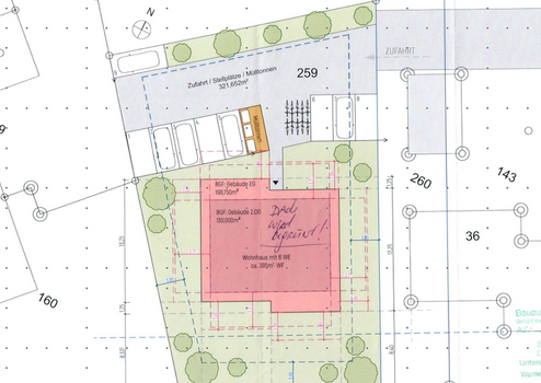
Dieses Baugrundstück bietet ideale Voraussetzungen für Kapitalanleger, Bauträger oder Investoren. Die Bauvoranfrage für ein Mehrfamilienhaus mit sechs Wohneinheiten wurde bereits von der Stadt Werne positiv beschieden – ein wichtiger Schritt, der Ihnen bereits abgenommen wurde. Nutzen Sie diese Gelegenheit und realisieren Sie Ihr Bauprojekt in einer attraktiven Wohnlage.
Die geplanten Wohnungen bieten Wohnflächen von ca. 75 bis 99 m² und eignen sich ideal für unterschiedliche Lebenssituationen – von Singles und Paaren bis hin zu kleinen Familien.
Vorbescheid §77 BauO NRW 2018 mit AZ 761724 Stadt Werne vom 04.04.2025 liegt vor. Die Planungsrechtliche Bebauungsgenehmigung Ist somit erteilt
Dieses Baugrundstück bietet ideale Voraussetzungen für Kapitalanleger, Bauträger oder Investoren. Die Bauvoranfrage für ein Mehrfamilienhaus mit sechs Wohneinheiten wurde bereits von der Stadt Werne positiv beschieden – ein wichtiger Schritt, der Ihnen bereits abgenommen wurde. Nutzen Sie diese Gelegenheit und realisieren Sie Ihr Bauprojekt in einer attraktiven Wohnlage.
Die geplanten Wohnungen bieten Wohnflächen von ca. 75 bis 99 m² und eignen sich ideal für unterschiedliche Lebenssituationen – von Singles und Paaren bis hin zu kleinen Familien.
Vorbescheid §77 BauO NRW 2018 mit AZ 761724 Stadt Werne vom 04.04.2025 liegt vor. Die Planungsrechtliche Bebauungsgenehmigung Ist somit erteilt
Sonstige Informationen
https://alphagruppe.net/impressumdatenschutz/
Makleranfragen nicht erwünscht. Nach § 7 UWG sind unaufgeforderte Kontaktaufnahmen durch Makler ohne ausdrückliche Einwilligung des Empfängers verboten!
ohne-makler (OM) ist weder Anbieter noch Vermittler der Immobilie. OM betreibt eine Plattform für Immobilieneigentümer, die unter anderem die gleichzeitige Veröffentlichung einzelner Inserate auf mehreren Immobilienportalen ermöglicht. Die Inhalte dieser Inserate werden ausschließlich von Dritten verantwortet. Für die Richtigkeit, Vollständigkeit oder Rechtmäßigkeit der Angaben übernimmt OM keine Haftung. Hinweise auf mögliche Rechtsverstöße können jederzeit gemeldet werden und werden nach Prüfung umgehend bearbeitet.
Makleranfragen nicht erwünscht. Nach § 7 UWG sind unaufgeforderte Kontaktaufnahmen durch Makler ohne ausdrückliche Einwilligung des Empfängers verboten!
ohne-makler (OM) ist weder Anbieter noch Vermittler der Immobilie. OM betreibt eine Plattform für Immobilieneigentümer, die unter anderem die gleichzeitige Veröffentlichung einzelner Inserate auf mehreren Immobilienportalen ermöglicht. Die Inhalte dieser Inserate werden ausschließlich von Dritten verantwortet. Für die Richtigkeit, Vollständigkeit oder Rechtmäßigkeit der Angaben übernimmt OM keine Haftung. Hinweise auf mögliche Rechtsverstöße können jederzeit gemeldet werden und werden nach Prüfung umgehend bearbeitet.
Karte wird geladen...
Objektstandort
Freiherr-vom-Stein-Straße
59368 Werne
- Nordrhein-Westfalen
Lage & Infrastruktur
Objektstandort
Freiherr-vom-Stein-Straße
59368 Werne
- Nordrhein-Westfalen
Werne ist eine charmante Kleinstadt im Münsterland, Nordrhein-Westfalen, mit rund 30.000 Einwohnern. Die Stadt verbindet historische Altstadt-Atmosphäre mit moderner Infrastruktur und einer guten Anbindung an Dortmund und Münster. Zudem bietet Werne ein vielfältiges Freizeit- und Kulturangebot, darunter das beliebte Solebad
Infrastruktur (im Umkreis von 5 km):
Apotheke, Lebensmittel-Discount, Allgemeinmediziner, Kindergarten, Grundschule, Hauptschule, Realschule, Gymnasium, Gesamtschule, Öffentliche Verkehrsmittel
Infrastruktur (im Umkreis von 5 km):
Apotheke, Lebensmittel-Discount, Allgemeinmediziner, Kindergarten, Grundschule, Hauptschule, Realschule, Gymnasium, Gesamtschule, Öffentliche Verkehrsmittel
Kontaktanfrage senden
Über den Anbieter
OM PropTech GmbH
Humboldtstraße 25a
21509 Glinde
Kontakt
| Telefon | - |
| Fax | - |
| Website | www.ohne-makler.net |
Ansprechpartner/in
Privat von W. Schellenberg
Weitere Angebote des Anbieters
45
Witten-Bommern: grosses Haus mit großem Grundstück zu ...
Haus
58452 Witten
Individuell ausgestattetes freistehendes Haus mit Fernblick, einem uneinsehbaren Innenhof und einem uneinsehbaren Grundstück mit einem großen Garten! Das Mietobjekt ist nur etwas für Gartenfreunde! Details werden nach ...
2.000 €
Kaltmiete (netto)
250 m²
Wohnfläche
8
Zimmer
5
Möblierte 1 Zimmer Wohnung mit Einbauküche und ...
Wohnung
96052 Bamberg
WILLKOMMEN IN DEN SUN SHINE LOFTS! Stellen Sie sich vor, Sie werden Teil eines der innovativsten Stadtentwicklungsprojekte Europas! Auf dem Gelände der ehemaligen Lagarde-Kaserne in Bamberg, die über 69 Jahre lang Teil ...
559 €
Kaltmiete (netto)
32,55 m²
Wohnfläche
1
Zimmer
16
Erstbezug: 2 bis 4 Zimmer Wohnungen ab 750,- Kaltmiete ...
Wohnung
56269 Dierdorf
Tolle 2 bis 4-Zimmer Wohnungen in Energieeffizientem KFW55 Haus, Fußbodenheizung, zentrale Luft-Wärmepumpe, kontrollierte Wohnraumlüftung durch dezentrale in den Wohnungen installierte, moderne Einbauküchen in ...
750 €
Kaltmiete (netto)
55 m²
Wohnfläche
2
Zimmer
50
Außergewöhnlich gepflegter Resthof mit zwei ...
Haus
24816 Luhnstedt
Dieser außergewöhnlich gepflegte Resthof richtet sich an Käufer mit Anspruch, die Wert auf Substanz, Großzügigkeit und flexible Nutzungsmöglichkeiten legen. In ruhiger, ländlicher Lage in Luhnstedt bietet dieses ...
429.000 €
Kaufpreis
268,4 m²
Wohnfläche
6
Zimmer
22
Moderne Büroflächen ab 32–90 m² | barrierefrei | 9 ...
Büro / Praxen
44149 Dortmund
Moderne Büroflächen in einem vollständig modernisierten Gebäude (ehemalige Sparkasse) in Dortmund-Oespel. Das Objekt wurde im Jahr 2026 umfassend erneuert und bietet eine moderne und funktionale Arbeitsumgebung für ...
663 €
Kaltmiete (netto)
460 m²
Gesamtfläche