*Maklerfrei* EFH freistehend in ruhiger Lage im Luftkurort Egloffstein Energy-Ausweis A+
658.000 €
Kaufpreis
198 m²
Wohnfläche
5
Zimmer
immobilien.de Nr.: 9524752
Objektnummer: 282714
Kaufpreis
| Kaufpreis | 658.000 € |
| Maklerprovision | keine Provision, courtagefrei |
Wohnfläche, Grundstück & Bausubstanz
| Wohnfläche | 198 m² |
| Grundstücksfläche | 680 m² |
| Zimmer | 5 |
| Baujahr | 2016 |
| Verfügbar ab | nach Absprache |
| Zustand | Neuwertig |
Energie
| Energieausweistyp | Verbrauch |
| Energieeffizienzklasse | A+ |
| Energieverbrauchkennwert | 27 kWh/(m²*a) |
| Heizungsart | Fußbodenheizung |
| Energieträger/Befeuerung | Luft-Wärme-Pumpe |
Beschreibung der Immobilie
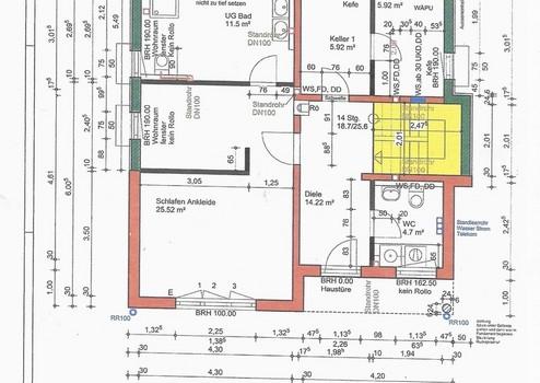
Das Haus gebaut im Jahr 2016 liegt sehr ruhig und hat einen wunderschönen Blick ins Tal und wird umsäumt von Wald und Wiesen. Das 680 m2 große Grundstück hat eine Hanglage und das Haus wurde in Massivbauweise gebaut und ist visuell und technisch up to date. Das Haus mit Energy-Ausweis A+ ist ein freistehendes Einfamilienhaus in den Hang gebaut. Das Untergeschoss mit Eingangsbereich liegt nach vorne auf Straßenniveau und ergibt Möglichkeiten für Praxis/Verkaufsraum/Büro. Momentan befindet sich im Untergeschoss in einem separaten Teil, ein großes Schlafzimmer mit Ankleideraum und ein großzügiges Badezimmer. Das Obergeschoß, wo sich das Wohnzimmer und die Küche befinden, hat einen wunderschönen Blick ins Tal. An der Hinterseite des Wohnzimmers des im Hang gebauten Hauses befinden sich die Türen die direkt zur Terrasse und zum Garten führen.
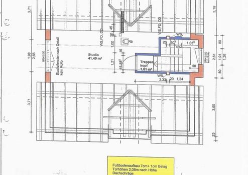
Das Dachgeschoss verfügt über zwei sehr geräumige Zimmer, beide mit Badezimmer. In der Spitze des Hauses liegt der Spitzboden; ein ausgebautes Studio, das wegen dem großen Fenster den Raum zu einem hellen und angenehmen Zimmer macht.
Ein modernes Haus mit Wärmepumpe, Fußbodenheizung, Dreifachverglasung, elektrische Rollläden, Marmor-Kamin, Photovoltaik-Anlage, großes L-förmiges Wohnzimmer, wunderschöne komfortable Einbauküche mit Arbeitsplatte aus Naturstein, Side-by-Side Kühlschrank mit Eiswürfel- und Wasserspender, separat ein kleiner Speiseraum, Garage, Carport, Terrassen und noch vieles mehr. Alles, was ein Haus angenehm macht, finden Sie in diesem Haus. Der wunderschön angelegte, eingewachsene Garten mit Höhenunterschieden rund um das Haus bietet zahlreiche Möglichkeiten, die verschiedenen Sonnenstände zu genießen.
Das Dachgeschoss verfügt über zwei sehr geräumige Zimmer, beide mit Badezimmer. In der Spitze des Hauses liegt der Spitzboden; ein ausgebautes Studio, das wegen dem großen Fenster den Raum zu einem hellen und angenehmen Zimmer macht.
Ein modernes Haus mit Wärmepumpe, Fußbodenheizung, Dreifachverglasung, elektrische Rollläden, Marmor-Kamin, Photovoltaik-Anlage, großes L-förmiges Wohnzimmer, wunderschöne komfortable Einbauküche mit Arbeitsplatte aus Naturstein, Side-by-Side Kühlschrank mit Eiswürfel- und Wasserspender, separat ein kleiner Speiseraum, Garage, Carport, Terrassen und noch vieles mehr. Alles, was ein Haus angenehm macht, finden Sie in diesem Haus. Der wunderschön angelegte, eingewachsene Garten mit Höhenunterschieden rund um das Haus bietet zahlreiche Möglichkeiten, die verschiedenen Sonnenstände zu genießen.
Ausstattungsmerkmale
| Anzahl der Etagen im Haus | 4 |
| Küche | Einbauküche |
| Bad | 3 |
| Bad | Dusche |
| Boden | Fliesen, Laminat |
| Balkone | 0 |
| Garten | |
| Terrassen | 1 |
| Garage/Stellplätze | 1 |
| Carport | 1 |
| Keller |
Terrasse, Garten, Keller, Duschbad, Einbauküche, Gäste-WC, Kamin, Laminat, Fliesen
Bemerkungen:
Das Haus und auch der Garten sind sehr gepflegt und gibt dem Käufer viele Möglichkeiten.
Bemerkungen:
Das Haus und auch der Garten sind sehr gepflegt und gibt dem Käufer viele Möglichkeiten.
Sonstige Informationen
Heizungsart: Fußbodenheizung
Energieträger: Luft-/Wasserwärme
Makleranfragen nicht erwünscht. Nach § 7 UWG sind unaufgeforderte Kontaktaufnahmen durch Makler ohne ausdrückliche Einwilligung des Empfängers verboten!
ohne-makler (OM) ist weder Anbieter noch Vermittler der Immobilie. OM betreibt eine Plattform für Immobilieneigentümer, die unter anderem die gleichzeitige Veröffentlichung einzelner Inserate auf mehreren Immobilienportalen ermöglicht. Die Inhalte dieser Inserate werden ausschließlich von Dritten verantwortet. Für die Richtigkeit, Vollständigkeit oder Rechtmäßigkeit der Angaben übernimmt OM keine Haftung. Hinweise auf mögliche Rechtsverstöße können jederzeit gemeldet werden und werden nach Prüfung umgehend bearbeitet.
Energieträger: Luft-/Wasserwärme
Makleranfragen nicht erwünscht. Nach § 7 UWG sind unaufgeforderte Kontaktaufnahmen durch Makler ohne ausdrückliche Einwilligung des Empfängers verboten!
ohne-makler (OM) ist weder Anbieter noch Vermittler der Immobilie. OM betreibt eine Plattform für Immobilieneigentümer, die unter anderem die gleichzeitige Veröffentlichung einzelner Inserate auf mehreren Immobilienportalen ermöglicht. Die Inhalte dieser Inserate werden ausschließlich von Dritten verantwortet. Für die Richtigkeit, Vollständigkeit oder Rechtmäßigkeit der Angaben übernimmt OM keine Haftung. Hinweise auf mögliche Rechtsverstöße können jederzeit gemeldet werden und werden nach Prüfung umgehend bearbeitet.
Karte wird geladen...
Objektstandort
91349 Egloffstein
- Bayern
Lage & Infrastruktur
Objektstandort
91349 Egloffstein
- Bayern
Inmitten des Trubachtales steigt der Ort Egloffstein an den felsigen Hängen hinauf. Ein Ort der Romantik und Idylle, der Brunnen und Quellen. Wohnen in einer wunderschönen Landschaft und trotzdem ist die Stadt nicht weit; Nürnberg, Erlangen, Forchheim und Bamberg sind mit dem Auto in kurzer Zeit zu erreichen. Auch gibt es gute Verbindungen mit den öffentlichen Verkehrsmitteln nach Ebermannstadt, Gräfenberg und Forchheim. In Egloffstein gibt es eine Kita und eine Grundschule. Realschule und Gymnasium finden Sie in Gräfenberg und Ebermannstadt.
Infrastruktur (im Umkreis von 5 km):
Apotheke, Lebensmittel-Discount, Allgemeinmediziner, Kindergarten, Grundschule, Öffentliche Verkehrsmittel
Infrastruktur (im Umkreis von 5 km):
Apotheke, Lebensmittel-Discount, Allgemeinmediziner, Kindergarten, Grundschule, Öffentliche Verkehrsmittel
Kontaktanfrage senden
Über den Anbieter
OM PropTech GmbH
Humboldtstraße 25a
21509 Glinde
Kontakt
| Telefon | - |
| Fax | - |
| Website | www.ohne-makler.net |
Ansprechpartner/in
Privat vom Eigentümer
Weitere Angebote des Anbieters
16
Wohnen am Wasser – Zweifamilienhaus mit direktem ...
Haus
15749 Mittenwalde
Die Realisierung des wunderschönen Hauses erfolgte ausschließlich aus hochwertigen Baumaterialen. Fast alle Räume haben Seeblick. Eine Fußbodenheizung im Wohnzimmer sorgt für ausreichende Wärme. Das Haus hat ein ...
689.000 €
Kaufpreis
140 m²
Wohnfläche
5
Zimmer
1
Haus in Potsdam Ot Groß Glienicke mit 2 Wohnungen
Haus
14476 Potsdam
Das Haus hat 2 Wohnungen mit je einer Küche und Bad, oder zur allein Nutzung. Expose kann angefordert werden. Wir möchten das Sie sich das Haus anschauen kommen. Alles weitere können wir dann Besprechen. Makler ...
6 €
Kaufpreis
160 m²
Wohnfläche
7
Zimmer
42
Einmalige Doppelhaushälfte inmitten des Naturschutzes
Haus
79877 Rötenbach
Zum Verkauf steht eine außergewöhnliche und vielseitig nutzbare Immobilie in ruhiger Alleinlage, nur ca. 450 Meter vom Dorfrand entfernt. Das Anwesen verbindet modernen Wohnkomfort, großzügige Grundstücksflächen und ...
995.000 €
Kaufpreis
240 m²
Wohnfläche
7,5
Zimmer
11
Zwei-Zimmer-Wohnung in Pankow-Süd (Verfügbar 1-24 ...
Wohnung
13189 Berlin
Auf deutsch unten! This 65 square meter apartment has 2 bedrooms, has a great layout and is also suitable for flat sharers. While one room (the “South room”) offers 21 square meters big, the other one (the “North room” ...
1.450 €
Kaltmiete (netto)
65 m²
Wohnfläche
2
Zimmer
11
Renovierte Kapitalanlage mit EBK und Neckarblick. ...
Wohnung
70376 Stuttgart
360°-Rundgang: https://www.ohne-makler.net/panorama/430209/ Die Wohnung überzeugt durch einen durchdachten Grundriss, der verschiedene Vermietungskonzepte oder Selbstnutzung ermöglicht. Diese Wohnung fühlt sich vom ...
299.000 €
Kaufpreis
75,91 m²
Wohnfläche
4
Zimmer