Gemütliches Wohnhaus mit Wintergarten in ruhiger Wohnlage von Rottweil-Göllsdorf
300.000 €
Kaufpreis
130,25 m²
Wohnfläche
6
Zimmer
immobilien.de Nr.: 9523329
Objektnummer: 426293
Dateien
Kaufpreis
| Kaufpreis | 300.000 € |
| Maklerprovision | keine Provision, courtagefrei |
Wohnfläche, Grundstück & Bausubstanz
| Wohnfläche | 130,25 m² |
| Grundstücksfläche | 514 m² |
| Zimmer | 6 |
| Baujahr | 1962 |
| Verfügbar ab | sofort |
| Zustand | Gepflegt |
Energie
| Energieausweistyp | Bedarfsausweis |
| Energieeffizienzklasse | H |
| Endenergiebedarf | 317 |
| Heizungsart | Zentralheizung |
| Energieträger/Befeuerung | Öl |
Beschreibung der Immobilie
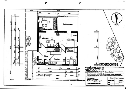
Einfamilienhaus in ruhiger Sackgassenlage in Rottwei-Göllsdorf
Dieses gepflegte Einfamilienhaus in der Sonnenhalde 7 in Göllsdorf überzeugt durch seine ruhige Wohnlage in einer kaum befahrenen Sackgasse sowie durch eine solide Bausubstanz mit zahlreichen Modernisierungen. Das Haus wurde ursprünglich 1962 bezogen und über die Jahrzehnte hinweg kontinuierlich renoviert und erweitert.
Wohnkomfort & Modernisierungen
Die Immobilie präsentiert sich in einem guten Zustand. Die Küche wurde vor einigen Jahren vollständig erneuert; die vorherige Küche ist im Keller installiert und eignet sich ideal als zusätzliche Vorratsküche. Hochwertige Meranti-Isolierglasfenster mit Aluminium-Außenschalen sowie eine moderne Haustüre sorgen für gute Energieeffizienz und Langlebigkeit. Das Badezimmer wurde ebenfalls komplett saniert.
Zwischen den Dachsparren wurde eine Dämmung eingebracht und mit Platten verkleidet – ein weiterer Pluspunkt für den energetischen Zustand des Hauses.
Großzügiger Anbau & Wintergarten
In den Jahren 1984/85 wurde ein großzügiger Anbau über die gesamte Hauslänge errichtet. Dieser umfasst:
- eine Garage
- einen beheizbaren Kellerraum
- einen beheizbaren Wintergarten im Obergeschoss
- eine große Terrasse mit elektrischer Markise
Der Wintergarten bietet dank elektrischer Jalousien und zusätzlicher Heizoptionen – Heizkörper oder Kachelofen – ganzjährigen Wohnkomfort.
Heizung & Energie
Das Haus wird über eine NT Viessmann-Ölheizung (Baujahr 1989) mit MAN-Gebläsebrenner (2003) beheizt. Laut Bezirksschornsteinfeger und Energieberater werden die Anforderungen des neuen Gebäudeenergiegesetzes mit diesem Niedertemperatur Kessel eingehalten. Somit muss kein Heizungsaustausch bei einem Eigentümerwechsel erfolgen. Der schriftliche Nachweis vom 19.03.2026 liegt vor. Ein Gasanschluss ist ebenfalls vorhanden und ermöglicht zukünftige Umrüstungen. Der Kachelofen im Wohnzimmer wird über einen Heizkörper beheizt und sorgt für angenehme Wärme.
Weitere Ausstattungsmerkmale
- große Regenwasserzisterne, teilweise im Boden eingelassen
- hochwertige Treppenlifte an beiden Treppen
- große Sat-Anlage für sehr guten TV-Empfang
- Möbel können auf Wunsch übernommen werden
- sofort bezugsfrei
Fazit:
Ein äußerst gepflegtes, fortlaufend modernisiertes Einfamilienhaus in ruhiger Wohnlage mit vielen Extras, großzügigem Anbau und hervorragender Nutzbarkeit. Ideal für Käufer, die Wert auf solide Bausubstanz, Komfort und sofortige Verfügbarkeit legen.
Dieses gepflegte Einfamilienhaus in der Sonnenhalde 7 in Göllsdorf überzeugt durch seine ruhige Wohnlage in einer kaum befahrenen Sackgasse sowie durch eine solide Bausubstanz mit zahlreichen Modernisierungen. Das Haus wurde ursprünglich 1962 bezogen und über die Jahrzehnte hinweg kontinuierlich renoviert und erweitert.
Wohnkomfort & Modernisierungen
Die Immobilie präsentiert sich in einem guten Zustand. Die Küche wurde vor einigen Jahren vollständig erneuert; die vorherige Küche ist im Keller installiert und eignet sich ideal als zusätzliche Vorratsküche. Hochwertige Meranti-Isolierglasfenster mit Aluminium-Außenschalen sowie eine moderne Haustüre sorgen für gute Energieeffizienz und Langlebigkeit. Das Badezimmer wurde ebenfalls komplett saniert.
Zwischen den Dachsparren wurde eine Dämmung eingebracht und mit Platten verkleidet – ein weiterer Pluspunkt für den energetischen Zustand des Hauses.
Großzügiger Anbau & Wintergarten
In den Jahren 1984/85 wurde ein großzügiger Anbau über die gesamte Hauslänge errichtet. Dieser umfasst:
- eine Garage
- einen beheizbaren Kellerraum
- einen beheizbaren Wintergarten im Obergeschoss
- eine große Terrasse mit elektrischer Markise
Der Wintergarten bietet dank elektrischer Jalousien und zusätzlicher Heizoptionen – Heizkörper oder Kachelofen – ganzjährigen Wohnkomfort.
Heizung & Energie
Das Haus wird über eine NT Viessmann-Ölheizung (Baujahr 1989) mit MAN-Gebläsebrenner (2003) beheizt. Laut Bezirksschornsteinfeger und Energieberater werden die Anforderungen des neuen Gebäudeenergiegesetzes mit diesem Niedertemperatur Kessel eingehalten. Somit muss kein Heizungsaustausch bei einem Eigentümerwechsel erfolgen. Der schriftliche Nachweis vom 19.03.2026 liegt vor. Ein Gasanschluss ist ebenfalls vorhanden und ermöglicht zukünftige Umrüstungen. Der Kachelofen im Wohnzimmer wird über einen Heizkörper beheizt und sorgt für angenehme Wärme.
Weitere Ausstattungsmerkmale
- große Regenwasserzisterne, teilweise im Boden eingelassen
- hochwertige Treppenlifte an beiden Treppen
- große Sat-Anlage für sehr guten TV-Empfang
- Möbel können auf Wunsch übernommen werden
- sofort bezugsfrei
Fazit:
Ein äußerst gepflegtes, fortlaufend modernisiertes Einfamilienhaus in ruhiger Wohnlage mit vielen Extras, großzügigem Anbau und hervorragender Nutzbarkeit. Ideal für Käufer, die Wert auf solide Bausubstanz, Komfort und sofortige Verfügbarkeit legen.
Ausstattungsmerkmale
| Anzahl der Etagen im Haus | 2 |
| Küche | Einbauküche |
| Bad | 1 |
| Bad | Dusche, Wanne |
| Boden | Fliesen, Teppich, Parkett, Laminat, Kunststoff |
| Balkone | 1 |
| Garten | |
| Terrassen | 1 |
| Fahrstuhl | |
| Garage/Stellplätze | 2 |
| Keller |
Balkon, Terrasse, Wintergarten, Garten, Keller, Fahrstuhl, Vollbad, Duschbad, Einbauküche, Gäste-WC, Kamin, Parkett, Laminat, Teppichboden, Fliesen
Bemerkungen:
• Ruhige Wohnlage in einer Sackgasse
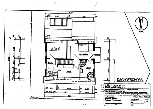
• Erstbezug 1962, Pläne von 1958
• Laufend renoviert und gepflegt
• Möbelübernahme möglich
• Sofort bezugsfrei
Fenster & Türen
• Hochwertige Meranti-Isolierglasfenster mit Aluminium-Außenschalen
• Moderne, hochwertige Haustüre
Innenausstattung
• Komplett sanierte Küche (neuere Einbauküche)
• Zusätzliche ältere Küche im Keller (ideal als Vorratsküche)
• Kombiherd mit Cerankochfeld (2 Platten) und Gas (2 Kochstellen)
• Komplett saniertes Badezimmer
• Kachelofen im Wohnzimmer (über Heizkörper beheizt)
• Dämmung zwischen den Dachsparren, anschließend verkleidet
• Bühnenaufgang kann zur Wärmedämmung mit einer Falltür verschlossen werden
• Eingebauter Kleiderschrank unter der Dachschräge-Bühne, verschließbar
• Bad-Einbauschrank
• Im EG Eingangsbereich, große und tiefe Wandschränke.
Heizung & Energie
• Viessmann-Ölheizung, Baujahr 1989
• MAN-Gebläsebrenner, Baujahr 2003
• Gasanschluss vorhanden
• Wintergarten beheizbar über Heizkörper oder Kachelofen
Anbau (1984/85)
• Garage
• Beheizbarer Kellerraum
• Beheizbarer Wintergarten im Obergeschoss
• Große Terrasse über dem Anbau
• Elektrische Jalousien zur Wintergarten-Beschattung
• Große elektrische Markise für die Terrasse
Technik & Komfort
• Große Sat-Anlage für sehr guten TV-Empfang
• Hochwertige Treppenlifte an beiden Treppen
• EG-OG Treppenlift mit automatischer Klappschiene
• Große Regenwasserzisterne (teilweise im Boden eingelassen)
Bemerkungen:
• Ruhige Wohnlage in einer Sackgasse
• Erstbezug 1962, Pläne von 1958
• Laufend renoviert und gepflegt
• Möbelübernahme möglich
• Sofort bezugsfrei
Fenster & Türen
• Hochwertige Meranti-Isolierglasfenster mit Aluminium-Außenschalen
• Moderne, hochwertige Haustüre
Innenausstattung
• Komplett sanierte Küche (neuere Einbauküche)
• Zusätzliche ältere Küche im Keller (ideal als Vorratsküche)
• Kombiherd mit Cerankochfeld (2 Platten) und Gas (2 Kochstellen)
• Komplett saniertes Badezimmer
• Kachelofen im Wohnzimmer (über Heizkörper beheizt)
• Dämmung zwischen den Dachsparren, anschließend verkleidet
• Bühnenaufgang kann zur Wärmedämmung mit einer Falltür verschlossen werden
• Eingebauter Kleiderschrank unter der Dachschräge-Bühne, verschließbar
• Bad-Einbauschrank
• Im EG Eingangsbereich, große und tiefe Wandschränke.
Heizung & Energie
• Viessmann-Ölheizung, Baujahr 1989
• MAN-Gebläsebrenner, Baujahr 2003
• Gasanschluss vorhanden
• Wintergarten beheizbar über Heizkörper oder Kachelofen
Anbau (1984/85)
• Garage
• Beheizbarer Kellerraum
• Beheizbarer Wintergarten im Obergeschoss
• Große Terrasse über dem Anbau
• Elektrische Jalousien zur Wintergarten-Beschattung
• Große elektrische Markise für die Terrasse
Technik & Komfort
• Große Sat-Anlage für sehr guten TV-Empfang
• Hochwertige Treppenlifte an beiden Treppen
• EG-OG Treppenlift mit automatischer Klappschiene
• Große Regenwasserzisterne (teilweise im Boden eingelassen)
Sonstige Informationen
Heizungsart: Zentralheizung
Energieträger: Öl
Wenn Ihnen der Preis zu hoch ist, können Sie gerne ein Angebot machen!
Hinweis: Auf Kleinanzeigen können nur 40 Fotos angezeigt werden, auf den Immobilien Portalen in der Regel 50 und die Pläne.
Makleranfragen nicht erwünscht. Nach § 7 UWG sind unaufgeforderte Kontaktaufnahmen durch Makler ohne ausdrückliche Einwilligung des Empfängers verboten!
ohne-makler (OM) ist weder Anbieter noch Vermittler der Immobilie. OM betreibt eine Plattform für Immobilieneigentümer, die unter anderem die gleichzeitige Veröffentlichung einzelner Inserate auf mehreren Immobilienportalen ermöglicht. Die Inhalte dieser Inserate werden ausschließlich von Dritten verantwortet. Für die Richtigkeit, Vollständigkeit oder Rechtmäßigkeit der Angaben übernimmt OM keine Haftung. Hinweise auf mögliche Rechtsverstöße können jederzeit gemeldet werden und werden nach Prüfung umgehend bearbeitet.
Energieträger: Öl
Wenn Ihnen der Preis zu hoch ist, können Sie gerne ein Angebot machen!
Hinweis: Auf Kleinanzeigen können nur 40 Fotos angezeigt werden, auf den Immobilien Portalen in der Regel 50 und die Pläne.
Makleranfragen nicht erwünscht. Nach § 7 UWG sind unaufgeforderte Kontaktaufnahmen durch Makler ohne ausdrückliche Einwilligung des Empfängers verboten!
ohne-makler (OM) ist weder Anbieter noch Vermittler der Immobilie. OM betreibt eine Plattform für Immobilieneigentümer, die unter anderem die gleichzeitige Veröffentlichung einzelner Inserate auf mehreren Immobilienportalen ermöglicht. Die Inhalte dieser Inserate werden ausschließlich von Dritten verantwortet. Für die Richtigkeit, Vollständigkeit oder Rechtmäßigkeit der Angaben übernimmt OM keine Haftung. Hinweise auf mögliche Rechtsverstöße können jederzeit gemeldet werden und werden nach Prüfung umgehend bearbeitet.
Karte wird geladen...
Objektstandort
Sonnenhalde 7
78628 Rottweil-Göllsdorf
- Baden-Württemberg
Lage & Infrastruktur
Objektstandort
Sonnenhalde 7
78628 Rottweil-Göllsdorf
- Baden-Württemberg
Lagebeschreibung
Das Wohnhaus befindet sich in einer äußerst ruhigen und familienfreundlichen Lage von Göllsdorf, einem beliebten Stadtteil von Rottweil. Die Sonnenhalde ist eine reine Wohnstraße und endet in einer Sackgasse, wodurch kaum Verkehr entsteht und ein besonders angenehmes, sicheres Wohnumfeld gewährleistet ist.
Die Umgebung ist geprägt von gepflegten Einfamilienhäusern, viel Grün und einer harmonischen Nachbarschaft. Einkaufsmöglichkeiten, Schulen, Kindergarten, Ärzte und weitere Einrichtungen des täglichen Bedarfs sind im Ortsteil selbst oder im nahegelegenen Rottweil schnell erreichbar. Die Anbindung an den öffentlichen Nahverkehr ist gut, und auch die Wege in die Innenstadt oder zu den umliegenden Gemeinden sind kurz.
Die naturnahe Lage bietet zudem einen hohen Freizeitwert: Spazier- und Wanderwege, Wälder und Naherholungsflächen befinden sich in unmittelbarer Umgebung. Gleichzeitig profitiert der Standort von der Nähe zur A81, wodurch die Region Stuttgart sowie der Bodenseeraum bequem erreichbar sind.
Insgesamt verbindet die Lage ruhiges Wohnen, gute Infrastruktur und eine attraktive Umgebung – ideal für alle, die Wert auf Lebensqualität und ein entspanntes Wohnumfeld legen.
Infrastruktur (im Umkreis von 5 km):
Apotheke, Lebensmittel-Discount, Allgemeinmediziner, Kindergarten, Grundschule, Hauptschule, Realschule, Gymnasium, Gesamtschule, Öffentliche Verkehrsmittel
Das Wohnhaus befindet sich in einer äußerst ruhigen und familienfreundlichen Lage von Göllsdorf, einem beliebten Stadtteil von Rottweil. Die Sonnenhalde ist eine reine Wohnstraße und endet in einer Sackgasse, wodurch kaum Verkehr entsteht und ein besonders angenehmes, sicheres Wohnumfeld gewährleistet ist.
Die Umgebung ist geprägt von gepflegten Einfamilienhäusern, viel Grün und einer harmonischen Nachbarschaft. Einkaufsmöglichkeiten, Schulen, Kindergarten, Ärzte und weitere Einrichtungen des täglichen Bedarfs sind im Ortsteil selbst oder im nahegelegenen Rottweil schnell erreichbar. Die Anbindung an den öffentlichen Nahverkehr ist gut, und auch die Wege in die Innenstadt oder zu den umliegenden Gemeinden sind kurz.
Die naturnahe Lage bietet zudem einen hohen Freizeitwert: Spazier- und Wanderwege, Wälder und Naherholungsflächen befinden sich in unmittelbarer Umgebung. Gleichzeitig profitiert der Standort von der Nähe zur A81, wodurch die Region Stuttgart sowie der Bodenseeraum bequem erreichbar sind.
Insgesamt verbindet die Lage ruhiges Wohnen, gute Infrastruktur und eine attraktive Umgebung – ideal für alle, die Wert auf Lebensqualität und ein entspanntes Wohnumfeld legen.
Infrastruktur (im Umkreis von 5 km):
Apotheke, Lebensmittel-Discount, Allgemeinmediziner, Kindergarten, Grundschule, Hauptschule, Realschule, Gymnasium, Gesamtschule, Öffentliche Verkehrsmittel
Kontaktanfrage senden
Über den Anbieter
OM PropTech GmbH
Humboldtstraße 25a
21509 Glinde
Kontakt
| Telefon | - |
| Fax | - |
| Website | www.ohne-makler.net |
Ansprechpartner/in
Privat vom Eigentümer
Weitere Angebote des Anbieters
12
2Raumwohnung mit Wohnküche
Wohnung
58452 Witten
Diese Wohnung wird nur an maximal zwei Personen über 25 Jahren, die arbeiten, vermietet. Voraussetzung für einen Mietvertrag ist Berufstätig und Deutschsprachigkeit. Besichtigungen können nur Vormittags angeboten ...
450 €
Kaltmiete (netto)
65 m²
Wohnfläche
2
Zimmer
15
Attraktive 4 Zi.-Wohnung im schönen Rahlstedt
Wohnung
22149 Hamburg
Diese moderne, ca. 84 qm große, Wohnung im 2. OG mit 4 Zimmern hatte bereits 2014 eine Sanierung und Modernisierung erfahren und aktuell wurden nun noch sämtliche Türen und Fußleisten sowie die Elektrik erneuert; die ...
435.000 €
Kaufpreis
84 m²
Wohnfläche
4
Zimmer
3
Schöne ein Zimmer Souterrainwohnung in Hamburg-Niendorf ...
Wohnung
22453 Hamburg
Diese helle 1-Zimmer-Souterrainwohnung im Tiefparterre mit ca. 32 m² Wohnfläche befindet sich nur etwa 250 Meter vom Niendorf Markt entfernt. Die Wohnung bietet ein angenehmes Wohnambiente und eignet sich ideal für ...
600 €
Kaltmiete (netto)
33 m²
Wohnfläche
1
Zimmer
16
Haus mit Moselblick zu vermieten
Haus
56861 Reil
Dieses 2023 renovierte Haus vereint Wohnkomfort mit moselländischem Charme. Hohe Decken, großzügig geschnittene Räume, Einbauküche, Masterbad mit Regendusche, Gäste WC und teilweise Möbilierung stehen zur Verfügung. ...
1.200 €
Kaltmiete (netto)
142 m²
Wohnfläche
5
Zimmer
9
Modernisierte 3,5-Zimmer-Wohnung mit neuem Bad & neuen ...
Wohnung
45133 Essen
- Erstbezug nach Modernisierung - Die angebotene Wohnung befindet sich in einem gepflegten Mehrfamilienhaus in Essen. Die Wohnung wurde umfassend modernisiert und bietet einen hochwertigen, zeitgemäßen Wohnstandard. ...
1.130 €
Kaltmiete (netto)
94,14 m²
Wohnfläche
3,5
Zimmer