*In Planung!*aus 2 mach 1*4 oder 5 RWG mit zwei Balkonen*
800 €
Kaltmiete
1.200 €
Warmmiete
97,12 m²
Wohnfläche
5
Zimmer
immobilien.de Nr.: 9523199
Objektnummer: CS-FL31-5rwg
Mietpreis & Nebenkosten
| Kaltmiete | 800 € |
| Warmmiete | 1.200 € |
| Nebenkosten | 400 € |
| Heizkosten enthalten | Ja |
| Mietpreis pro m² | 8,24 € |
| Kaution | 2.400 € |
Wohnfläche, Grundstück & Bausubstanz
| Wohnfläche | 97,12 m² |
| Zimmer | 5 |
| Baujahr | 1925 |
| Verfügbar ab | 01.05.2026 |
| Zustand | Teil Vollsaniert |
Energie
| Energieausweistyp | Verbrauch |
| Gültig bis | 2020-06-16 |
| Energieverbrauchkennwert | 138.40 kWh/(m²*a) |
| Heizungsart | Zentralheizung |
| Wesentlicher Energieträger | Gas |
| Energieträger/Befeuerung | Gas |
Beschreibung der Immobilie
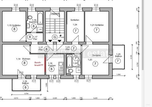
Hier können wir aus zwei 2 Raumwohnungen durch einen Durchbruch im Flur eine große 4 RWG (mit zwei Küchen) oder eine 5 RWG (Rückbau einer Küche) herrichten.
Beide Wohnungen sind noch bewohnt. Die linke Wohnung ist möbliert. Renovierungszustand etc sind daher noch nicht bekannt - und Absprachefähig.
Kurz: Bei Interesse einfach kurz eine Emailanfrage mit Rufnummer senden und wir stimmen uns direkt ab. Vielen Dank.
Beide Wohnungen sind noch bewohnt. Die linke Wohnung ist möbliert. Renovierungszustand etc sind daher noch nicht bekannt - und Absprachefähig.
Kurz: Bei Interesse einfach kurz eine Emailanfrage mit Rufnummer senden und wir stimmen uns direkt ab. Vielen Dank.
Ausstattungsmerkmale
| Anzahl der Etagen im Haus | 3 |
| Inserat befindet sich im Stockwerk | 0 |
| Küche | Einbauküche |
| Bad | 2 |
| Bad | Wanne, Fenster |
| Boden | Fliesen, Laminat, Kunststoff |
| Balkone | 2 |
| Keller |
- 4 oder 5 Räume
- je nachdem ob 1 oder 2 Küchen
- zwei Balkone
- Laminat, Fliesen, PVC
- angenehm große Wohn- und Schlafräume
- Tageslichtbäder mit Wanne und WM-Anschluss
- separate Küche
- Einbauküche vorhanden
- je nachdem ob 1 oder 2 Küchen
- zwei Balkone
- Laminat, Fliesen, PVC
- angenehm große Wohn- und Schlafräume
- Tageslichtbäder mit Wanne und WM-Anschluss
- separate Küche
- Einbauküche vorhanden
Sonstige Informationen
Es liegt ein Energieverbrauchsausweis vor.
Dieser ist gültig bis 16.6.2020.
Endenergieverbrauch beträgt 138.40 kwh/(m²*a).
Wesentlicher Energieträger der Heizung ist Gas.
Alle Angaben zum Objekt und dem Mietpreis, sowie Größen der Wohnungen beruhen auf den Angaben des Eigentümers. Für die Richtigkeit übernehmen wir keine Gewährleistung.
Weitere Objekte finden Sie unter www.leipzig-estate.de
Dieser ist gültig bis 16.6.2020.
Endenergieverbrauch beträgt 138.40 kwh/(m²*a).
Wesentlicher Energieträger der Heizung ist Gas.
Alle Angaben zum Objekt und dem Mietpreis, sowie Größen der Wohnungen beruhen auf den Angaben des Eigentümers. Für die Richtigkeit übernehmen wir keine Gewährleistung.
Weitere Objekte finden Sie unter www.leipzig-estate.de
Karte wird geladen...
Objektstandort
Friedrich-List-Straße 31
04552 Borna
- Sachsen
Lage & Infrastruktur
Objektstandort
Friedrich-List-Straße 31
04552 Borna
- Sachsen
Der traditionsreiche Standort Borna befindet sich in der Wirtschaftsregion Mitteldeutschland. Chemie- und Kunststoffindustrie, Kommunikations- und Steuerungstechnik, Bau und Dienstleistungsgewerbe sowie Handel
sind die dominierenden Branchen. Die Nähe zum prosperierenden Oberzentrum Leipzig soll den Zugang zu neuen Märkten voranbringen.
Mit einer Fläche von 62,35 km² bestehend aus der Kernstadt und den 8 Ortsteilen bildet Borna das Zentrum des Landkreises Leipzig. Mit der Bundesautobahn A 72 hat Borna eine leistungsfähige Verkehrsverbindung zu den Regionen Leipzig/Halle und Chemnitz/Zwickau erhalten.
sind die dominierenden Branchen. Die Nähe zum prosperierenden Oberzentrum Leipzig soll den Zugang zu neuen Märkten voranbringen.
Mit einer Fläche von 62,35 km² bestehend aus der Kernstadt und den 8 Ortsteilen bildet Borna das Zentrum des Landkreises Leipzig. Mit der Bundesautobahn A 72 hat Borna eine leistungsfähige Verkehrsverbindung zu den Regionen Leipzig/Halle und Chemnitz/Zwickau erhalten.
Kontaktanfrage senden
Über den Anbieter
LEIPZIG estate TEWS, Ohnesorge, Kupferschmied, Anscheit GbR
Waldstr. 55
04105 Leipzig
Kontakt
| Telefon | 00491784142313 |
Ansprechpartner/in
Frau Carolin Slowikowski
Weitere Angebote des Anbieters
22
*In Planung!*aus 2 mach 1*4 oder 5 RWG mit zwei ...
Wohnung
04552 Borna
Hier können wir aus zwei 2 Raumwohnungen durch einen Durchbruch im Flur eine große 4 RWG (mit zwei Küchen) oder eine 5 RWG (Rückbau einer Küche) herrichten. Beide Wohnungen sind noch bewohnt. Die linke Wohnung ist ...
800 €
Kaltmiete
8,24 €
Mietpreis pro m²
97,12 m²
Wohnfläche
5
Zimmer
11
erst 2021 kernsaniert ,250qm Bürofläche, in ...
Büro / Praxen
04178 Böhlitz-Ehrenberg
Zur Vermietung steht eine etwa 250qm große Büro-Einheit, im 2OG, eines erst 2021 kernsanierten Bürogebäudes der 80iger. Das Büro wurde bis dato von deiner Spedition genutzt und kann ab sofort angemietet werden. Weitere ...
2.082,5 €
Kaltmiete
1.750 €
Kaltmiete (netto)
7 €
Mietpreis pro m²
250 m²
Gesamtfläche
13
+++Hinterhaus, ruhige 3 Zimmer-Wohnung, EBK, Parkett, ...
Wohnung
04315 Leipzig / Neustadt-Neuschönefeld
Schöne geräumige und ruhige 3 Zimmer-Wohnung im Hinterhaus, sanierter Altbau. Die Wohnung verfügt über eine neue Einbauküche. Das Bad ist mit Dusche, Fenster und WM-Anschluss ausgestattet. Ein Waschraum mit ...
580 €
Kaltmiete
7,52 €
Mietpreis pro m²
77,1 m²
Wohnfläche
3
Zimmer
14
*Erstbezug nach hochwertiger Sanierung*
Wohnung
09131 Chemnitz
Schön geräumige Zimmer. 2 Räume im sanierten Altbau. Die Wohnräume sind mit neuem Vinyl versehen. Dem Mieter kann auf Wunsch und im Mietpreis enthalten, ein eigener Gartenanteil zur Nutzung bereit gestellt werden. Das ...
380 €
Kaltmiete
6,55 €
Mietpreis pro m²
58 m²
Wohnfläche
2
Zimmer
12
Balkon*Erstbezug nach vollständiger Renovierung
Wohnung
09131 Chemnitz
Ende des Jahres erhält die Wohnung einen Balkon. Schön helle und lichtdurchflutete Zimmer. 3 Räume im sanierten Altbau. Die Wohnräume sind mit neuem Vinyl versehen. Das Tageslichtbad ist mit Wanne ausgestattet. Die ...
460 €
Kaltmiete
6,48 €
Mietpreis pro m²
71 m²
Wohnfläche
3
Zimmer