Exklusiv & modern: Ein Haus, das Ihre Erwartungen übertrifft!
433.220 €
Kaufpreis
118 m²
Wohnfläche
5
Zimmer
immobilien.de Nr.: 9522675
Objektnummer: 9096
Kaufpreis
| Kaufpreis | 433.220 € |
Wohnfläche, Grundstück & Bausubstanz
| Wohnfläche | 118 m² |
| Grundstücksfläche | 672 m² |
| Zimmer | 5 |
| Baujahr | 2026 |
| Verfügbar ab | keine Angabe |
| Zustand | Projektiert |
Energie
| Energietyp | Niedrigenergie |
| Energieträger/Befeuerung | Luft-Wärme-Pumpe |
Beschreibung der Immobilie
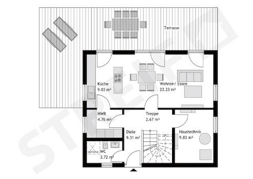
Das behagliche Family-Haus mit Satteldach aus der Aktion "Unsere Besten" punktet mit einem gut
durchdachten Grundriss. Der offen gestaltete Wohn-/Ess- und Kochbereich ist
lichtdurchflutet. Ein praktischer Hauswirtschaftsraum ist direkt neben der Küche platziert.
Komplettiert wird das Raumangebot im Erdgeschoss mit einem Gäste-WC, das optional
auch als Duschbad ausgeführt werden kann, einer Diele und einem Haustechnikraum.
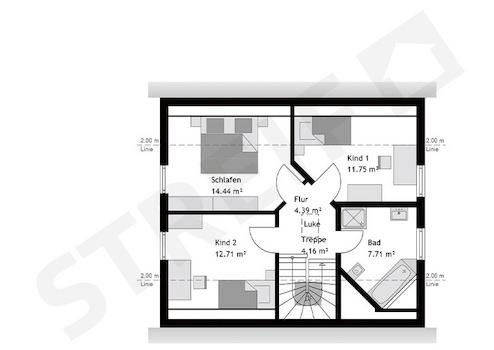
Im Dachgeschoss des Hauses sind zwei schöne Kinderzimmer, ein Elternschlafzimmer, ein
Flur und ein Familienbad untergebracht. Die Netto-Raumfläche beträgt 117,65 m².
Objektart: Einfamilienhaus, 1,5-geschossig
Dachform: Satteldach
Kniestock: 0,75 m
Hausmaße: 9,33 x 8,08 m
Netto-Raumfläche: 117,65 m²
Dieses Haus gibt es in anderen Größen und Ausbaustufen.
durchdachten Grundriss. Der offen gestaltete Wohn-/Ess- und Kochbereich ist
lichtdurchflutet. Ein praktischer Hauswirtschaftsraum ist direkt neben der Küche platziert.
Komplettiert wird das Raumangebot im Erdgeschoss mit einem Gäste-WC, das optional
auch als Duschbad ausgeführt werden kann, einer Diele und einem Haustechnikraum.
Im Dachgeschoss des Hauses sind zwei schöne Kinderzimmer, ein Elternschlafzimmer, ein
Flur und ein Familienbad untergebracht. Die Netto-Raumfläche beträgt 117,65 m².
Objektart: Einfamilienhaus, 1,5-geschossig
Dachform: Satteldach
Kniestock: 0,75 m
Hausmaße: 9,33 x 8,08 m
Netto-Raumfläche: 117,65 m²
Dieses Haus gibt es in anderen Größen und Ausbaustufen.
Ausstattungsmerkmale
| Anzahl der Etagen im Haus | 2 |
| Küche | Offene Küche |
| Bad | 2 |
| Bad | Dusche, Wanne, Fenster |
Das Streif City Haus wird im Standard KFW 40 PLUS ausgeführt. KfW Effizienshaus inkl. Haustechnik aus dem STREIF-Programm in der Ausbaustufe FF+ inklusive einer gedämmten Fundamentplatte.
■ Rohbau (geschlossene Gebäudehülle) mit Fenstern, Haustür, Dacheindeckung
■ Außenfassade inkl. Außenputz, vor Ort komplett fertiggestellt
■ Komplette Blechner-/Spenglerarbeiten
■ lnnen-/Außenwände wärme- und schallgedämmt und mit Gipsfaserplatten geschlossen
■ Geschosstreppe (außer Bungalow)
■ Decken wärme- und schallgedämmt und mit Gipskarton Bauplatten geschlossen
■ Elektroinstallation, einschließlich erforderlichem Zählerschrank und Inbetriebnahme
■ Heizungsanlage inkl. Inbetriebnahme
■ Innenfensterbänke Kunststeinbänke (Gussmarmorbänke) inkl. Einbau
■ Estrich
■ Sanitärräume mit Wand- und Bodenfliesen
■ Sanitärräume mit Sanitärobjekten
■ 6,23 kWp Photovoltaikanlage und 7,7 kWh Speicher
Die Innentüren sowie Wand-, Decken- und Bodenbeläge der übrigen Räume sind Eigenleistungen des Bauherren.
STREIF Frischluft-Wärmepumpen-Technologie - inklusive
- Heizen mit frischer Außenluft
- Kein Gasanschluss, kein Öl- oder Pelletlagerraum
- Keine Heizkörper
- Wärmetauscher mit bis zu 85% Wärmerückgewinnung
Die dargestellten Bilder können Sonderausstattungen beinhalten, die nicht im Preis enthalten sind!
zzgl. Ortüblicher Baunebenkosten
Selbstverständlich können wir Ihr Haus auch schlüsselfertig / bezugsfertig errichten.
■ Bodenbeläge, Sockelleisten verlegt
■ Maler- und Tapezierarbeiten
■ Innentüren inkl. Einbau
■ Rohbau (geschlossene Gebäudehülle) mit Fenstern, Haustür, Dacheindeckung
■ Außenfassade inkl. Außenputz, vor Ort komplett fertiggestellt
■ Komplette Blechner-/Spenglerarbeiten
■ lnnen-/Außenwände wärme- und schallgedämmt und mit Gipsfaserplatten geschlossen
■ Geschosstreppe (außer Bungalow)
■ Decken wärme- und schallgedämmt und mit Gipskarton Bauplatten geschlossen
■ Elektroinstallation, einschließlich erforderlichem Zählerschrank und Inbetriebnahme
■ Heizungsanlage inkl. Inbetriebnahme
■ Innenfensterbänke Kunststeinbänke (Gussmarmorbänke) inkl. Einbau
■ Estrich
■ Sanitärräume mit Wand- und Bodenfliesen
■ Sanitärräume mit Sanitärobjekten
■ 6,23 kWp Photovoltaikanlage und 7,7 kWh Speicher
Die Innentüren sowie Wand-, Decken- und Bodenbeläge der übrigen Räume sind Eigenleistungen des Bauherren.
STREIF Frischluft-Wärmepumpen-Technologie - inklusive
- Heizen mit frischer Außenluft
- Kein Gasanschluss, kein Öl- oder Pelletlagerraum
- Keine Heizkörper
- Wärmetauscher mit bis zu 85% Wärmerückgewinnung
Die dargestellten Bilder können Sonderausstattungen beinhalten, die nicht im Preis enthalten sind!
zzgl. Ortüblicher Baunebenkosten
Selbstverständlich können wir Ihr Haus auch schlüsselfertig / bezugsfertig errichten.
■ Bodenbeläge, Sockelleisten verlegt
■ Maler- und Tapezierarbeiten
■ Innentüren inkl. Einbau
Sonstige Informationen
STREIF Haus - der Pionier der deutschen Fertighausbranche
Die langjährige Firmentradition des Unternehmens reicht bis in das Jahr 1929 zurück. In den 50er und 60er Jahren wurde in Deutschland schnell und viel Wohnraum für Familien benötigt, seitdem konzentrierte sich das Unternehmen auf die Entwicklung und Produktion von Fertighaustypen, die im Werk in großen Stückzahlen hergestellt werden konnten. So kann das Unternehmen auf 90.000 gebaute Hausobjekte zurückblicken und sich zu Recht als Pionier der deutschen Fertighausbranche bezeichnen.
Die neuen Energiesparhäuser - So baut man heute.
Unser Anspruch ist es, in enger Partnerschaft mit unseren Kunden langlebige Häuser zu bauen, mit einer hohen architektonischen Qualität, individuell geplant und dabei energieeffizient und ressourcenschonend. Jedes STREIF-Haus ist einzigartig und wird speziell für jeden Kunden "maßgeschneidert" und gebaut. Passend zu den persönlichen Wünschen, dem vorgegebenen Budget und dem vorhandenen Grundstück planen und bauen wir jedes Haus mit viel Liebe zum Detail.
Die langjährige Firmentradition des Unternehmens reicht bis in das Jahr 1929 zurück. In den 50er und 60er Jahren wurde in Deutschland schnell und viel Wohnraum für Familien benötigt, seitdem konzentrierte sich das Unternehmen auf die Entwicklung und Produktion von Fertighaustypen, die im Werk in großen Stückzahlen hergestellt werden konnten. So kann das Unternehmen auf 90.000 gebaute Hausobjekte zurückblicken und sich zu Recht als Pionier der deutschen Fertighausbranche bezeichnen.
Die neuen Energiesparhäuser - So baut man heute.
Unser Anspruch ist es, in enger Partnerschaft mit unseren Kunden langlebige Häuser zu bauen, mit einer hohen architektonischen Qualität, individuell geplant und dabei energieeffizient und ressourcenschonend. Jedes STREIF-Haus ist einzigartig und wird speziell für jeden Kunden "maßgeschneidert" und gebaut. Passend zu den persönlichen Wünschen, dem vorgegebenen Budget und dem vorhandenen Grundstück planen und bauen wir jedes Haus mit viel Liebe zum Detail.
Karte wird geladen...
Objektstandort
Schwalbenweg 2
15526 Bad Saarow OT Reichwalde
Lage & Infrastruktur
Objektstandort
Schwalbenweg 2
15526 Bad Saarow OT Reichwalde
Das von unserem Kooperationspartner angebotene Baugrundstück liegt im Grünen, umgeben von Natur und Wäldern. In der familienfreundlichen Umgebung finden sich Einkaufsmöglichkeiten, Schulen und Gesundheitseinrichtungen. Die nahegelegene Stadt Storkow ist für seine malerische Altstadt, seinen See und seine vielfältigen Freizeitangebote bekannt, was das Grundstück zu einer attraktiven Wohnlage für Familien macht.
Die Städte Berlin, Fürstenwalde und Frankfurt/Oder sind mit dem Auto oder öffentlichen Verkehrsmitteln sehr gut erreichbar.
Die Städte Berlin, Fürstenwalde und Frankfurt/Oder sind mit dem Auto oder öffentlichen Verkehrsmitteln sehr gut erreichbar.
Kontaktanfrage senden
Über den Anbieter
STREIF Haus GmbH
Josef-Streif-Straße 1
54595 Weinsheim
Kontakt
| Telefon | +49 30 67390424 |
| Mobil | +49 172 1588519 |
| Website | www.streif.de |
Ansprechpartner/in
Herr Andreas Ott
Weitere Angebote des Anbieters
14
Hier schlägt Ihre Zukunft Wurzeln: Grundstück und Haus ...
Haus
56841 Traben-Trarbach
Ein Haus auf dem Papier ist gut - es live zu erleben ist besser. Auch wenn dieses Haus noch nicht real ist, können Sie schon heute erleben, wie es sich anfühlen könnte: In unserem STREIF-Musterhaus in Mülheim-Kärlich ...
391.100 €
Kaufpreis
117,71 m²
Wohnfläche
4
Zimmer
18
Schluss mit Schrägen - 100% Wohnglück für Ihre Familie! ...
Haus
56743 Mendig
Erleben Sie großzügiges Wohnen mit stilvoller Architektur und individueller Raumplanung! Die City XL von STREIF begeistert auf ca. 144 m² Netto-Raumfläche mit klaren Linien, moderner Gestaltung und flexiblen ...
526.800 €
Kaufpreis
144 m²
Wohnfläche
5
Zimmer
15
Ihr exklusiver Neubau mit Platz für die ganze Familie.
Haus
56751 Polch
Großzügiges Wohnen für höchste Ansprüche - Ihr Streifhaus mit Gästezimmer, zwei Bädern und Ankleide: Willkommen in Ihrem neuen Zuhause, das modernen Lebensstil, Großzügigkeit und individuelle Planung perfekt vereint! ...
555.410 €
Kaufpreis
163,37 m²
Wohnfläche
4
Zimmer
17
Ihr Bungalow, individuell geplant und perfekt umgesetzt ...
Haus
56651 Niederzissen
Der Bungalow umfasst 2 Schlafzimmer sowie ein Badezimmer mit Dusche, Wanne und Fenster, ergänzt durch ein zusätzliches Gäste-WC. Die Wahl der Bodenbeläge liegt dabei ganz in Ihrem Ermessen - ob stilvolle Fliesen oder ...
521.100 €
Kaufpreis
117 m²
Wohnfläche
4
Zimmer
16
Hier schlägt Ihre Zukunft Wurzeln: Grundstück und Haus ...
Haus
56812 Valwig
Willkommen in Ihrem neuen Traumhaus! Dieses wunderschöne Einfamilienhaus, projektiert nach Ihren individuellen Wünschen, bietet Ihnen auf 142,92 m² Wohnfläche mit 4 Zimmern und 4 Schlafzimmern ausreichend Platz für ...
610.800 €
Kaufpreis
142,92 m²
Wohnfläche
4
Zimmer