Dein Haus. Dein Garten. Dein Grillmoment - mit STREIF.
745.500 €
Kaufpreis
192,77 m²
Wohnfläche
7
Zimmer
immobilien.de Nr.: 9522664
Objektnummer: 9088
Kaufpreis
| Kaufpreis | 745.500 € |
Wohnfläche, Grundstück & Bausubstanz
| Wohnfläche | 192,77 m² |
| Grundstücksfläche | 605 m² |
| Zimmer | 7 |
| Verfügbar ab | keine Angabe |
Beschreibung der Immobilie
Exklusive STREIF Stadtvilla - modernes Wohnen mit versetzten Erkern, Balkon und Flachdach
Willkommen in einer Villa, die modernes Design, architektonische Raffinesse und funktionalen Wohnkomfort perfekt miteinander verbindet! Die Exklusive Stadtvilla 8 von STREIF bietet auf ca. 193 m² Netto-Raumfläche eine innovative Wohnlösung für höchste Ansprüche an Stil, Raumgefühl und Lebensqualität.
Das elegante Flachdach unterstreicht den modernen Charakter der Stadtvilla und harmoniert perfekt mit der klaren Linienführung und den raffiniert gesetzten architektonischen Akzenten.
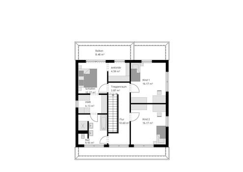
Ein besonderes Highlight sind die zwei versetzt angeordneten Erker: Einer öffnet sich zur Vorderseite und setzt spannende architektonische Akzente, während der zweite Erker sich zum Garten orientiert und gleichzeitig im Obergeschoss einen integrierten Balkon schafft - Ihre private Freiluftoase für sonnige Stunden oder entspannte Abende.
Der überdachte Eingangsbereich im Erdgeschoss heißt Sie stilvoll willkommen, während der überdachte Terrassenbereich auf der Rückseite des Hauses den Wohn-/Essbereich elegant mit dem Außenraum verbindet.
Zwei Vollgeschosse ohne Dachschrägen ermöglichen eine optimale Nutzung aller Flächen und bieten maximale Flexibilität bei der Gestaltung Ihres individuellen Wohnkonzepts.
Als Effizienzhaus 40 gebaut, eröffnet Ihnen die Stadtvilla 8 attraktive Fördermöglichkeiten: Bis zu 100.000 EUR zinsgünstiges Darlehen durch das Programm "Klimafreundlicher Neubau" (KFN) oder bis zu 150.000 EUR bei zusätzlicher QNG-Zertifizierung. Familien können zusätzlich Förderdarlehen bis zu 250.000 EUR erhalten.
Zur hochwertigen Serienausstattung gehören selbstverständlich eine Luft-Wasser-Wärmepumpe, eine kontrollierte Be- und Entlüftungsanlage sowie eine behagliche Fußbodenheizung.
Ihre Vorteile auf einen Blick:
-Ca. 193 m² großzügige Netto-Raumfläche
-Zwei versetzt angeordnete Erker für spannende Architektur
-Integrierter Balkon im Obergeschoss zur Gartenseite
-Überdachter Eingangsbereich und überdachte Terrasse im Erdgeschoss
-Zwei Vollgeschosse ohne Dachschrägen
-Modernes Flachdach-Design
Energieeffizienzhaus 40 - förderfähig nach KFN und QNG
Hochwertige technische Ausstattung inklusive
Erleben Sie innovatives Wohnen, architektonische Vielfalt und höchsten Komfort - mit Ihrer exklusiven STREIF Stadtvilla.
Willkommen in einer Villa, die modernes Design, architektonische Raffinesse und funktionalen Wohnkomfort perfekt miteinander verbindet! Die Exklusive Stadtvilla 8 von STREIF bietet auf ca. 193 m² Netto-Raumfläche eine innovative Wohnlösung für höchste Ansprüche an Stil, Raumgefühl und Lebensqualität.
Das elegante Flachdach unterstreicht den modernen Charakter der Stadtvilla und harmoniert perfekt mit der klaren Linienführung und den raffiniert gesetzten architektonischen Akzenten.
Ein besonderes Highlight sind die zwei versetzt angeordneten Erker: Einer öffnet sich zur Vorderseite und setzt spannende architektonische Akzente, während der zweite Erker sich zum Garten orientiert und gleichzeitig im Obergeschoss einen integrierten Balkon schafft - Ihre private Freiluftoase für sonnige Stunden oder entspannte Abende.
Der überdachte Eingangsbereich im Erdgeschoss heißt Sie stilvoll willkommen, während der überdachte Terrassenbereich auf der Rückseite des Hauses den Wohn-/Essbereich elegant mit dem Außenraum verbindet.
Zwei Vollgeschosse ohne Dachschrägen ermöglichen eine optimale Nutzung aller Flächen und bieten maximale Flexibilität bei der Gestaltung Ihres individuellen Wohnkonzepts.
Als Effizienzhaus 40 gebaut, eröffnet Ihnen die Stadtvilla 8 attraktive Fördermöglichkeiten: Bis zu 100.000 EUR zinsgünstiges Darlehen durch das Programm "Klimafreundlicher Neubau" (KFN) oder bis zu 150.000 EUR bei zusätzlicher QNG-Zertifizierung. Familien können zusätzlich Förderdarlehen bis zu 250.000 EUR erhalten.
Zur hochwertigen Serienausstattung gehören selbstverständlich eine Luft-Wasser-Wärmepumpe, eine kontrollierte Be- und Entlüftungsanlage sowie eine behagliche Fußbodenheizung.
Ihre Vorteile auf einen Blick:
-Ca. 193 m² großzügige Netto-Raumfläche
-Zwei versetzt angeordnete Erker für spannende Architektur
-Integrierter Balkon im Obergeschoss zur Gartenseite
-Überdachter Eingangsbereich und überdachte Terrasse im Erdgeschoss
-Zwei Vollgeschosse ohne Dachschrägen
-Modernes Flachdach-Design
Energieeffizienzhaus 40 - förderfähig nach KFN und QNG
Hochwertige technische Ausstattung inklusive
Erleben Sie innovatives Wohnen, architektonische Vielfalt und höchsten Komfort - mit Ihrer exklusiven STREIF Stadtvilla.
Ausstattungsmerkmale
| Anzahl der Etagen im Haus | 2 |
| Bad | 1 |
Das Streif City Haus wird im Standard KFW 40 PLUS ausgeführt. KfW Effizienshaus inkl. Haustechnik aus dem STREIF-Programm in der Ausbaustufe FF+ inklusive einer gedämmten Fundamentplatte.
■ Rohbau (geschlossene Gebäudehülle) mit Fenstern, Haustür, Dacheindeckung
■ Außenfassade inkl. Außenputz, vor Ort komplett fertiggestellt
■ Komplette Blechner-/Spenglerarbeiten
■ lnnen-/Außenwände wärme- und schallgedämmt und mit Gipsfaserplatten geschlossen
■ Geschosstreppe (außer Bungalow)
■ Decken wärme- und schallgedämmt und mit Gipskarton Bauplatten geschlossen
■ Elektroinstallation, einschließlich erforderlichem Zählerschrank und Inbetriebnahme
■ Heizungsanlage inkl. Inbetriebnahme
■ Innenfensterbänke Kunststeinbänke (Gussmarmorbänke) inkl. Einbau
■ Estrich
■ Sanitärräume mit Wand- und Bodenfliesen
■ Sanitärräume mit Sanitärobjekten
■ 6,23 kWp Photovoltaikanlage und 7,7 kWh Speicher
Die Innentüren sowie Wand-, Decken- und Bodenbeläge der übrigen Räume sind Eigenleistungen des Bauherren.
STREIF Frischluft-Wärmepumpen-Technologie - inklusive
- Heizen mit frischer Außenluft
- Kein Gasanschluss, kein Öl- oder Pelletlagerraum
- Keine Heizkörper
- Wärmetauscher mit bis zu 85% Wärmerückgewinnung
Die dargestellten Bilder können Sonderausstattungen beinhalten, die nicht im Preis enthalten sind!
zzgl. Ortüblicher Baunebenkosten
Selbstverständlich können wir Ihr Haus auch schlüsselfertig / bezugsfertig errichten.
■ Bodenbeläge, Sockelleisten verlegt
■ Maler- und Tapezierarbeiten
■ Innentüren inkl. Einbau
■ Rohbau (geschlossene Gebäudehülle) mit Fenstern, Haustür, Dacheindeckung
■ Außenfassade inkl. Außenputz, vor Ort komplett fertiggestellt
■ Komplette Blechner-/Spenglerarbeiten
■ lnnen-/Außenwände wärme- und schallgedämmt und mit Gipsfaserplatten geschlossen
■ Geschosstreppe (außer Bungalow)
■ Decken wärme- und schallgedämmt und mit Gipskarton Bauplatten geschlossen
■ Elektroinstallation, einschließlich erforderlichem Zählerschrank und Inbetriebnahme
■ Heizungsanlage inkl. Inbetriebnahme
■ Innenfensterbänke Kunststeinbänke (Gussmarmorbänke) inkl. Einbau
■ Estrich
■ Sanitärräume mit Wand- und Bodenfliesen
■ Sanitärräume mit Sanitärobjekten
■ 6,23 kWp Photovoltaikanlage und 7,7 kWh Speicher
Die Innentüren sowie Wand-, Decken- und Bodenbeläge der übrigen Räume sind Eigenleistungen des Bauherren.
STREIF Frischluft-Wärmepumpen-Technologie - inklusive
- Heizen mit frischer Außenluft
- Kein Gasanschluss, kein Öl- oder Pelletlagerraum
- Keine Heizkörper
- Wärmetauscher mit bis zu 85% Wärmerückgewinnung
Die dargestellten Bilder können Sonderausstattungen beinhalten, die nicht im Preis enthalten sind!
zzgl. Ortüblicher Baunebenkosten
Selbstverständlich können wir Ihr Haus auch schlüsselfertig / bezugsfertig errichten.
■ Bodenbeläge, Sockelleisten verlegt
■ Maler- und Tapezierarbeiten
■ Innentüren inkl. Einbau
Sonstige Informationen
Sie wünschen Bauplanung und Begleitung aus einer Hand? Dann sind wir Ihr Baupartner! Wir stehen Ihnen von Anfang an zur Seite und führen Sie auf dem Weg in Ihr neues perfektes Zuhause!
Mit STREIF haben Sie einen Baupartner mit Bau-Know-how, der seit 1929 auf fast 100 Jahre und 100.000 realisierte Wohnträume zurückblicken kann.
Jedes Haus von STREIF wird individuell als Energiesparhaus geplant und gebaut. Eine nachhaltige, ökologische und wohngesunde Bauweise, eine zertifizierte Ausführungsqualität und eine kurze Bauzeit, dafür stehen wir.
Mit STREIF haben Sie einen Baupartner mit Bau-Know-how, der seit 1929 auf fast 100 Jahre und 100.000 realisierte Wohnträume zurückblicken kann.
Jedes Haus von STREIF wird individuell als Energiesparhaus geplant und gebaut. Eine nachhaltige, ökologische und wohngesunde Bauweise, eine zertifizierte Ausführungsqualität und eine kurze Bauzeit, dafür stehen wir.
Karte wird geladen...
Objektstandort
15344 Strausberg
Lage & Infrastruktur
Objektstandort
15344 Strausberg
Unsere Grundstücke befinden sich in ausgewählten, attraktiven Lagen und erfüllen höchste Ansprüche an Lebensqualität und Wertbeständigkeit.
Aus Diskretions- und Datenschutzgründen bitten wir um Verständnis, dass Grundstücksdaten ausschließlich im Rahmen eines persönlichen Beratungstermins und ausschließlich für unsere Kunden weitergegeben werden.
Aus Diskretions- und Datenschutzgründen bitten wir um Verständnis, dass Grundstücksdaten ausschließlich im Rahmen eines persönlichen Beratungstermins und ausschließlich für unsere Kunden weitergegeben werden.
Kontaktanfrage senden
Über den Anbieter
STREIF Haus GmbH
Josef-Streif-Straße 1
54595 Weinsheim
Kontakt
| Telefon | +49 30 67390424 |
| Mobil | +49 172 1588519 |
| Website | www.streif.de |
Ansprechpartner/in
Herr Andreas Ott
Weitere Angebote des Anbieters
14
Hier schlägt Ihre Zukunft Wurzeln: Grundstück und Haus ...
Haus
56841 Traben-Trarbach
Ein Haus auf dem Papier ist gut - es live zu erleben ist besser. Auch wenn dieses Haus noch nicht real ist, können Sie schon heute erleben, wie es sich anfühlen könnte: In unserem STREIF-Musterhaus in Mülheim-Kärlich ...
391.100 €
Kaufpreis
117,71 m²
Wohnfläche
4
Zimmer
18
Schluss mit Schrägen - 100% Wohnglück für Ihre Familie! ...
Haus
56743 Mendig
Erleben Sie großzügiges Wohnen mit stilvoller Architektur und individueller Raumplanung! Die City XL von STREIF begeistert auf ca. 144 m² Netto-Raumfläche mit klaren Linien, moderner Gestaltung und flexiblen ...
526.800 €
Kaufpreis
144 m²
Wohnfläche
5
Zimmer
15
Ihr exklusiver Neubau mit Platz für die ganze Familie.
Haus
56751 Polch
Großzügiges Wohnen für höchste Ansprüche - Ihr Streifhaus mit Gästezimmer, zwei Bädern und Ankleide: Willkommen in Ihrem neuen Zuhause, das modernen Lebensstil, Großzügigkeit und individuelle Planung perfekt vereint! ...
555.410 €
Kaufpreis
163,37 m²
Wohnfläche
4
Zimmer
17
Ihr Bungalow, individuell geplant und perfekt umgesetzt ...
Haus
56651 Niederzissen
Der Bungalow umfasst 2 Schlafzimmer sowie ein Badezimmer mit Dusche, Wanne und Fenster, ergänzt durch ein zusätzliches Gäste-WC. Die Wahl der Bodenbeläge liegt dabei ganz in Ihrem Ermessen - ob stilvolle Fliesen oder ...
521.100 €
Kaufpreis
117 m²
Wohnfläche
4
Zimmer
16
Hier schlägt Ihre Zukunft Wurzeln: Grundstück und Haus ...
Haus
56812 Valwig
Willkommen in Ihrem neuen Traumhaus! Dieses wunderschöne Einfamilienhaus, projektiert nach Ihren individuellen Wünschen, bietet Ihnen auf 142,92 m² Wohnfläche mit 4 Zimmern und 4 Schlafzimmern ausreichend Platz für ...
610.800 €
Kaufpreis
142,92 m²
Wohnfläche
4
Zimmer