Klasse Möglichkeit für Investoren. 2 Doppelhäuser auf Exklusivgrundstück
2.333.700 €
Kaufpreis
560 m²
Wohnfläche
20
Zimmer
immobilien.de Nr.: 9522662
Objektnummer: 9087
Kaufpreis
| Kaufpreis | 2.333.700 € |
Wohnfläche, Grundstück & Bausubstanz
| Wohnfläche | 560 m² |
| Grundstücksfläche | 1.145 m² |
| Zimmer | 20 |
| Baujahr | 2026 |
| Verfügbar ab | keine Angabe |
| Zustand | Projektiert |
Energie
| Energietyp | KfW-40 |
| Energieträger/Befeuerung | Luft-Wärme-Pumpe |
Beschreibung der Immobilie
2 STREIF-Doppelhäuser im Stadtvillenstil
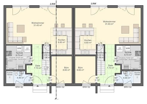
Die Architektur mit einem eleganten Walmdach strahlt zeitlose Modernität aus. Die Grundrisse jeder Doppelhaushälfte sind so konzipiert, dass großzügige und komfortable Räume entstehen. Der offene Wohn-/Ess-/Kochbereich bietet mit seinen 40 m² viel Platz und Helligkeit, dank zwei doppelflügeligen Terrassentüren. Im Erdgeschoss befindet sich ein zusätzliches Zimmer, das flexibel als Homeoffice, Gästezimmer oder Schlafzimmer genutzt werden kann. Das Badezimmer im Erdgeschoss ist mit einer Dusche ausgestattet, was in Kombination mit dem Zusatzzimmer ein ebenerdiges Wohnen ermöglicht. Im Obergeschoss finden Sie einen Elternbereich mit Ankleidezimmer, zwei Kinderzimmern und ein geräumiges Bad.
Preisangaben beziehen sich auf zwei Doppelhäuser.
Die Architektur mit einem eleganten Walmdach strahlt zeitlose Modernität aus. Die Grundrisse jeder Doppelhaushälfte sind so konzipiert, dass großzügige und komfortable Räume entstehen. Der offene Wohn-/Ess-/Kochbereich bietet mit seinen 40 m² viel Platz und Helligkeit, dank zwei doppelflügeligen Terrassentüren. Im Erdgeschoss befindet sich ein zusätzliches Zimmer, das flexibel als Homeoffice, Gästezimmer oder Schlafzimmer genutzt werden kann. Das Badezimmer im Erdgeschoss ist mit einer Dusche ausgestattet, was in Kombination mit dem Zusatzzimmer ein ebenerdiges Wohnen ermöglicht. Im Obergeschoss finden Sie einen Elternbereich mit Ankleidezimmer, zwei Kinderzimmern und ein geräumiges Bad.
Preisangaben beziehen sich auf zwei Doppelhäuser.
Ausstattungsmerkmale
| Anzahl der Etagen im Haus | 2 |
| Küche | Offene Küche |
| Bad | 8 |
| Bad | Dusche, Wanne, Fenster |
| Boden | Fliesen |
| Garten | |
| Terrassen | 4 |
Das Streif City Haus wird im Standard KFW 40 PLUS ausgeführt. Grundstück inkl. Innenausstattung aus dem STREIF-Programm in der Ausbaustufe FF+ inklusive Fundamentplatte.
■ Rohbau (geschlossene Gebäudehülle) mit Fenstern, Haustür1 inkl. Dacheindeckung
■ Außenfassade inkl. Außenputz, vor Ort komplett fertiggestellt
■ Komplette Blechner-/Spenglerarbeiten
■ lnnen-/Außenwände wärme- und schallgedämmt und mit Gipsfaserplatten geschlossen
■ Geschosstreppe (außer Bungalow)
■ Decken wärme- und schallgedämmt und mit Gipskartonbau platten geschlossen
■ Elektroinstallation, einschließlich erforderlichem Zählerschrank und Inbetriebnahme
■ Heizungsanlage inkl. Inbetriebnahme
■ Innenfensterbänke Kunststeinbänke (Gussmarmorbänke) inkl. Einbau
■ Estrich
■ Sanitärräume mit Wand- und Bodenfliesen
■ Sanitärräume mit Sanitärobjekten
■ 6,23 kWP Photovoltaikanlage und 7,7 kWh Speicher
Die Innentüren sowie Wand-, Decken- und Bodenbeläge der übrigen Räume sind Eigenleistungen des Bauherren.
STREIF Frischluft-Wärmepumpen-Technologie - inklusive
- Heizen mit frischer Außenluft
- Kein Gasanschluss, kein Öl- oder Pelletlagerraum
- Keine Heizkörper
- Wärmetauscher mit bis zu 85% Wärmerückgewinnung
Die dargestellten Bilder können Sonderausstattungen beinhalten, die nicht im Preis enthalten sind!
zzgl. Ortüblicher Baunebenkosten
Selbstverständlich können wir Ihr Haus auch schlüsselfertig / bezugsfertig errichten.
■ Bodenbeläge, Sockel leisten verlegt
■ Maler- und Tapezierarbeiten
■ Innentüren inkl. Einbau
■ Rohbau (geschlossene Gebäudehülle) mit Fenstern, Haustür1 inkl. Dacheindeckung
■ Außenfassade inkl. Außenputz, vor Ort komplett fertiggestellt
■ Komplette Blechner-/Spenglerarbeiten
■ lnnen-/Außenwände wärme- und schallgedämmt und mit Gipsfaserplatten geschlossen
■ Geschosstreppe (außer Bungalow)
■ Decken wärme- und schallgedämmt und mit Gipskartonbau platten geschlossen
■ Elektroinstallation, einschließlich erforderlichem Zählerschrank und Inbetriebnahme
■ Heizungsanlage inkl. Inbetriebnahme
■ Innenfensterbänke Kunststeinbänke (Gussmarmorbänke) inkl. Einbau
■ Estrich
■ Sanitärräume mit Wand- und Bodenfliesen
■ Sanitärräume mit Sanitärobjekten
■ 6,23 kWP Photovoltaikanlage und 7,7 kWh Speicher
Die Innentüren sowie Wand-, Decken- und Bodenbeläge der übrigen Räume sind Eigenleistungen des Bauherren.
STREIF Frischluft-Wärmepumpen-Technologie - inklusive
- Heizen mit frischer Außenluft
- Kein Gasanschluss, kein Öl- oder Pelletlagerraum
- Keine Heizkörper
- Wärmetauscher mit bis zu 85% Wärmerückgewinnung
Die dargestellten Bilder können Sonderausstattungen beinhalten, die nicht im Preis enthalten sind!
zzgl. Ortüblicher Baunebenkosten
Selbstverständlich können wir Ihr Haus auch schlüsselfertig / bezugsfertig errichten.
■ Bodenbeläge, Sockel leisten verlegt
■ Maler- und Tapezierarbeiten
■ Innentüren inkl. Einbau
Sonstige Informationen
www.streif.de/ott-a
Karte wird geladen...
Objektstandort
12529 Großziethen
Lage & Infrastruktur
Objektstandort
12529 Großziethen
Großziethen ist der nördlichste Ortsteil der Gemeinde Schönefeld und grenzt direkt an die Berliner Stadtgrenze.
Seit April 2005 steht den Schülern eine moderne Mehrzweckhalle zur Verfügung. Im Jahr 2006 wurde die Paul-Maar-Grundschule eingeweiht. Diese steht den Schülern als verlässliche Halbtagsgrundschule mit Hort und ergänzendem Angebot zur Verfügung.
Sportliche Aktivitäten werden mit Fußball, Tennis, Gymnastik, Reiten und Fitness angeboten.
Boutiquen, Floristen, Sonnenstudios, Reisebüros, ein Getränkemarkt, Reiterbedarf und Friseur- und Kosmetiksalons runden das Angebot ab. Ob Café, Imbiss oder Gaststätte, es gibt viele Angebote für den Gaumen in Großziethen.
Seit April 2005 steht den Schülern eine moderne Mehrzweckhalle zur Verfügung. Im Jahr 2006 wurde die Paul-Maar-Grundschule eingeweiht. Diese steht den Schülern als verlässliche Halbtagsgrundschule mit Hort und ergänzendem Angebot zur Verfügung.
Sportliche Aktivitäten werden mit Fußball, Tennis, Gymnastik, Reiten und Fitness angeboten.
Boutiquen, Floristen, Sonnenstudios, Reisebüros, ein Getränkemarkt, Reiterbedarf und Friseur- und Kosmetiksalons runden das Angebot ab. Ob Café, Imbiss oder Gaststätte, es gibt viele Angebote für den Gaumen in Großziethen.
Kontaktanfrage senden
Über den Anbieter
STREIF Haus GmbH
Josef-Streif-Straße 1
54595 Weinsheim
Kontakt
| Telefon | +49 30 67390424 |
| Mobil | +49 172 1588519 |
| Website | www.streif.de |
Ansprechpartner/in
Herr Andreas Ott
Weitere Angebote des Anbieters
14
Hier schlägt Ihre Zukunft Wurzeln: Grundstück und Haus ...
Haus
56841 Traben-Trarbach
Ein Haus auf dem Papier ist gut - es live zu erleben ist besser. Auch wenn dieses Haus noch nicht real ist, können Sie schon heute erleben, wie es sich anfühlen könnte: In unserem STREIF-Musterhaus in Mülheim-Kärlich ...
391.100 €
Kaufpreis
117,71 m²
Wohnfläche
4
Zimmer
18
Schluss mit Schrägen - 100% Wohnglück für Ihre Familie! ...
Haus
56743 Mendig
Erleben Sie großzügiges Wohnen mit stilvoller Architektur und individueller Raumplanung! Die City XL von STREIF begeistert auf ca. 144 m² Netto-Raumfläche mit klaren Linien, moderner Gestaltung und flexiblen ...
526.800 €
Kaufpreis
144 m²
Wohnfläche
5
Zimmer
15
Ihr exklusiver Neubau mit Platz für die ganze Familie.
Haus
56751 Polch
Großzügiges Wohnen für höchste Ansprüche - Ihr Streifhaus mit Gästezimmer, zwei Bädern und Ankleide: Willkommen in Ihrem neuen Zuhause, das modernen Lebensstil, Großzügigkeit und individuelle Planung perfekt vereint! ...
555.410 €
Kaufpreis
163,37 m²
Wohnfläche
4
Zimmer
17
Ihr Bungalow, individuell geplant und perfekt umgesetzt ...
Haus
56651 Niederzissen
Der Bungalow umfasst 2 Schlafzimmer sowie ein Badezimmer mit Dusche, Wanne und Fenster, ergänzt durch ein zusätzliches Gäste-WC. Die Wahl der Bodenbeläge liegt dabei ganz in Ihrem Ermessen - ob stilvolle Fliesen oder ...
521.100 €
Kaufpreis
117 m²
Wohnfläche
4
Zimmer
16
Hier schlägt Ihre Zukunft Wurzeln: Grundstück und Haus ...
Haus
56812 Valwig
Willkommen in Ihrem neuen Traumhaus! Dieses wunderschöne Einfamilienhaus, projektiert nach Ihren individuellen Wünschen, bietet Ihnen auf 142,92 m² Wohnfläche mit 4 Zimmern und 4 Schlafzimmern ausreichend Platz für ...
610.800 €
Kaufpreis
142,92 m²
Wohnfläche
4
Zimmer