Exklusive Stadtvilla in Zehlendorf nähe Schlachtensee
3.300.000 €
Kaufpreis
233 m²
Wohnfläche
6
Zimmer
immobilien.de Nr.: 9522210
Objektnummer: 438811
Kaufpreis
| Kaufpreis | 3.300.000 € |
| Maklerprovision | keine Provision, courtagefrei |
Wohnfläche, Grundstück & Bausubstanz
| Wohnfläche | 233 m² |
| Grundstücksfläche | 920 m² |
| Zimmer | 6 |
| Baujahr | 2003 |
| Verfügbar ab | nach Absprache |
| Zustand | Gepflegt |
Energie
| Energieausweistyp | Bedarfsausweis |
| Endenergiebedarf | 115 |
| Heizungsart | Zentralheizung |
| Energieträger/Befeuerung | Gas |
Beschreibung der Immobilie
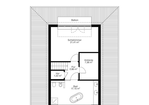
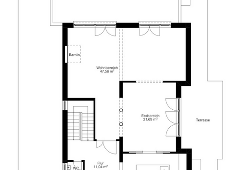
Provisionsfrei vom Eigentümer: Eingebettet in die grüne Stille des Berliner Südwestens präsentiert sich diese freistehende, äußerst gepflegte Stadtvilla in bezugsfertigem Top-Zustand. Auf einem ca. 920 m² großen, sonnigen Grundstück bietet das 2003 errichtete Anwesen ca. 330 m² Wohn- und Nutzfläche auf drei Ebenen mit hochwertig ausgebautem Basement. Das Erdgeschoss besticht durch einen ca. 100 m² großen Wohn- und Essbereich mit bodentiefen Fensterfronten, offener Design-Küche mit Kochinsel (Gaggenau) und Kamin. Von der Terrasse führt eine Freitreppe direkt zum beheizten Pool mit Gegenstromanlage und motorisierter Abdeckung. Im Obergeschoss befinden sich drei Schlafzimmer mit jeweils begehbarer Ankleide sowie ein modernes Duschbad. Das Dachgeschoss ist als privater Master-Bereich mit En-Suite-Bad und Balkon gestaltet. Im Basement: Wellnessbereich mit Sauna, Fitnessraum, Homeoffice mit separatem Eingang sowie Hauswirtschaftsräume. Ein ca. 20 m² großes Gartenhaus vervollständigt das Ensemble.
Ausstattungsmerkmale
| Anzahl der Etagen im Haus | 3 |
| Küche | Einbauküche |
| Bad | 3 |
| Bad | Dusche, Wanne |
| Boden | Parkett |
| Balkone | 1 |
| Garten | |
| Terrassen | 1 |
| Keller |
Balkon, Terrasse, Garten, Keller, Vollbad, Duschbad, Sauna, Pool · Schwimmbad, Einbauküche, Gäste-WC, Kamin, Parkett, Sonstiges (s. Text)
Bemerkungen:
Offene Design-Küche mit Kochinsel und Gaggenau-Geräten. Fischgrätparkett und Travertinstein als Bodenbeläge. Begehbare Ankleideräume in jedem Schlafzimmer. Beheizter Pool mit Gegenstromanlage und motorisierter Poolabdeckung. Privater Wellnessbereich mit Sauna und Fitnessraum. Kamin im Wohnbereich. Separater Eingang im Basement (ideal für Homeoffice). Gartenhaus ca. 20 m². Energiebedarfsausweis: 115,77 kWh/m²a, Energieeffizienzklasse D, Gasheizung.
Bemerkungen:
Offene Design-Küche mit Kochinsel und Gaggenau-Geräten. Fischgrätparkett und Travertinstein als Bodenbeläge. Begehbare Ankleideräume in jedem Schlafzimmer. Beheizter Pool mit Gegenstromanlage und motorisierter Poolabdeckung. Privater Wellnessbereich mit Sauna und Fitnessraum. Kamin im Wohnbereich. Separater Eingang im Basement (ideal für Homeoffice). Gartenhaus ca. 20 m². Energiebedarfsausweis: 115,77 kWh/m²a, Energieeffizienzklasse D, Gasheizung.
Sonstige Informationen
Heizungsart: Zentralheizung
Energieträger: Gas
Ausführliches Exposé und virtuelle Tour unter villa-zehlendorf.webflow.io
Makleranfragen nicht erwünscht. Nach § 7 UWG sind unaufgeforderte Kontaktaufnahmen durch Makler ohne ausdrückliche Einwilligung des Empfängers verboten!
ohne-makler (OM) ist weder Anbieter noch Vermittler der Immobilie. OM betreibt eine Plattform für Immobilieneigentümer, die unter anderem die gleichzeitige Veröffentlichung einzelner Inserate auf mehreren Immobilienportalen ermöglicht. Die Inhalte dieser Inserate werden ausschließlich von Dritten verantwortet. Für die Richtigkeit, Vollständigkeit oder Rechtmäßigkeit der Angaben übernimmt OM keine Haftung. Hinweise auf mögliche Rechtsverstöße können jederzeit gemeldet werden und werden nach Prüfung umgehend bearbeitet.
Energieträger: Gas
Ausführliches Exposé und virtuelle Tour unter villa-zehlendorf.webflow.io
Makleranfragen nicht erwünscht. Nach § 7 UWG sind unaufgeforderte Kontaktaufnahmen durch Makler ohne ausdrückliche Einwilligung des Empfängers verboten!
ohne-makler (OM) ist weder Anbieter noch Vermittler der Immobilie. OM betreibt eine Plattform für Immobilieneigentümer, die unter anderem die gleichzeitige Veröffentlichung einzelner Inserate auf mehreren Immobilienportalen ermöglicht. Die Inhalte dieser Inserate werden ausschließlich von Dritten verantwortet. Für die Richtigkeit, Vollständigkeit oder Rechtmäßigkeit der Angaben übernimmt OM keine Haftung. Hinweise auf mögliche Rechtsverstöße können jederzeit gemeldet werden und werden nach Prüfung umgehend bearbeitet.
Karte wird geladen...
Objektstandort
14129 Berlin
- Berlin
Lage & Infrastruktur
Objektstandort
14129 Berlin
- Berlin
Zehlendorf vereint das Beste aus zwei Welten: die Ruhe einer gewachsenen Villenlage mit der vollen Infrastruktur einer Großstadt. Die Lage am Rande des Grunewalds in fußläufiger Nähe des Schlachtensees und der Krummen Lanke bietet ein Wohnumfeld, das in Berlin seinesgleichen sucht, geprägt von altem Baumbestand, großzügigen Grundstücken und einer Nachbarschaft mit hoher Lebensqualität. Kindergärten, Grundschulen und Gymnasien liegen in Fahrradreichweite. Einkaufsmöglichkeiten am Teltower Damm und der Clayallee sowie Ärzte und Apotheken befinden sich im direkten Umfeld. Schlachtensee und Grunewald bieten ideale Bedingungen zum Joggen, Baden und für Hundeausläufe.
Infrastruktur (im Umkreis von 5 km):
Apotheke, Lebensmittel-Discount, Allgemeinmediziner, Kindergarten, Grundschule, Hauptschule, Realschule, Gymnasium, Gesamtschule, Öffentliche Verkehrsmittel
Infrastruktur (im Umkreis von 5 km):
Apotheke, Lebensmittel-Discount, Allgemeinmediziner, Kindergarten, Grundschule, Hauptschule, Realschule, Gymnasium, Gesamtschule, Öffentliche Verkehrsmittel
Kontaktanfrage senden
Über den Anbieter
OM PropTech GmbH
Humboldtstraße 25a
21509 Glinde
Kontakt
| Telefon | - |
| Fax | - |
| Website | www.ohne-makler.net |
Ansprechpartner/in
Privat vom Eigentümer
Weitere Angebote des Anbieters
19
Hochwertige, neue 90qm Wohnung
Wohnung
72636 Frickenhausen
Diese exklusive 3,5-Zimmerwohnung mit ca. 90 qm Wohnfläche wurde im Jahr 2022 neu erbaut und befindet sich in einem erstklassigen Zustand. Sie besticht durch ihre hochwertige Ausstattung und die sehr ruhige ...
1.155 €
Kaltmiete (netto)
90 m²
Wohnfläche
3,5
Zimmer
3
Grundstück mit Altbestand in Top Lage von Reichelsdorf ...
Haus
90453 Nürnberg
Grundstück für Einfamilienhaus (inkl. Altbestand aus den 1930er Jahren - mit Renovierung ab ca. 1970 - ohne Keller)
399.000 €
Kaufpreis
85 m²
Wohnfläche
5
Zimmer
53
Einfamilienhaus in Etzbach – mit Potenzial für ...
Haus
57539 Etzbach
Zum Verkauf steht ein gepflegtes Einfamilienhaus in Etzbach mit ca. 210 m² Wohnfläche (darin enthalten sind 70 m² Wohnfläche im Keller) auf einem ca. 590 m² großen Grundstück. Durch die Aufteilung mit Erdgeschoss, ...
420.000 €
Kaufpreis
140 m²
Wohnfläche
4
Zimmer
9
WG geeignete sehr helle 3,5-Zimmer-Wohnung mit Balkon
Wohnung
85057 Ingolstadt
Liebe Interessenten, wir haben ab dem 01.04.2026 eine zentrumsnahe, helle 3,5-Zimmer-Wohnung mit einer Wohnfläche von ca. 68,4 Quadratmetern, in Ingolstadt zu vermieten. Kaltmiete: 1275 Euro/Monat, Warmmiete: 1.536 ...
1.275 €
Kaltmiete (netto)
68,4 m²
Wohnfläche
3,5
Zimmer
10
Steuerlich optimierbares Investment: 3-Zimmer-Wohnung ...
Wohnung
71404 Korb
Attraktive 3-Zimmer-Wohnung mit steuerlich optimierbarer Sanierung – ideales Investment in 71404 Korb Objektbeschreibung Zum Verkauf steht eine gut geschnittene 3-Zimmer-Wohnung in attraktiver Lage von 71404 Korb. Die ...
199.900 €
Kaufpreis
64 m²
Wohnfläche
3
Zimmer