Provisionsfrei* Eigentumswohnung in Berlin Lankwitz (bezugsfrei)
370.000 €
Kaufpreis
78,38 m²
Wohnfläche
3
Zimmer
immobilien.de Nr.: 9521072
Objektnummer: 134389-[26637]
Kaufpreis
| Kaufpreis | 370.000 € |
| Hausgeld | 452 € |
| Maklerprovision |
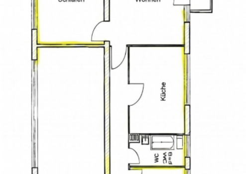
Wohnfläche, Grundstück & Bausubstanz
| Wohnfläche | 78,38 m² |
| Zimmer | 3 |
| Baujahr | 1929 |
| Verfügbar ab | sofort |
| Zustand | Gepflegt |
Energie
| Energieausweistyp | Verbrauch |
| Gültig bis | 2029-03-04 |
| Energieverbrauchkennwert | 203 kWh/(m²*a) |
| Heizungsart | Zentralheizung |
| Energieträger/Befeuerung | Gas |
Beschreibung der Immobilie
Exklusive 3-Zimmer-Wohnung mit Balkon in ruhiger Bestlage von Berlin-Lankwitz (kann sofort bezogen werden)
Diese lichtdurchflutete 3-Zimmer-Wohnung vereint eine helle Wohnatmosphäre mit einer durchdachten Raumaufteilung und einem gepflegten Gesamtzustand. Großzügige, sonnendurchflutete Zimmer schaffen ein offenes und einladendes Wohngefühl und bieten vielfältige Nutzungsmöglichkeiten - ideal für Eigennutzer mit Anspruch ebenso wie für Kapitalanleger.
Der nach Grün ausgerichtete Balkon bildet einen besonderen Rückzugsort. Hier genießen Sie Ruhe, Entspannung und sonnige Stunden in angenehmer Atmosphäre - ein perfekter Ort zum Abschalten vom Alltag.
Nachhaltige Wertanlage mit Perspektive
Dank der gefragten Wohnlage, der guten Ausrichtung und des soliden baulichen Zustands eignet sich diese Immobilie sowohl als attraktive Renditeimmobilie als auch zur hochwertigen Eigennutzung. Eine stabile Eigentümergemeinschaft mit gesunden Rücklagen sorgt für langfristige Planungssicherheit und unterstreicht die Qualität des Gesamtobjekts.
Anmerkung: Das Wohngeld beinhaltet auch die Heizkosten
Diese lichtdurchflutete 3-Zimmer-Wohnung vereint eine helle Wohnatmosphäre mit einer durchdachten Raumaufteilung und einem gepflegten Gesamtzustand. Großzügige, sonnendurchflutete Zimmer schaffen ein offenes und einladendes Wohngefühl und bieten vielfältige Nutzungsmöglichkeiten - ideal für Eigennutzer mit Anspruch ebenso wie für Kapitalanleger.
Der nach Grün ausgerichtete Balkon bildet einen besonderen Rückzugsort. Hier genießen Sie Ruhe, Entspannung und sonnige Stunden in angenehmer Atmosphäre - ein perfekter Ort zum Abschalten vom Alltag.
Nachhaltige Wertanlage mit Perspektive
Dank der gefragten Wohnlage, der guten Ausrichtung und des soliden baulichen Zustands eignet sich diese Immobilie sowohl als attraktive Renditeimmobilie als auch zur hochwertigen Eigennutzung. Eine stabile Eigentümergemeinschaft mit gesunden Rücklagen sorgt für langfristige Planungssicherheit und unterstreicht die Qualität des Gesamtobjekts.
Anmerkung: Das Wohngeld beinhaltet auch die Heizkosten
Ausstattungsmerkmale
| Anzahl der Etagen im Haus | 4 |
| Inserat befindet sich im Stockwerk | 1 |
| Küche | Einbauküche |
| Bad | 1 |
| Bad | Wanne, Fenster |
| Boden | Laminat |
| Balkone | 1 |
| Haustiere |
Die Wohnung wurde fortlaufend instandgehalten und technisch modernisiert. So wurde unter anderem der Sicherungskasten erneuert und sämtliche Elektro- und LAN- Leitungen auf einen zeitgemäßen Stand gebracht. Die Fenster des Gebäudes wurden innerhalb der letzten zehn Jahre vollständig ausgetauscht, ebenso wurde das Dach komplett erneuert - Investitionen, die langfristige Sicherheit und Werterhalt gewährleisten.
Das gepflegte Wohnhaus verfügt über breite, komfortable Treppenaufgänge. Die Wohnung liegt in der 1. Etage eines viergeschossigen Gebäudes und ist somit angenehm erreichbar. Ein großzügiger Kellerraum ergänzt das Angebot und bietet zusätzlichen Stauraum.
Sonstige Ausstattung:
- gefliestes Badezimmer
- Einbauküche
- Laminatböden
Das gepflegte Wohnhaus verfügt über breite, komfortable Treppenaufgänge. Die Wohnung liegt in der 1. Etage eines viergeschossigen Gebäudes und ist somit angenehm erreichbar. Ein großzügiger Kellerraum ergänzt das Angebot und bietet zusätzlichen Stauraum.
Sonstige Ausstattung:
- gefliestes Badezimmer
- Einbauküche
- Laminatböden
Karte wird geladen...
Objektstandort
12249 Berlin
- Berlin
Lage & Infrastruktur
Objektstandort
12249 Berlin
- Berlin
Die Wohnung befindet sich in einer sehr ruhigen Seitenstraße im beliebten Berliner Ortsteil Lankwitz. Die Derfflingerstraße zeichnet sich durch ihre grüne Umgebung, geringe Verkehrsbelastung und ein angenehmes, gewachsenes Wohnumfeld aus.
Ein besonderes Highlight des Viertels ist der traditionsreiche Wochenmarkt auf dem nahegelegenen Kranoldplatz, der regelmäßig mit frischen regionalen Produkten, Blumen und kulinarischen Spezialitäten zum Einkaufen und Verweilen einlädt und die hohe Lebensqualität der Umgebung unterstreicht.
Darüber hinaus bietet Lankwitz eine ausgezeichnete Infrastruktur mit kurzen Wegen: Einkaufsmöglichkeiten, Cafés, Restaurants, Schulen, Kitas sowie medizinische Versorgung sind bequem erreichbar. Die sehr gute Anbindung an den öffentlichen Nahverkehr (Bus und S-Bahn) ermöglicht eine schnelle Verbindung in die Berliner Innenstadt. Zahlreiche Grünflächen und Parks bieten zusätzlichen Erholungswert
Ein besonderes Highlight des Viertels ist der traditionsreiche Wochenmarkt auf dem nahegelegenen Kranoldplatz, der regelmäßig mit frischen regionalen Produkten, Blumen und kulinarischen Spezialitäten zum Einkaufen und Verweilen einlädt und die hohe Lebensqualität der Umgebung unterstreicht.
Darüber hinaus bietet Lankwitz eine ausgezeichnete Infrastruktur mit kurzen Wegen: Einkaufsmöglichkeiten, Cafés, Restaurants, Schulen, Kitas sowie medizinische Versorgung sind bequem erreichbar. Die sehr gute Anbindung an den öffentlichen Nahverkehr (Bus und S-Bahn) ermöglicht eine schnelle Verbindung in die Berliner Innenstadt. Zahlreiche Grünflächen und Parks bieten zusätzlichen Erholungswert
Kontaktanfrage senden
Über den Anbieter
immo-for-less Privat vom Eigentümer
Bierweg 19
99310 Arnstadt
Kontakt
| Telefon | |
| Mobil | |
| Fax | |
| Website | www.immo-for-less.de |
Ansprechpartner/in
von
Privat
Weitere Angebote des Anbieters
6
schöne helle sanierte Wohnungen mit Balkon ab sofort!
Wohnung
45968 Gladbeck
Diese frisch sanierten 2,5- bis 3,5-Zimmer-Wohnungen überzeugen durch ihre moderne Ausstattung, hochwertigen Materialien und eine offene, einladende Raumaufteilung. Je nach Wohnungsgröße bieten sie großzügigen Platz ...
410 €
Kaltmiete
50 m²
Wohnfläche
2
Zimmer
17
Provisionsfrei* Eigentumswohnung in Berlin Lankwitz ...
Wohnung
12249 Berlin
Exklusive 3-Zimmer-Wohnung mit Balkon in ruhiger Bestlage von Berlin-Lankwitz (kann sofort bezogen werden) Diese lichtdurchflutete 3-Zimmer-Wohnung vereint eine helle Wohnatmosphäre mit einer durchdachten ...
370.000 €
Kaufpreis
78,38 m²
Wohnfläche
3
Zimmer
14
Provisionsfrei* PROVISIONSFREI! Einfamilienhaus für ...
Haus
55499 Riesweiler
Bei diesem Objekt handelt es sich um ein Einfamilienhaus aus dem Baujahr ca. 1920 mit einer Wohnfläche von rund 135 m², verteilt auf zwei Etagen. Zusätzlich bietet das Dachgeschoss weiteres Ausbaupotenzial und eröffnet ...
72.000 €
Kaufpreis
135 m²
Wohnfläche
5
Zimmer
20
Provisionsfrei* Maisonette 4,5 Zi. in herrlicher ...
Wohnung
72574 Bad Urach
Wohnungstyp: Maisonette Wohnfläche: 117 Anzahl Zimmer: 4.5 Anzahl Schlafzimmer: 3 Anzahl Bäder: 2 + 1 extra WC Tiefgarage Stellplatz inklusive Energiekennwert: 90 Energieeffizienzklasse: C Erstellungsdatum: 01.07.2018 ...
265.000 €
Kaufpreis
117 m²
Wohnfläche
4,5
Zimmer
25
Penthouse Wohnung 3 Zimmer Dillingen Donau Toplage + ...
Wohnung
89407 Dillingen
Dieses außergewöhnliche 6-Fam.-Haus befindet sich in Stadtnähe und doch in ruhiger süd-west Hanglage mit unverbaubarer Aussicht zum Donauwald. Das Wohnhaus liegt am Ende einer Sackgasse. Die Stadtmitte ist in nur ...
1.350 €
Kaltmiete
104 m²
Wohnfläche
3
Zimmer