geteiltes Mehrfamilienhaus - top Lage, 4% Ist- u. 6,13% Sollrendite - provisionsfrei + Dachrohling
2.250.000 €
Kaufpreis
606 m²
Wohnfläche
24
Zimmer
immobilien.de Nr.: 9520302
Objektnummer: 436245
Kaufpreis
| Kaufpreis | 2.250.000 € |
| Maklerprovision | keine Provision, courtagefrei |
Wohnfläche, Grundstück & Bausubstanz
| Wohnfläche | 606 m² |
| Grundstücksfläche | 564,97 m² |
| Zimmer | 24 |
| Baujahr | 1930 |
| Verfügbar ab | nach Absprache |
| Zustand | Modernisiert |
Energie
| Energieausweistyp | Verbrauch |
| Energieeffizienzklasse | E |
| Energieverbrauchkennwert | 133 kWh/(m²*a) |
| Heizungsart | Zentralheizung |
| Energieträger/Befeuerung | Gas |
Beschreibung der Immobilie
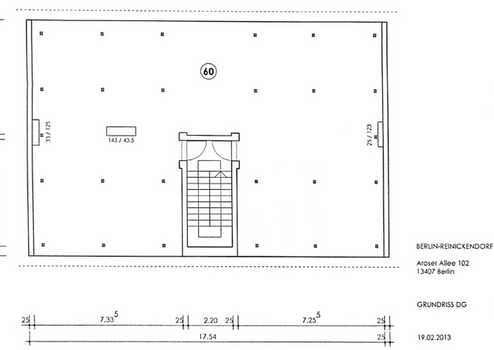
Das 1930 gebaute und 1976 aufgeteilte stabile Stahlbetonbaukonstrukt mit trockenem Keller, Hochparterre, 1. OG, 2. OG und ausbaufähigem Dach im 3. OG, im Rahmen einer Siedlungskonzeption errichtete Gebäude, verfügt über neun Wohneinheiten (alles 2-Zimmer-Wohnungen). Die Wohnungen haben idealerweise ca. 2,8 Meter Deckenhöhe. Der Dachrohling ist weit aus höher. Der Grundriss für das Hochpaterre bis zum 2. OG ist identisch - auf jeder Etage befinden sich 3 Wohnungen, wobei die mittleren Wohnungen etwa 50m² und die Wohnungen rechts und links mit etwa jeweils 55m² etwas größer sind. Alle Zimmer sind separat zugänglich, so dass sie auch ideal z.B. als WG genutzt werden können.
Die Warmwasserversorgung ist durch Elektro-Durchlauferhitzer gewährleistet.
Im Zuge der 2002 durchgeführten Modernisierungsmaßnahmen wurden unter anderem geflieste Bäder, moderne Einbauküchen, Laminatfußboden und Kabelfernsehen in den Wohnungen installiert bzw. eingebaut. Bei Mieterwechseln in den letzten 10 Jahren wurde nach Bedarf ebenfalls neu renoviert, Spots gesetzt und/oder neue Fußböden ausgewechselt. Ein Bad wurde in ein modernes Duschbad umgewandelt.
Ebenfalls wurden damals die Grundleitungen im Keller bis an die Steigestränge erneuert. Weiterhin steht eine Klingel-Gegensprechanlage zur Verfügung.
2012 wurden die Loggias wieder zu Balkonen umgewandelt, was die Aroser Allee 102 in der ganzen Umgebung herausstechen lässt und den baulichen Mängel (Badfenster öffnet in die geschlossene Loggia mit Folge von Schimmelbildung) beseitigt. Außerdem wurden in diesem Zusammenhang in allen Wohnungen neue Isolierglas Kunststoffenster eingebaut.
2021 ist eine nagelneue moderne Heizanlage eingebaut worden. Zudem befinden sich rechts und links vom Gebäude anliegend weitere Mehrfamilienhäuser. Dies führte dazu, dass trotz der hohen Gaspreise, die Mieter im Schnitt nur ca. 1€ warme Betriebskosten im Monat pro m² bezahlen, obwohl der Durschchnitt in Berlin eher bei 1,5€ m² liegt.
Die Jahresnettokaltmiete beträgt "IST" ca. 90.000€
Insofern Sie das Dach ausbauen wird die "Soll" Jahresnettokaltmiete voraussichtlich ca. 138.000€ betragen.
Als Aufteilergeschäft, ohne dass Sie das Dach ausbauen müssen, würden Sie das Objekt schätzungsweise für ca. 3 Mio Euro verkaufen können. Zwei Grundrisse in der Anzeige sind Gedankenspiele, da Sie im Einzelverkauf auch zusammenhängende Wohnungen und damit quasie 5 und/oder 8 Zimmerwohnungen verkaufen könnten, was in Berlin nahezu Alleinstellungsmerkmal ist und daher besonders hohe Verkaufspreise erzielbar sein könnten.
Halten Sie das Objekt also 5 bis 10 Jahre ist eine Verdoppelung des Wertes der Immobilie nicht unwahrscheinlich. Aber auch durch die Mieteinnahmen haben Sie ein sicheres Investment.
Sie können aber auch schnell liquides Geld aus diesem Objekt gewinnen, in dem Sie das ganze Objekt kaufen zu 100% finanzieren und dann den Dachrohling verkaufen, da dieses im Grundbuch bereits in 2 Einheiten aufgeteilt ist. So können Sie mehrere 100.000€ liquides Eigenkapital schaffen, womit Sie sofort weiter einkaufen können.
Das gepflegte Grundstück hat gemeinschaftliche Nutzflächen (Müllplatz, Wegerecht etc.) mit den Nachbarn Aroser Allee 104 und Zermatter Straße 5. Es besteht eine notarielle ideelle Teilung seit 2013, so dass jedes Haus eigenständig bewirtschaftet werden kann und über eigene Nutzflächen im Garten verfügt. Lediglich der Müllplatz wird geteilt.
Die Warmwasserversorgung ist durch Elektro-Durchlauferhitzer gewährleistet.
Im Zuge der 2002 durchgeführten Modernisierungsmaßnahmen wurden unter anderem geflieste Bäder, moderne Einbauküchen, Laminatfußboden und Kabelfernsehen in den Wohnungen installiert bzw. eingebaut. Bei Mieterwechseln in den letzten 10 Jahren wurde nach Bedarf ebenfalls neu renoviert, Spots gesetzt und/oder neue Fußböden ausgewechselt. Ein Bad wurde in ein modernes Duschbad umgewandelt.
Ebenfalls wurden damals die Grundleitungen im Keller bis an die Steigestränge erneuert. Weiterhin steht eine Klingel-Gegensprechanlage zur Verfügung.
2012 wurden die Loggias wieder zu Balkonen umgewandelt, was die Aroser Allee 102 in der ganzen Umgebung herausstechen lässt und den baulichen Mängel (Badfenster öffnet in die geschlossene Loggia mit Folge von Schimmelbildung) beseitigt. Außerdem wurden in diesem Zusammenhang in allen Wohnungen neue Isolierglas Kunststoffenster eingebaut.
2021 ist eine nagelneue moderne Heizanlage eingebaut worden. Zudem befinden sich rechts und links vom Gebäude anliegend weitere Mehrfamilienhäuser. Dies führte dazu, dass trotz der hohen Gaspreise, die Mieter im Schnitt nur ca. 1€ warme Betriebskosten im Monat pro m² bezahlen, obwohl der Durschchnitt in Berlin eher bei 1,5€ m² liegt.
Die Jahresnettokaltmiete beträgt "IST" ca. 90.000€
Insofern Sie das Dach ausbauen wird die "Soll" Jahresnettokaltmiete voraussichtlich ca. 138.000€ betragen.
Als Aufteilergeschäft, ohne dass Sie das Dach ausbauen müssen, würden Sie das Objekt schätzungsweise für ca. 3 Mio Euro verkaufen können. Zwei Grundrisse in der Anzeige sind Gedankenspiele, da Sie im Einzelverkauf auch zusammenhängende Wohnungen und damit quasie 5 und/oder 8 Zimmerwohnungen verkaufen könnten, was in Berlin nahezu Alleinstellungsmerkmal ist und daher besonders hohe Verkaufspreise erzielbar sein könnten.
Halten Sie das Objekt also 5 bis 10 Jahre ist eine Verdoppelung des Wertes der Immobilie nicht unwahrscheinlich. Aber auch durch die Mieteinnahmen haben Sie ein sicheres Investment.
Sie können aber auch schnell liquides Geld aus diesem Objekt gewinnen, in dem Sie das ganze Objekt kaufen zu 100% finanzieren und dann den Dachrohling verkaufen, da dieses im Grundbuch bereits in 2 Einheiten aufgeteilt ist. So können Sie mehrere 100.000€ liquides Eigenkapital schaffen, womit Sie sofort weiter einkaufen können.
Das gepflegte Grundstück hat gemeinschaftliche Nutzflächen (Müllplatz, Wegerecht etc.) mit den Nachbarn Aroser Allee 104 und Zermatter Straße 5. Es besteht eine notarielle ideelle Teilung seit 2013, so dass jedes Haus eigenständig bewirtschaftet werden kann und über eigene Nutzflächen im Garten verfügt. Lediglich der Müllplatz wird geteilt.
Ausstattungsmerkmale
| Anzahl der Etagen im Haus | 3 |
| Küche | Einbauküche |
| Bad | 11 |
| Bad | Dusche, Wanne |
| Boden | Fliesen, Laminat |
| Balkone | 1 |
| Garten | |
| Terrassen | 0 |
| Keller |
Balkon, Garten, Keller, Vollbad, Duschbad, Einbauküche, Laminat, Fliesen
Bemerkungen:
8 der 9 Wohnungen verfügen über ein Einbauküche. Wohnungen sind alle mit Laminat ausgestattet. Alle 9 Bäder sind voll gefliest.
Einige der Wohnungen wurden neu renoviert bei Mieterwechseln.
Wohnfläche betragt ca. 466m² ausgebaut und 140m² potentiell/unausgebaut (Dachrohling). 1.999.999 Euro für die 9 Wohneinheiten und 399.999 € für das Dachrohling. Die 9 Wohnungen können auch ohne den Dachrohling erworben werden. Umgekehrt nicht. Sie können das Objekt aber auch als ganzes für nur 2.250.000 Euro erwerben.
Dach befindet sich in einem guten Zustand, so dass Kosten beim Ausbau eingespart werden können.
Mit Nutzfläche von ca. 150 m² ist der Keller gemeint, der in Teilen lukrativer als die Wohnfläche selbst vermietet ist.
Bemerkungen:
8 der 9 Wohnungen verfügen über ein Einbauküche. Wohnungen sind alle mit Laminat ausgestattet. Alle 9 Bäder sind voll gefliest.
Einige der Wohnungen wurden neu renoviert bei Mieterwechseln.
Wohnfläche betragt ca. 466m² ausgebaut und 140m² potentiell/unausgebaut (Dachrohling). 1.999.999 Euro für die 9 Wohneinheiten und 399.999 € für das Dachrohling. Die 9 Wohnungen können auch ohne den Dachrohling erworben werden. Umgekehrt nicht. Sie können das Objekt aber auch als ganzes für nur 2.250.000 Euro erwerben.
Dach befindet sich in einem guten Zustand, so dass Kosten beim Ausbau eingespart werden können.
Mit Nutzfläche von ca. 150 m² ist der Keller gemeint, der in Teilen lukrativer als die Wohnfläche selbst vermietet ist.
Sonstige Informationen
Heizungsart: Zentralheizung
Energieträger: Gas
Ich bin Privatperson. Eine Provision fällt daher nicht an.
Bei Interesse stelle ich Ihnen gerne die bereits aufbereiteten für die Bank relevanten Unterlagen zur Verfügung.
Erreichen können Sie mich z.B. unter meiner Telefonnummer 0157 / 72711524 - gerne auch per WhatsApp!
Makleranfragen nicht erwünscht. Nach § 7 UWG sind unaufgeforderte Kontaktaufnahmen durch Makler ohne ausdrückliche Einwilligung des Empfängers verboten!
ohne-makler (OM) ist weder Anbieter noch Vermittler der Immobilie. OM betreibt eine Plattform für Immobilieneigentümer, die unter anderem die gleichzeitige Veröffentlichung einzelner Inserate auf mehreren Immobilienportalen ermöglicht. Die Inhalte dieser Inserate werden ausschließlich von Dritten verantwortet. Für die Richtigkeit, Vollständigkeit oder Rechtmäßigkeit der Angaben übernimmt OM keine Haftung. Hinweise auf mögliche Rechtsverstöße können jederzeit gemeldet werden und werden nach Prüfung umgehend bearbeitet.
Energieträger: Gas
Ich bin Privatperson. Eine Provision fällt daher nicht an.
Bei Interesse stelle ich Ihnen gerne die bereits aufbereiteten für die Bank relevanten Unterlagen zur Verfügung.
Erreichen können Sie mich z.B. unter meiner Telefonnummer 0157 / 72711524 - gerne auch per WhatsApp!
Makleranfragen nicht erwünscht. Nach § 7 UWG sind unaufgeforderte Kontaktaufnahmen durch Makler ohne ausdrückliche Einwilligung des Empfängers verboten!
ohne-makler (OM) ist weder Anbieter noch Vermittler der Immobilie. OM betreibt eine Plattform für Immobilieneigentümer, die unter anderem die gleichzeitige Veröffentlichung einzelner Inserate auf mehreren Immobilienportalen ermöglicht. Die Inhalte dieser Inserate werden ausschließlich von Dritten verantwortet. Für die Richtigkeit, Vollständigkeit oder Rechtmäßigkeit der Angaben übernimmt OM keine Haftung. Hinweise auf mögliche Rechtsverstöße können jederzeit gemeldet werden und werden nach Prüfung umgehend bearbeitet.
Karte wird geladen...
Objektstandort
Aroser Allee 102
13407 Berlin
- Berlin
Lage & Infrastruktur
Objektstandort
Aroser Allee 102
13407 Berlin
- Berlin
Das Objekt befindet sich in der Grenze Wedding/Reinickendorf und selbst Mitte ist in kürzester Zeit erreichbar. Zudem befindet sich die Autobahnauffahrt A100 auch nur ca. 5 Min entfernt. Des Weiteren befindet sich ein schöner Schäfersee in unmittelbarer. Auch der Fluglärm des ehemaligen Flughafen Tegels ist seit 2021 Geschichte.
Es kann mit relativ großer Sicherheit davon ausgegangen werden, dass sich diese Wohnlage stark überproportional zu anderen Wohnlagen in Berlin entwickeln wird.
Infrastruktur (im Umkreis von 5 km):
Apotheke, Lebensmittel-Discount, Allgemeinmediziner, Kindergarten, Grundschule, Hauptschule, Realschule, Gymnasium, Gesamtschule, Öffentliche Verkehrsmittel
Es kann mit relativ großer Sicherheit davon ausgegangen werden, dass sich diese Wohnlage stark überproportional zu anderen Wohnlagen in Berlin entwickeln wird.
Infrastruktur (im Umkreis von 5 km):
Apotheke, Lebensmittel-Discount, Allgemeinmediziner, Kindergarten, Grundschule, Hauptschule, Realschule, Gymnasium, Gesamtschule, Öffentliche Verkehrsmittel
Kontaktanfrage senden
Über den Anbieter
OM PropTech GmbH
Humboldtstraße 25a
21509 Glinde
Kontakt
| Telefon | - |
| Fax | - |
| Website | www.ohne-makler.net |
Ansprechpartner/in
Privat von Bobby Vander Pan
Weitere Angebote des Anbieters
4
Helle 3-Zimmer-Wohnung mit Balkon & Aufzug – ...
Wohnung
84453 Mühldorf
Diese gepflegte 3-Zimmer-Eigentumswohnung in Mühldorf am Inn überzeugt durch eine gelungene Raumaufteilung, angenehme Helligkeit und einen hohen Wohnkomfort – ideal für Eigennutzer oder Kapitalanleger. Auf ca. 89,7 m² ...
299.900 €
Kaufpreis
89,7 m²
Wohnfläche
3
Zimmer
7
Wohnen, wo Husum am schönsten ist – helle 4 Zimmer in ...
Wohnung
25813 Husum
Diese helle und gut geschnittene 4-Zimmer-Wohnung mit ca. 92 m² Wohnfläche befindet sich im 1. Obergeschoss eines gepflegten Mehrfamilienhauses mit 3 Parteien in Husum und bietet ein angenehmes Wohnambiente für Paare, ...
1.104 €
Kaltmiete (netto)
92 m²
Wohnfläche
4
Zimmer
7
Großzügige 3-Zimmer-Wohnung mit Balkon und 2 Bädern – ...
Wohnung
66869 Kusel
Diese gepflegte 3-Zimmer-Wohnung im Etschberger Weg 49 in Kusel überzeugt durch eine durchdachte Raumaufteilung sowie ein helles und freundliches Wohnambiente. Die Wohnung befindet sich in einem Mehrfamilienhaus und ...
640 €
Kaltmiete (netto)
67 m²
Wohnfläche
3
Zimmer
12
Helle 2-Zimmer Wohnung in Pfullingen zur Vermietung
Wohnung
72793 Pfullingen
Suchen Sie ein Zuhause, das Gemütlichkeit mit praktischem Komfort verbindet? Diese helle 2-Zimmer-Eigentumswohnung in Pfullingen bietet auf ca. 61 m² genau den richtigen Platz für Singles oder Paare. Die Highlights der ...
800 €
Kaltmiete (netto)
61 m²
Wohnfläche
2
Zimmer
27
Helle 4-Zimmer Wohnung mit Balkon im 2. OG in ...
Wohnung
82024 Taufkirchen
Die helle und großzügige 4-Zimmer-Wohnung mit einer Wohnfläche von 89,3m² befindet sich im 2. Obergeschoss eines modernen und gepflegten Mehrfamilienhauses aus dem Jahr 1999 in Taufkirchen bei München. Die Wohnung ...
1.750 €
Kaltmiete (netto)
89,3 m²
Wohnfläche
4
Zimmer