Altbauwohnung in Berlin-Mitte
440.000 €
Kaufpreis
65,5 m²
Wohnfläche
2
Zimmer
immobilien.de Nr.: 9513022
Objektnummer: 432842
Kaufpreis
| Kaufpreis | 440.000 € |
| Hausgeld | 150 € |
| Maklerprovision | keine Provision, courtagefrei |
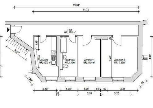
Wohnfläche, Grundstück & Bausubstanz
| Wohnfläche | 65,5 m² |
| Zimmer | 2 |
| Baujahr | 1905 |
| Verfügbar ab | sofort |
| Zustand | Gepflegt |
Energie
| Energieausweistyp | Bedarfsausweis |
| Energieeffizienzklasse | D |
| Endenergiebedarf | 105 |
| Heizungsart | Etagenheizung |
| Energieträger/Befeuerung | Gas |
Beschreibung der Immobilie
Helle, ruhige und schön geschnittene Altbauwohnung, sehr hohe Decken (3,63 bis 3,90 Meter) im 1. Stock des Seitenflügels mit Blick über ein begrüntes Dach
Beide Zimmer sind separat mit hohen Fenstern, Küche mit Fenster, gefliestes Wannenbad, ebenfalls mit Fenster, Waschmaschinenanschluss
Holzböden in beiden Zimmern sowie im Flur, Holzfenster.
Deckenspots, Kabel- und ISDN- Anschluss, Gasetagenheizung (Abrechnung direkt mit dem Anbieter). Eine Einbauküche ist vorhanden und erleichtert Ihnen den Einzug.
Ein Keller bietet zusätzlichen Stauraum.
Beide Zimmer sind separat mit hohen Fenstern, Küche mit Fenster, gefliestes Wannenbad, ebenfalls mit Fenster, Waschmaschinenanschluss
Holzböden in beiden Zimmern sowie im Flur, Holzfenster.
Deckenspots, Kabel- und ISDN- Anschluss, Gasetagenheizung (Abrechnung direkt mit dem Anbieter). Eine Einbauküche ist vorhanden und erleichtert Ihnen den Einzug.
Ein Keller bietet zusätzlichen Stauraum.
Ausstattungsmerkmale
| Anzahl der Etagen im Haus | 5 |
| Inserat befindet sich im Stockwerk | 1 |
| Bad | 1 |
| Boden | Parkett |
| Keller |
Keller, Parkett
Sonstige Informationen
Heizungsart: Etagenheizung
Energieträger: Gas
Makleranfragen nicht erwünscht. Nach § 7 UWG sind unaufgeforderte Kontaktaufnahmen durch Makler ohne ausdrückliche Einwilligung des Empfängers verboten!
ohne-makler (OM) ist weder Anbieter noch Vermittler der Immobilie. OM betreibt eine Plattform für Immobilieneigentümer, die unter anderem die gleichzeitige Veröffentlichung einzelner Inserate auf mehreren Immobilienportalen ermöglicht. Die Inhalte dieser Inserate werden ausschließlich von Dritten verantwortet. Für die Richtigkeit, Vollständigkeit oder Rechtmäßigkeit der Angaben übernimmt OM keine Haftung. Hinweise auf mögliche Rechtsverstöße können jederzeit gemeldet werden und werden nach Prüfung umgehend bearbeitet.
Energieträger: Gas
Makleranfragen nicht erwünscht. Nach § 7 UWG sind unaufgeforderte Kontaktaufnahmen durch Makler ohne ausdrückliche Einwilligung des Empfängers verboten!
ohne-makler (OM) ist weder Anbieter noch Vermittler der Immobilie. OM betreibt eine Plattform für Immobilieneigentümer, die unter anderem die gleichzeitige Veröffentlichung einzelner Inserate auf mehreren Immobilienportalen ermöglicht. Die Inhalte dieser Inserate werden ausschließlich von Dritten verantwortet. Für die Richtigkeit, Vollständigkeit oder Rechtmäßigkeit der Angaben übernimmt OM keine Haftung. Hinweise auf mögliche Rechtsverstöße können jederzeit gemeldet werden und werden nach Prüfung umgehend bearbeitet.
Karte wird geladen...
Objektstandort
Chausseestr. 9
10115 Berlin
- Berlin
Lage & Infrastruktur
Objektstandort
Chausseestr. 9
10115 Berlin
- Berlin
Absolut begehrte und zentrale „Kiez“- Lage, sehr ruhig, da im Seitenflügel.
Chausseestraße angrenzend an Friedrichstrasse und Torstraße. Nah am Hauptbahnhof und sehr gute öffentliche Verkehrsanbindung, U- und S- Bahn, Metrostrassenbahnlinien
Optimale Einkaufsmöglichkeiten, Spitzenrestaurants (3-Sterne-Michelin direkt vor der Haustür), Cafe’s, Parkraumbewirtschaftung, Laufentfernung zu den Hackschen Höfen, vielen Museen, Theatern usw.
Infrastruktur (im Umkreis von 5 km):
Apotheke, Lebensmittel-Discount, Allgemeinmediziner, Kindergarten, Grundschule, Gymnasium, Öffentliche Verkehrsmittel
Chausseestraße angrenzend an Friedrichstrasse und Torstraße. Nah am Hauptbahnhof und sehr gute öffentliche Verkehrsanbindung, U- und S- Bahn, Metrostrassenbahnlinien
Optimale Einkaufsmöglichkeiten, Spitzenrestaurants (3-Sterne-Michelin direkt vor der Haustür), Cafe’s, Parkraumbewirtschaftung, Laufentfernung zu den Hackschen Höfen, vielen Museen, Theatern usw.
Infrastruktur (im Umkreis von 5 km):
Apotheke, Lebensmittel-Discount, Allgemeinmediziner, Kindergarten, Grundschule, Gymnasium, Öffentliche Verkehrsmittel
Kontaktanfrage senden
Über den Anbieter
OM PropTech GmbH
Humboldtstraße 25a
21509 Glinde
Kontakt
| Telefon | - |
| Fax | - |
| Website | www.ohne-makler.net |
Ansprechpartner/in
Privat vom Eigentümer
Weitere Angebote des Anbieters
13
Schöne 5,5 Zimmer-Wohnung in ruhiger Aussichtslage
Wohnung
71287 Weissach - Flacht
Die modernisierte Wohnung befindet sich im DG eines 5-Familienhauses. Das Gebäude liegt am Ende einer Sackgasse in ruhiger Aussichtslage von Flacht. Die Wohnung ist hell und freundlich und erstreckt sich über die ...
445.000 €
Kaufpreis
104 m²
Wohnfläche
5,5
Zimmer
28
Bei Glashütten, 5 Schlafzimmer, Haus mit Blick und ...
Haus
65510 Idstein
Haus in Idstein - Oberrod, ca. 3km von Glashütten entfernt. Idstein Stadt ist ca. 11km entfernt. Der Preis ist VB. Massivgebautes und freistehendes Wohnhaus mit potentieller Einliegerwohnung und umliegendem Garten 863 ...
630.000 €
Kaufpreis
197 m²
Wohnfläche
7
Zimmer
14
Provisionsfreies Einfamilienhaus mit Wärmepumpe
Haus
29308 Winsen/Aller
Dieses massiv errichtete Einfamilienhaus aus dem Baujahr 2006 bietet Ihnen und Ihrer Familie einen außergewöhnlichen Wohnkomfort auf 450 qm² Wohnfläche und 100 qm² Nutzfläche. Der durchdachte Grundriss verteilt sich ...
640.000 €
Kaufpreis
450 m²
Wohnfläche
7
Zimmer
38
Verkaufe Einfamilienhaus ohne Makler von Privat in ...
Haus
12305 Berlin
Einfamilienhaus von 1933, 195qm über 4 Etagen, Grundstück 1003qm, Haus ist voll saniert mit Mansarddach und rote Dachziegel bedeckt. Voll Wärmeschutzisolierung bis zum Souterrain im KFW115 Standard / Energiepass 71,4 ...
985.000 €
Kaufpreis
130 m²
Wohnfläche
7
Zimmer
11
Möblierte Penthouse-Wohnung in guter Wohngegend
Wohnung
22149 Hamburg
Willkommen in diesem charmanten ,möblierten Penthouse, gelegen im 2. Obergeschoss eines gepflegten Gebäudes aus dem Jahr 1991 in Hamburg-Rahlstedt. Die Wohnung besticht durch eine gehobene Innenausstattung und eine ...
1.200 €
Kaltmiete (netto)
44 m²
Wohnfläche
2
Zimmer