SOFORT BEBAUBAR: Baureifes Exklusiv-Grundstück in Bestlage!
1.361.450 €
Kaufpreis
170 m²
Wohnfläche
7
Zimmer
immobilien.de Nr.: 9512484
Objektnummer: 1737/22/1-Überlingen
Kaufpreis
| Kaufpreis | 1.361.450 € |
Wohnfläche, Grundstück & Bausubstanz
| Wohnfläche | 170 m² |
| Grundstücksfläche | 459 m² |
| Zimmer | 7 |
| Verfügbar ab | keine Angabe |
Energie
| Energietyp | KfW-40 |
| Heizungsart | Zentralheizung |
| Energieträger/Befeuerung | Luft-Wärme-Pumpe |
Beschreibung der Immobilie
Hören Sie auf zu warten und fangen Sie an zu bauen!
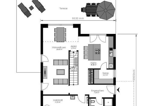
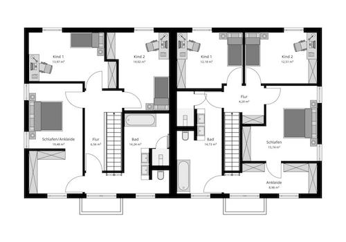
In einer der begehrtesten Lagen von Überlingen bieten wir Ihnen dieses baureife Grundstück an. Die Planungssicherheit ist bereits inklusive: Realisieren Sie hier Ihre repräsentative Stadtvilla mit großzügigen 170 m² Wohnfläche plus Vollunterkellerung.
Hier sind Ihren Wohnträumen keine bürokratischen Grenzen gesetzt. Dank der hervorragenden Infrastruktur und der direkten Nähe zum Bodensee sichern Sie sich nicht nur ein luxuriöses Zuhause, sondern eine wertstabile Kapitalanlage in einer der attraktivsten Regionen Deutschlands.
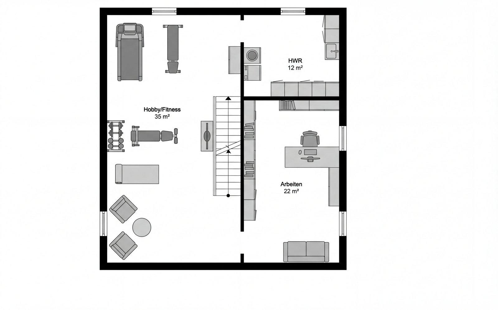
Ob Home-Office, Wellness-Bereich im Souterrain oder Platz für die große Familie - Besichtigen, Planen, Bauen - Ihr Einzug 2026 beginnt hier.
In einer der begehrtesten Lagen von Überlingen bieten wir Ihnen dieses baureife Grundstück an. Die Planungssicherheit ist bereits inklusive: Realisieren Sie hier Ihre repräsentative Stadtvilla mit großzügigen 170 m² Wohnfläche plus Vollunterkellerung.
Hier sind Ihren Wohnträumen keine bürokratischen Grenzen gesetzt. Dank der hervorragenden Infrastruktur und der direkten Nähe zum Bodensee sichern Sie sich nicht nur ein luxuriöses Zuhause, sondern eine wertstabile Kapitalanlage in einer der attraktivsten Regionen Deutschlands.
Ob Home-Office, Wellness-Bereich im Souterrain oder Platz für die große Familie - Besichtigen, Planen, Bauen - Ihr Einzug 2026 beginnt hier.
Ausstattungsmerkmale
| Anzahl der Etagen im Haus | 2 |
| Küche | Offene Küche |
| Bad | 1 |
| Bad | Dusche, Wanne, Fenster, Bidet |
| Keller |
STREIF-Häuser sind Energiesparhäuser. Die Außenwände im Passiv-Haus-Standard und eine sparsame Heiztechnik mit integrierter Wohnraumlüftung und Wärmerückgewinnung, garantieren einen geringen Energieverbrauch und ein fantastisches Raumklima, das insbesondere Allergiker aufatmen lässt.
STREIF Leistungen sind MEHR WERT - schon im Grundpreis enthalten!
- 20-monatige Festpreisgarantie
- Energieeffizienzhaus KfW 40PLUS im Standard
- Inkl. Fundamentplatte
- Inkl. STREIF-Luft-Luft-Wärmepumpe mit integrierter
Lüftungsanlage mit Wärmerückgewinnung
- Inkl. Haustür von KERA und Fenster von Porta/Kömmerling
- Inkl. Massivholz-Geschosstreppe aus eigener Produktion
- Inkl. Sanitärobjekte von Markenherstellern
- Inkl. Vorbereitung zur Installation einer Photovoltaik-Anlage
- Inkl. Elektroinstallation
- Inkl. Baubetreuung u.v.m.
Die hohe Wertigkeit und Langlebigkeit eines STREIF-Energiespar-Hauses wird durch zahlreiche Auszeichnungen, Qualitäts- und Gütesiegel unabhängiger Institute und Verbände dokumentiert.
Wir bauen individuell für Sie, deshalb sind Bilder und Grundrisse Beispiele und Gestaltungsideen und können evtl. Anbauteile, Carports, Balkone, Gauben usw. zeigen, die nicht im Angebotspreis enthalten sind. Änderungen und Irrtümer vorbehalten.
STREIF Leistungen sind MEHR WERT - schon im Grundpreis enthalten!
- 20-monatige Festpreisgarantie
- Energieeffizienzhaus KfW 40PLUS im Standard
- Inkl. Fundamentplatte
- Inkl. STREIF-Luft-Luft-Wärmepumpe mit integrierter
Lüftungsanlage mit Wärmerückgewinnung
- Inkl. Haustür von KERA und Fenster von Porta/Kömmerling
- Inkl. Massivholz-Geschosstreppe aus eigener Produktion
- Inkl. Sanitärobjekte von Markenherstellern
- Inkl. Vorbereitung zur Installation einer Photovoltaik-Anlage
- Inkl. Elektroinstallation
- Inkl. Baubetreuung u.v.m.
Die hohe Wertigkeit und Langlebigkeit eines STREIF-Energiespar-Hauses wird durch zahlreiche Auszeichnungen, Qualitäts- und Gütesiegel unabhängiger Institute und Verbände dokumentiert.
Wir bauen individuell für Sie, deshalb sind Bilder und Grundrisse Beispiele und Gestaltungsideen und können evtl. Anbauteile, Carports, Balkone, Gauben usw. zeigen, die nicht im Angebotspreis enthalten sind. Änderungen und Irrtümer vorbehalten.
Sonstige Informationen
STREIF Leistungen sind mehr wert - schon im Grundpreis!
INDIVIDUELLE ARCHITEKTUR
-persönliche Architekten-Planung
-individuelle Grundrissgestaltung ohne Mehrpreis
UNSERE BAUWEISE
-mehrschichtiger diffusionsvariabler Wandaufbau bis U-Wert 0,10 W / m² * K - im Gefach (zwischen den Stielen) gemessen
-hochstabile Innenwand und Konstruktion
-Fenster gesamt: Uw-Wert 0,81 W/m² * K
Glas der Fenster: Ug-Wert 0,6 W/m² * K
-Haustür ab UD-Wert 0,64 W/m² * K
-30 Jahre Garantie auf statisches Tragwerk
-ausschließlich handgemacht in Deutschland
INDIVIDUELLE ARCHITEKTUR
-persönliche Architekten-Planung
-individuelle Grundrissgestaltung ohne Mehrpreis
UNSERE BAUWEISE
-mehrschichtiger diffusionsvariabler Wandaufbau bis U-Wert 0,10 W / m² * K - im Gefach (zwischen den Stielen) gemessen
-hochstabile Innenwand und Konstruktion
-Fenster gesamt: Uw-Wert 0,81 W/m² * K
Glas der Fenster: Ug-Wert 0,6 W/m² * K
-Haustür ab UD-Wert 0,64 W/m² * K
-30 Jahre Garantie auf statisches Tragwerk
-ausschließlich handgemacht in Deutschland
Karte wird geladen...
Objektstandort
88662 Überlingen
Lage & Infrastruktur
Objektstandort
88662 Überlingen
Angeboten wird eines der seltenen, noch verfügbaren Baugrundstücke in einer der begehrtesten Wohnlagen von Überlingen. In nur etwa 15 Gehminuten erreichen Sie das Ufer des Bodensees sowie die charmante Promenade. Das Grundstück besticht durch seine ruhige, gewachsene Nachbarschaft und bietet die perfekte Balance zwischen privatem Rückzugsort und urbaner Seenähe.
Mit einer Wertsteigerung von knapp 20 % im Bereich hochwertiger Häuser allein im vergangenen Jahr stellt dieses Areal nicht nur einen Wohntraum, sondern eine erstklassige Kapitalanlage in einem der stabilsten Immobilienmärkte Deutschlands dar.
Mit einer Wertsteigerung von knapp 20 % im Bereich hochwertiger Häuser allein im vergangenen Jahr stellt dieses Areal nicht nur einen Wohntraum, sondern eine erstklassige Kapitalanlage in einem der stabilsten Immobilienmärkte Deutschlands dar.
Kontaktanfrage senden
Über den Anbieter
STREIF Haus GmbH
Josef-Streif-Straße 1
54595 Weinsheim
Kontakt
| Telefon | +49 6551 1200 |
| Mobil | +49 157 70255471 |
| Website | www.streif.de |
Ansprechpartner/in
Herr Dennis Käppeler
Weitere Angebote des Anbieters
10
SOFORT BEBAUBAR: Baureifes Exklusiv-Grundstück in ...
Haus
88662 Überlingen
Hören Sie auf zu warten und fangen Sie an zu bauen! In einer der begehrtesten Lagen von Überlingen bieten wir Ihnen dieses baureife Grundstück an. Die Planungssicherheit ist bereits inklusive: Realisieren Sie hier Ihre ...
1.361.450 €
Kaufpreis
170 m²
Wohnfläche
7
Zimmer
6
IM DOPPELPACK AUF GUTE NACHBARSCHAFT
Haus
15366 Hoppegarten
STREIF-Häuser sind Energiesparhäuser. Jedes STREIF-Haus wird im Standard bereits als Energieeffizienzhaus KfW 40 EE* gebaut. (* In Abhängigkeit von Gebäudestandort, Gebäudeausrichtung, Fensterflächenanteile usw. können ...
559.990 €
Kaufpreis
115 m²
Wohnfläche
4
Zimmer
6
VOR DEN ÖSTLICHEN TOREN BERLINS
Haus
15366 Hoppegarten
Das moderne Stadthaus von STREIF wird von einem Übereck-Erker und einem überdachten Hauseingang mit angeschlossenem Carport akzentuiert. Auf einer Raumgrundfläche von 143 m² sind 3 Schlafräume, 2 Bäder, ein ...
857.700 €
Kaufpreis
158 m²
Wohnfläche
5
Zimmer
8
HÄUSER MIT CHARME UND CHARAKTER
Haus
15366 Hoppegarten
Das moderne Stadthaus von STREIF wird von einem Übereck-Erker und einem überdachten Hauseingang mit angeschlossenem Carport akzentuiert. Auf einer Raumgrundfläche von 125 m² sind 3 Schlafräume, 2 Bäder, ein ...
616.299 €
Kaufpreis
140 m²
Wohnfläche
5
Zimmer
7
2 X JETZT BEGINNEN UND NICHT IRGENDWANN
Haus
15366 Hoppegarten
Das moderne Stadthaus von STREIF wird von einem Übereck-Erker und einem überdachten Hauseingang mit angeschlossenem Carport akzentuiert. Auf einer Raumgrundfläche von 125 m² sind 3 Schlafräume, 2 Bäder, ein ...
619.299 €
Kaufpreis
125 m²
Wohnfläche
5
Zimmer