Doppelhaushälfte mit 2 Wohneinheiten, Dachterrasse & Garten – Viel Potenzial in Bremen-Farge
249.000 €
Kaufpreis
135,41 m²
Wohnfläche
6
Zimmer
immobilien.de Nr.: 9511536
Objektnummer: CS-FGF11
Kaufpreis
| Kaufpreis | 249.000 € |
| Maklerprovision | 3,57% inkl. MwSt. |
| Stellplatz Garage Kaufpreis | 0 € |
| Stellplatz Garage Miete | 0 € |
Wohnfläche, Grundstück & Bausubstanz
| Wohnfläche | 135,41 m² |
| Grundstücksfläche | 451 m² |
| Zimmer | 6 |
| Baujahr | 1955 |
| Verfügbar ab | keine Angabe |
| Zustand | Gepflegt |
Energie
| Energieausweistyp | Bedarfsausweis |
| Gültig bis | 2036-03-05 |
| Baujahr (laut Energieausweis) | 1997 |
| Energieeffizienzklasse | G |
| Endenergiebedarf | 201.08 |
| Wesentlicher Energieträger | Oel |
| Energieträger/Befeuerung | Öl |
Beschreibung der Immobilie
Sie suchen ein Zuhause mit Charakter und Platz zur Entfaltung? Vielseitige Doppelhaushälfte mit großem Potenzial in Bremen-Farge
Diese 1955 erbaute und 1975/76 grundlegend umgebaute und erweiterte Doppelhaushälfte in Bremen- Farge bietet auf ca. 130 m² Wohnfläche ideale Bedingungen.
Mit 6 Zimmern, zwei Bädern und zwei Küchen ist das Haus ein echtes Raumwunder.
Dadurch ließe sich die Immobilie problemlos auch als zwei separate Wohneinheiten nutzen.
Perfekt für Eigennutzer, die durch Teilvermietung finanzieren wollen, oder als Mehrgenerationenhaus.
Das Highlight: Ein bereits modernisiertes Dach (ca. 2015) mit 14 cm Dämmung!
Der Garten mit der gläsern überdachten Terrasse lädt zum Grillen ein, während die große Dachterrasse im Obergeschoss private Sonnenstunden garantiert.
Eine Garage mit Werkstatt rundet das Angebot ab.
Das Haus ist teilweise modernisierungsbedürftig, bietet aber eine hervorragende Substanz für Ihre eigenen Ideen.
Diese 1955 erbaute und 1975/76 grundlegend umgebaute und erweiterte Doppelhaushälfte in Bremen- Farge bietet auf ca. 130 m² Wohnfläche ideale Bedingungen.
Mit 6 Zimmern, zwei Bädern und zwei Küchen ist das Haus ein echtes Raumwunder.
Dadurch ließe sich die Immobilie problemlos auch als zwei separate Wohneinheiten nutzen.
Perfekt für Eigennutzer, die durch Teilvermietung finanzieren wollen, oder als Mehrgenerationenhaus.
Das Highlight: Ein bereits modernisiertes Dach (ca. 2015) mit 14 cm Dämmung!
Der Garten mit der gläsern überdachten Terrasse lädt zum Grillen ein, während die große Dachterrasse im Obergeschoss private Sonnenstunden garantiert.
Eine Garage mit Werkstatt rundet das Angebot ab.
Das Haus ist teilweise modernisierungsbedürftig, bietet aber eine hervorragende Substanz für Ihre eigenen Ideen.
Ausstattungsmerkmale
| Küche | Einbauküche |
| Bad | 2 |
| Terrassen | 1 |
| Garage/Stellplätze | 1 |
| Dachboden | |
| Keller |
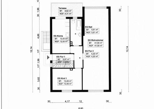
Raumaufteilung & Highlights
Das Haus ist aktuell so konzipiert, dass es theoretisch zwei separate Wohneinheiten beherbergen kann. Dies bietet maximale Flexibilität für Mehrgenerationenwohnen oder Teilvermietung.
Erdgeschoss (ca. 3 Zimmer)
* Helles Wohnangebot mit direktem Zugang zur Terrasse und dem eingewachsenen Garten.
* Eigene Küche und ein Tageslichtbad mit Dusche.
* Ideal als abgeschlossene Wohneinheit oder als großzügiger Lebensmittelpunkt.
Obergeschoss & Dach (ca. 3 Zimmer)
* Drei vielseitig nutzbare Zimmer sowie eine weitere Küche und ein zweites Duschbad (mit Fenster).
* Besonderes Highlight: Die großzügige Dachterrasse mit Blick ins Grüne.
* Zusätzliche Stellfläche im Spitzboden und verbesserte Raumhöhe durch zwei Gauben.
Außenanlage & Nebengebäude
* Terrasse: mit Glas überdacht
* Garage: Inklusive angeschlossener Werkstatt/Geräteraum – ideal für Bastler und Gartenfreunde.
* Keller: Ein großer Teilkeller bietet ausreichend Stauraum für Vorräte und Technik.
Substanz & Technik
Die Immobilie präsentiert sich in einem gepflegten, aber teilweise sanierungsbedürftigen Zustand. Dies wurde bei der Preisfindung bereits berücksichtigt und bietet Ihnen die Chance, moderne Standards nach eigenem Geschmack zu setzen.
Das Haus ist aktuell so konzipiert, dass es theoretisch zwei separate Wohneinheiten beherbergen kann. Dies bietet maximale Flexibilität für Mehrgenerationenwohnen oder Teilvermietung.
Erdgeschoss (ca. 3 Zimmer)
* Helles Wohnangebot mit direktem Zugang zur Terrasse und dem eingewachsenen Garten.
* Eigene Küche und ein Tageslichtbad mit Dusche.
* Ideal als abgeschlossene Wohneinheit oder als großzügiger Lebensmittelpunkt.
Obergeschoss & Dach (ca. 3 Zimmer)
* Drei vielseitig nutzbare Zimmer sowie eine weitere Küche und ein zweites Duschbad (mit Fenster).
* Besonderes Highlight: Die großzügige Dachterrasse mit Blick ins Grüne.
* Zusätzliche Stellfläche im Spitzboden und verbesserte Raumhöhe durch zwei Gauben.
Außenanlage & Nebengebäude
* Terrasse: mit Glas überdacht
* Garage: Inklusive angeschlossener Werkstatt/Geräteraum – ideal für Bastler und Gartenfreunde.
* Keller: Ein großer Teilkeller bietet ausreichend Stauraum für Vorräte und Technik.
Substanz & Technik
Die Immobilie präsentiert sich in einem gepflegten, aber teilweise sanierungsbedürftigen Zustand. Dies wurde bei der Preisfindung bereits berücksichtigt und bietet Ihnen die Chance, moderne Standards nach eigenem Geschmack zu setzen.
Sonstige Informationen
Energieausweis
Art: Bedarfsausweis
Gültig bis: 05.03.2036
Endenergiebedarf: 201,08 kWh/(m²*a)
Baujahr lt. Energieausweis: 1955 / 1975 Erweiterung
Baujahr Heizung: 1997
Energieklasse: G
Modernisierungsbedarf
Die Immobilie bietet eine solide Grundlage, weist jedoch in Teilbereichen Modernisierungsbedarf auf:
• Elektrik entspricht überwiegend nicht dem heutigen Standard
• Teilweise ältere Fenster
• Fassadendämmung nicht vorhanden
Insbesondere energetische Maßnahmen (z. B. Fassadendämmung oder Heizungsmodernisierung) bieten Potenzial zur Verbesserung der Energieeffizienz und langfristigen Wertsteigerung.
Für ein ausführliches Exposé und den virtuellen Rundgang lassen Sie uns bitte eine Anfrage per E-Mail zu kommen.
Art: Bedarfsausweis
Gültig bis: 05.03.2036
Endenergiebedarf: 201,08 kWh/(m²*a)
Baujahr lt. Energieausweis: 1955 / 1975 Erweiterung
Baujahr Heizung: 1997
Energieklasse: G
Modernisierungsbedarf
Die Immobilie bietet eine solide Grundlage, weist jedoch in Teilbereichen Modernisierungsbedarf auf:
• Elektrik entspricht überwiegend nicht dem heutigen Standard
• Teilweise ältere Fenster
• Fassadendämmung nicht vorhanden
Insbesondere energetische Maßnahmen (z. B. Fassadendämmung oder Heizungsmodernisierung) bieten Potenzial zur Verbesserung der Energieeffizienz und langfristigen Wertsteigerung.
Für ein ausführliches Exposé und den virtuellen Rundgang lassen Sie uns bitte eine Anfrage per E-Mail zu kommen.
Karte wird geladen...
Objektstandort
28777 Bremen / Farge
Lage & Infrastruktur
Objektstandort
28777 Bremen / Farge
Die Immobilie befindet sich in ruhiger, gewachsener Wohnlage im Bremer Ortsteil Farge im Norden von Bremen. Das Umfeld ist geprägt von Ein- und Zweifamilienhäusern sowie wenig Durchgangsverkehr – ideal für Familien und Ruhesuchende.
Einkaufsmöglichkeiten, Schulen, Kindergärten und ärztliche Versorgung sind in der näheren Umgebung vorhanden. Eine gute Anbindung an den öffentlichen Nahverkehr (Buslinie 90 und Nordwestbahn) sowie an die B74/A270 gewährleistet eine zügige Erreichbarkeit der Bremer Innenstadt und des Umlands.
Die Nähe zur Weser und zu weitläufigen Grünflächen bietet einen hohen Freizeit- und Erholungswert.
Einkaufsmöglichkeiten, Schulen, Kindergärten und ärztliche Versorgung sind in der näheren Umgebung vorhanden. Eine gute Anbindung an den öffentlichen Nahverkehr (Buslinie 90 und Nordwestbahn) sowie an die B74/A270 gewährleistet eine zügige Erreichbarkeit der Bremer Innenstadt und des Umlands.
Die Nähe zur Weser und zu weitläufigen Grünflächen bietet einen hohen Freizeit- und Erholungswert.
Kontaktanfrage senden
Über den Anbieter
Niemeyer Immobilien
Am Rönnebecker Hain 2
28777 Bremen
Kontakt
| Telefon | 00494216028899 |
| Fax | 00494216099694 |
| Website | www.niemeyer-gbr.de |
Ansprechpartner/in
Frau Christiane Sinzig
Weitere Angebote des Anbieters
21
Doppelhaushälfte mit 2 Wohneinheiten, Dachterrasse & ...
Haus
28777 Bremen / Farge
Sie suchen ein Zuhause mit Charakter und Platz zur Entfaltung? Vielseitige Doppelhaushälfte mit großem Potenzial in Bremen-Farge Diese 1955 erbaute und 1975/76 grundlegend umgebaute und erweiterte Doppelhaushälfte in ...
249.000 €
Kaufpreis
135,41 m²
Wohnfläche
6
Zimmer
14
Gepflegte Eigentumswohnung im 2. OG, inkl. ...
Wohnung
28325 Bremen
Gepflegte Eigentumswohnung in beliebter Lage von Bremen- Osterholz! Diese gepflegte 3-Zimmer-Eigentumswohnung überzeugt durch eine durchdachte Raumaufteilung, helle Wohnräume und einen attraktiven Balkon. Mit ca. 67,70 ...
199.000 €
Kaufpreis
67,7 m²
Wohnfläche
3
Zimmer
20
Historisches Juwel unter Reet: Modernisiertes ...
Haus
28777 Bremen / Rekum
Willkommen in einem Stück Zeitgeschichte! Dieses im Jahr 1828 errichtete Bauernhaus verbindet den unverwechselbaren Charakter eines historischen Fachwerkhofes mit dem Wohnstandard von heute. Auf einem ca. 491 m² großen ...
329.900 €
Kaufpreis
200 m²
Wohnfläche
8
Zimmer
27
Ein- bis Zweifamilienhaus mit Vollkeller an der Grenze ...
Haus
28779 Bremen
Dieses großzügige voll unterkellerte Wohnhaus in Bremen-Bockhorn direkt an der Grenze zu Schwanewede bietet vielfältige Nutzungsmöglichkeiten und überzeugt durch ein weitläufiges Grundstück sowie eine solide ...
399.000 €
Kaufpreis
238 m²
Wohnfläche
7
Zimmer
32
Ein- bis Zweifamilienhaus in ruhiger und dennoch ...
Haus
28790 Schwanewede / Neuenkirchen
Diese ursprünglich 1936 massiv erbaute Immobilie im Schwaneweder Ortsteil Neuenkirchen wurde im Jahr 1992 zu einem Zweifamilienhaus umgebaut und bietet viele Möglichkeiten, ob für alleinstehende, Paare oder auch ...
319.000 €
Kaufpreis
239 m²
Wohnfläche
8
Zimmer