AIGNER - Großes Zweifamilienhaus mit Eckgrundstück und Ausblick in ruhiger Lage
770.000 €
Kaufpreis
194,32 m²
Wohnfläche
267 m²
Nutzfläche
8
Zimmer
immobilien.de Nr.: 9509026
Objektnummer: 43370
Kaufpreis
| Kaufpreis | 770.000 € |
| Maklerprovision | 3,57% |
Wohnfläche, Grundstück & Bausubstanz
| Wohnfläche | 194,32 m² |
| Nutzfläche | 267 m² |
| Grundstücksfläche | 1.181 m² |
| Zimmer | 8 |
| Baujahr | 1974 |
| Verfügbar ab | 01.08.2026 |
| Zustand | Gepflegt |
Energie
| Heizungsart | Zentralheizung |
Beschreibung der Immobilie
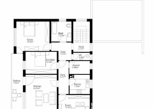
Dieses gepflegte Zweifamilienhaus empfängt Sie über eine überdachte Einfahrt mit zwei Garagen, von der aus Sie direkt in das zentrale Treppenhaus gelangen, das beide Wohneinheiten erschließt. Dank zweier separater Eingänge können die Wohnungen unabhängig voneinander genutzt oder zu einem großzügigen Einfamilienhaus zusammengeführt werden – ideal für Mehrgenerationenwohnen oder die Kombination aus Eigennutzung und Vermietung.
Im Erdgeschoss betreten Sie über den Flur eine einladende Diele mit geräumigem Elternschlafzimmer, Gäste-WC und großzügigem Badezimmer. Entlang des Flures befinden sich das Kinderzimmer sowie ein praktischer Abstellraum. Der Wohnbereich umfasst eine separate Küche mit angrenzendem Essbereich und ein gemütliches Wohnzimmer.
Ein besonderes Highlight ist der lichtdurchflutete Wintergarten mit großzügigen Glasfronten, der Wohn- und Gartenbereich harmonisch verbindet. Von hier aus gelangen Sie auf die Terrasse und in den liebevoll angelegten Garten mit eigenem Teich – ein idyllischer Rückzugsort für entspannte Stunden im Freien.
Das Obergeschoss entspricht in seiner Raumaufteilung vollständig dem Erdgeschoss und verfügt über einen identischen Grundriss. Sämtliche Räume – darunter Schlafzimmer, Kinderzimmer, Küche mit Essbereich, Wohnzimmer, Badezimmer, Gäste-WC sowie Abstellraum – sind in gleicher Anordnung vorhanden. Vom Wohnzimmer aus betreten Sie den Balkon mit schönem Ausblick. Im Keller bieten mehrere großzügige Räume viel Stauraum, ein beheizbarer Hobbyraum und als Highlight ein liebevoll ausgebautes Heimkino für unvergessliche Filmabende wie im eigenen Kinosaal. Alles in allem vereint dieses Haus durchdachte Raumaufteilungen, flexible Nutzungsmöglichkeiten, lichtdurchflutete Wohnbereiche und einen traumhaften Garten zu einem außergewöhnlichen Zuhause, das Komfort, Stil und Lebensqualität auf höchstem Niveau bietet.
Im Erdgeschoss betreten Sie über den Flur eine einladende Diele mit geräumigem Elternschlafzimmer, Gäste-WC und großzügigem Badezimmer. Entlang des Flures befinden sich das Kinderzimmer sowie ein praktischer Abstellraum. Der Wohnbereich umfasst eine separate Küche mit angrenzendem Essbereich und ein gemütliches Wohnzimmer.
Ein besonderes Highlight ist der lichtdurchflutete Wintergarten mit großzügigen Glasfronten, der Wohn- und Gartenbereich harmonisch verbindet. Von hier aus gelangen Sie auf die Terrasse und in den liebevoll angelegten Garten mit eigenem Teich – ein idyllischer Rückzugsort für entspannte Stunden im Freien.
Das Obergeschoss entspricht in seiner Raumaufteilung vollständig dem Erdgeschoss und verfügt über einen identischen Grundriss. Sämtliche Räume – darunter Schlafzimmer, Kinderzimmer, Küche mit Essbereich, Wohnzimmer, Badezimmer, Gäste-WC sowie Abstellraum – sind in gleicher Anordnung vorhanden. Vom Wohnzimmer aus betreten Sie den Balkon mit schönem Ausblick. Im Keller bieten mehrere großzügige Räume viel Stauraum, ein beheizbarer Hobbyraum und als Highlight ein liebevoll ausgebautes Heimkino für unvergessliche Filmabende wie im eigenen Kinosaal. Alles in allem vereint dieses Haus durchdachte Raumaufteilungen, flexible Nutzungsmöglichkeiten, lichtdurchflutete Wohnbereiche und einen traumhaften Garten zu einem außergewöhnlichen Zuhause, das Komfort, Stil und Lebensqualität auf höchstem Niveau bietet.
Ausstattungsmerkmale
| Küche | Einbauküche |
| Bad | 2 |
| Garage/Stellplätze | 2 |
| Keller |
* Großzügiger, liebevoll angelegter Garten mit eigenem Teich – perfekt zum Entspannen und für sommerliche Stunden im Freien
* Zwei Garagen mit direktem Zugang zur überdachten Einfahrt
* Ausgebautes Heimkino und zusätzlicher Hobbyraum im Keller – ideal für Filmabende, Freizeit oder kreative Projekte
* Heller Wintergarten mit großzügigen Glasfronten, der Wohnbereich und Garten elegant verbindet
* Zwei moderne Badezimmer und zwei Gäste-WCs – komfortabel für Familie und Gäste
* Obergeschoss modernisiert und stilvoll ausgestattet
* Umweltfreundliche Pelletsheizung für effiziente Wärmeversorgung
* Flexibles Wohnkonzept: zwei separat zugängliche Wohnungen über das Treppenhaus, ideal für Mehrgenerationenwohnen oder individuelle Nutzung
* Kamin im Obergeschoss sorgt für gemütliche Wohlfühlatmosphäre
* Zwei Garagen mit direktem Zugang zur überdachten Einfahrt
* Ausgebautes Heimkino und zusätzlicher Hobbyraum im Keller – ideal für Filmabende, Freizeit oder kreative Projekte
* Heller Wintergarten mit großzügigen Glasfronten, der Wohnbereich und Garten elegant verbindet
* Zwei moderne Badezimmer und zwei Gäste-WCs – komfortabel für Familie und Gäste
* Obergeschoss modernisiert und stilvoll ausgestattet
* Umweltfreundliche Pelletsheizung für effiziente Wärmeversorgung
* Flexibles Wohnkonzept: zwei separat zugängliche Wohnungen über das Treppenhaus, ideal für Mehrgenerationenwohnen oder individuelle Nutzung
* Kamin im Obergeschoss sorgt für gemütliche Wohlfühlatmosphäre
Sonstige Informationen
Energieausweistyp: Bedarfsausweis
Energiekennwert: 247,3 kWh/(m²*a)
Energieeffizienzklasse: G
Baujahr: 1974
Befeuerung/Energieträger: Pelletheizung
Heizungsart: Zentralheizung
Energiekennwert: 247,3 kWh/(m²*a)
Energieeffizienzklasse: G
Baujahr: 1974
Befeuerung/Energieträger: Pelletheizung
Heizungsart: Zentralheizung
Karte wird geladen...
Objektstandort
84072 Au in der Hallertau
Lage & Infrastruktur
Objektstandort
84072 Au in der Hallertau
Die Immobilie befindet sich in attraktiver Wohnlage von Au in der Hallertau – einem charmanten Markt im Landkreis Freising, der besonders für seine hohe Lebensqualität und sein naturnahes Umfeld geschätzt wird. Die Umgebung ist geprägt von gepflegten Wohnhäusern, viel Grün und einer angenehm ruhigen Nachbarschaft.
Au in der Hallertau liegt im Herzen des weltbekannten Hopfenanbaugebiets Hallertau und verbindet ländliche Idylle mit einer gut ausgebauten Infrastruktur. Einkaufsmöglichkeiten für den täglichen Bedarf, Bäckereien, Ärzte, Apotheken sowie Cafés und Restaurants sind bequem erreichbar. Familien profitieren zudem von Kindergärten, einer Grund- und Realschule direkt im Ort.
Die reizvolle Landschaft rund um Au lädt zu vielfältigen Freizeitaktivitäten ein. Zahlreiche Rad- und Wanderwege führen durch die sanften Hügel der Hallertau und bieten ideale Bedingungen für Natur- und Sportliebhaber. Auch Vereine und kulturelle Angebote sorgen für ein lebendiges Gemeindeleben.
Verkehrstechnisch ist Au gut angebunden: Über die nahegelegene Bundesstraße B301 sowie die Autobahn A93 sind Städte wie Freising, Landshut, Ingolstadt und München zügig erreichbar. Der Flughafen München ist ebenfalls in angenehmer Fahrzeit erreichbar und unterstreicht die Attraktivität des Standorts – sowohl für Pendler als auch für Vielreisende.
Die Lage vereint somit Ruhe, Naturverbundenheit und eine solide Infrastruktur – ideal für alle, die ein entspanntes Wohnen im Grünen mit guter Erreichbarkeit urbaner Zentren verbinden möchten.
Au in der Hallertau liegt im Herzen des weltbekannten Hopfenanbaugebiets Hallertau und verbindet ländliche Idylle mit einer gut ausgebauten Infrastruktur. Einkaufsmöglichkeiten für den täglichen Bedarf, Bäckereien, Ärzte, Apotheken sowie Cafés und Restaurants sind bequem erreichbar. Familien profitieren zudem von Kindergärten, einer Grund- und Realschule direkt im Ort.
Die reizvolle Landschaft rund um Au lädt zu vielfältigen Freizeitaktivitäten ein. Zahlreiche Rad- und Wanderwege führen durch die sanften Hügel der Hallertau und bieten ideale Bedingungen für Natur- und Sportliebhaber. Auch Vereine und kulturelle Angebote sorgen für ein lebendiges Gemeindeleben.
Verkehrstechnisch ist Au gut angebunden: Über die nahegelegene Bundesstraße B301 sowie die Autobahn A93 sind Städte wie Freising, Landshut, Ingolstadt und München zügig erreichbar. Der Flughafen München ist ebenfalls in angenehmer Fahrzeit erreichbar und unterstreicht die Attraktivität des Standorts – sowohl für Pendler als auch für Vielreisende.
Die Lage vereint somit Ruhe, Naturverbundenheit und eine solide Infrastruktur – ideal für alle, die ein entspanntes Wohnen im Grünen mit guter Erreichbarkeit urbaner Zentren verbinden möchten.
Kontaktanfrage senden
Über den Anbieter
Aigner Immobilien GmbH
Ruffinistr. 26
80637 München
Kontakt
| Telefon | +49(89) 17 87 87 0 |
| Fax | (089) 17 87 87 88 |
| Website | www.aigner-immobilien.de |
Ansprechpartner/in
Herr Leon Avdyli
Weitere Angebote des Anbieters
9
AIGNER - Traumhaftes Reiheneckhaus zum Erstbezug in ...
Haus
81825 München
In München-Trudering entsteht ein Ensemble von vier Reihenhäusern, das zeitlose Architektur, hochwertige Bauweise und durchdachte Wohnkonzepte vereint. Die Häuser präsentieren sich klar und elegant, mit modernen, ...
1.090.000 €
Kaufpreis
119,56 m²
Wohnfläche
5
Zimmer
10
AIGNER - Neubau Reihenmittelhaus mit durchdachtem ...
Haus
81825 München
In München-Trudering entsteht ein Ensemble von vier Reihenhäusern, das zeitlose Architektur, hochwertige Bauweise und durchdachte Wohnkonzepte vereint. Die Häuser präsentieren sich klar und elegant, mit modernen, ...
995.000 €
Kaufpreis
119 m²
Wohnfläche
5
Zimmer
8
AIGNER - Neubau Reihenmittelhaus mit durchdachtem ...
Haus
81825 München
In München-Trudering entsteht ein Ensemble von vier Reihenhäusern, das zeitlose Architektur, hochwertige Bauweise und durchdachte Wohnkonzepte vereint. Die Häuser präsentieren sich klar und elegant, mit modernen, ...
995.000 €
Kaufpreis
118,7 m²
Wohnfläche
5
Zimmer
11
AIGNER - Großes Zweifamilienhaus mit Eckgrundstück und ...
Haus
84072 Au in der Hallertau
Dieses gepflegte Zweifamilienhaus empfängt Sie über eine überdachte Einfahrt mit zwei Garagen, von der aus Sie direkt in das zentrale Treppenhaus gelangen, das beide Wohneinheiten erschließt. Dank zweier separater ...
770.000 €
Kaufpreis
194,32 m²
Wohnfläche
8
Zimmer
9
AIGNER - Elegante 2-Zimmer-Altbauwohnung mit ...
Wohnung
80803 München
Diese gepflegte 2-Zimmer-Wohnung befindet sich in einer gefragten Lage im Münchner Stadtteil Schwabing. Im 4. Obergeschoss in einem 1932 erbauten Mehrfamilienhauses erstreckt sich diese 2-Zimmer-Wohnung auf ca. 67,5 m² ...
750.000 €
Kaufpreis
67,51 m²
Wohnfläche
2
Zimmer