Schicke Wohnung nahe Kranoldplatz – Südbalkon & Gemeinschaftsgarten
310.000 €
Kaufpreis
65 m²
Wohnfläche
2
Zimmer
immobilien.de Nr.: 9508420
Objektnummer: 01KKE6NVJ142MT0VEEDE39T1JH
Kaufpreis
| Kaufpreis | 310.000 € |
| Hausgeld | 444 € |
| Maklerprovision | 3,57% inkl. 19.00% MwSt. |
Wohnfläche, Grundstück & Bausubstanz
| Wohnfläche | 65 m² |
| Grundstücksfläche | 0 m² |
| Zimmer | 2 |
| Baujahr | 1963 |
| Verfügbar ab | keine Angabe |
Energie
| Energieausweistyp | Verbrauch |
| Ausstellungsdatum | 18. 02. 2018 |
| Gültig bis | 18/02/2028 |
| Baujahr (laut Energieausweis) | 2005 |
| Energieeffizienzklasse | D |
| Energieverbrauchkennwert | 118.6 kWh/(m²*a) |
| Wesentlicher Energieträger | Heizöl |
Beschreibung der Immobilie
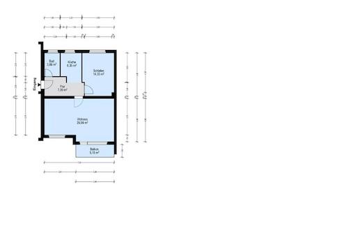
In begehrter Lage nahe dem Kranoldplatz erwartet Sie diese gepflegte 2-Zimmer-Wohnung mit ca. 65 m² Wohnfläche im 2. Obergeschoss eines Mehrfamilienhauses aus dem Jahr 1964 mit insgesamt 19 Wohneinheiten. Die Wohnung überzeugt durch einen durchdachten Grundriss. Das großzügige Wohnzimmer mit knapp 30 m² bietet ausreichend Platz und lässt sich bei Bedarf problemlos in zwei Räume aufteilen.
Das Gebäude selbst präsentiert sich äußerst gepflegt und wurde laufend modernisiert. Dazu zählen neu verputzte und gestrichene Außenfassaden, erneuerte Rohrleitungen sowie renovierte Treppenhäuser. Ein besonderes Highlight ist der sonnige Südbalkon mit Markise. Zusätzlich steht ein Gemeinschaftsgarten zur Verfügung – eine grüne Oase mitten in der Stadt.
Ausstattung im Überblick:
• Bad mit Badewanne
• Komplett ausgestattete Küche
• Südbalkon mit Markise
• Gemeinschaftsgarten
• PKW-Stellplatz inklusive
• Kunststofffenster (2011), Wohnzimmer mit Schallschutz
• Ölheizung (2020)
• Hausgeld: 444 €
Fazit:
Ob zur Eigennutzung oder als solide Kapitalanlage – diese Wohnung bietet Ihnen eine bezahlbare Gelegenheit in sehr gutem Zustand. Zahlen Sie noch Miete oder investieren Sie schon in Ihre Zukunft?
Das Gebäude selbst präsentiert sich äußerst gepflegt und wurde laufend modernisiert. Dazu zählen neu verputzte und gestrichene Außenfassaden, erneuerte Rohrleitungen sowie renovierte Treppenhäuser. Ein besonderes Highlight ist der sonnige Südbalkon mit Markise. Zusätzlich steht ein Gemeinschaftsgarten zur Verfügung – eine grüne Oase mitten in der Stadt.
Ausstattung im Überblick:
• Bad mit Badewanne
• Komplett ausgestattete Küche
• Südbalkon mit Markise
• Gemeinschaftsgarten
• PKW-Stellplatz inklusive
• Kunststofffenster (2011), Wohnzimmer mit Schallschutz
• Ölheizung (2020)
• Hausgeld: 444 €
Fazit:
Ob zur Eigennutzung oder als solide Kapitalanlage – diese Wohnung bietet Ihnen eine bezahlbare Gelegenheit in sehr gutem Zustand. Zahlen Sie noch Miete oder investieren Sie schon in Ihre Zukunft?
Ausstattungsmerkmale
| Anzahl der Etagen im Haus | 2 |
| Inserat befindet sich im Stockwerk | 2 |
| Küche | Einbauküche |
| Bad | Wanne, Fenster |
| Garten | |
| Keller |
Karte wird geladen...
Objektstandort
12207 Berlin
Lage & Infrastruktur
Objektstandort
12207 Berlin
Die sehr gute Lage der Wohnung bietet eine perfekte Kombination aus Urbanität und Ruhe. Öffentliche Verkehrsmittel wie Bus und S-Bahn befinden sich fußläufig entfernt. Alle Geschäfte und Einrichtungen des täglichen Bedarfs sind bequem zu Fuß erreichbar.
• Nächster S-Bahnhof Lichterfelde-Ost: 1 km
• Nächste Bushaltestelle: 100 m
• Nächster S-Bahnhof Lichterfelde-Ost: 1 km
• Nächste Bushaltestelle: 100 m
Kontaktanfrage senden
Über den Anbieter
Golden Home Ltd & Co KG
Unter den Linden 10
10117 Berlin
Kontakt
| Telefon | 004917634598105 |
| Mobil | 004917634598105 |
Ansprechpartner/in
Brigitte Knecht
Weitere Angebote des Anbieters
4
Kompakte Eigentumswohnung-Perfekt für Anleger in ...
Wohnung
10119 Berlin
Praktische 1,5-Zimmer Eigentumswohnung, die modernen Wohnkomfort mit zeitloser Eleganz verbindet. Die Wohnung besticht durch ihre hohen Decken, die ein großzügiges Raumgefühl schaffen, und ist dank der konsequenten ...
260.000 €
Kaufpreis
29,71 m²
Wohnfläche
1,5
Zimmer
5
Praktische 1,5-Zimmer-Eigentumswohnung in Berlin-Mitte
Wohnung
10119 Berlin
Diese zentralegeschnittene 1,5 Zimmer ETW ist derzeit vermietet & bietet auf circa 28,9 m². Die perfekte Kombination aus Urban, Lebensstil und privater Ruhe. Die Wohnung befindet sich im Seitenflügel (Hinterhaus) eines ...
269.000 €
Kaufpreis
28,9 m²
Wohnfläche
1,5
Zimmer
6
Kernsaniert – modern, stilvoll, mit Raum für Ihre ...
Wohnung
68167 Mannheim
Willkommen in Ihrem neuen Zuhause – hell, hochwertig und voller Möglichkeiten Diese charmante 2-Zimmer-Wohnung (ca. 42 m²) vereint das Beste aus zwei Welten: den einzigartigen Charakter eines Altbaus und den Komfort ...
199.000 €
Kaufpreis
42 m²
Wohnfläche
2
Zimmer
1
Attraktives, baureifes Grundstück in hervorragender ...
Grundstück
69124 Heidelberg
Zum Verkauf steht ein erschlossenes, sofort bebaubares Grundstück mit einer Fläche von ca. 621 m² in einem etablierten, überwiegend gewerblich geprägten Umfeld. Mit einer Straßenfront von ca. 13 Metern und einer ...
1.500.000 €
Kaufpreis
612 m²
Grundstücksfläche
5
Ihr Mieter ist schon da!
Wohnung
21149 Hamburg
Diese gepflegte 1-Zimmer-Erdgeschosswohnung in der Cuxhavener Straße 214 überzeugt durch eine durchdachte Raumaufteilung und eine attraktive Vermietungssituation. Auf ca. 44,97 m² verteilen sich ein großzügiges ...
205.000 €
Kaufpreis
44,97 m²
Wohnfläche
1
Zimmer