Solide Doppelanlage mit Entwicklungsperspektive – 2 vermietete Reihenhäuser in Riesenbeck
445.000 €
Kaufpreis
232,45 m²
Wohnfläche
9
Zimmer
immobilien.de Nr.: 9507646
Objektnummer: 280198
Kaufpreis
| Kaufpreis | 445.000 € |
| Maklerprovision | keine Provision, courtagefrei |
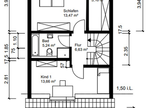
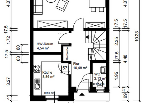
Wohnfläche, Grundstück & Bausubstanz
| Wohnfläche | 232,45 m² |
| Grundstücksfläche | 384 m² |
| Zimmer | 9 |
| Baujahr | 1999 |
| Verfügbar ab | nach Absprache |
| Zustand | Gepflegt |
Energie
| Energieausweistyp | Bedarfsausweis |
| Energieeffizienzklasse | C |
| Endenergiebedarf | 99 |
| Heizungsart | Zentralheizung |
| Energieträger/Befeuerung | Gas |
Beschreibung der Immobilie
Willkommen in der Uhlandstraße in Riesenbeck, wo sich eine seltene Gelegenheit bietet, zwei unmittelbar nebeneinanderliegende Reihenhäuser (Mittelhaus und Endhaus) als Gesamtpaket zu erwerben.
Die im Jahr 1999 in massiver Bauweise errichteten Gebäude verfügen über eine Gesamtwohnfläche von ca. 232,45 m² auf einem 384 m² großen Grundstück.
Der angebotene Kaufpreis von 445.000 € entspricht einem Quadratmeterpreis von lediglich ca. 1.914 € pro m² Wohnfläche.
Damit liegt das Objekt weiterhin unter dem aktuellen Preisniveau vergleichbarer Wohnhäuser in der Region – insbesondere unter Berücksichtigung von Baujahr, Substanz und Entwicklungsperspektive.
Beide Häuser verfügen über:
-eine sonnige Terrasse mit kleinem Garten
-einen eigenen Stellplatz
-Vollkeller
-solide Klinkerfassade
-Satteldach mit Ziegeldeckung
-Energieeffizienzklasse C
-Gas-Zentralheizung
Die Bauqualität ist nachhaltig wertstabil, größere Sanierungsmaßnahmen stehen aktuell nicht an.
Aktuelle Vermietungssituation:
Beide Einheiten sind vermietet und erzielen aktuell eine gesicherte Jahresnettokaltmiete von 10.800 €.
Die bestehende Mietpreisbindung läuft bis zum 31.12.2030. Diese sorgt für Planbarkeit und stabile Mieterstrukturen.
Entwicklungspotenzial ab 01.01.2031
Nach Ablauf der Bindungsfrist kann die Miete frei am Markt angepasst werden.
Bereits heute werden in der Region für Doppelhaushälften Mietpreise von ca. 12 € pro m² erzielt.
Legt man diesen Wert zugrunde, ergibt sich bei 232,45 m² Wohnfläche eine mögliche Jahresnettokaltmiete von:
232,45 m² × 12 € × 12 Monate = ca. 33.400 € pro Jahr
Selbst ohne zukünftige Mietsteigerungen bedeutet dies eine deutliche Ertragssteigerung gegenüber der aktuellen Situation.
Vor dem Hintergrund steigender Baukosten und anhaltender Wohnraumnachfrage erscheint ein Mietniveau von 12 € im Jahr 2031 als konservative Annahme.
Damit eignet sich dieses Objekt insbesondere für Investoren mit mittel- bis langfristigem Anlagehorizont, die heute Substanz erwerben und künftig eine substanzielle Renditeentwicklung realisieren möchten.
Hinweis: Für Selbstnutzer ist das Objekt nicht geeignet. Einzige Ausnahme: Sie erfüllen die Bedingungen für einen Wohnberechtigungsschein des Kreises Steinfurt.
Die im Jahr 1999 in massiver Bauweise errichteten Gebäude verfügen über eine Gesamtwohnfläche von ca. 232,45 m² auf einem 384 m² großen Grundstück.
Der angebotene Kaufpreis von 445.000 € entspricht einem Quadratmeterpreis von lediglich ca. 1.914 € pro m² Wohnfläche.
Damit liegt das Objekt weiterhin unter dem aktuellen Preisniveau vergleichbarer Wohnhäuser in der Region – insbesondere unter Berücksichtigung von Baujahr, Substanz und Entwicklungsperspektive.
Beide Häuser verfügen über:
-eine sonnige Terrasse mit kleinem Garten
-einen eigenen Stellplatz
-Vollkeller
-solide Klinkerfassade
-Satteldach mit Ziegeldeckung
-Energieeffizienzklasse C
-Gas-Zentralheizung
Die Bauqualität ist nachhaltig wertstabil, größere Sanierungsmaßnahmen stehen aktuell nicht an.
Aktuelle Vermietungssituation:
Beide Einheiten sind vermietet und erzielen aktuell eine gesicherte Jahresnettokaltmiete von 10.800 €.
Die bestehende Mietpreisbindung läuft bis zum 31.12.2030. Diese sorgt für Planbarkeit und stabile Mieterstrukturen.
Entwicklungspotenzial ab 01.01.2031
Nach Ablauf der Bindungsfrist kann die Miete frei am Markt angepasst werden.
Bereits heute werden in der Region für Doppelhaushälften Mietpreise von ca. 12 € pro m² erzielt.
Legt man diesen Wert zugrunde, ergibt sich bei 232,45 m² Wohnfläche eine mögliche Jahresnettokaltmiete von:
232,45 m² × 12 € × 12 Monate = ca. 33.400 € pro Jahr
Selbst ohne zukünftige Mietsteigerungen bedeutet dies eine deutliche Ertragssteigerung gegenüber der aktuellen Situation.
Vor dem Hintergrund steigender Baukosten und anhaltender Wohnraumnachfrage erscheint ein Mietniveau von 12 € im Jahr 2031 als konservative Annahme.
Damit eignet sich dieses Objekt insbesondere für Investoren mit mittel- bis langfristigem Anlagehorizont, die heute Substanz erwerben und künftig eine substanzielle Renditeentwicklung realisieren möchten.
Hinweis: Für Selbstnutzer ist das Objekt nicht geeignet. Einzige Ausnahme: Sie erfüllen die Bedingungen für einen Wohnberechtigungsschein des Kreises Steinfurt.
Ausstattungsmerkmale
| Anzahl der Etagen im Haus | 3 |
| Bad | Dusche, Wanne |
| Boden | Fliesen, Laminat |
| Balkone | 0 |
| Garten | |
| Terrassen | 1 |
| Keller |
Terrasse, Garten, Keller, Vollbad, Duschbad, Laminat, Fliesen
Bemerkungen:
Massive Bauweise und Klinkerfassade in Rot: Diese beiden Häuser sind nicht nur optisch ansprechend, sondern auch äußerst solide errichtet. Die elegante Klinkerfassade in warmen Rottönen verleiht den Häusern einen charmanten Charakter und fügt sich harmonisch in die idyllische Umgebung ein. Das Satteldach mit roten Ziegeln rundet das stimmige Gesamtbild gekonnt ab.
Beide Häuser sind voll unterkellert und bieten damit vielfältige Möglichkeiten für Hobbys, Partys oder einfach der Lagerung (warm und trocken).
Bemerkungen:
Massive Bauweise und Klinkerfassade in Rot: Diese beiden Häuser sind nicht nur optisch ansprechend, sondern auch äußerst solide errichtet. Die elegante Klinkerfassade in warmen Rottönen verleiht den Häusern einen charmanten Charakter und fügt sich harmonisch in die idyllische Umgebung ein. Das Satteldach mit roten Ziegeln rundet das stimmige Gesamtbild gekonnt ab.
Beide Häuser sind voll unterkellert und bieten damit vielfältige Möglichkeiten für Hobbys, Partys oder einfach der Lagerung (warm und trocken).
Sonstige Informationen
Heizungsart: Zentralheizung
Energieträger: Gas
Ein unschlagbares Angebot: Mit insgesamt 232 Quadratmetern Wohnfläche auf einem Grundstück von 384 Quadratmetern bieten diese Häuser Raum für individuelle Entfaltung und kreative Gestaltungsmöglichkeiten. Der unschlagbare Preis in Kombination mit der hohen Nachfrage nach Häusern in Riesenbeck machen dieses Angebot zu einem wahren Juwel auf dem Immobilienmarkt.
Mietpreisbindung und zukünftige Chancen: Beachten Sie, dass für dieses Objekt bis zum 31.12.2030 eine Mietpreisbindung besteht, die auf einen Wohnbauförderkredit im Erstellungszeitpunkt zurückzuführen ist. Grundlage dieser Wohnraumförderung waren lediglich die in den Plänen ausgewiesenen 174,95 m². Nach Ausbau des Spitzbodens und Berücksichtigung aller Wohnräume beträgt die langfristig vermietbare Wohnfläche 232,45 m². Dieser Kredit ist bereits zurückgezahlt und hat lediglich eine Nachwirkungsfrist bis zum obigen Datum. Die Mieterauswahl bedingt bis dahin die Zuteilung eines Wohnberechtigungsscheines.
Nach Ablauf der Mietpreisbindung haben Sie die Freiheit, die Miete nach Ihren eigenen Vorstellungen festzulegen.
Verpassen Sie nicht diese seltene Gelegenheit, eine gute Investition mit Zukunftspotenzial in Riesenbeck zu erwerben. Sichern Sie sich noch heute Ihren Platz in diesem begehrten Wohngebiet und lassen Sie sich von den Vorzügen dieser einzigartigen Immobilien überzeugen. Als Immobilieneigentümer haben sie selbst einen direkten Einfluss auf die Performance ihrer Investition. Ein großer Vorteil gegenüber dem Aktienmarkt oder Kryptowährungen.
Fazit:
Ein Gesamtpaket aus zwei vermieteten Reihenhäusern in ruhiger Lage von Riesenbeck – mit:
-attraktivem Quadratmeterpreis
-solider Bauqualität
-Terrassen und Gärten
-Stellplätzen
-klar definiertem Entwicklungspotenzial ab 2031
Solche Konstellationen mit niedriger Einstiegsschwelle und klarer Ertragsperspektive sind im Markt selten verfügbar.
Für weitere Informationen und um einen Besichtigungstermin zu vereinbaren, stehen wir Ihnen gerne zur Verfügung. Zögern Sie nicht, uns zu kontaktieren und lassen Sie sich von diesem außergewöhnlichen Angebot begeistern. Rufen Sie uns einfach kurz an oder senden Sie uns eine nette Nachricht.
Hinweis: Bitte beachten Sie, dass die im Exposé genannten Informationen sorgfältig recherchiert wurden, jedoch ohne Gewähr. Änderungen und Irrtümer vorbehalten.
Makleranfragen nicht erwünscht. Nach § 7 UWG sind unaufgeforderte Kontaktaufnahmen durch Makler ohne ausdrückliche Einwilligung des Empfängers verboten!
ohne-makler (OM) ist weder Anbieter noch Vermittler der Immobilie. OM betreibt eine Plattform für Immobilieneigentümer, die unter anderem die gleichzeitige Veröffentlichung einzelner Inserate auf mehreren Immobilienportalen ermöglicht. Die Inhalte dieser Inserate werden ausschließlich von Dritten verantwortet. Für die Richtigkeit, Vollständigkeit oder Rechtmäßigkeit der Angaben übernimmt OM keine Haftung. Hinweise auf mögliche Rechtsverstöße können jederzeit gemeldet werden und werden nach Prüfung umgehend bearbeitet.
Energieträger: Gas
Ein unschlagbares Angebot: Mit insgesamt 232 Quadratmetern Wohnfläche auf einem Grundstück von 384 Quadratmetern bieten diese Häuser Raum für individuelle Entfaltung und kreative Gestaltungsmöglichkeiten. Der unschlagbare Preis in Kombination mit der hohen Nachfrage nach Häusern in Riesenbeck machen dieses Angebot zu einem wahren Juwel auf dem Immobilienmarkt.
Mietpreisbindung und zukünftige Chancen: Beachten Sie, dass für dieses Objekt bis zum 31.12.2030 eine Mietpreisbindung besteht, die auf einen Wohnbauförderkredit im Erstellungszeitpunkt zurückzuführen ist. Grundlage dieser Wohnraumförderung waren lediglich die in den Plänen ausgewiesenen 174,95 m². Nach Ausbau des Spitzbodens und Berücksichtigung aller Wohnräume beträgt die langfristig vermietbare Wohnfläche 232,45 m². Dieser Kredit ist bereits zurückgezahlt und hat lediglich eine Nachwirkungsfrist bis zum obigen Datum. Die Mieterauswahl bedingt bis dahin die Zuteilung eines Wohnberechtigungsscheines.
Nach Ablauf der Mietpreisbindung haben Sie die Freiheit, die Miete nach Ihren eigenen Vorstellungen festzulegen.
Verpassen Sie nicht diese seltene Gelegenheit, eine gute Investition mit Zukunftspotenzial in Riesenbeck zu erwerben. Sichern Sie sich noch heute Ihren Platz in diesem begehrten Wohngebiet und lassen Sie sich von den Vorzügen dieser einzigartigen Immobilien überzeugen. Als Immobilieneigentümer haben sie selbst einen direkten Einfluss auf die Performance ihrer Investition. Ein großer Vorteil gegenüber dem Aktienmarkt oder Kryptowährungen.
Fazit:
Ein Gesamtpaket aus zwei vermieteten Reihenhäusern in ruhiger Lage von Riesenbeck – mit:
-attraktivem Quadratmeterpreis
-solider Bauqualität
-Terrassen und Gärten
-Stellplätzen
-klar definiertem Entwicklungspotenzial ab 2031
Solche Konstellationen mit niedriger Einstiegsschwelle und klarer Ertragsperspektive sind im Markt selten verfügbar.
Für weitere Informationen und um einen Besichtigungstermin zu vereinbaren, stehen wir Ihnen gerne zur Verfügung. Zögern Sie nicht, uns zu kontaktieren und lassen Sie sich von diesem außergewöhnlichen Angebot begeistern. Rufen Sie uns einfach kurz an oder senden Sie uns eine nette Nachricht.
Hinweis: Bitte beachten Sie, dass die im Exposé genannten Informationen sorgfältig recherchiert wurden, jedoch ohne Gewähr. Änderungen und Irrtümer vorbehalten.
Makleranfragen nicht erwünscht. Nach § 7 UWG sind unaufgeforderte Kontaktaufnahmen durch Makler ohne ausdrückliche Einwilligung des Empfängers verboten!
ohne-makler (OM) ist weder Anbieter noch Vermittler der Immobilie. OM betreibt eine Plattform für Immobilieneigentümer, die unter anderem die gleichzeitige Veröffentlichung einzelner Inserate auf mehreren Immobilienportalen ermöglicht. Die Inhalte dieser Inserate werden ausschließlich von Dritten verantwortet. Für die Richtigkeit, Vollständigkeit oder Rechtmäßigkeit der Angaben übernimmt OM keine Haftung. Hinweise auf mögliche Rechtsverstöße können jederzeit gemeldet werden und werden nach Prüfung umgehend bearbeitet.
Karte wird geladen...
Objektstandort
Uhlandstraße
48477 Hörstel-Riesenbeck
- Nordrhein-Westfalen
Lage & Infrastruktur
Objektstandort
Uhlandstraße
48477 Hörstel-Riesenbeck
- Nordrhein-Westfalen
Eine Oase der Ruhe in perfekter Lage:
Die Südausrichtung der Häuser ermöglicht lichtdurchflutete Wohnräume und sonnige Stunden auf der Terrasse. Riesenbeck besticht durch seine Nähe zur pulsierenden Stadt Münster und ist zugleich ein idyllischer Ort, der Ruhe und Erholung bietet. Entdecken Sie die Vorzüge dieser charmanten Gemeinde, die mit einer lebendigen Kultur- und Freizeitszene, einer hervorragenden Infrastruktur sowie einer grünen Umgebung punktet.
Infrastruktur (im Umkreis von 5 km):
Apotheke, Lebensmittel-Discount, Allgemeinmediziner, Kindergarten, Grundschule, Öffentliche Verkehrsmittel
Die Südausrichtung der Häuser ermöglicht lichtdurchflutete Wohnräume und sonnige Stunden auf der Terrasse. Riesenbeck besticht durch seine Nähe zur pulsierenden Stadt Münster und ist zugleich ein idyllischer Ort, der Ruhe und Erholung bietet. Entdecken Sie die Vorzüge dieser charmanten Gemeinde, die mit einer lebendigen Kultur- und Freizeitszene, einer hervorragenden Infrastruktur sowie einer grünen Umgebung punktet.
Infrastruktur (im Umkreis von 5 km):
Apotheke, Lebensmittel-Discount, Allgemeinmediziner, Kindergarten, Grundschule, Öffentliche Verkehrsmittel
Kontaktanfrage senden
Über den Anbieter
OM PropTech GmbH
Humboldtstraße 25a
21509 Glinde
Kontakt
| Telefon | 01573 5440988 |
| Fax | - |
| Website | www.ohne-makler.net |
Ansprechpartner/in
Angebot von Orange Mountains GmbH
Weitere Angebote des Anbieters
18
Familientraum Modernes Wohnen auf zwei Etagen - ...
Wohnung
83026 Rosenheim
In zentraler Lage von Rosenheim, Happinger Straße 66, entsteht ein moderner Neubau mit insgesamt 14 Wohneinheiten. Die hochwertige Architektur verbindet zeitgemäßes Design mit durchdachter Funktionalität und schafft ...
2.095 €
Kaltmiete (netto)
134,3 m²
Wohnfläche
5
Zimmer
7
Wohnen und Arbeiten im Herzen der Bonner City. Beste ...
Wohnung
53111 Bonn
Das angebotene Wohnbüro befindet sich in der Maximilianstraße 40 und liegt damit in absoluter Bestlage mitten in der Bonner Innenstadt. Die Einheit befindet sich im zweiten Obergeschoss eines gepflegten Gebäudes und ...
1.350 €
Kaltmiete (netto)
80 m²
Wohnfläche
3
Zimmer
12
2Raumwohnung mit Wohnküche
Wohnung
58452 Witten
Diese Wohnung wird nur an maximal zwei Personen über 25 Jahren, die arbeiten, vermietet. Voraussetzung für einen Mietvertrag ist Berufstätig und Deutschsprachigkeit. Besichtigungen können nur Vormittags angeboten ...
500 €
Kaltmiete (netto)
65 m²
Wohnfläche
2
Zimmer
45
Witten-Bommern: grosses Haus mit großem Grundstück zu ...
Haus
58452 Witten
Individuell ausgestattetes freistehendes Haus mit Fernblick, einem uneinsehbaren Innenhof und einem uneinsehbaren Grundstück mit einem großen Garten! Das Mietobjekt ist nur etwas für Gartenfreunde! Details werden nach ...
2.000 €
Kaltmiete (netto)
250 m²
Wohnfläche
8
Zimmer
39
Renditestarkes Ferienhaus auf Usedom mit ...
Haus
17459 Zempin
Ferienhaus „Das Möwenhaus“ – Usedom Zum Verkauf steht das liebevoll geführte Ferienhaus „Das Möwenhaus“ im Ostseebad Zempin auf der Insel Usedom. Das großzügige und lichtdurchflutete Haus mit separater Einliegerwohnung ...
617.000 €
Kaufpreis
147 m²
Wohnfläche
6
Zimmer